Budynek produkcyjno - biurowy
Kod: K-89 B
| W podanej cenie oferujemy 3 kopie projektu architektoniczno-budowlanego potrzebnego do uzyskania pozwolenia na budowę oraz 3 kopie projektu technicznego niezbędnego do prowadzenia budowy sprawdź >> | |
| Parametry projektu zobacz >> | |
| Projekt wysyłamy w terminie 14 dni roboczych od daty złożenia zamówienia | |
| Istnieje również możliwość zakupu wersji elektronicznej (w formacie dwg) projektu architektoniczno - budowlanego skontaktuj się >> | |
| Odbicie lustrzane projektu zobacz >> | |
| Koszty budowy zobacz >> | |
| Forum dotyczące tego projektu zobacz >> |
| Zmiany istotne i nieistotne, które możesz wprowadzić w tym projekcie sprawdź >> | |
| Adaptacja i pozwolenie na budowę zobacz >> | |
| Jeśli masz pytanie |
Prezentacja projektu
Opis projektu
Powierzchnia użytkowa: 1397,58 m2. Budynek jest niepodpiwniczony i składa się z dwóch części: dwukondygnacyjnego budynku biurowego i jednokondygnacyjnej hali magazynowo - produkcyjnej. W obiekcie przewiduje się obecność do 40 osób: część biurowa - parter do 10 osób, piętro do 20 osób, część produkcyjna do 10 osób. Część biurowa przykryta stropodachem o spadku 2 - 4 %. Część produkcyjna przykryta dachem dwuspadowym o kącie nachylenia 5°.
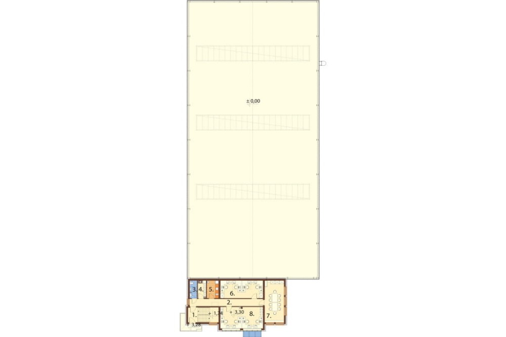
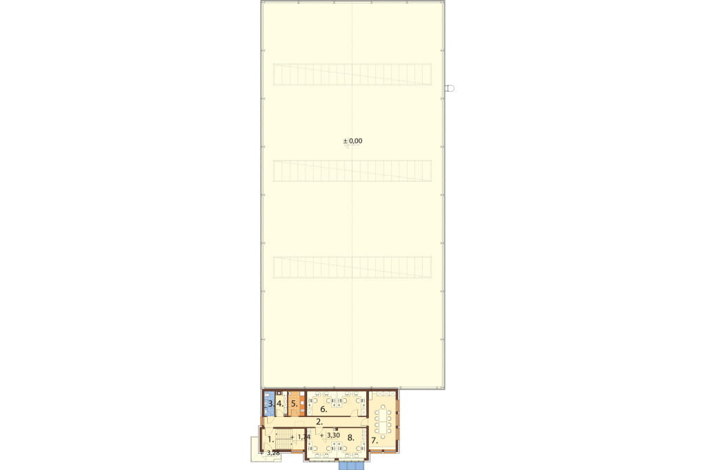
Rzut parteru
Parter: 1275,36 m2
1. Klatka schodowa 7,14 m2
2. Kotłownia 10,07 m2
3. WC + natryski 7,73 m2
4. Szatnia 3,79 m2
5. Sala ekspozycyjna 96,60 m2
6. Pom. magaz. – produkcyjne 1150,03 m2
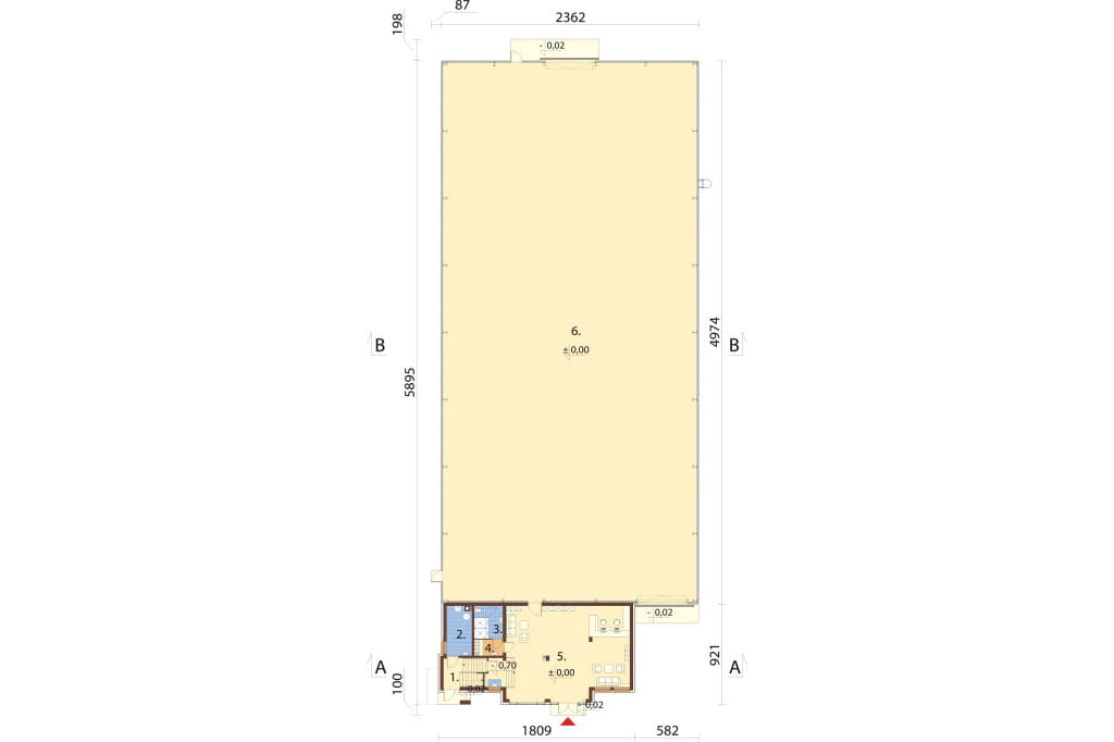
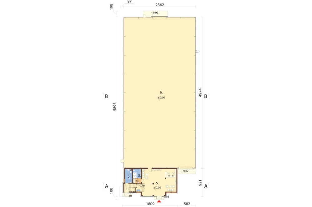
Rzut piętra
Piętro: 122,22 m2
1. Klatka schodowa 14,28 m2
2. Korytarz 16,41 m2
3. WC + przedsionek 3,99 m2
4. Archiwum 3,97 m2
5. Pokój śniadań 6,48 m2
6. Biuro 23,61 m2
7. Pokój konferencyjny 24,85 m2
8. Biuro 28,63 m2
Przekrój


Informacje podstawowe
Technologia: tradycyjna (biuro), stalowa (hala)
Ściany zewnętrzne:
Część biurowa: pustak ceramiczny 29 cm, wełna mineralna 15 cm, panele elewacyjne 3 cm
Część produkcyjna: płyta warstwowa z rdzeniem poliuretanowym 14 cm, konstrukcja stalowa
Strop w części biurowej: żelbetowy
Ogrzewanie: gazowe, pompa ciepła do c.w.u.
Wentylacja: mechaniczna i grawitacyjna
Pokrycie dachu:
Część biurowa: membrana PCV, papa termozgrzewalna wierzchniego krycia
Część produkcyjna: dachowa płyta warstwowa z rdzeniem poliuretanowym
Program:
Parter: klatka schodowa, kotłownia, szatnia, WC + natryski, sala ekspozycyjna, hala magazynowo‑produkcyjna.
Piętro: klatka schodowa, korytarz, archiwum, WC, pokój śniadań, 2 pomieszczenia biurowe, pokój konferencyjny.
W budynku zaprojektowano również instalację fotowoltaiczną o mocy 40 kWp, przeznaczoną do zasilania wentylacji mechanicznej, urządzeń pomocniczych do c.o. i c.w.u. oraz częściowo oświetlenia wbudowanego.
Koszty budowy sprawdź >>
Architekt: Ewa Ferfecka-Homola, Jaromir Mruk
Projekt ten został opracowany zgodnie z normami budowlanymi, w pełnym zakresie wymaganym dla projektów gotowych.
Zawartość projektu sprawdź szczegóły >>
Łączna zawartość obu projektów architektoniczno - budowlanego oraz projektu technicznego, które można zamówić razem lub osobno:
- projekt architektoniczny
- projekt konstrukcyjny
- projekt wewnętrznych instalacji sanitarnych (wod-kan, gaz, c.o, technologia kotłowni gazowej, went. mechaniczna)
- projekt wewnętrznej instalacji elektrycznej, instalacji odgromowej i fotowoltaicznej
- projektowana charakterystyka energetyczna budynku
- zgoda na zmiany w projekcie
Parametry projektu
Ogólne kategorie, do których należy ten projekt
- Powierzchnia użytkowa (m²) 1000 - 2000
- Powierzchnia zabudowy (m²) 1000 - 2000
- Kąt nachylenia dachu (°) 0 - 5
- Szerokość działki/krótszy bok (m) 30 - 40
- Wysokość budynku (m) 10 - 12
Podstawowe parametry projektu
- Powierzchnia użytkowa (m²) 1397.58
- Powierzchnia zabudowy (m²) 1329.74
- Szerokość budynku/krótszy bok (m) 23.91
- Długość budynku/dłuższy bok (m) 58.95
- Wysokość budynku (m) 10.09
- Szerokość działki/krótszy bok (m) 31.91
- Kąt nachylenia dachu (°) 0.9 - 1.8, 5
- Rodzaj dachu dwuspadowy
- Piwnica bez podpiwniczenia
- Garaż bez garażu
- Poddasze piętro
Uzupełniające parametry projektu
- Rodzaj technologii* tradycyjna
- Strop w budynku* żelbetowy
- Pokrycie dachu* membrana wodoszczelna
- Kubatura (m³) 11919.35
- Liczba kondygnacji 2
- Rodzaj ogrzewania gazowe
- Wskaźnik energii pierwotnej (kWh/(m²·rok)) 69,13
- Instalacja fotowoltaiczna* tak
- Wentylacja* mechaniczna
- Liczba pomieszczeń 14
- Liczba łazienek (bez WC) 1
Dodatkowe parametry projektu
- Winda w budynku nie
- Przystosowany dla osób niepełnosprawnych tak
- Garaż podziemny nie
- Pomieszczenie socjalne tak
* gwiazdką są oznaczone w parametrach projektu zmiany nieistotne, które nie wymagają przeprojektowania do pozwolenia zamiennego. Do każdego projektu dołączamy bezpłatną zgodę na wprowadzanie zarówno zmian istotnych jak i nieistotnych.
Projekty domów można również przeglądać analizując zestawienia rzutów parterów kliknij tutaj >>
Darmowe dodatki do projektu
- 10 stylowych projektów ogrodzeń
- 10 projektów śmietników
- 5 projektów grilli z funkcją rusztu, kominka i wędzarni
- 6 projektów oczek wodnych
- 6 projektów altan
- 4 projekty huśtawek ogrodowych
- 4 projekty bud dla psów
- 4 projekty szamb o poj. 21,6 m3 / 14,6 m3 / 10 m3 i 6,4 m3
- 2 projekty przydomowej oczyszczalni ścieków. Jeden dla rodziny do 4 osób, drugi dla rodziny do 6 osób
- projekt przydomowej elektrowni wiatrowej
- schemat instalacji fotowoltaicznej
- projekty budek lęgowych dla kilkudziesięciu gatunków ptaków
- zgoda na wszelkie zmiany i adaptacje
Producentem projektu jest:

ul. Cystersów 7B, 31-553 Kraków
e-mail: kbprojekt@kbprojekt.pl
tel. 12 414 35 06
Pomocne informacje
Chcesz wprowadzić zmiany w tym projekcie?
Możemy dostosować go do Twoich potrzeb, napisz co chciałbyś w nim zmienić, przeprojektujemy go tak, aby w pełni odpowiadał Twoim oczekiwaniom
Chcesz dostosować ten projekt we własnym zakresie?
Sprawdź jakie zmiany są nieistotne czyli takie, ktore możesz wprowadzić na etapie budowy zobacz szczegóły >>
Nie możesz znaleźć odpowiedniego projektu?
Chętnie pomożemy. Zadzwoń do nas 12 410 49 70 lub skorzystaj z formularza kontaktowego dostępnego tutaj >>
Szukasz projektu dopasowanego do Twoich potrzeb?
Sprawdź naszą ofertę na projekty domów na indywidualne zamówienie w niezwykle atrakcyjnej cenie zobacz szczegóły >>
Potrzebujesz adaptacji projektu lub pomocy w załatwieniu formalności związanych z budową?
Nasze biuro architektoniczne oferuje pomoc w uzyskaniu pozwolenia na budowę a także wykonuje adaptacje projektów na terenie całej Polski zobacz szczegóły >>
Szukasz sprawdzonego kierownika budowy?
Oferujemy usługi naszych uprawnionych kierowników budowy, którzy przeprowadzą Cię przez cały proces budowlany, od uzyskania pozwolenia na budowę po finalne odbiory zobacz szczegóły >>
Opinie o tym projekcie
Jeśli dodałeś/-aś recenzję, a nie pojawiłą się na liście, być może oczekuje na moderację.