Budynek produkcyjno-biurowy
Kod: LK-139
| W podanej cenie oferujemy 3 kopie projektu architektoniczno-budowlanego potrzebnego do uzyskania pozwolenia na budowę oraz 3 kopie projektu technicznego niezbędnego do prowadzenia budowy sprawdź >> | |
| Parametry projektu zobacz >> | |
| Projekt wysyłamy w terminie 14 dni roboczych od daty złożenia zamówienia | |
| Istnieje również możliwość zakupu wersji elektronicznej (w formacie dwg) projektu architektoniczno - budowlanego skontaktuj się >> | |
| Odbicie lustrzane projektu zobacz >> | |
| Koszty budowy zobacz >> | |
| Forum dotyczące tego projektu zobacz >> |
| Zmiany istotne i nieistotne, które możesz wprowadzić w tym projekcie sprawdź >> | |
| Adaptacja i pozwolenie na budowę zobacz >> | |
| Jeśli masz pytanie |
Prezentacja projektu
Opis projektu
Powierzchnia użytkowa: 2032,87 m2. Budynek nie jest podpiwniczony i składa się z dwóch części: pierwsza część to dwukondygnacyjny budynek biurowy, druga część to jednokondygnacyjna hala produkcyjna.
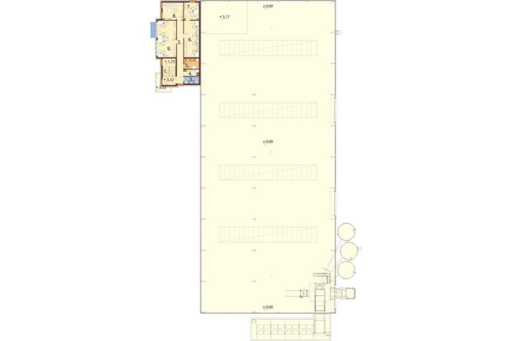
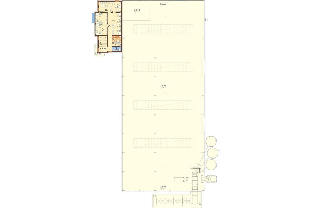
Rzut parteru
Parter: 1909,15 m2
1. Hall + klatka schodowa 8,32 m2
2. Wc 4,17 m2
3. Ekspozycja + BOK 68,91 m2
4. Pomieszczenie gospodarcze 4,40 m2
5. Biuro 13,33 m2
6. Biuro 12,88 m2
7. Kotłownia 13,20 m2
8. Hala produkcyjna 1724,47 m2
9. Szatnia pracowników hali 16,41 m2
10. Umywalki + natrysk 17,02 m2
11. Wc męskie 4,08 m2
12. Pokój kierownika 12,16 m2
13. Pokój śniadań 9,80 m2
Rzut piętra
I piętro: 123,72 m2
1. Klatka schodowa 14,61 m2
2. Korytarz 16,94 m2
3. Wc + przedsionek 4,23 m2
4. Archiwum 3,51 m2
5. Pokój śniadań 6,32 m2
6. Biuro 23,31 m2
7. Biuro 10,86 m2
8. Pokój wielofunkcyjny 15,14 m2
9. Biuro 28,80 m2
Przekrój



Model

Elewacje




Informacje podstawowe
Część biurowa - przykryta stropodachem o spadku 2 - 6%. W tej części budynku przewiduje się do 15 pracowników biurowych.
Część produkcyjna - przykryta dachem dwuspadowym o symetrycznym nachyleniu połaci 5%. W części produkcyjnej przewiduje się do 10 - 12 pracowników.
Technologia: tradycyjna (biuro), stalowa (hala)
Ściany zewnętrzne:
część biurowa: pustak ceramiczny 29 cm, konstrukcja wsporcza dla paneli zewnętrznych 17 cm, wełna mineralna 15 cm, pustak powietrza 2 cm, tynk zewnętrzny
część produkcyjna: płyta warstwowa z rdzeniem poliuretanowym 12 cm, konstrukcja stalowa wg projektu konstrukcji.
Strop w budynku: żelbetowy
Ogrzewanie:
część biurowa: kocioł gazowy
część produkcyjna:aparaty grzewczo - wentylacyjne gazowe
Wentylacja:
część biurowa: grawitacyjna
część produkcyjna: grawitacyjna z przewietrzaniem
Pokrycie dachu:
część biurowa: stropodach
część produkcyjna: dachowa płyta warstwowa
Program:
Parter: hall, klatka schodowa, ekspozycja + biuro obsługi klienta, pomieszczenie gospodarcze, 2 biura, kotłownia, hala produkcyjna, szatnia pracowników hali, umywalki z natryskami, WC męskie, pokój kierownika, pokój śniadań
Piętro: klatka schodowa, korytarz WC z przedsionkiem, archiwum, pokój śniadań, 3 pomieszczenia biurowe, pokój wielofunkcyjny
Koszty budowy sprawdź >>
Architekt: Ewa Ferfecka-Homola, Jaromir Mruk
Projekt ten został opracowany zgodnie z normami budowlanymi, w pełnym zakresie wymaganym dla projektów gotowych.
Zawartość projektu sprawdź szczegóły >>
Łączna zawartość obu projektów architektoniczno - budowlanego oraz projektu technicznego, które można zamówić razem lub osobno:
- projekt architektoniczny budowlany
- projekt konstrukcyjny budowlany
- projekt budowlany wewnętrznych instalacji sanitarnych (wod-kan, gaz, c.o. z kotłownią na gaz, wentylacja mechaniczna)
- projekt budowlany wewnętrznej instalacji elektrycznej oraz instalacji odgromowej
- projektowana charakterystyka energetyczna budynku
- zgoda na zmiany w projekcie
Parametry projektu
Ogólne kategorie, do których należy ten projekt
- Powierzchnia użytkowa (m²) 2000 - 3000
- Powierzchnia zabudowy (m²) 1000 - 2000
- Kąt nachylenia dachu (°) 0 - 5
- Szerokość działki/krótszy bok (m) 40 - 50
- Wysokość budynku (m) 9 - 10
Podstawowe parametry projektu
- Powierzchnia użytkowa (m²) 2032.87
- Powierzchnia zabudowy (m²) 1979.11
- Szerokość budynku/krótszy bok (m) 37.39
- Długość budynku/dłuższy bok (m) 64.97
- Wysokość budynku (m) 9.38
- Szerokość działki/krótszy bok (m) 45.39
- Kąt nachylenia dachu (°) 0,9 - 2,7
- Rodzaj dachu płaski
- Piwnica bez podpiwniczenia
- Garaż bez garażu
- Poddasze piętro
Uzupełniające parametry projektu
- Rodzaj technologii* tradycyjna / stalowa
- Strop w budynku* żelbetowy
- Pokrycie dachu* stropodach
- Kubatura (m³) 16577.90
- Liczba kondygnacji 2
- Rodzaj ogrzewania gazowe
- Wskaźnik energii pierwotnej (kWh/(m²·rok)) 60.30
- Wentylacja* grawitacyjna
- Liczba pomieszczeń 22
- Liczba łazienek (bez WC) 1
Dodatkowe parametry projektu
- Winda w budynku nie
- Przystosowany dla osób niepełnosprawnych tak
- Garaż podziemny nie
- Pomieszczenie socjalne tak
* gwiazdką są oznaczone w parametrach projektu zmiany nieistotne, które nie wymagają przeprojektowania do pozwolenia zamiennego. Do każdego projektu dołączamy bezpłatną zgodę na wprowadzanie zarówno zmian istotnych jak i nieistotnych.
Darmowe dodatki do projektu
- 10 stylowych projektów ogrodzeń
- 10 projektów śmietników
- 5 projektów grilli z funkcją rusztu, kominka i wędzarni
- 6 projektów oczek wodnych
- 6 projektów altan
- 4 projekty huśtawek ogrodowych
- 4 projekty bud dla psów
- 4 projekty szamb o poj. 21,6 m3 / 14,6 m3 / 10 m3 i 6,4 m3
- 2 projekty przydomowej oczyszczalni ścieków. Jeden dla rodziny do 4 osób, drugi dla rodziny do 6 osób
- projekt przydomowej elektrowni wiatrowej
- schemat instalacji fotowoltaicznej
- projekty budek lęgowych dla kilkudziesięciu gatunków ptaków
- zgoda na wszelkie zmiany i adaptacje
Producentem projektu jest:

ul. Cystersów 7B, 31-553 Kraków
e-mail: kbprojekt@kbprojekt.pl
tel. 12 414 35 06
Pomocne informacje
Chcesz wprowadzić zmiany w tym projekcie?
Możemy dostosować go do Twoich potrzeb, napisz co chciałbyś w nim zmienić, przeprojektujemy go tak, aby w pełni odpowiadał Twoim oczekiwaniom
Chcesz dostosować ten projekt we własnym zakresie?
Sprawdź jakie zmiany są nieistotne czyli takie, ktore możesz wprowadzić na etapie budowy zobacz szczegóły >>
Nie możesz znaleźć odpowiedniego projektu?
Chętnie pomożemy. Zadzwoń do nas 12 410 49 70 lub skorzystaj z formularza kontaktowego dostępnego tutaj >>
Szukasz projektu dopasowanego do Twoich potrzeb?
Sprawdź naszą ofertę na projekty domów na indywidualne zamówienie w niezwykle atrakcyjnej cenie zobacz szczegóły >>
Potrzebujesz adaptacji projektu lub pomocy w załatwieniu formalności związanych z budową?
Nasze biuro architektoniczne oferuje pomoc w uzyskaniu pozwolenia na budowę a także wykonuje adaptacje projektów na terenie całej Polski zobacz szczegóły >>
Szukasz sprawdzonego kierownika budowy?
Oferujemy usługi naszych uprawnionych kierowników budowy, którzy przeprowadzą Cię przez cały proces budowlany, od uzyskania pozwolenia na budowę po finalne odbiory zobacz szczegóły >>
Opinie o tym projekcie
Jeśli dodałeś/-aś recenzję, a nie pojawiłą się na liście, być może oczekuje na moderację.