Budynek biurowy
Kod: K-128
| W podanej cenie oferujemy 3 kopie projektu architektoniczno-budowlanego potrzebnego do uzyskania pozwolenia na budowę oraz 3 kopie projektu technicznego niezbędnego do prowadzenia budowy sprawdź >> | |
| Parametry projektu zobacz >> | |
| Projekt wysyłamy w terminie 14 dni roboczych od daty złożenia zamówienia | |
| Istnieje również możliwość zakupu wersji elektronicznej (w formacie dwg) projektu architektoniczno - budowlanego skontaktuj się >> | |
| Odbicie lustrzane projektu zobacz >> | |
| Koszty budowy zobacz >> | |
| Forum dotyczące tego projektu zobacz >> |
| Zmiany istotne i nieistotne, które możesz wprowadzić w tym projekcie sprawdź >> | |
| Adaptacja i pozwolenie na budowę zobacz >> | |
| Jeśli masz pytanie |
Prezentacja projektu
Opis projektu
Powierzchnia użytkowa: 363,46 m2. Budynek piętrowy dwukondygnacyjny, bez piwnicy i garażu. W budynku przewiduje się około 20 pracowników (10 na parterze i 10 na piętrze). Obiekt przystosowany jest dla osób niepełnosprawnych
Rzut parteru
Parter: 186,49 / 189,87 m2
1. Wiatrołap 4,25 m2
2. Hall + komunikacja 22,93 m2
3. Biuro open space 50,80 m2
4. Biuro prezesa 20,44 m2
5. Magazyn 14,45 m2
6. Kotłownia 5,05 m2
7. Jadalnia 11,54 m2
8. Wc męskie + przedsionek 5,71 m2
9. Wc damskie / niepełnosprawnych 3,44 m2
10. Biuro 28,33 m2
11. Sala konferencyjna 12,78 m2
12. Pomieszczenie porządkowe 6,77 / 10,15 m2
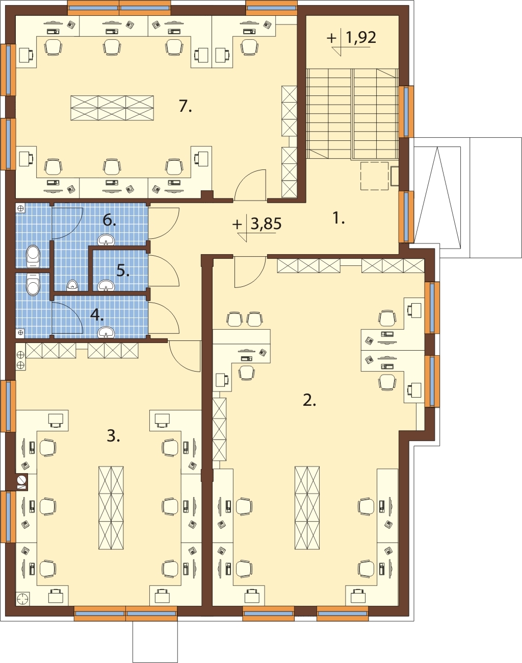
Rzut piętra
Piętro: 176,97 m2
1. Hall + komunikacja 22,86 m2
2. Biuro 57,66 m2
3. Biuro 40,27 m2
4. Wc damskie + przedsionek 5,14 m2
5. Pomieszczenie porządkowe 1,76 m2
6. Wc męskie 6,41 m2
7. Biuro 42,87 m2
Przekrój


Model

Elewacje




Informacje podstawowe
Technologia: tradycyjna
Ściany zewnętrzne: pustak ceramiczny 29 cm, styropian 15 cm, tynk zewnętrzny
Stropy w budynku: żelbetowy
Kąt nachylenia dachu: 2,5° i 3°
Ogrzewanie: kocioł na paliwo gazowe
Wentylacja: mechaniczne z rekuperacją
Pokrycie dachu: stropodach
Powierzchnia dachu: 198,06 m2
Program: wiatrołap, hall z komunikacją, 6 pomieszczeń biurowych, 2 WC męskie, WC damskie i osób niepełnosprawnych, jadalnia, magazyn, kotłownia, sala konferencyjna, 2 pomieszczenia porządkowe, WC damskie.
Koszty budowy sprawdź >>
Architekt: Ewa Ferfecka-Homola, Vira Slavich
Projekt ten został opracowany zgodnie z normami budowlanymi, w pełnym zakresie wymaganym dla projektów gotowych.
Zawartość projektu sprawdź szczegóły >>
Łączna zawartość obu projektów architektoniczno - budowlanego oraz projektu technicznego, które można zamówić razem lub osobno:
- projekt architektoniczny budowlany
- projekt konstrukcyjny budowlany
- projekt budowlany wewnętrznych instalacji sanitarnych (wod-kan, gaz, c.o., wentylacja mechaniczna z rekuperacją, klimatyzacja)
- projekt budowlany wewnętrznej instalacji elektrycznej oraz instalacji odgromowej
- zestawienie materiałów budowlanych
- projektowana charakterystyka energetyczna budynku
- zgoda na zmiany w projekcie
Parametry projektu
Ogólne kategorie, do których należy ten projekt
- Powierzchnia użytkowa (m²) 300 - 500
- Powierzchnia zabudowy (m²) 200 - 300
- Kąt nachylenia dachu (°) 0 - 5
- Szerokość działki/krótszy bok (m) 20 - 25
- Wysokość budynku (m) 7 - 8
Podstawowe parametry projektu
- Powierzchnia użytkowa (m²) 363.46
- Powierzchnia zabudowy (m²) 225.69
- Szerokość budynku/krótszy bok (m) 13,62
- Długość budynku/dłuższy bok (m) 18
- Wysokość budynku (m) 8,75
- Szerokość działki/krótszy bok (m) 21.62
- Kąt nachylenia dachu (°) 2,5 3
- Rodzaj dachu płaski
- Piwnica bez podpiwniczenia
- Garaż bez garażu
- Poddasze piętro
Uzupełniające parametry projektu
- Rodzaj technologii* tradycyjna
- Strop w budynku* żelbetowy
- Pokrycie dachu* stropodach
- Kubatura (m³) 1828.09
- Liczba kondygnacji 2
- Rodzaj ogrzewania gazowe
- Wskaźnik energii pierwotnej (kWh/(m²·rok)) 23,76
- Wentylacja* mechaniczna
- Liczba pomieszczeń 19
Dodatkowe parametry projektu
- Winda w budynku nie
- Przystosowany dla osób niepełnosprawnych tak
- Garaż podziemny nie
- Pomieszczenie socjalne tak
* gwiazdką są oznaczone w parametrach projektu zmiany nieistotne, które nie wymagają przeprojektowania do pozwolenia zamiennego. Do każdego projektu dołączamy bezpłatną zgodę na wprowadzanie zarówno zmian istotnych jak i nieistotnych.
Projekty domów można również przeglądać analizując zestawienia rzutów parterów kliknij tutaj >>
Darmowe dodatki do projektu
- 10 stylowych projektów ogrodzeń
- 10 projektów śmietników
- 5 projektów grilli z funkcją rusztu, kominka i wędzarni
- 6 projektów oczek wodnych
- 6 projektów altan
- 4 projekty huśtawek ogrodowych
- 4 projekty bud dla psów
- 4 projekty szamb o poj. 21,6 m3 / 14,6 m3 / 10 m3 i 6,4 m3
- 2 projekty przydomowej oczyszczalni ścieków. Jeden dla rodziny do 4 osób, drugi dla rodziny do 6 osób
- projekt przydomowej elektrowni wiatrowej
- schemat instalacji fotowoltaicznej
- projekty budek lęgowych dla kilkudziesięciu gatunków ptaków
- zgoda na wszelkie zmiany i adaptacje
Producentem projektu jest:

ul. Cystersów 7B, 31-553 Kraków
e-mail: kbprojekt@kbprojekt.pl
tel. 12 414 35 06
Pomocne informacje
Chcesz wprowadzić zmiany w tym projekcie?
Możemy dostosować go do Twoich potrzeb, napisz co chciałbyś w nim zmienić, przeprojektujemy go tak, aby w pełni odpowiadał Twoim oczekiwaniom
Chcesz dostosować ten projekt we własnym zakresie?
Sprawdź jakie zmiany są nieistotne czyli takie, ktore możesz wprowadzić na etapie budowy zobacz szczegóły >>
Nie możesz znaleźć odpowiedniego projektu?
Chętnie pomożemy. Zadzwoń do nas 12 410 49 70 lub skorzystaj z formularza kontaktowego dostępnego tutaj >>
Szukasz projektu dopasowanego do Twoich potrzeb?
Sprawdź naszą ofertę na projekty domów na indywidualne zamówienie w niezwykle atrakcyjnej cenie zobacz szczegóły >>
Potrzebujesz adaptacji projektu lub pomocy w załatwieniu formalności związanych z budową?
Nasze biuro architektoniczne oferuje pomoc w uzyskaniu pozwolenia na budowę a także wykonuje adaptacje projektów na terenie całej Polski zobacz szczegóły >>
Szukasz sprawdzonego kierownika budowy?
Oferujemy usługi naszych uprawnionych kierowników budowy, którzy przeprowadzą Cię przez cały proces budowlany, od uzyskania pozwolenia na budowę po finalne odbiory zobacz szczegóły >>
Opinie o tym projekcie
Jeśli dodałeś/-aś recenzję, a nie pojawiłą się na liście, być może oczekuje na moderację.