Budynek produkcyjno - usługowy (browar + sala konferencyjno - koncertowa + sklep)
Kod: LK-46
| W podanej cenie oferujemy 3 kopie projektu architektoniczno-budowlanego potrzebnego do uzyskania pozwolenia na budowę oraz 3 kopie projektu technicznego niezbędnego do prowadzenia budowy sprawdź >> | |
| Projekt wysyłamy w terminie 14 dni roboczych od daty złożenia zamówienia | |
| Parametry projektu zobacz >> | |
| Istnieje również możliwość zakupu wersji elektronicznej (w formacie dwg) projektu architektoniczno - budowlanego skontaktuj się >> | |
| Koszty budowy zobacz >> | |
| Forum dotyczące tego projektu zobacz >> |
| Zmiany istotne i nieistotne, które możesz wprowadzić w tym projekcie sprawdź >> | |
| Adaptacja i pozwolenie na budowę zobacz >> | |
| Jeśli masz pytanie |
Prezentacja projektu
Opis projektu
LK-46. Projekt browaru, projekt budynku konferencyjnego, projekt budynku z salą koncertową, projekt sklepu, projekt budynku biurowego, projekt hali magazynowej, projekt restauracji, projekt hali produkcyjnej,
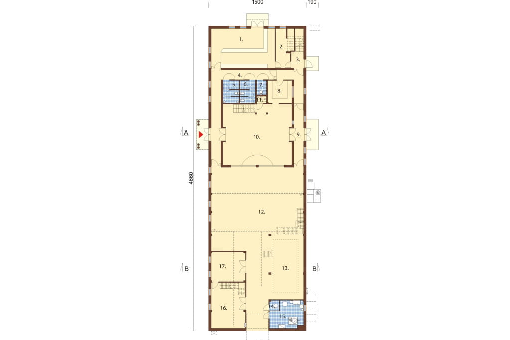
Rzut parteru
Parter: 611,8/ 619,4 m2
Część sklepowa:
1. Sklep 58,8 m
2. Magazyn 13,0 m
3. Klatka schodowa 9,3 m2
Część konferencyjno - koncertowa:
4. Korytarz 45,9 m
5. WC męski 8,2 m
6. WC damski 8,2 m
7. WC dla niepełnosprawnych 3,3 m
8. Zaplecze sali 12,9 m
9. Korytarz 13,9 m
10. Sala widowiskowa 93,9 m
11. Pomieszczenie porządkowe 1,8 m2
Część produkcyjna (browar):
12. Fermentacja 207,5 m
13. Warzelnia 53,3 m
14. Pom. techniczne
15. Kotłownia 21,7 m
16. Magazyn produktów gotowych 36,3 m
17. Butelkowanie 23,8 m2
Parter podzielony jest na trzy części. Najwięcej powierzchni użytkowej zajmuje oczywiście hala produkcyjna (browar). Druga pod względem metrażu jest część konferencyjno koncertowa, gdzie mamy sale widowiskową o powierzchni 93,9 m. Trzecią część stanowi część sklepowa, gdzie można prowadzić sprzedaż produktów z browaru.
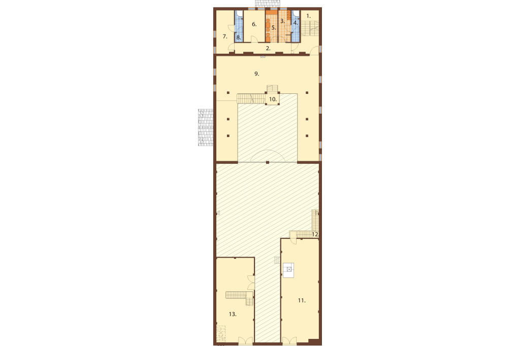
Rzut pierwszego piętra
Piętro: 354,7 m2
Część biurowo - zapleczowa:
1. Klatka schodowa 14,3 m
2. Korytarz 11,0 m
3. Pomieszczenie socjalne 7,4 m
4. WC + natrysk 4,6 m
5. Pokój śniadań 7,1 m
6. Biuro 12,8 m
7. Biuro 14,6 m
8. WC + natrysk 4,6 m2
Część konferencyjno - koncertowa:
9. I Antresola 127,5 m2
Część produkcyjna (browar):
10. Schody 8,7 m
11. Magazyn słodu 74,3 m
12. Schody 6,3 m
13. Magazyn opakowań + schody 61,6 m2
Na pierwszym piętrze zaprojektowaliśmy część produkcyjną, głównie magazyny, zaplecze biurowe oraz efektowną antresolę dla sali konferencyjno koncertowej.
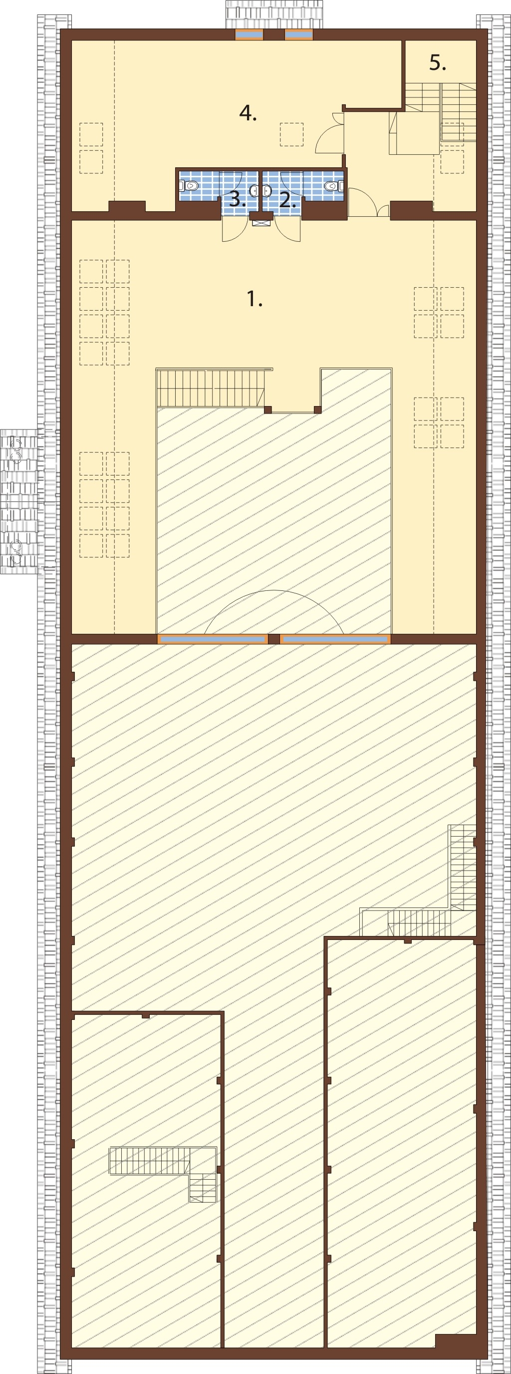
Rzut piętra / antresoli
Poddasze:150,8/ 209,5 m2
Część konferencyjno - koncertowa:
1. II Antresola 88,3 m
2. WC 3,4 m
3. WC 3,4 m2
Część magazynowa:
4. Magazyn 40,9 m
5. Klatka schodowa 14,9 m2
Poddasze zaprojektowaliśmy jako przestrzeń, gdzie jest magazyn oraz II poziom antresoli sali konferencyjno koncertowej.
Przekrój

Model 3D

Elewacje




Informacje podstawowe
Projekt budynku produkcyjno - usługowego (Browar + sala konferencyjno - koncertowa z dwoma antresolami + sklep)
LK-46.
Budynek piętrowy z poddaszem / antresolą, niepodpiwniczony. Na trzypoziomowej sali konferencyjno - koncertowej mozna ogranizować przyjęcia dla około 200 osób. W części produkcyjnej: produkcja piwa rzemieślniczego. W części sklepowej sprzedaż piwa i innych artykułów regionalnych.
Technologia tradycyjna: ściany zewnętrzne - pustak SUPOREX 30 cm, styropian 15 cm, tynk zewnętrzny. Konstrukcja nośna: układ - ryglowo słupowy żelbetowy. Stropy: żelbetowe. Kąt nachylenia dachu: 30°. Więźba dachowa prefabrykowana drewniana z dźwiagrów dachowych kratownicowych łączonych za pomoc a płytek kolczastych firmy MITEK.
Ogrzewanie: sala konferencyjno - koncertowa ogrzewana, chłodzona i wentylowana z centrali wentylacyjnej Lennox umiejscowionej poza budynkiem. Część produkcyjna ogrzewana i wentylowana za pomocą jednostek grzewczo wentylacyjnych nadmuchowych. Wentylacja wywiewna mechaniczna w dachu. Pozostała część budynku jak i c.w.u ogrzewana z pieca gazowego kondensacyjnego w kotłowni. Podgrzewanie c.w.u wspomagane przez 4 kolektory słoneczne.
Program: część produkcyjna (fermentacja, warzelnia, magazyn produktów gotowych, butelkowanie, magazyn słodu, magazyn opakowań, kotłownia gazowa. Część konferencyjno - koncertowa: trzypoziomowa sala konferencyjno - koncertowa dla około 200 osób, zaplecze sanitarne, socjalne, magazynowe, biurowe. Część sklepowa: sklep z piwem rzemieślniczym i artykułami regionalnymi.
ZAWARTOŚĆ PROJEKTU:
- projekt architektoniczny budowlany
- projekt konstrukcyjny budowlany
- projekt budowlany wewnętrznych instalacji sanitarnych (c.o, wod-kan, gaz (propan - butan), wentylacja mechaniczna nawiewno - wywiewna oraz oddymianie sali z antresolami, wentylacja mechaniczna hali produkcyjnej, hydranty p.poż, instalacja solarna)
- projekt budowlany wewnętrznej instalacji elektrycznej oraz instalacji odgromowej (w tym m.in: p.poż. wyłącznik prądu, awaryjne oświetlenie ewakuacyjne)
- projekt prefabrykowanej kratownicowej więźby dachowej
- zestawienie materiałów budowlanych
Koszty budowy sprawdź >>
Architekt: Ewa Ferfecka-Homola, Jaromir Mruk,
Projekt ten został opracowany zgodnie z normami budowlanymi, w pełnym zakresie wymaganym dla projektów gotowych.
Zawartość projektu sprawdź szczegóły >>
Łączna zawartość obu projektów architektoniczno - budowlanego oraz projektu technicznego, które można zamówić razem lub osobno:
Parametry projektu
Ogólne kategorie, do których należy ten projekt
- Powierzchnia mieszkalna (m²) 0 - 50
- Powierzchnia użytkowa (m²) 1000 - 2000
- Powierzchnia zabudowy (m²) 500 - 1000
- Kąt nachylenia dachu (°) 25 - 30
- Szerokość działki/krótszy bok (m) 20 - 25
- Wysokość budynku (m) 10 - 12
Podstawowe parametry projektu
- Powierzchnia mieszkalna (m²) 0.00
- Powierzchnia użytkowa (m²) 1117.40
- Powierzchnia zabudowy (m²) 699.00
- Szerokość budynku/krótszy bok (m) 15
- Długość budynku/dłuższy bok (m) 46.6
- Wysokość budynku (m) 11.95
- Szerokość działki/krótszy bok (m) 23.00
- Kąt nachylenia dachu (°) 30°
- Rodzaj dachu dwuspadowy
- Piwnica bez podpiwniczenia
- Garaż bez garażu
- Poddasze antresola
Uzupełniające parametry projektu
- Rodzaj technologii* tradycyjna
- Układ dachu kalenicowy
- Kubatura (m³) 5326.40
- Liczba kondygnacji 3
- Rodzaj ogrzewania gazowe
- Liczba pomieszczeń 3
* gwiazdką są oznaczone w parametrach projektu zmiany nieistotne, które nie wymagają przeprojektowania do pozwolenia zamiennego. Do każdego projektu dołączamy bezpłatną zgodę na wprowadzanie zarówno zmian istotnych jak i nieistotnych.
Darmowe dodatki do projektu
- 10 stylowych projektów ogrodzeń
- 10 projektów śmietników
- 5 projektów grilli z funkcją rusztu, kominka i wędzarni
- 6 projektów oczek wodnych
- 6 projektów altan
- 4 projekty huśtawek ogrodowych
- 4 projekty bud dla psów
- 4 projekty szamb o poj. 21,6 m3 / 14,6 m3 / 10 m3 i 6,4 m3
- 2 projekty przydomowej oczyszczalni ścieków. Jeden dla rodziny do 4 osób, drugi dla rodziny do 6 osób
- projekt przydomowej elektrowni wiatrowej
- schemat instalacji fotowoltaicznej
- projekty budek lęgowych dla kilkudziesięciu gatunków ptaków
- zgoda na wszelkie zmiany i adaptacje
Producentem projektu jest:

ul. Cystersów 7B, 31-553 Kraków
e-mail: kbprojekt@kbprojekt.pl
tel. 12 414 35 06
Pomocne informacje
Chcesz wprowadzić zmiany w tym projekcie?
Możemy dostosować go do Twoich potrzeb, napisz co chciałbyś w nim zmienić, przeprojektujemy go tak, aby w pełni odpowiadał Twoim oczekiwaniom
Chcesz dostosować ten projekt we własnym zakresie?
Sprawdź jakie zmiany są nieistotne czyli takie, ktore możesz wprowadzić na etapie budowy zobacz szczegóły >>
Nie możesz znaleźć odpowiedniego projektu?
Chętnie pomożemy. Zadzwoń do nas 12 410 49 70 lub skorzystaj z formularza kontaktowego dostępnego tutaj >>
Szukasz projektu dopasowanego do Twoich potrzeb?
Sprawdź naszą ofertę na projekty domów na indywidualne zamówienie w niezwykle atrakcyjnej cenie zobacz szczegóły >>
Potrzebujesz adaptacji projektu lub pomocy w załatwieniu formalności związanych z budową?
Nasze biuro architektoniczne oferuje pomoc w uzyskaniu pozwolenia na budowę a także wykonuje adaptacje projektów na terenie całej Polski zobacz szczegóły >>
Szukasz sprawdzonego kierownika budowy?
Oferujemy usługi naszych uprawnionych kierowników budowy, którzy przeprowadzą Cię przez cały proces budowlany, od uzyskania pozwolenia na budowę po finalne odbiory zobacz szczegóły >>
Opinie o tym projekcie
Jeśli dodałeś/-aś recenzję, a nie pojawiłą się na liście, być może oczekuje na moderację.


