Budynek produkcyjno-biurowy
Kod: LK-41
| W podanej cenie oferujemy 3 kopie projektu architektoniczno-budowlanego potrzebnego do uzyskania pozwolenia na budowę oraz 3 kopie projektu technicznego niezbędnego do prowadzenia budowy sprawdź >> | |
| Parametry projektu zobacz >> | |
| Projekt wysyłamy w terminie 14 dni roboczych od daty złożenia zamówienia | |
| Istnieje również możliwość zakupu wersji elektronicznej (w formacie dwg) projektu architektoniczno - budowlanego skontaktuj się >> | |
| Odbicie lustrzane projektu zobacz >> | |
| Koszty budowy zobacz >> | |
| Forum dotyczące tego projektu zobacz >> |
| Zmiany istotne i nieistotne, które możesz wprowadzić w tym projekcie sprawdź >> | |
| Adaptacja i pozwolenie na budowę zobacz >> | |
| Jeśli masz pytanie |
Prezentacja projektu
Opis projektu
Powierzchnia użytkowa: 252,00 m2. Projekt budynku biurowo - produkcyjnego, piętrowy, bez podpiwniczenia. Pomieszczenia biurowe przeznaczone dla 10 pracowników.
LK-41 To doskonały projekt dla inwestorów którzy prowadzą mały zakład produkcyjny i pragną wybudować nową siedzibę. LK-41 Oferuje nowoczesną architekturę podkreśloną przez minimalistyczne elewacje z dużą ilością przeszkleń. Projekt na parterze ma zaplanowaną hale produkcyjną, magazyny oraz zaplecze socjalne, podczas gdy na pierwszym piętrze jest przestrzeń biurowa.
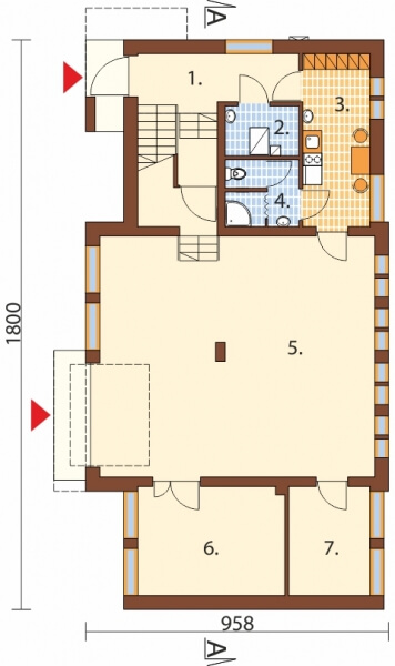
Rzut parteru
Parter: 128,6 m2
1. Hall + komunikacja 17,7 m2
2. Pomieszczenie techniczne 3,4 m2
3. Pokój socjalny 11,7 m2
4. Wc + natrysk 4,8 m2
5. Hala produkcyjna 66,1 m2
6. Magazyn 16,0 m2
7. Magazyn 8,9 m2
Na parterze LK-41 zaprojektowaliśmy hale produkcyjną o powierzchni 66,1m2 z wjazdem od frontu budynku, oraz dwa pomieszczenia magazynowe. Do dyspozycji pracowników jest pomieszczenie socjalne oraz łazienka. Na parterze zlokalizowane jest także pomieszczenie techniczne.
Rzut piętra
Piętro: 124,0 m2
1. Komunikacja 11,2 m2
2. Korytarz 18,7 m2
3. Wc 2,9 m2
4. Archiwum 5,2 m2
5. Pokój śniadań 6,7 m2
6. Biuro 25,0 m2
7. Pokój konferencyjny 25,3 m2
8. Biuro 29,1 m2
Poddasze zaprojektowaliśmy jako strefę biurową z pomieszczeniami dla 10 pracowników. Są tu dwa pokoje, w których można urządzić stanowiska do pracy, pokój konferencyjny oraz pokój śniadań. Osobne pomieszczenie zaprojektowaliśmy dla archiwum, a przy schodach jest WC.
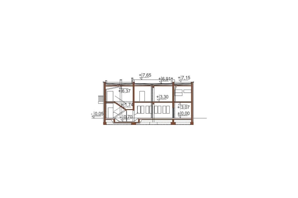
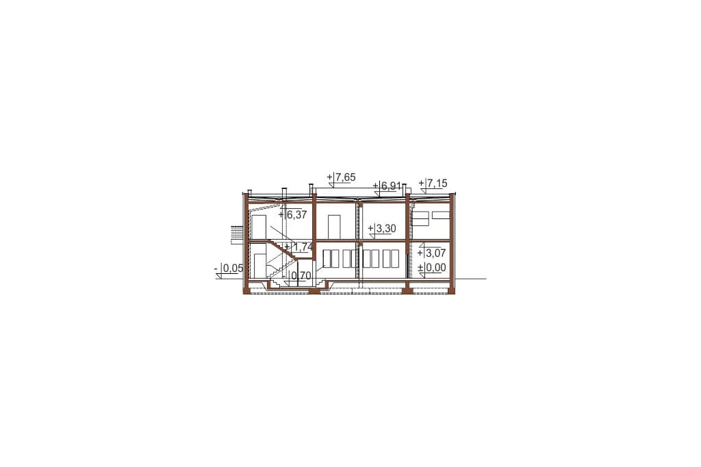
Przekrój

LK-41 to doskonały projekt dla małego biznesu. Na parterze jest strefa produkcyjna a na poddaszu biurowa.
Model

Bryła budynku należy do zwartych i prostych założeń. W elewacji frontowej jest lekkie wysunięcie, w którym zaprojektowaliśmy wjazd do hali produkcyjnej. Główne wejście dla pracowników jest dobrze osłonięte od deszczu dzięki balkonowi na wysokości pierwszego piętra. LK-41 nie zajmie dużo miejsca na działce, wymagana minimalna szerokość parceli to zaledwie 17.00 m. Dzięki atrakcyjnej, nowoczesnej architekturze projekt ten będzie doskonale prezentował się w otoczeniu współczesnej zabudowy komercyjnej.
Elewacje




Informacje podstawowe
Technologia: tradycyjna
Ściany zewnętrzne: pustak Max 29 cm, styropian 15 cm, tynk zewnętrzny.
Stropy: żelbetowe
Kąt nachylenia stropodachu: 3°
Ogrzewanie: piec gazowy dwufunkcyjny zlokalizowany w pomieszczeniu technicznym nr 2.
Program: hala produkcyjna z zapleczem magazynowym, socjalnym i sanitarnym, 2 pomieszczenia biurowe, sala konferencyjna, WC, pokój śniadań.
Posiadamy również wersję tego projektu z dachem kopertowym o nachyleniu 12°, usuniętym balkonem frontowym i bramą wjazdową oraz dodatkowym pomieszczeniem socjalnym dla 10 pracowników na piętrze budynku (symbol LK-41C ).
Koszty budowy sprawdź >>
Architekt: Ewa Ferfecka-Homola, Jaromir Mruk
Projekt ten został opracowany zgodnie z normami budowlanymi, w pełnym zakresie wymaganym dla projektów gotowych.
Zawartość projektu sprawdź szczegóły >>
Łączna zawartość obu projektów architektoniczno - budowlanego oraz projektu technicznego, które można zamówić razem lub osobno:
- projekt architektoniczny budowlany
- projekt konstrukcyjny budowlany
- projekt budowlany wewnętrznych instalacji sanitarnych (c.o, c.w.u, wod-kan, gaz)
- projekt budowlany wewnętrznej instalacji elektrycznej oraz instalacji odgromowej (w tym m.in: p.poż. wyłącznik prądu, oświetlenie)
- zestawienie materiałów budowlanych
- zgoda na zmiany w projekcie
Zdjęcia z realizacji zobacz wszystkie >>
Parametry projektu
Ogólne kategorie, do których należy ten projekt
- Powierzchnia użytkowa (m²) 200 - 300
- Powierzchnia zabudowy (m²) 150 - 200
- Kąt nachylenia dachu (°) 0 - 5
- Szerokość działki/krótszy bok (m) 16 - 18
- Wysokość budynku (m) 7 - 8
Podstawowe parametry projektu
- Powierzchnia użytkowa (m²) 252.00
- Powierzchnia zabudowy (m²) 159.00
- Szerokość budynku/krótszy bok (m) 9.58
- Długość budynku/dłuższy bok (m) 18
- Wysokość budynku (m) 7.7
- Szerokość działki/krótszy bok (m) 17.00
- Kąt nachylenia dachu (°) 3
- Rodzaj dachu płaski
- Piwnica bez podpiwniczenia
- Garaż bez garażu
- Poddasze piętro
Uzupełniające parametry projektu
- Rodzaj technologii* tradycyjna
- Kubatura (m³) 986.00
- Styl modernistyczny
- Liczba kondygnacji 2
- Rodzaj ogrzewania gazowe
- Wentylacja* grawitacyjna
- Liczba pomieszczeń 15
- Liczba łazienek (bez WC) 1
Dodatkowe parametry projektu
- Winda w budynku nie
- Przystosowany dla osób niepełnosprawnych nie
- Garaż podziemny nie
- Pomieszczenie socjalne tak
* gwiazdką są oznaczone w parametrach projektu zmiany nieistotne, które nie wymagają przeprojektowania do pozwolenia zamiennego. Do każdego projektu dołączamy bezpłatną zgodę na wprowadzanie zarówno zmian istotnych jak i nieistotnych.
Darmowe dodatki do projektu
- 10 stylowych projektów ogrodzeń
- 10 projektów śmietników
- 5 projektów grilli z funkcją rusztu, kominka i wędzarni
- 6 projektów oczek wodnych
- 6 projektów altan
- 4 projekty huśtawek ogrodowych
- 4 projekty bud dla psów
- 4 projekty szamb o poj. 21,6 m3 / 14,6 m3 / 10 m3 i 6,4 m3
- 2 projekty przydomowej oczyszczalni ścieków. Jeden dla rodziny do 4 osób, drugi dla rodziny do 6 osób
- projekt przydomowej elektrowni wiatrowej
- schemat instalacji fotowoltaicznej
- projekty budek lęgowych dla kilkudziesięciu gatunków ptaków
- zgoda na wszelkie zmiany i adaptacje
Producentem projektu jest:

ul. Cystersów 7B, 31-553 Kraków
e-mail: kbprojekt@kbprojekt.pl
tel. 12 414 35 06
Pomocne informacje
Chcesz wprowadzić zmiany w tym projekcie?
Możemy dostosować go do Twoich potrzeb, napisz co chciałbyś w nim zmienić, przeprojektujemy go tak, aby w pełni odpowiadał Twoim oczekiwaniom
Chcesz dostosować ten projekt we własnym zakresie?
Sprawdź jakie zmiany są nieistotne czyli takie, ktore możesz wprowadzić na etapie budowy zobacz szczegóły >>
Nie możesz znaleźć odpowiedniego projektu?
Chętnie pomożemy. Zadzwoń do nas 12 410 49 70 lub skorzystaj z formularza kontaktowego dostępnego tutaj >>
Szukasz projektu dopasowanego do Twoich potrzeb?
Sprawdź naszą ofertę na projekty domów na indywidualne zamówienie w niezwykle atrakcyjnej cenie zobacz szczegóły >>
Potrzebujesz adaptacji projektu lub pomocy w załatwieniu formalności związanych z budową?
Nasze biuro architektoniczne oferuje pomoc w uzyskaniu pozwolenia na budowę a także wykonuje adaptacje projektów na terenie całej Polski zobacz szczegóły >>
Szukasz sprawdzonego kierownika budowy?
Oferujemy usługi naszych uprawnionych kierowników budowy, którzy przeprowadzą Cię przez cały proces budowlany, od uzyskania pozwolenia na budowę po finalne odbiory zobacz szczegóły >>
Opinie o tym projekcie
Jeśli dodałeś/-aś recenzję, a nie pojawiłą się na liście, być może oczekuje na moderację.
