Budynek produkcyjno-biurowy
Kod: K-41
| W podanej cenie oferujemy 3 kopie projektu architektoniczno-budowlanego potrzebnego do uzyskania pozwolenia na budowę oraz 3 kopie projektu technicznego niezbędnego do prowadzenia budowy sprawdź >> | |
| Parametry projektu zobacz >> | |
| Projekt wysyłamy w terminie 14 dni roboczych od daty złożenia zamówienia | |
| Istnieje również możliwość zakupu wersji elektronicznej (w formacie dwg) projektu architektoniczno - budowlanego skontaktuj się >> | |
| Odbicie lustrzane projektu zobacz >> | |
| Koszty budowy zobacz >> | |
| Forum dotyczące tego projektu zobacz >> |
| Zmiany istotne i nieistotne, które możesz wprowadzić w tym projekcie sprawdź >> | |
| Adaptacja i pozwolenie na budowę zobacz >> | |
| Jeśli masz pytanie |
Prezentacja projektu
Opis projektu
Powierzchnia użytkowa: 252,00 m2. Projekt budynku biurowo - produkcyjnego, piętrowy, bez podpiwniczenia. Pomieszczenia biurowe przeznaczone dla 10 pracowników.
K-41 to projekt budynku, który łączy w sobie funkcje produkcyjno-biurową. Wyróżnia się on prostą, minimalistyczną architekturą, która podkreślona jest przez zastosowanie nowoczesnych materiałów elewacyjnych. K-41 wyróżnia także duża liczba przeszkleń w elewacjach, które zapewniają odpowiednie naświetlenie pomieszczeń. Dzięki prostej konstrukcji, projekt ten może być niewielkim kosztem zmodyfikowany, tak by pełnić inne funkcje.
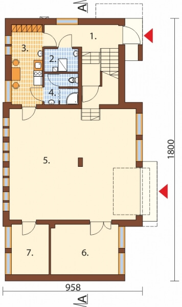
Rzut parteru
Parter: 128,6 m2
1. Hall + komunikacja 17,7 m2
2. Pomieszczenie techniczne 3,4 m2
3. Pokój socjalny 11,7 m2
4. Wc + natrysk 4,8 m2
5. Hala produkcyjna 66,1 m2
6. Magazyn 16,0 m2
7. Magazyn 8,9 m2
Na parterze zaprojektowaliśmy część produkcyjną. Stanowi ją hala produkcyjna o powierzchni 66,1 m2 z dwoma pomieszczeniami magazynowymi. Pracownicy będą mogli skorzystać z zaplecza na które składa się pokój socjalny z łazienką, a między tymi dwoma pomieszczeniami zaprojektowaliśmy pomieszczenie techniczne.
Rzut piętra
Piętro: 124,0 m2
1. Komunikacja 11,2 m2
2. Korytarz 18,7 m2
3. Wc 2,9 m2
4. Archiwum 5,2 m2
5. Pokój śniadań 6,7 m2
6. Biuro 25,0 m2
7. Pokój konferencyjny 25,3 m2
8. Biuro 29,1 m2
Na piętrze zaprojektowaliśmy przestrzeń biurową dla 10 osób. Do dyspozycji inwestora są dwa biura o powierzchni 25,0 m2 i 25,3 m2, pokój konferencyjny oraz archiwum i pokój śniadań. Program uzupełnia WC, które usytuowaliśmy przy schodach na parter.
Przekrój

K-41 to nowoczesny projekt produkcyjno-biurowy, doskonale nadaje się na siedzibę dla małej firmy produkcyjnej
Model

Bryła budynku na planie prostokąta jest bardzo prosta. Posiada ona lekkie wysunięcie w części frontowej, gdzie ulokowaliśmy wjazd na halę produkcyjną. Główne wejście zlokalizowaliśmy po prawej stronie, jest ono zadaszone małym balkonem, który znajduje się bezpośrednio nad nim. W elewacji ogrodowej jest bardzo dużo przeszkleń, które zapewniają odpowiednie naświetlenie hali produkcyjnej i biur na piętrze. Projekt nie wymaga dużej działki do realizacji, powierzchnia zabudowy to 159.00 m².
Elewacje




Informacje podstawowe
Technologia: tradycyjna
Ściany zewnętrzne: pustak Max 29 cm, styropian 15 cm, tynk zewnętrzny.
Stropy: żelbetowe
Kąt nachylenia stropodachu: 3°
Ogrzewanie: piec gazowy dwufunkcyjny zlokalizowany w pomieszczeniu technicznym nr 2.
Program: hala produkcyjna z zapleczem magazynowym, socjalnym i sanitarnym, 2 pomieszczenia biurowe, sala konferencyjna, WC, pokój śniadań.
Posiadamy również wersję tego projektu z dachem kopertowym o nachyleniu 12°, usuniętym balkonem frontowym i bramą wjazdową oraz dodatkowym pomieszczeniem socjalnym dla 10 pracowników na piętrze budynku (symbol K-41C ).
Koszty budowy sprawdź >>
Architekt: Ewa Ferfecka-Homola, Jaromir Mruk
Projekt ten został opracowany zgodnie z normami budowlanymi, w pełnym zakresie wymaganym dla projektów gotowych.
Zawartość projektu sprawdź szczegóły >>
Łączna zawartość obu projektów architektoniczno - budowlanego oraz projektu technicznego, które można zamówić razem lub osobno:
- projekt architektoniczny budowlany
- projekt konstrukcyjny budowlany
- projekt budowlany wewnętrznych instalacji sanitarnych (c.o, c.w.u, wod-kan, gaz)
- projekt budowlany wewnętrznej instalacji elektrycznej oraz instalacji odgromowej (w tym m.in: p.poż. wyłącznik prądu, oświetlenie)
- zestawienie materiałów budowlanych
- zgoda na zmiany w projekcie
Zdjęcia z realizacji zobacz wszystkie >>
Parametry projektu
Ogólne kategorie, do których należy ten projekt
- Powierzchnia użytkowa (m²) 200 - 300
- Powierzchnia zabudowy (m²) 150 - 200
- Kąt nachylenia dachu (°) 0 - 5
- Szerokość działki/krótszy bok (m) 16 - 18
- Wysokość budynku (m) 7 - 8
Podstawowe parametry projektu
- Powierzchnia użytkowa (m²) 252.00
- Powierzchnia zabudowy (m²) 159.00
- Szerokość budynku/krótszy bok (m) 9.58
- Długość budynku/dłuższy bok (m) 18
- Wysokość budynku (m) 7.7
- Szerokość działki/krótszy bok (m) 17.00
- Kąt nachylenia dachu (°) 3
- Rodzaj dachu płaski
- Piwnica bez podpiwniczenia
- Garaż bez garażu
- Poddasze piętro
Uzupełniające parametry projektu
- Rodzaj technologii* tradycyjna
- Kubatura (m³) 986.00
- Styl modernistyczny
- Liczba kondygnacji 2
- Rodzaj ogrzewania gazowe
- Wentylacja* grawitacyjna
- Liczba pomieszczeń 15
- Liczba łazienek (bez WC) 1
Dodatkowe parametry projektu
- Winda w budynku nie
- Przystosowany dla osób niepełnosprawnych nie
- Garaż podziemny nie
- Pomieszczenie socjalne tak
* gwiazdką są oznaczone w parametrach projektu zmiany nieistotne, które nie wymagają przeprojektowania do pozwolenia zamiennego. Do każdego projektu dołączamy bezpłatną zgodę na wprowadzanie zarówno zmian istotnych jak i nieistotnych.
Projekty domów można również przeglądać analizując zestawienia rzutów parterów kliknij tutaj >>
Darmowe dodatki do projektu
- 10 stylowych projektów ogrodzeń
- 10 projektów śmietników
- 5 projektów grilli z funkcją rusztu, kominka i wędzarni
- 6 projektów oczek wodnych
- 6 projektów altan
- 4 projekty huśtawek ogrodowych
- 4 projekty bud dla psów
- 4 projekty szamb o poj. 21,6 m3 / 14,6 m3 / 10 m3 i 6,4 m3
- 2 projekty przydomowej oczyszczalni ścieków. Jeden dla rodziny do 4 osób, drugi dla rodziny do 6 osób
- projekt przydomowej elektrowni wiatrowej
- schemat instalacji fotowoltaicznej
- projekty budek lęgowych dla kilkudziesięciu gatunków ptaków
- zgoda na wszelkie zmiany i adaptacje
Producentem projektu jest:

ul. Cystersów 7B, 31-553 Kraków
e-mail: kbprojekt@kbprojekt.pl
tel. 12 414 35 06
Pomocne informacje
Chcesz wprowadzić zmiany w tym projekcie?
Możemy dostosować go do Twoich potrzeb, napisz co chciałbyś w nim zmienić, przeprojektujemy go tak, aby w pełni odpowiadał Twoim oczekiwaniom
Chcesz dostosować ten projekt we własnym zakresie?
Sprawdź jakie zmiany są nieistotne czyli takie, ktore możesz wprowadzić na etapie budowy zobacz szczegóły >>
Nie możesz znaleźć odpowiedniego projektu?
Chętnie pomożemy. Zadzwoń do nas 12 410 49 70 lub skorzystaj z formularza kontaktowego dostępnego tutaj >>
Szukasz projektu dopasowanego do Twoich potrzeb?
Sprawdź naszą ofertę na projekty domów na indywidualne zamówienie w niezwykle atrakcyjnej cenie zobacz szczegóły >>
Potrzebujesz adaptacji projektu lub pomocy w załatwieniu formalności związanych z budową?
Nasze biuro architektoniczne oferuje pomoc w uzyskaniu pozwolenia na budowę a także wykonuje adaptacje projektów na terenie całej Polski zobacz szczegóły >>
Szukasz sprawdzonego kierownika budowy?
Oferujemy usługi naszych uprawnionych kierowników budowy, którzy przeprowadzą Cię przez cały proces budowlany, od uzyskania pozwolenia na budowę po finalne odbiory zobacz szczegóły >>
Opinie o tym projekcie
Jeśli dodałeś/-aś recenzję, a nie pojawiłą się na liście, być może oczekuje na moderację.
