Budynek biurowy
Kod: LK-30
| W podanej cenie oferujemy 3 kopie projektu architektoniczno-budowlanego potrzebnego do uzyskania pozwolenia na budowę oraz 3 kopie projektu technicznego niezbędnego do prowadzenia budowy sprawdź >> | |
| Projekt wysyłamy w terminie 14 dni roboczych od daty złożenia zamówienia | |
| Parametry projektu zobacz >> | |
| Istnieje również możliwość zakupu wersji elektronicznej (w formacie dwg) projektu architektoniczno - budowlanego skontaktuj się >> | |
| Koszty budowy zobacz >> | |
| Forum dotyczące tego projektu zobacz >> |
| Zmiany istotne i nieistotne, które możesz wprowadzić w tym projekcie sprawdź >> | |
| Adaptacja i pozwolenie na budowę zobacz >> | |
| Jeśli masz pytanie |
Prezentacja projektu
Opis projektu
LK-30. Projekt budynku biurowego, projekt budynku administracyjno ? biurowego, projekt sklepu, projekt pawilonu handlowego, projekt budynku apartamentowego,
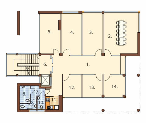
Rzut parteru
Parter:
1. Hall 66,3 m2
2. Pomieszczenie usługowe 51,8 m2
3. Magazyn 7,3 m2
4. Serwerownia 9,1 m2
5. Kotłownia 6,6 m2
6. Pomieszczenie gospodarcze 3,5 m2
7. Korytarz 5,9 m2
8. Klatka schodowa 19,6 m2
9. Przedsionek WC 3,9 m2
10. WC dla osób niepełnosprawnych 3,8 m2
11. WC damski 2,4 m2
12. WC męski 2,3 m2
13. Szatnia 4,5 m2
Do budynku prowadzi efektowny przeszklony hol. Na parterze zaprojektowaliśmy duże pomieszczenie pod usługi, oraz pomieszczenia gospodarczo-techniczne (magazyn, serwerownia kotłownia). Obok schodów na pierwsze piętro jest szatnia i węzeł sanitarny.
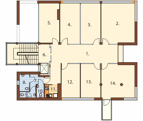
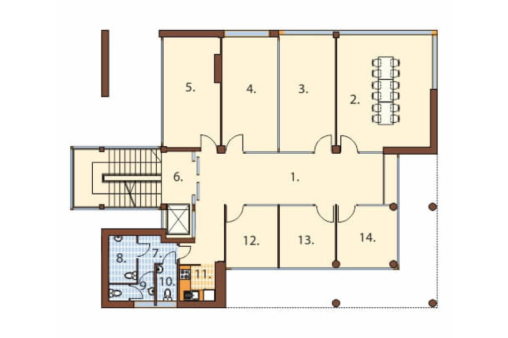
Rzut pierwszego piętra
I piętro:
1. Hall 32,7 m2
2. Sala konferencyjna 30,4 m2
3. Pokój biurowy 18,6 m2
4. Pokój biurowy 18,6 m2
5. Pokój biurowy 17,1 m2
6. Komunikacja 5,2 m2
7. Przedsionek WC 3,9 m2
8. WC dla osób niepełnosprawnych 3,8 m2
9. WC damski 2,4 m2
10. WC męski 2,3 m2
11. Kuchnia 3,9 m2
12. Pokój biurowy 9,4 m2
13. Pokój biurowy 10,1 m2
14. Pokój biurowy 10,7 m2
Na pierwszym piętrze zaprojektowaliśmy sześć pomieszczeń biurowych oraz pokój konferencyjny. Do dyspozycji pracowników jest mała kuchnia i węzeł sanitarny dostosowany do potrzeb osób niepełnosprawnych.
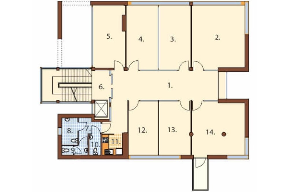
Rzut drugiego piętra
II piętro:
1. Hall 34,3 m2
2. Sala konferencyjna 30,3 m2
3. Pokój biurowy 18,5 m2
4. Pokój biurowy 18,5 m2
5. Pokój biurowy 17,9 m2
6. Komunikacja 5,2 m2
7. Przedsionek WC 3,9 m2
8. WC dla osób niepełnosprawnych 3,8 m2
9. WC damski 2,4 m2
10. WC męski 2,3 m2
11. Kuchnia 3,9 m2
12. Pokój biurowy 14,4 m2
13. Pokój biurowy 15,5 m2
14. Pokój biurowy 25,3 m2
Na drugim piętrze układ pomieszczeń jest identyczny do tego na pierwszym z tą różnicą, że pokoje nr. 12, 13 i 14 mają większą powierzchnię użytkową. Ponadto z pokoju numer 14 można wyjść na podwieszony balkon.
Rzut trzeciego piętra
III piętro:
1. Hall 13,3 m2
2. Pokój 29,6 m2
3. Łazienka z WC 12,1 m2
4. Pokój 12,7 m2
5. Pokój 11,4 m2
6. Łazienka z WC 2,8 m2
7. Komunikacja 10,5 m2
8. Pomieszczenie gospodarcze, maszynownia 20,4 m2
9. Kuchnia 8,1 m2
10. WC 1,4 m2
11. Hall 9,3 m2
12. Pokój dzienny z jadalnią i hallem 64,0 m2
Na trzecim piętrze zaprojektowaliśmy luksusowy apartament. W jego skład wchodzi bardzo przestronny pokój dzienny z jadalnią i WC, duża sypialnia o powierzchni prawie 30 m2 do której przylega główna łazienka. Do wykorzystania są także dwa mniejsze pokoje sypialne oraz znajdująca się na końcu korytarza łazienka. Przed apartamentem jest pomieszczenie techniczne, w którym jest maszynownia.
Rzut piętra / antresoli
IV piętro:
1. Gabinet/pracownia 46,7 m2
2. Taras 155,9 m2
3. Klatka schodowa 15,0 m2
Na poddaszu zaprojektowaliśmy pomieszczenie, które doskonale nadaje się na biuro. Jest tu także piękny taras, który będzie doskonałym miejscem do wypoczynku.
Przekrój

Model 3D

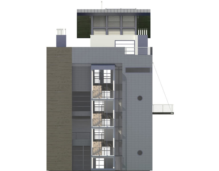
Projekt ma intrygującą bryłę, której dynamiki dodaje dość nietypowe zadaszenie apartamentu na najwyższej kondygnacji mające lekko owalny kształt. LK 30 wyróżnia się także dużą ilością przeszkleń, zwłaszcza na parterze, gdzie zaprojektowaliśmy część usługową oraz reprezentacyjny hol. Projekt potrzebuje do realizacji działki o szerokości 26m.
Elewacje




Informacje podstawowe
Projekt budynku biurowo-usługowo-apartamentowego LK-30, 5 pietrowy, bez podpiwniczenia, bez garażu. Technologia tradycyjna: ściany zewnętrzne - pustak ceramiczny POROTHERM 25 cm, styropian 15 cm. Stropy: żelbetowe. Kąt nachylenia stropodachu: 2-5%.
W całym budynku zaprojektowano wentylację mechaniczną nawiewno - wywiewną.
Program:
część biurowo-usługowa: 2 sale konferencyjne, 12 pokoi biurowych, zaplecze sanitarne, zaplecze socjalne, zaplecze magazynowe, kotłownia.
część apartamentowa: mieszkanie z salonem, aneksem kuchennym, 3 pokojami, 2 łazienkami, gabinetem..
Koszty budowy sprawdź >>
Architekt: Ewa Ferfecka-Homola, Anna Tenerowicz,
Projekt ten został opracowany zgodnie z normami budowlanymi, w pełnym zakresie wymaganym dla projektów gotowych.
Zawartość projektu sprawdź szczegóły >>
Łączna zawartość obu projektów architektoniczno - budowlanego oraz projektu technicznego, które można zamówić razem lub osobno:
Parametry projektu
Ogólne kategorie, do których należy ten projekt
- Powierzchnia mieszkalna (m²) 500 - 1000
- Powierzchnia użytkowa (m²) 500 - 1000
- Powierzchnia zabudowy (m²) 200 - 300
- Kąt nachylenia dachu (°) 0 - 5
- Szerokość działki/krótszy bok (m) 20 - 25
- Wysokość budynku (m) pow. 20
Podstawowe parametry projektu
- Powierzchnia mieszkalna (m²) 552.40
- Powierzchnia użytkowa (m²) 794.60
- Powierzchnia zabudowy (m²) 273.60
- Szerokość budynku/krótszy bok (m) 14.9
- Długość budynku/dłuższy bok (m) 17.98
- Wysokość budynku (m) 23.75
- Szerokość działki/krótszy bok (m) 23.40
- Kąt nachylenia dachu (°) 2-5%
- Rodzaj dachu dwuspadowy
- Piwnica bez podpiwniczenia
- Garaż bez garażu
- Poddasze brak poddasza
Uzupełniające parametry projektu
- Rodzaj technologii* tradycyjna
- Układ dachu kalenicowy
- Kubatura (m³) 4112.00
- Styl modernistyczny
- Liczba kondygnacji pow. 4
- Rodzaj ogrzewania gazowe
- Liczba pomieszczeń 56
- Liczba łazienek (bez WC) 1
* gwiazdką są oznaczone w parametrach projektu zmiany nieistotne, które nie wymagają przeprojektowania do pozwolenia zamiennego. Do każdego projektu dołączamy bezpłatną zgodę na wprowadzanie zarówno zmian istotnych jak i nieistotnych.
Projekty domów można również przeglądać analizując zestawienia rzutów parterów kliknij tutaj >>
Darmowe dodatki do projektu
- 10 stylowych projektów ogrodzeń
- 10 projektów śmietników
- 5 projektów grilli z funkcją rusztu, kominka i wędzarni
- 6 projektów oczek wodnych
- 6 projektów altan
- 4 projekty huśtawek ogrodowych
- 4 projekty bud dla psów
- 4 projekty szamb o poj. 21,6 m3 / 14,6 m3 / 10 m3 i 6,4 m3
- 2 projekty przydomowej oczyszczalni ścieków. Jeden dla rodziny do 4 osób, drugi dla rodziny do 6 osób
- projekt przydomowej elektrowni wiatrowej
- schemat instalacji fotowoltaicznej
- projekty budek lęgowych dla kilkudziesięciu gatunków ptaków
- zgoda na wszelkie zmiany i adaptacje
Producentem projektu jest:

ul. Cystersów 7B, 31-553 Kraków
e-mail: kbprojekt@kbprojekt.pl
tel. 12 414 35 06
Pomocne informacje
Chcesz wprowadzić zmiany w tym projekcie?
Możemy dostosować go do Twoich potrzeb, napisz co chciałbyś w nim zmienić, przeprojektujemy go tak, aby w pełni odpowiadał Twoim oczekiwaniom
Chcesz dostosować ten projekt we własnym zakresie?
Sprawdź jakie zmiany są nieistotne czyli takie, ktore możesz wprowadzić na etapie budowy zobacz szczegóły >>
Nie możesz znaleźć odpowiedniego projektu?
Chętnie pomożemy. Zadzwoń do nas 12 410 49 70 lub skorzystaj z formularza kontaktowego dostępnego tutaj >>
Szukasz projektu dopasowanego do Twoich potrzeb?
Sprawdź naszą ofertę na projekty domów na indywidualne zamówienie w niezwykle atrakcyjnej cenie zobacz szczegóły >>
Potrzebujesz adaptacji projektu lub pomocy w załatwieniu formalności związanych z budową?
Nasze biuro architektoniczne oferuje pomoc w uzyskaniu pozwolenia na budowę a także wykonuje adaptacje projektów na terenie całej Polski zobacz szczegóły >>
Szukasz sprawdzonego kierownika budowy?
Oferujemy usługi naszych uprawnionych kierowników budowy, którzy przeprowadzą Cię przez cały proces budowlany, od uzyskania pozwolenia na budowę po finalne odbiory zobacz szczegóły >>
Opinie o tym projekcie
Jeśli dodałeś/-aś recenzję, a nie pojawiłą się na liście, być może oczekuje na moderację.




