Budynek produkcyjno - usługowy
Kod: LK-39
| W podanej cenie oferujemy 3 kopie projektu architektoniczno-budowlanego potrzebnego do uzyskania pozwolenia na budowę oraz 3 kopie projektu technicznego niezbędnego do prowadzenia budowy sprawdź >> | |
| Projekt wysyłamy w terminie 14 dni roboczych od daty złożenia zamówienia | |
| Parametry projektu zobacz >> | |
| Istnieje również możliwość zakupu wersji elektronicznej (w formacie dwg) projektu architektoniczno - budowlanego skontaktuj się >> | |
| Koszty budowy zobacz >> | |
| Forum dotyczące tego projektu zobacz >> |
| Zmiany istotne i nieistotne, które możesz wprowadzić w tym projekcie sprawdź >> | |
| Adaptacja i pozwolenie na budowę zobacz >> | |
| Jeśli masz pytanie |
Prezentacja projektu
Opis projektu
LK-39. Projekt hali produkcyjnej, projekt hali magazynowej, projekt magazynu, projekt hali, projekt drukarni, projekt stolarni, projekt hali warsztatowej, projekt sortowni, projekt przetwórni, projekt hali wystawienniczej, projekt hali handlowej,
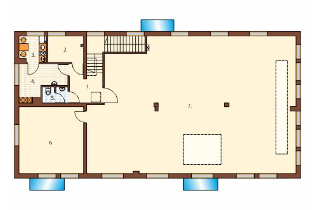
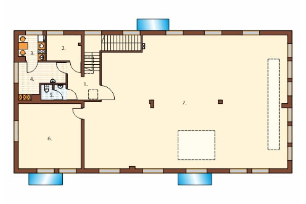
Rzut parteru
Parter: 257,5 m2
1. Hala produkcyjna 159,7 m2
2. Klatka schodowa 6,9 m2
3. Korytarz 6,7 m2
4. Kotłownia 8,9 m2
5. Pomieszczenie socjalne 10,1 m2
6. WC 2,7 m2
7. Ekspozycja 30,4 m2
8. Biuro 16,1 m2
9. Biuro 16,1 m2
Hala produkcyjna ma powierzchnię 159,7 m2 z wjazdem dla transportu od strony elewacji ogrodowej. Zaplecze socjalne składa się z jednego pokoju oraz węzła sanitarnego. Na działalność biurową przeznaczyliśmy dwa pomieszczenia biurowe i jedno duże pomieszczenie, w którym można prowadzić ekspozycję produktów.
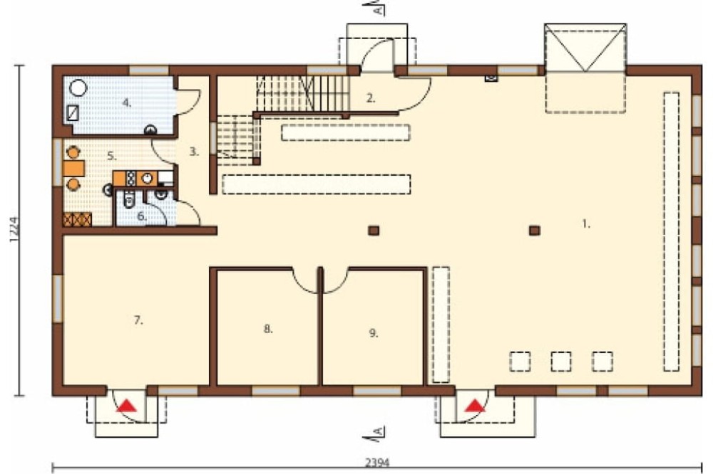
Rzut pierwszego piętra
Piętro: 253,8 m2
1. Komunikacja 12,0 m2
2. Magazyn 6,6 m2
3. Pokój śniadań 4,9 m2
4. Pomieszczenie socjalne 9,7 m2
5. WC 2,7 m2
6. Magazyn 30,4 m2
7. Hala produkcyjna 187,5 m2
W programie pierwszego piętra zaprojektowaliśmy halę produkcyjną (większą od tej na parterze o 22,3m2), duży i mały magazyn oraz zaplecze dla pracowników, na które składa się pokój śniadań oraz pomieszczenie socjalne.
Przekrój

Model 3D

Bryła LK-39 powstała na planie prostokąta. Projektując ją przyświecał nam cel stworzenia możliwie prostego budynku, o tradycyjnej architekturze, który może zostać zrealizowany przy niewysokich nakładach finansowych. Poszczególne elewacje są minimalistyczne z dużą ilością okien co zapewnia odpowiednie doświetlenie miejsc pracy. W elewacji ogrodowej zaprojektowaliśmy wjazd na halę produkcyjną. Do realizacji projektu będzie potrzebna działka o szerokości minimum 20.30 m.
Elewacje




Informacje podstawowe
Projekt budynku produkcyjno - magazynowego (cięcie elementów aluminiowych) LK-39, piętrowy bez podpiwniczenia. Technologia tradycyjna: ściany zewnętrzne - pustak ceramiczny 25 cm, styropian 12 cm, tynk zewnętrzny. Stropy: żelbetowe. Kąt nachylenia dachu: 19°. Pokrycie dachu: blacha dachówkowa.
Ogrzewanie: budynek ogrzewany z własnego źródła ciepła - kotłownia gazowa do c.o i c.w.u.
Program: 2 hale produkcyjne, 2 magazyny, 2 biura dla pracowników, zaplecze socjalne, zaplecze sanitarne, ekspozycja, kotłownia gazowa.
ZAWARTOŚĆ PROJEKTU:
- projekt architektoniczny budowlany
- projekt konstrukcyjny budowlany
- projekt budowlany wewnętrznych instalacji sanitarnych (c.o, wod-kan, gaz, hydranty p.poż,)
- projekt budowlany wewnętrznej instalacji elektrycznej oraz instalacji odgromowej (w tym m.in: p.poż. wyłącznik prądu, awaryjne oświetlenie ewakuacyjne)
- opinie rzeczoznawców: BHP, Sanitarna, P.poż. dotyczące rozwiązań zastosowanych wewnątrz budynku
- przedmiar robót budowlanych (pełne zestawienie materiałów)
- zgoda na zmiany w projekcie
Koszty budowy sprawdź >>
Architekt: Ewa Ferfecka-Homola, Jaromir Mruk,
Projekt ten został opracowany zgodnie z normami budowlanymi, w pełnym zakresie wymaganym dla projektów gotowych.
Zawartość projektu sprawdź szczegóły >>
Łączna zawartość obu projektów architektoniczno - budowlanego oraz projektu technicznego, które można zamówić razem lub osobno:
Parametry projektu
Ogólne kategorie, do których należy ten projekt
- Powierzchnia mieszkalna (m²) 500 - 1000
- Powierzchnia użytkowa (m²) 500 - 1000
- Powierzchnia zabudowy (m²) 200 - 300
- Kąt nachylenia dachu (°) 15 - 20
- Szerokość działki/krótszy bok (m) 20 - 25
- Wysokość budynku (m) 9 - 10
Podstawowe parametry projektu
- Powierzchnia mieszkalna (m²) 502.30
- Powierzchnia użytkowa (m²) 511.20
- Powierzchnia zabudowy (m²) 293.30
- Szerokość budynku/krótszy bok (m) 12.24
- Długość budynku/dłuższy bok (m) 23.94
- Wysokość budynku (m) 9.52
- Szerokość działki/krótszy bok (m) 20.20
- Kąt nachylenia dachu (°) 19°
- Rodzaj dachu dwuspadowy
- Piwnica bez podpiwniczenia
- Garaż bez garażu
- Poddasze piętro
Uzupełniające parametry projektu
- Rodzaj technologii* tradycyjna
- Układ dachu kalenicowy
- Kubatura (m³) 2404.60
- Liczba kondygnacji 2
- Rodzaj ogrzewania gazowe
- Wskaźnik energii pierwotnej (kWh/(m²·rok)) 187.25
- Liczba pomieszczeń 16
* gwiazdką są oznaczone w parametrach projektu zmiany nieistotne, które nie wymagają przeprojektowania do pozwolenia zamiennego. Do każdego projektu dołączamy bezpłatną zgodę na wprowadzanie zarówno zmian istotnych jak i nieistotnych.
Darmowe dodatki do projektu
- 10 stylowych projektów ogrodzeń
- 10 projektów śmietników
- 5 projektów grilli z funkcją rusztu, kominka i wędzarni
- 6 projektów oczek wodnych
- 6 projektów altan
- 4 projekty huśtawek ogrodowych
- 4 projekty bud dla psów
- 4 projekty szamb o poj. 21,6 m3 / 14,6 m3 / 10 m3 i 6,4 m3
- 2 projekty przydomowej oczyszczalni ścieków. Jeden dla rodziny do 4 osób, drugi dla rodziny do 6 osób
- projekt przydomowej elektrowni wiatrowej
- schemat instalacji fotowoltaicznej
- projekty budek lęgowych dla kilkudziesięciu gatunków ptaków
- zgoda na wszelkie zmiany i adaptacje
Producentem projektu jest:

ul. Cystersów 7B, 31-553 Kraków
e-mail: kbprojekt@kbprojekt.pl
tel. 12 414 35 06
Pomocne informacje
Chcesz wprowadzić zmiany w tym projekcie?
Możemy dostosować go do Twoich potrzeb, napisz co chciałbyś w nim zmienić, przeprojektujemy go tak, aby w pełni odpowiadał Twoim oczekiwaniom
Chcesz dostosować ten projekt we własnym zakresie?
Sprawdź jakie zmiany są nieistotne czyli takie, ktore możesz wprowadzić na etapie budowy zobacz szczegóły >>
Nie możesz znaleźć odpowiedniego projektu?
Chętnie pomożemy. Zadzwoń do nas 12 410 49 70 lub skorzystaj z formularza kontaktowego dostępnego tutaj >>
Szukasz projektu dopasowanego do Twoich potrzeb?
Sprawdź naszą ofertę na projekty domów na indywidualne zamówienie w niezwykle atrakcyjnej cenie zobacz szczegóły >>
Potrzebujesz adaptacji projektu lub pomocy w załatwieniu formalności związanych z budową?
Nasze biuro architektoniczne oferuje pomoc w uzyskaniu pozwolenia na budowę a także wykonuje adaptacje projektów na terenie całej Polski zobacz szczegóły >>
Szukasz sprawdzonego kierownika budowy?
Oferujemy usługi naszych uprawnionych kierowników budowy, którzy przeprowadzą Cię przez cały proces budowlany, od uzyskania pozwolenia na budowę po finalne odbiory zobacz szczegóły >>
Opinie o tym projekcie
Jeśli dodałeś/-aś recenzję, a nie pojawiłą się na liście, być może oczekuje na moderację.

