Exter 2
Kod: L-6917
| W podanej cenie oferujemy 3 kopie projektu architektoniczno-budowlanego potrzebnego do uzyskania pozwolenia na budowę sprawdź >> | |
| Projekt techniczny zamów >> | |
| Parametry projektu zobacz >> | |
| Odbicie lustrzane projektu zobacz >> | |
| Koszty budowy zobacz >> | |
| Forum dotyczące tego projektu zobacz >> |
| Zmiany istotne i nieistotne, które możesz wprowadzić w tym projekcie sprawdź >> | |
| Adaptacja i pozwolenie na budowę zobacz >> | |
| Jeśli masz pytanie |
Prezentacja projektu
Opis projektu
Powierzchnia użytkowa: 110,95 m2. Budynek parterowy bez podpiwniczenia, z częściowo (lokal mieszkalny nr 1) użytkowym poddaszem. Dom przeznaczony dla 4 - 6 osób.
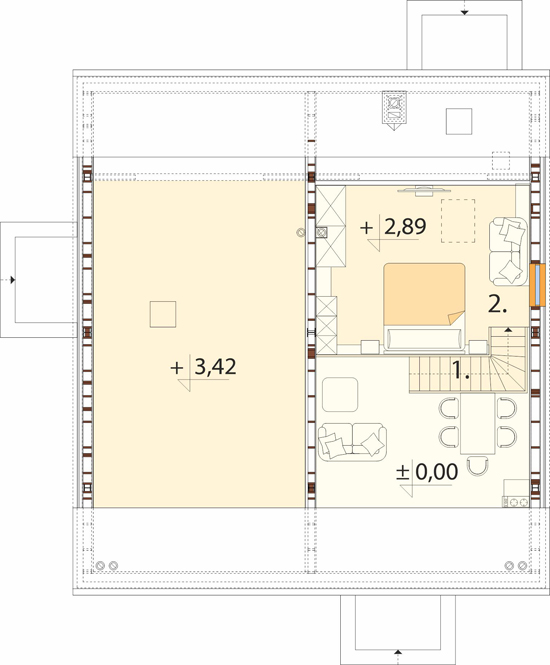
Rzut parteru

Parter: 106,73 m2
Lokal mieszkalny nr 1: 44,31 m2
1. Wiatrołap 1,64 m2
2. Pokój dzienny + aneks kuchenny 22,22 m2
3. Korytarz 2,95 m2
4. Pomieszczenie gospodarcze 2,20 m2
5. Łazienka 5,90 m2
6. Pokój 7,98 m2
7. Schody 1,42 m2
Lokal mieszkalny nr 2: 53,81 m2
8. Wiatrołap 1,62 m2
9. Pokój dzienny + aneks kuchenny 26,40 m2
10. Pokój 8,00 m2
11. Korytarz 1,32 m2
12. Łazienka 5,60 m2
13. Pokój 8,75 m2
14. Pomieszczenie gospodarcze 2,12 m2
15. Kotłownia 8,61 m2
Rzut poddasza

Poddasze: 15,89 / 20,94 m2
Lokal mieszkalny nr 1: 44,31 m2
1. Schody 1,64 m2
2. Antersola 14,25 / 19,30 m2
Przekrój


Informacje podstawowe
Technologia: szkieletowa / drewniana
Ściany zewnętrzne: płyty GKF / deski drewniane, stelaż drewniany poziomy 4 x 4 cm, folia paroizolacyjna PCV, konstrukcja drewniana - słupki 4 x 20 cm, wełna mineralna 20 cm, płyty OSB 2.2 cm, stelaż drewniany pionowy 5 x 6 cm, wełna mineralna 6 cm, folia wiatroizolacyjna - paroprzepuszczalna, stelaż drewniany pionowy 3 x 5 cm, pustka powietrzna 3 cm, deski drewniane elewacyjne 2 cm
Strop: drewniany
Kąt nachylenia dachu: 30°
Ogrzewanie: paliwo stałe (biomasa)
Wentylacja: grawitacyjne
Pokrycie dachu: blacha trapezowa
Program:
Parter:
lokal mieszkalny nr 1 - wiatrołap, pokój dzienny + aneks kuchenny, korytarz, pomieszczenie gospodarcze, łazienka, pokój oraz schody
lokal mieszkalny nr 2 - wiatrołap, pokój dzienny + aneks kuchenny, korytarz, pomieszczenie gospodarcze oraz dwa pokoje.
Poddasze:
lokal mieszkalny nr 1 - antresola
lokal mieszkalny nr 2 - strych nieużytkowy.
Koszty budowy sprawdź >>
Architekt: Teresa Stoch, Jaromir Mruk
Projekt ten został opracowany zgodnie z normami budowlanymi, w pełnym zakresie wymaganym dla projektów gotowych.
Projekt ten nie wymaga pozwolenia na budowę i może być budowany na zgłoszenie zgodnie ze znowelizowanym Prawem Budowlanym obowiązującym od 3.01.2022 roku czytaj więcej >>
Zawartość projektu sprawdź szczegóły >>
Łączna zawartość obu projektów architektoniczno - budowlanego oraz projektu technicznego, które można zamówić razem lub osobno:
- projekt architektoniczny
- projekt konstrukcyjny
- projekt wewnętrznych instalacji sanitarnych
- projekt wewnętrznych instalacji ogrzewania (kotły na biomasę)
- projekt wewnętrznej instalacji elektrycznej, instalacji odgromowej
- przedmiar + zestawienie materiałów budowlanych
- projektowana charakterystyka energetyczna budynku
- zgoda na zmiany w projekcie
Parametry projektu
Ogólne kategorie, do których należy ten projekt
- Powierzchnia mieszkalna (m²) 70 - 100
- Powierzchnia użytkowa (m²) 100 - 150
- Powierzchnia zabudowy (m²) 120 - 150
- Kąt nachylenia dachu (°) 25 - 30
- Szerokość działki/krótszy bok (m) 18 - 20
- Wysokość budynku (m) 7 - 8
Podstawowe parametry projektu
- Powierzchnia mieszkalna (m²) 98.02
- Powierzchnia użytkowa (m²) 110.95
- Powierzchnia zabudowy (m²) 132.00
- Szerokość budynku/krótszy bok (m) 11.00
- Długość budynku/dłuższy bok (m) 12.00
- Wysokość budynku (m) 7.30
- Szerokość działki/krótszy bok (m) 19.00
- Kąt nachylenia dachu (°) 30
- Rodzaj dachu dwuspadowy
- Piwnica bez podpiwniczenia
- Garaż bez garażu
- Poddasze antresola
- Liczba sypialni na parterze 3
Uzupełniające parametry projektu
- Rodzaj technologii* szkieletowa / drewniana
- Fundamenty płyta fundamentowa
- Strop w budynku* drewniany
- Układ dachu kalenicowy
- Pokrycie dachu* blacha trapezowa
- Kubatura (m³) 768.90
- Styl modernistyczny
- Liczba kondygnacji 2
- Rodzaj ogrzewania paliwo stałe
- Wskaźnik energii pierwotnej (kWh/(m²·rok)) 34.74
- Instalacja fotowoltaiczna* nie
- Wentylacja* grawitacyjna
- Liczba pomieszczeń 17
- Liczba wszystkich pokoi 4
- Liczba łazienek (bez WC) 2
Dodatkowe parametry projektu
- Kominek* nie
- Garderoba* nie
- Spiżarnia* nie
- Pokój z łazienką i garderobą* nie
- Pralnia / pom. gospodarcze* tak
- Kotłownia* tak
- Taras nie
- Weranda nie
- Wirtualny spacer nie
* gwiazdką są oznaczone w parametrach projektu zmiany nieistotne, które nie wymagają przeprojektowania do pozwolenia zamiennego. Do każdego projektu dołączamy bezpłatną zgodę na wprowadzanie zarówno zmian istotnych jak i nieistotnych.
Darmowe dodatki do projektu
- 10 stylowych projektów ogrodzeń
- 10 projektów śmietników
- 5 projektów grilli z funkcją rusztu, kominka i wędzarni
- 6 projektów oczek wodnych
- 6 projektów altan
- 4 projekty huśtawek ogrodowych
- 4 projekty bud dla psów
- 4 projekty szamb o poj. 21,6 m3 / 14,6 m3 / 10 m3 i 6,4 m3
- 2 projekty przydomowej oczyszczalni ścieków. Jeden dla rodziny do 4 osób, drugi dla rodziny do 6 osób
- projekt przydomowej elektrowni wiatrowej
- schemat instalacji fotowoltaicznej
- projekty budek lęgowych dla kilkudziesięciu gatunków ptaków
- zgoda na wszelkie zmiany i adaptacje
Producentem projektu jest:

ul. Cystersów 7B, 31-553 Kraków
e-mail: kbprojekt@kbprojekt.pl
tel. 12 414 35 06
Pomocne informacje
Chcesz wprowadzić zmiany w tym projekcie?
Możemy dostosować go do Twoich potrzeb, napisz co chciałbyś w nim zmienić, przeprojektujemy go tak, aby w pełni odpowiadał Twoim oczekiwaniom
Chcesz dostosować ten projekt we własnym zakresie?
Sprawdź jakie zmiany są nieistotne czyli takie, ktore możesz wprowadzić na etapie budowy zobacz szczegóły >>
Nie możesz znaleźć odpowiedniego projektu?
Chętnie pomożemy. Zadzwoń do nas 12 410 49 70 lub skorzystaj z formularza kontaktowego dostępnego tutaj >>
Szukasz projektu dopasowanego do Twoich potrzeb?
Sprawdź naszą ofertę na projekty domów na indywidualne zamówienie w niezwykle atrakcyjnej cenie zobacz szczegóły >>
Potrzebujesz adaptacji projektu lub pomocy w załatwieniu formalności związanych z budową?
Nasze biuro architektoniczne oferuje pomoc w uzyskaniu pozwolenia na budowę a także wykonuje adaptacje projektów na terenie całej Polski zobacz szczegóły >>
Szukasz sprawdzonego kierownika budowy?
Oferujemy usługi naszych uprawnionych kierowników budowy, którzy przeprowadzą Cię przez cały proces budowlany, od uzyskania pozwolenia na budowę po finalne odbiory zobacz szczegóły >>
Opinie o tym projekcie
Jeśli dodałeś/-aś recenzję, a nie pojawiłą się na liście, być może oczekuje na moderację.