Budynek usługowy z częścią magazynową
Kod: K-153 u
| W podanej cenie oferujemy 3 kopie projektu architektoniczno-budowlanego potrzebnego do uzyskania pozwolenia na budowę oraz 3 kopie projektu technicznego niezbędnego do prowadzenia budowy sprawdź >> | |
| Projekt wysyłamy w terminie 14 dni roboczych od daty złożenia zamówienia | |
| Parametry projektu zobacz >> | |
| Istnieje również możliwość zakupu wersji elektronicznej (w formacie dwg) projektu architektoniczno - budowlanego skontaktuj się >> | |
| Koszty budowy zobacz >> | |
| Forum dotyczące tego projektu zobacz >> |
| Zmiany istotne i nieistotne, które możesz wprowadzić w tym projekcie sprawdź >> | |
| Adaptacja i pozwolenie na budowę zobacz >> | |
| Jeśli masz pytanie |
Prezentacja projektu
Opis projektu
Część biurowa / usługowa - podpiwniczona, posiada 2 kondygnacje nadziemne: parter oraz poddasze użytkowe, przekryta dachem skośnym o symetrycznym nachyleniu połaci wynoszącym 30°. Część magazynowa - niepodpiwniczona, posiada 1 kondygnacje nadziemną, przekryta dachem jednospadowym nachyleniu połaci dachowej 5°
Rzut piwnicy
Piwnica: 194,88 m2
1. Klatka schodowa 13,90 m2
2. Korytarz 10,87 m2
3. Pomieszczenie detailingu 73,04 m2
4. Pomieszczenie magazynowe 15,43 m2
5. Korytarz 6,55 m2
6. Kotłownia gazowa 11,39 m2
7. Pom. techn. elektryczne 2,70 m2
8. Archiwum 21,04 m2
9. Szatnia personelu magazynów 13,88 m2
10. Łazienka ( WC + natrysk ) 13,79 m2
11. Pokój śniadań 12,29 m2
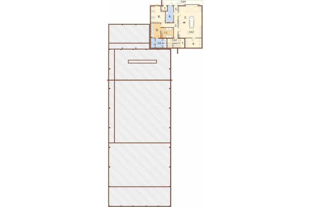
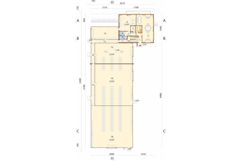
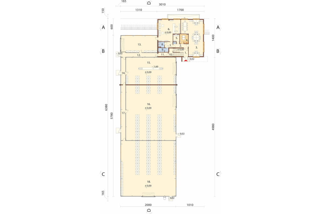
Rzut parteru
Parter: 1264,35 m2
1. Klatka schodowa 11,83 m2
2. Korytarz 7,65 m2
3. Biuro 81,54 m2
4. Pokój śniadań 10,05 m2
5. Szatnia personelu 6,23 m2
6. Biuro Obsługi Klienta 53,98 m2
7. Przedsionek 5,77 m2
8. WC damskie / dla niepełnospr. 4,00 m2
9. WC męskie 5,18 m2
10. Klatka schodowa 7,49 m2
11. Korytarz 4,76 m2
12. Korytarz 19,53 m2
13. Pom. magazynowe nr 1 78,38 m2
14. Korytarz 16,00 m2
15. Pom. magazynowe nr 2 173,92 m2
16. Pom. magazynowe nr 3 353,93 m2
17. Korytarz 32,57 m2
18. Pom. magazynowe nr 4 391,54 m2
Rzut piętra / antresoli
Poddasze: 193,46 m2
1. Klatka schodowa 12,60 m2
2. Korytarz 23,09 m2
3. WC męskie 5,11 m2
4. WC damskie 2,99 m2
5. Pokój śniadań 10,77 m2
6. Biuro nr 1 24,45 m2
7. Biuro nr 2 39,67 m2
8. Biuro nr 3 20,63 m2
9. Biuro nr 4 17,30 m2
10. Biuro nr 5 21,03 m2
11. Archiwum 8,38 m2
12. Szatnia personelu 4,56 m2
13. Pom. porządkowe 2,88 m2
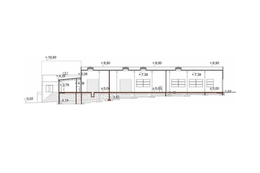
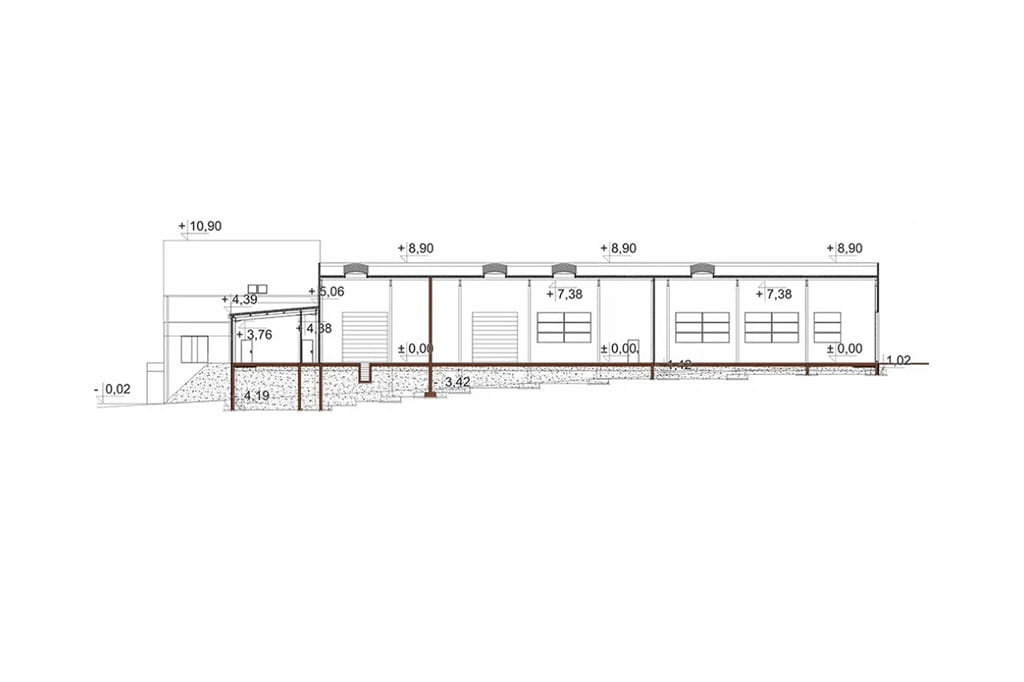
Przekrój


Informacje podstawowe
Projekt budynku usługowego z częścią magazynową K-153
Część biurowa / usługowa - podpiwniczona, posiada 2 kondygnacje nadziemne: parter oraz poddasze użytkowe, przekryta dachem skośnym o symetrycznym nachyleniu połaci wynoszącym 30°.
Część magazynowa - niepodpiwniczona, posiada 1 kondygnację nadziemną, przekryta dachem jednospadowym o nachyleniu połaci dachowej 5°
W budynku przewiduje się około 25-30 pracowników.
Technologia: tradycyjna (część biurowa / usługowa), stalowa (część magazynowa)
Ściany zewnętrzne:
- część biurowa / usługowa: beton komórkowy 24 cm, styropian 20 cm, tynk cienkowarstwowy
- część magazynowa: płyta warstwowa z rdzeniem poliuretanowym 14 cm, konstrukcja stalowa
Strop: żelbetowy (część biurowa / usługowa)
Fundament: płyta fundamentowa (biurowa / usługowa), stopy i ściany fundamentowe (częśc magazynowa)
Ogrzewanie: gazowe (kocioł gazowy oraz aparaty grzewczo wentylacyjne gazowe), pompa ciepła do podgrzewania cwu, instalacja fotowoltaiczną o mocy 30kWp do produkcji prądu na potrzeby zasilania urządzeń pomocniczych do c.o. i c.w.u
Fotowoltaika: w budynku zaprojektowano instalację fotowoltaiczną na dachu o mocy 30 kWp, która będzie generować prąd na potrzeby zasilania wentylacji mechanicznej, urządzeń pomocniczych do c.o i c.w.u oraz częściowo oświetlenia wbudowanego.
Wentylacja: z rekuperacją (część biurowa / usługowa), mechaniczna.
Pokrycie dachu:
- część biurowa / usługowa: blacha dachowa płaska łączona na rąbek stojący
- część magazynowa: dachowa płyta warstwowa z rdzeniem poliuretanowym 16/20 cm
Program:
- piwnica: klatka schodowa, korytarz, magazyn, pomieszczenie detailingu, kotłownia gazowa, pomieszczenie techniczne elektryczne, archiwum, szatnia personelu hali, pokój śniadań, łazienka ( WC + umywalki + natryski )
- parter: klatka schodowa, korytarz, biuro, pokój śniadań, szatnia personelu biurowego, biuro obsługi klienta, przedsionek, WC damskie / dla niepełnosprawnych, WC męskie oraz 4 pomieszczenia magazynowe.
- poddasze: klatka schodowa, korytarz, WC męskie, WC damskie, pokój śniadań, pomieszczenie porządkowe, szatnia personelu biurowego, archiwum oraz 5 pomieszczeń biurowych.
Koszty budowy sprawdź >>
Architekt: Jaromir Mruk, Mateusz Budziakowski,
Projekt ten został opracowany zgodnie z normami budowlanymi, w pełnym zakresie wymaganym dla projektów gotowych.
Zawartość projektu sprawdź szczegóły >>
Łączna zawartość obu projektów architektoniczno - budowlanego oraz projektu technicznego, które można zamówić razem lub osobno:
- projekt architektoniczny
- projekt konstrukcyjny
- projekt wewnętrznych instalacji sanitarnych
- projekt wewnętrznych instalacji ogrzewania (kocioł gazowy oraz aparaty grzewczo wentylacyjnwe gazowe, pompa ciepła do podgrzewu cwu)
- projekt wewnętrznej instalacji wentylacji mechanicznej z rekuperacją, grawitacyjnej
- projekt wewnętrznej instalacji elektrycznej, instalacji odgromowej i fotowoltaicznej (moc 30 kWp)
- projekt wewnętrznej instalacji klimatyzacji
- przedmiar + zestawienie materiałów budowlanych
- projektowana charakterystyka energetyczna budynku
- zgoda na zmiany w projekcie
Parametry projektu
Ogólne kategorie, do których należy ten projekt
- Powierzchnia mieszkalna (m²) 0 - 50
- Powierzchnia użytkowa (m²) 1000 - 2000
- Powierzchnia zabudowy (m²) 1000 - 2000
- Kąt nachylenia dachu (°) 0 - 5
- Szerokość działki/krótszy bok (m) 30 - 40
- Wysokość budynku (m) 9 - 10
Podstawowe parametry projektu
- Powierzchnia mieszkalna (m²) 0.00
- Powierzchnia użytkowa (m²) 1465.99
- Powierzchnia zabudowy (m²) 1339.36
- Szerokość budynku/krótszy bok (m) 30,10
- Długość budynku/dłuższy bok (m) 63,80
- Wysokość budynku (m) 10,92
- Szerokość działki/krótszy bok (m) 38.10
- Kąt nachylenia dachu (°) 5
- Rodzaj dachu jednospadowy
- Piwnica podpiwniczony
- Garaż bez garażu
- Poddasze poddasze użytkowe
Uzupełniające parametry projektu
- Rodzaj technologii* tradycyjna
- Kubatura (m³) 12156.90
- Liczba kondygnacji 3
- Rodzaj ogrzewania gazowe
- Wskaźnik energii pierwotnej (kWh/(m²·rok)) 47,55
- Instalacja fotowoltaiczna* tak
- Liczba pomieszczeń 42
* gwiazdką są oznaczone w parametrach projektu zmiany nieistotne, które nie wymagają przeprojektowania do pozwolenia zamiennego. Do każdego projektu dołączamy bezpłatną zgodę na wprowadzanie zarówno zmian istotnych jak i nieistotnych.
Darmowe dodatki do projektu
- 10 stylowych projektów ogrodzeń
- 10 projektów śmietników
- 5 projektów grilli z funkcją rusztu, kominka i wędzarni
- 6 projektów oczek wodnych
- 6 projektów altan
- 4 projekty huśtawek ogrodowych
- 4 projekty bud dla psów
- 4 projekty szamb o poj. 21,6 m3 / 14,6 m3 / 10 m3 i 6,4 m3
- 2 projekty przydomowej oczyszczalni ścieków. Jeden dla rodziny do 4 osób, drugi dla rodziny do 6 osób
- projekt przydomowej elektrowni wiatrowej
- schemat instalacji fotowoltaicznej
- projekty budek lęgowych dla kilkudziesięciu gatunków ptaków
- zgoda na wszelkie zmiany i adaptacje
Producentem projektu jest:

ul. Cystersów 7B, 31-553 Kraków
e-mail: kbprojekt@kbprojekt.pl
tel. 12 414 35 06
Pomocne informacje
Chcesz wprowadzić zmiany w tym projekcie?
Możemy dostosować go do Twoich potrzeb, napisz co chciałbyś w nim zmienić, przeprojektujemy go tak, aby w pełni odpowiadał Twoim oczekiwaniom
Chcesz dostosować ten projekt we własnym zakresie?
Sprawdź jakie zmiany są nieistotne czyli takie, ktore możesz wprowadzić na etapie budowy zobacz szczegóły >>
Nie możesz znaleźć odpowiedniego projektu?
Chętnie pomożemy. Zadzwoń do nas 12 410 49 70 lub skorzystaj z formularza kontaktowego dostępnego tutaj >>
Szukasz projektu dopasowanego do Twoich potrzeb?
Sprawdź naszą ofertę na projekty domów na indywidualne zamówienie w niezwykle atrakcyjnej cenie zobacz szczegóły >>
Potrzebujesz adaptacji projektu lub pomocy w załatwieniu formalności związanych z budową?
Nasze biuro architektoniczne oferuje pomoc w uzyskaniu pozwolenia na budowę a także wykonuje adaptacje projektów na terenie całej Polski zobacz szczegóły >>
Szukasz sprawdzonego kierownika budowy?
Oferujemy usługi naszych uprawnionych kierowników budowy, którzy przeprowadzą Cię przez cały proces budowlany, od uzyskania pozwolenia na budowę po finalne odbiory zobacz szczegóły >>
Opinie o tym projekcie
Jeśli dodałeś/-aś recenzję, a nie pojawiłą się na liście, być może oczekuje na moderację.


