Budynek wielorodzinny
Kod: L-6761
| W podanej cenie oferujemy 3 kopie projektu architektoniczno-budowlanego potrzebnego do uzyskania pozwolenia na budowę sprawdź >> | |
| Projekt techniczny zamów >> | |
| Parametry projektu zobacz >> | |
| Odbicie lustrzane projektu zobacz >> | |
| Koszty budowy zobacz >> | |
| Forum dotyczące tego projektu zobacz >> |
| Zmiany istotne i nieistotne, które możesz wprowadzić w tym projekcie sprawdź >> | |
| Adaptacja i pozwolenie na budowę zobacz >> | |
| Jeśli masz pytanie |
Prezentacja projektu
Opis projektu
projekt domu wielorodzinnego, dom wielorodzinny, blok, budynek wielorodzinny, budynek piętrowy, piwnica, garaż podziemny
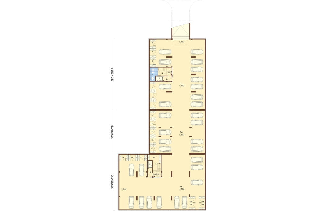
Rzut piwnicy

PIWNICA: 1211,85 m2
Segment A: 425,32 m2
1. Garaż / stanowisko posto. 357,57 m2
2. Przedsionek p. pożarowy 4,25 m2
3. Szyb windy 3,75 m2
4. Klatka schodowa 13,11 m2
5. Pom. techniczne 10,90 m2
6. Boks lokatorski 5,95 m2
7. Boks lokatorski 5,97 m2
8. Boks lokatorski 5,95 m2
9. Boks lokatorski 5,95 m2
10. Boks lokatorski 5,97 m2
11. Boks lokatorski 5,95 m2
Segment B: 265,1 m2
12. Garaż / stanowisko posto. 237,30 m2
13. Boks lokatorski 5,56 m2
14. Boks lokatorski 5,56 m2
15. Boks lokatorski 5,56 m2
16. Boks lokatorski 5,56 m2
17. Boks lokatorski 5,56 m2
Segment C: 521,43 m2
18. Garaż / stanowisko posto. 454,23 m2
19. Przedsionek p. pożarowy 4,25 m2
20. Szyb windy 3,75 m2
21. Klatka schodowa 13,11 m2
22. Pom. techniczne 10,90 m2
23. Boks lokatorski 4,34 m2
24. Boks lokatorski 4,34 m2
25. Boks lokatorski 4,34 m2
26. Boks lokatorski 4,30 m2
27. Boks lokatorski 5,95 m2
28. Boks lokatorski 5,97 m2
29. Boks lokatorski 5,95 m2
Rzut parteru

PARTER: 672,62 m2
Segment A: 336,31 m2
1. Wiatrołap 7,47 m2
2. Korytarz + kl. schod. 32,69 m2
3. Szyb windy 3,75 m2
Mieszkanie I: 59,47 m2+balkon 7,11 m2
1. Hall 8,27 m2
2. Pokój dzienny + aneks kuch. 23,90 m2
3. Pokój 11,72 m2
4. Pokój 11,29 m2
5. Łazienka 4,29 m2
Mieszkanie II: 44,50 m2+balkon 3,07 m2
1. Hall 3,09 m2
2. Łazienka 4,05 m2
3. Pokój dzienny + aneks kuch 27,06 m2
4. Pokój 10,30 m2
Mieszkanie III: 42,01 m2+balkon 4,27 m2
1. Hall 3,76 m2
2. Pokój dzienny + aneks kuch. 21,84 m2
3. Pokój 12,19 m2
4. Łazienka 4,22 m2
Mieszkanie IV: 42,01 m2+4,27 m2
1. Hall 3,76 m2
2. Pokój dzienny + aneks kuch. 21,84 m2
3. Pokój 12,19 m2
4. Łazienka 4,22 m2
Mieszkanie V: 44,87 m2+balkon 7,58 m2
1. Hall 3,46 m2
2. Łazienka 4,05 m2
3. Pokój dzienny + aneks kuch. 27,06 m2
4. Pokój 10,30 m2
Mieszkanie VI: 59,54 m2+balkon 7,11 m2
1. Hall 8,27 m2
2. Pokój dzienny + aneks kuch. 23,97 m2
3. Pokój 11,72 m2
4. Pokój 11,29 m2
5. Łazienka 4,29 m2
Segment C: 336,31 m2
1. Wiatrołap 7,47 m2
2. Korytarz + kl. schod. 32,69 m2
3. Szyb windy 3,75 m2
Mieszkanie I: 59,47 m2+balkon 7,11 m2
1. Hall 8,27 m2
2. Pokój dzienny + aneks kuch. 23,90 m2
3. Pokój 11,72 m2
4. Pokój 11,29 m2
5. Łazienka 4,29 m2
Mieszkanie II: 44,50 m2+balkon 7,58 m2
1. Hall 3,09 m2
2. Łazienka 4,05 m2
3. Pokój dzienny + aneks kuch. 27,06 m2
4. Pokój 10,30 m2
Mieszkanie III: 42,01 m2+balkon 4,27 m2
1. Hall 3,76 m2
2. Pokój dzienny + aneks kuch. 21,84 m2
3. Pokój 12,19 m2
4. Łazienka 4,22 m2
Mieszkanie IV: 42,01 m2+balkon 4,27 m2
1. Hall 3,76 m2
2. Pokój dzienny + aneks kuch. 21,84 m2
3. Pokój 12,19 m2
4. Łazienka 4,22 m2
Mieszkanie V: 44,87 m2+balkon 7,58 m2
1. Hall 3,46 m2
2. Łazienka 4,05 m2
3. Pokój dzienny + aneks kuch. 27,06 m2
4. Pokój 10,30 m2
Mieszkanie VI: 59,54 m2+balkon 7,11 m2
1. Hall 8,27 m2
2. Pokój dzienny + aneks kuch. 23,97 m2
3. Pokój 11,72 m2
4. Pokój 11,29 m2
5. Łazienka 4,29 m2
Rzut pierwszego piętra

I PIĘTRO: 655,98 m2
Segment A: 327,99 m2
1. Korytarz + kl. schod. 31,49 m2
2. Szyb windy 3,75 m2
Mieszkanie VII: 59,51 m2+balkon 7,11 m2
1. Hall 8,27 m2
2. Pokój dzienny + aneks kuch. 23,90 m2
3. Pokój 11,72 m2
4. Pokój 11,33 m2
5. Łazienka 4,29 m2
Mieszkanie VIII: 44,59 m2+balkon 7,58 m2
1. Hall 3,18 m2
2. Łazienka 4,05 m2
3. Pokój dzienny + aneks kuch. 27,06 m2
4. Pokój 10,30 m2
Mieszkanie IX: 42,10 m2+balkon 4,27 m2
1. Hall 3,76 m2
2. Pokój dzienny + aneks kuch. 21,93 m2
3. Pokój 12,19 m2
4. Łazienka 4,22 m2
Mieszkanie X: 42,10 m2+balkon 4,27 m2
1. Hall 3,76 m2
2. Pokój dzienny + aneks kuch. 21,93 m2
3. Pokój 12,19 m2
4. Łazienka 4,22 m2
Mieszkanie XI: 44,87 m2+balkon 7,58 m2
1. Hall 3,46 m2
2. Łazienka 4,05 m2
3. Pokój dzienny + aneks kuch. 27,06 m2
4. Pokój 10,30 m2
Mieszkanie XII: 59,58 m2+balkon 7,11 m2
1. Hall 8,27 m2
2. Pokój dzienny + aneks kuch. 23,97 m2
3. Pokój 11,72 m2
4. Pokój 11,33 m2
5. Łazienka 4,29 m2
Segment C: 327,99 m2
1. Korytarz + kl. schod. 31,49 m2
2. Szyb windy 3,75 m2
Mieszkanie VII: 59,51 m2+balkon 7,11 m2
1. Hall 8,27 m2
2. Pokój dzienny + aneks kuch. 23,90 m2
3. Pokój 11,72 m2
4. Pokój 11,33 m2
5. Łazienka 4,29 m2
Mieszkanie VIII: 44,59 m2+balkon 7,58 m2
1. Hall 3,18 m2
2. Łazienka 4,05 m2
3. Pokój dzienny + aneks kuch. 27,06 m2
4. Pokój 10,30 m2
Mieszkanie IX: 42,10 m2+balkon 4,27 m2
1. Hall 3,76 m2
2. Pokój dzienny + aneks kuch. 21,93 m2
3. Pokój 12,19 m2
4. Łazienka 4,22 m2
Mieszkanie X: 42,10 m2+balkon 4,27 m2
1. Hall 3,76 m2
2. Pokój dzienny + aneks kuch. 21,93 m2
3. Pokój 12,19 m2
4. Łazienka 4,22 m2
Mieszkanie XI: 44,87 m2+balkon 7,58 m2
1. Hall 3,46 m2
2. Łazienka 4,05 m2
3. Pokój dzienny + aneks kuch. 27,06 m2
4. Pokój 10,30 m2
Mieszkanie XII: 59,58 m2+balkon 7,11 m2
1. Hall 8,27 m2
2. Pokój dzienny + aneks kuch. 23,97 m2
3. Pokój 11,72 m2
4. Pokój 11,33 m2
5. Łazienka 4,29 m2
Rzut drugiego piętra

II PIĘTRO: 655,98 m2
Segment A: 327,99 m2
1. Korytarz + kl. schod. 31,49 m2
2. Szyb windy 3,75 m2
Mieszkanie XIII: 59,51 m2+balkon 7,11 m2
1. Hall 8,27 m2
2. Pokój dzienny + aneks kuch. 23,90 m2
3. Pokój 11,72 m2
4. Pokój 11,33 m2
5. Łazienka 4,29 m2
Mieszkanie XIV: 44,59 m2+balkon 7,58 m2
1. Hall 3,18 m2
2. Łazienka 4,05 m2
3. Pokój dzienny + aneks kuch. 27,06 m2
4. Pokój 10,30 m2
Mieszkanie XV: 42,10 m2+balkon 4,27 m2
1. Hall 3,76 m2
2. Pokój dzienny + aneks kuch. 21,93 m2
3. Pokój 12,19 m2
4. Łazienka 4,22 m2
Mieszkanie XVI: 42,10 m2+balkon 4,27 m2
1. Hall 3,76 m2
2. Pokój dzienny + aneks kuch. 21,93 m2
3. Pokój 12,19 m2
4. Łazienka 4,22 m2
Mieszkanie XVII:44,87 m2+balkon 7,58 m2
1. Hall 3,46 m2
2. Łazienka 4,05 m2
3. Pokój dzienny + aneks kuch. 27,06 m2
4. Pokój 10,30 m2
Mieszkanie XVIII:59,58m2+balkon 7,11m2
1. Hall 8,27 m2
2. Pokój dzienny + aneks kuch. 23,97 m2
3. Pokój 11,72 m2
4. Pokój 11,33 m2
5. Łazienka 4,29 m2
Segment C: 327,99 m2
1. Korytarz + kl. schod. 31,49 m2
2. Szyb windy 3,75 m2
Mieszkanie XIII: 59,51 m2+balkon 7,11 m2
1. Hall 8,27 m2
2. Pokój dzienny + aneks kuch. 23,90 m2
3. Pokój 11,72 m2
4. Pokój 11,33 m2
5. Łazienka 4,29 m2
Mieszkanie XIV: 44,59 m2+balkon 7,58 m2
1. Hall 3,18 m2
2. Łazienka 4,05 m2
3. Pokój dzienny + aneks kuch. 27,06 m2
4. Pokój 10,30 m2
Mieszkanie XV: 42,10 m2+balkon 4,27 m2
1. Hall 3,76 m2
2. Pokój dzienny + aneks kuch. 21,93 m2
3. Pokój 12,19 m2
4. Łazienka 4,22 m2
Mieszkanie XVI: 42,10 m2+balkon 4,27 m2
1. Hall 3,76 m2
2. Pokój dzienny + aneks kuch. 21,93 m2
3. Pokój 12,19 m2
4. Łazienka 4,22 m2
Mieszkanie XVII:44,87 m2+balkon 7,58 m2
1. Hall 3,46 m2
2. Łazienka 4,05 m2
3. Pokój dzienny + aneks kuch. 27,06 m2
4. Pokój 10,30 m2
Mieszkanie XVIII:59,58m2+balkon 7,11m2
1. Hall 8,27 m2
2. Pokój dzienny + aneks kuch. 23,97 m2
3. Pokój 11,72 m2
4. Pokój 11,33 m2
5. Łazienka 4,29 m2
Rzut trzeciego piętra

III PIĘTRO: 655,98 m2
Segment A: 327,99 m2
1. Korytarz + kl. schod. 31,49 m2
2. Szyb windy 3,75 m2
Mieszkanie XIX: 59,51 m2+balkon 7,11 m2
1. Hall 8,27 m2
2. Pokój dzienny + aneks kuch. 23,90 m2
3. Pokój 11,72 m2
4. Pokój 11,33 m2
5. Łazienka 4,29 m2
Mieszkanie XX: 44,59 m2+balkon 7,58 m2
1. Hall 3,18 m2
2. Łazienka 4,05 m2
3. Pokój dzienny + aneks kuch. 27,06 m2
4. Pokój 10,30 m2
Mieszkanie XXI: 42,10 m2+balkon 4,27 m2
1. Hall 3,76 m2
2. Pokój dzienny + aneks kuch. 21,93 m2
3. Pokój 12,19 m2
4. Łazienka 4,22 m2
Mieszkanie XXII:42,10m2+balkon 4,27m2
1. Hall 3,76 m2
2. Pokój dzienny + aneks kuch. 21,93 m2
3. Pokój 12,19 m2
4. Łazienka 4,22 m2
Mieszkanie XXIII:44,87m2+balkon 7,58m2
1. Hall 3,46 m2
2. Łazienka 4,05 m2
3. Pokój dzienny + aneks kuch. 27,06 m2
4. Pokój 10,30 m2
Mieszkanie XXIV:59,58m2+balkon 7,11m2
1. Hall 8,27 m2
2. Pokój dzienny + aneks kuch. 23,97 m2
3. Pokój 11,72 m2
4. Pokój 11,33 m2
5. Łazienka 4,29 m2
Segment C: 327,99 m2
1. Korytarz + kl. schod. 31,49 m2
2. Szyb windy 3,75 m2
Mieszkanie XIX: 59,51 m2+balkon 7,11 m2
1. Hall 8,27 m2
2. Pokój dzienny + aneks kuch. 23,90 m2
3. Pokój 11,72 m2
4. Pokój 11,33 m2
5. Łazienka 4,29 m2
Mieszkanie XX: 44,59 m2+balkon 7,58 m2
1. Hall 3,18 m2
2. Łazienka 4,05 m2
3. Pokój dzienny + aneks kuch. 27,06 m2
4. Pokój 10,30 m2
Mieszkanie XXI: 42,10 m2+balkon 4,27 m2
1. Hall 3,76 m2
2. Pokój dzienny + aneks kuch. 21,93 m2
3. Pokój 12,19 m2
4. Łazienka 4,22 m2
Mieszkanie XXII:42,10m2+balkon 4,27m2
1. Hall 3,76 m2
2. Pokój dzienny + aneks kuch. 21,93 m2
3. Pokój 12,19 m2
4. Łazienka 4,22 m2
Mieszkanie XXIII:44,87m2+balkon 7,58m2
1. Hall 3,46 m2
2. Łazienka 4,05 m2
3. Pokój dzienny + aneks kuch. 27,06 m2
4. Pokój 10,30 m2
Mieszkanie XXIV:59,58m2+balkon 7,11m2
1. Hall 8,27 m2
2. Pokój dzienny + aneks kuch. 23,97 m2
3. Pokój 11,72 m2
4. Pokój 11,33 m2
5. Łazienka 4,29 m2
Rzut piętra / antresoli

IV PIĘTRO: 649,48 m2
Segment A: 324,74 m2
1. Korytarz + kl. schod. 28,24 m2
2. Szyb windy 3,75 m2
Mieszkanie XXV:59,51m2+balkon 7,11m2
1. Hall 8,27 m2
2. Pokój dzienny + aneks kuch. 23,90 m2
3. Pokój 11,72 m2
4. Pokój 11,33 m2
5. Łazienka 4,29 m2
Mieszkanie XXVI:44,59m2+balkon 7,58m2
1. Hall 3,18 m2
2. Łazienka 4,05 m2
3. Pokój dzienny + aneks kuch. 27,06 m2
4. Pokój 10,30 m2
MieszkanieXXVII:42,10m2+balkon 4,27m2
1. Hall 3,76 m2
2. Pokój dzienny + aneks kuch. 21,93 m2
3. Pokój 12,19 m2
4. Łazienka 4,22 m2
MieszkanieXXVIII:42,10m2+balkon 4,27m2
1. Hall 3,76 m2
2. Pokój dzienny + aneks kuch. 21,93 m2
3. Pokój 12,19 m2
4. Łazienka 4,22 m2
Mieszkanie XXIX:44,87m2+balkon 7,58m2
1. Hall 3,46 m2
2. Łazienka 4,05 m2
3. Pokój dzienny + aneks kuch. 27,06 m2
4. Pokój 10,30 m2
Mieszkanie XXX:59,58m2+balkon 7,11m2
1. Hall 8,27 m2
2. Pokój dzienny + aneks kuch. 23,97 m2
3. Pokój 11,72 m2
4. Pokój 11,33 m2
5. Łazienka 4,29 m2
Segment C: 324,74 m2
1. Korytarz + kl. schod. 28,24 m2
2. Szyb windy 3,75 m2
Mieszkanie XXV:59,51m2+balkon 7,11m2
1. Hall 8,27 m2
2. Pokój dzienny + aneks kuch. 23,90 m2
3. Pokój 11,72 m2
4. Pokój 11,33 m2
5. Łazienka 4,29 m2
Mieszkanie XXVI:44,59m2+balkon 7,58m2
1. Hall 3,18 m2
2. Łazienka 4,05 m2
3. Pokój dzienny + aneks kuch. 27,06 m2
4. Pokój 10,30 m2
MieszkanieXXVII:42,10m2+balkon 4,27m2
1. Hall 3,76 m2
2. Pokój dzienny + aneks kuch. 21,93 m2
3. Pokój 12,19 m2
4. Łazienka 4,22 m2
MieszkanieXXVIII:42,10m2+balkon 4,27m2
1. Hall 3,76 m2
2. Pokój dzienny + aneks kuch. 21,93 m2
3. Pokój 12,19 m2
4. Łazienka 4,22 m2
Mieszkanie XXIX:44,87m2+balkon 7,58m2
1. Hall 3,46 m2
2. Łazienka 4,05 m2
3. Pokój dzienny + aneks kuch. 27,06 m2
4. Pokój 10,30 m2
Mieszkanie XXX:59,58m2+balkon 7,11m2
1. Hall 8,27 m2
2. Pokój dzienny + aneks kuch. 23,97 m2
3. Pokój 11,72 m2
4. Pokój 11,33 m2
5. Łazienka 4,29 m2
Przekrój



Model 3D

Elewacje




Informacje podstawowe
Projekt budynku wielorodzinnego L-6761
Budynek posiada 6 kondygnacji. 5 nadziemnych (parter, I piętro, II piętro, III piętro, IV piętro) i 1 podziemną (garaż wielostanowiskowy). Obiekt posiada dwie bryły nadziemne posadowione na jednej części podziemnej.
W piwnicy zaprojektowano 40 miejsc postojowych i 18 komórek lokatorskich. W budynku jest 60 lokali mieszkalnych (30 mieszkań w segmencie "A" i 30 mieszkań w segmencie "C").
Technologia: tradycyjna
Ściany zewnętrzne: bloczki Silka 18 cm, styropian 20 cm, tynk zewnętrzny
Strop w budynku: żelbetowy
Kąt nachylenia dachu: 1,5% - 2,5%
Ogrzewanie: miejska sieć ciepłownicza
Wentylacja: mechaniczna (mieszkań i garażu)
Pokrycie dachu: papa termozgrzewalna
Powierzchnia dach: 876 m2
Program:
Piwnica:
-segment A + C: przedsionek p. poż., szyb windy, klatka schodowa, pomieszczenie techniczne, 28 miejsc postojowych, 14 komórek lokatorskich
-segment B: 10 miejsc postojowych, 5 komórek lokatorskich
Parter segment A + C: wiatrołap, szyb windy, komunikacja z klatką schodową, 12 lokali mieszkalnych
Piętro I segment A i C: szyb windy, komunikacja z klatką schodową, 12 lokali mieszkalnych
Piętro II segment A i C: szyb windy, komunikacja z klatką schodową, 12 lokali mieszkalnych
Piętro III segment A i C: szyb windy, komunikacja z klatką schodową, 12 lokali mieszkalnych
Piętro IV segment A i C: szyb windy, komunikacja z klatką schodową, 12 lokali mieszkalnych
Koszty budowy sprawdź >>
Architekt: Ewa Ferfecka-Homola, Jaromir Mruk,
Projekt ten został opracowany zgodnie z normami budowlanymi, w pełnym zakresie wymaganym dla projektów gotowych.
Projekt ten nie wymaga pozwolenia na budowę i może być budowany na zgłoszenie zgodnie ze znowelizowanym Prawem Budowlanym obowiązującym od 3.01.2022 roku czytaj więcej >>
Zawartość projektu sprawdź szczegóły >>
Łączna zawartość obu projektów architektoniczno - budowlanego oraz projektu technicznego, które można zamówić razem lub osobno:
- projekt architektoniczny budowlany
- projekt konstrukcyjny budowlany
- projekt budowlany wewnętrznych instalacji sanitarnych (wod-kan, c.o., wentylacja mechaniczna mieszkań oraz garażu)
- projekt budowlany wewnętrznej instalacji elektrycznej oraz instalacji odgromowej
- zestawienie materiałów budowlanych
- projektowana charakterystyka energetyczna budynku
- zgoda na zmiany w projekcie
Parametry projektu
Ogólne kategorie, do których należy ten projekt
- Powierzchnia mieszkalna (m²) pow. 2000
- Powierzchnia użytkowa (m²) 3000 - 5000
- Powierzchnia zabudowy (m²) 500 - 1000
- Kąt nachylenia dachu (°) 0 - 5
- Szerokość działki/krótszy bok (m) 30 - 40
- Wysokość budynku (m) 12 - 15
Podstawowe parametry projektu
- Powierzchnia mieszkalna (m²) 2926.80
- Powierzchnia użytkowa (m²) 4501.89
- Powierzchnia zabudowy (m²) 811.76
- Szerokość budynku/krótszy bok (m) 27.68
- Długość budynku/dłuższy bok (m) 55.30
- Wysokość budynku (m) 15,90
- Szerokość działki/krótszy bok (m) 35.68
- Kąt nachylenia dachu (°) 1,5% - 2,5%
- Rodzaj dachu mansardowy
- Piwnica podpiwniczony
- Garaż garaż wielostanowiskowy
- Poddasze piętro
Uzupełniające parametry projektu
- Rodzaj technologii* tradycyjna
- Kubatura (m³) 16791.60
- Liczba kondygnacji pow. 4
- Rodzaj ogrzewania sieć ciepłownicza
- Wskaźnik energii pierwotnej (kWh/(m²·rok)) 80,31
- Liczba pomieszczeń 315
- Liczba łazienek (bez WC) pow. 50
* gwiazdką są oznaczone w parametrach projektu zmiany nieistotne, które nie wymagają przeprojektowania do pozwolenia zamiennego. Do każdego projektu dołączamy bezpłatną zgodę na wprowadzanie zarówno zmian istotnych jak i nieistotnych.
Projekty domów można również przeglądać analizując zestawienia rzutów parterów kliknij tutaj >>
Darmowe dodatki do projektu
- 10 stylowych projektów ogrodzeń
- 10 projektów śmietników
- 5 projektów grilli z funkcją rusztu, kominka i wędzarni
- 6 projektów oczek wodnych
- 6 projektów altan
- 4 projekty huśtawek ogrodowych
- 4 projekty bud dla psów
- 4 projekty szamb o poj. 21,6 m3 / 14,6 m3 / 10 m3 i 6,4 m3
- 2 projekty przydomowej oczyszczalni ścieków. Jeden dla rodziny do 4 osób, drugi dla rodziny do 6 osób
- projekt przydomowej elektrowni wiatrowej
- schemat instalacji fotowoltaicznej
- projekty budek lęgowych dla kilkudziesięciu gatunków ptaków
- zgoda na wszelkie zmiany i adaptacje
Producentem projektu jest:

ul. Cystersów 7B, 31-553 Kraków
e-mail: kbprojekt@kbprojekt.pl
tel. 12 414 35 06
Pomocne informacje
Chcesz wprowadzić zmiany w tym projekcie?
Możemy dostosować go do Twoich potrzeb, napisz co chciałbyś w nim zmienić, przeprojektujemy go tak, aby w pełni odpowiadał Twoim oczekiwaniom
Chcesz dostosować ten projekt we własnym zakresie?
Sprawdź jakie zmiany są nieistotne czyli takie, ktore możesz wprowadzić na etapie budowy zobacz szczegóły >>
Nie możesz znaleźć odpowiedniego projektu?
Chętnie pomożemy. Zadzwoń do nas 12 410 49 70 lub skorzystaj z formularza kontaktowego dostępnego tutaj >>
Szukasz projektu dopasowanego do Twoich potrzeb?
Sprawdź naszą ofertę na projekty domów na indywidualne zamówienie w niezwykle atrakcyjnej cenie zobacz szczegóły >>
Potrzebujesz adaptacji projektu lub pomocy w załatwieniu formalności związanych z budową?
Nasze biuro architektoniczne oferuje pomoc w uzyskaniu pozwolenia na budowę a także wykonuje adaptacje projektów na terenie całej Polski zobacz szczegóły >>
Szukasz sprawdzonego kierownika budowy?
Oferujemy usługi naszych uprawnionych kierowników budowy, którzy przeprowadzą Cię przez cały proces budowlany, od uzyskania pozwolenia na budowę po finalne odbiory zobacz szczegóły >>
Opinie o tym projekcie
Jeśli dodałeś/-aś recenzję, a nie pojawiłą się na liście, być może oczekuje na moderację.