Bogaczewo
Kod: L-5508
| Projekt na zamówienie dostępny w terminie ustalonym z biurem skontaktuj się >> | |
| W podanej cenie oferujemy 3 kopie projektu architektoniczno-budowlanego potrzebnego do uzyskania pozwolenia na budowę sprawdź >> | |
| Projekt techniczny zamów >> | |
| Parametry projektu zobacz >> | |
| Odbicie lustrzane projektu zobacz >> | |
| Koszty budowy zobacz >> | |
| Forum dotyczące tego projektu zobacz >> |
| Zmiany istotne i nieistotne, które możesz wprowadzić w tym projekcie sprawdź >> | |
| Adaptacja i pozwolenie na budowę zobacz >> | |
| Jeśli masz pytanie |
Prezentacja projektu
Opis projektu
Powierzchnia użytkowa: 208,70 m2. Budynek parterowy z poddaszem mieszkalnym, bez podpiwniczenia z garażem.
Niezwykle interesujący dom jednorodzinny to przykład harmonijnego połączenia nowatorskich form z tradycyjnymi, klasycznymi rozwiązaniami. Z racji dużej powierzchni zabudowy przeznaczony jest na obszerną działkę. Bogaty program wnętrza zapewnia komfort nawet dużej rodzinie, a jego funkcjonalne rozplanowanie ułatwi organizację codziennego życia. Reprezentacyjne wejscie z podwójnymi kolumnami z obu stron doskonale komponuje się z całością bryły.
Rzut parteru

1. Pokój dzienny+jadalnia 35,0 m2
2. Pokój 11,3 m2
3. Pokój 14,5 m2
4. Pokój 12,0 m2
5. Kuchnia 7,2 m2
6. Komunikacja 21,0 m2
7. Pom. gospod. 5,8 m2
8. Wiatrołap 5,0 m2
9. Łazienka 7,2 m2
10. Wc 3,1 m2
11. Kotłownia 5,6 m2
12. Garaż 32,3 m2
Bogaty program parteru zawiera przestrzeń dzienną, część pomieszczeń sypialnych oraz pomiesczenia pomocniczo-gospodarcze, których obecność w zupełności rekompensuje brak podpiwniczenia. Ogromną zaletą jest kompleks dzienny sładający się z głównego pokoju z kominkiem i wyjściem na taras oraz jadalni delikatnie łączącej się z kuchnią. Niewielka przestrzeń użytkowa kuchni może być połączona z obszerną komunikacją, dzięki wprowadzeniu do kuchni tzw. wyspy. Na parterze znajdują sie ponadto trzy zaciszne pokoje, WC, łazenka, wiatrołap oraz poprzedzony korytarzem kompleks gospodarczy. Umieszczono w nim obszerny garaż na dwa stanowiska, funkcjonalnie połączony z wnętrzem domu i pozostałymi pomieszczeniami pomocniczymi - kotłownią i pomiesczeniem gospodarczym z wyjściem do ogrodu.
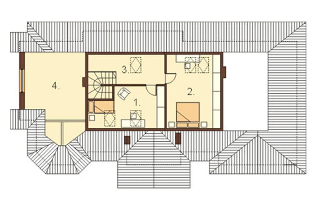
Rzut poddasza

1. Pokój 15,8 m2
2. Pokój 21,30 m2
3. Hall 11,60 m2
4. Pustka nad salonem
Doświetlone oknami połaciowymi poddasze znajduje się jedynie nad częścią parteru, pozostawiając pustkę nad salonem, dzięki czemu wyjade sie on bardziej przestrzenny. Na poddaszu umieszczono dwie wygodne sypialnie.
Przekrój

Dwukondygnacyjny, obszerny budynek z licznymi wysunięciami i podcieniami prezentuje się bardzo okazale. Z reprezentacyjnym wyglądem idzie w parze komfortowe i niezwykle funkcjonalne wnętrze, które z pewnością zadowoli najbardziej wymagających inwestorów.
Model

Reprezentacyjna, obszerna bryła to propozycja dla osób wymagających Charakterystyczne dla projektu są duże okna, zapewniające pomieszczeniom dostęp naturalnego światła i pozytywnie pływające na bilans cieplny. Atutem jest dwustanowiskowy garaż w bryle oraz interesujący wykusz z jadalnią.
Elewacje




Informacje podstawowe
Ściany zewnętrzne: pustak ceramiczny 19 cm, styropian 11 cm, szczelina powietrzna, cegła modularna 9 cm, tynk zewnętrzny.
Stropy w budynku: Fert 40.
Kąt nachylenia dachu: 30°.
Program: 5 pokoi, salon z jadalnią, kuchnia, garaż, pom. gospodarcze oraz kotłownia.
Koszty budowy sprawdź >>
Architekt: Ewa Ferfecka-Homola, Artur Ludomirski
Projekt ten został opracowany zgodnie z normami budowlanymi, w pełnym zakresie wymaganym dla projektów gotowych.
Projekt ten nie wymaga pozwolenia na budowę i może być budowany na zgłoszenie zgodnie ze znowelizowanym Prawem Budowlanym obowiązującym od 3.01.2022 roku czytaj więcej >>
Ten projekt możesz zamówić także w wersji szkieletowej zobacz szczegóły >>
Zawartość projektu sprawdź szczegóły >>
Łączna zawartość obu projektów architektoniczno - budowlanego oraz projektu technicznego, które można zamówić razem lub osobno:
- projekt architektoniczny budowlany
- projekt konstrukcyjny budowlany
- projekt budowlany wewnętrznych instalacji sanitarnych (c.o, wod-kan,gaz)
- projekt budowlany wewnętrznej instalacji elektrycznej oraz instalacji odgromowej
- szacunkowa charakterystyka energetyczna
- zestawienie materiałów budowlanych
- zgoda na zmiany w projekcie
Zdjęcia z realizacji zobacz wszystkie >>
Parametry projektu
Ogólne kategorie, do których należy ten projekt
- Powierzchnia mieszkalna (m²) 150 - 200
- Powierzchnia użytkowa (m²) 200 - 300
- Powierzchnia zabudowy (m²) 200 - 300
- Kąt nachylenia dachu (°) 25 - 30
- Szerokość działki/krótszy bok (m) 18 - 20
- Wysokość budynku (m) 6 - 7
Podstawowe parametry projektu
- Powierzchnia mieszkalna (m²) 170.80
- Powierzchnia użytkowa (m²) 208.70
- Powierzchnia zabudowy (m²) 210.70
- Szerokość budynku/krótszy bok (m) 10,35
- Długość budynku/dłuższy bok (m) 21,29
- Wysokość budynku (m) 6,68
- Szerokość działki/krótszy bok (m) 18.15
- Kąt nachylenia dachu (°) 30
- Rodzaj dachu wielospadowy
- Piwnica bez podpiwniczenia
- Garaż z garażem
- Poddasze poddasze użytkowe
- Liczba sypialni na parterze 3
Uzupełniające parametry projektu
- Rodzaj technologii* tradycyjna
- Strop w budynku* FERT 40
- Kubatura (m³) 896.40
- Styl dwór polski
- Liczba kondygnacji 2
- Rodzaj ogrzewania gazowe
- Wentylacja* grawitacyjna
- Liczba pomieszczeń 15
- Liczba wszystkich pokoi 5
- Liczba łazienek (bez WC) 1
Dodatkowe parametry projektu
- Kominek* tak
- Garderoba* nie
- Spiżarnia* nie
- Pokój z łazienką i garderobą* nie
- Pralnia / pom. gospodarcze* tak
- Kotłownia* tak
- Taras tak
- Weranda nie
- Wirtualny spacer nie
* gwiazdką są oznaczone w parametrach projektu zmiany nieistotne, które nie wymagają przeprojektowania do pozwolenia zamiennego. Do każdego projektu dołączamy bezpłatną zgodę na wprowadzanie zarówno zmian istotnych jak i nieistotnych.
Darmowe dodatki do projektu
- 10 stylowych projektów ogrodzeń
- 10 projektów śmietników
- 5 projektów grilli z funkcją rusztu, kominka i wędzarni
- 6 projektów oczek wodnych
- 6 projektów altan
- 4 projekty huśtawek ogrodowych
- 4 projekty bud dla psów
- 4 projekty szamb o poj. 21,6 m3 / 14,6 m3 / 10 m3 i 6,4 m3
- 2 projekty przydomowej oczyszczalni ścieków. Jeden dla rodziny do 4 osób, drugi dla rodziny do 6 osób
- projekt przydomowej elektrowni wiatrowej
- schemat instalacji fotowoltaicznej
- projekty budek lęgowych dla kilkudziesięciu gatunków ptaków
- zgoda na wszelkie zmiany i adaptacje
Producentem projektu jest:

ul. Cystersów 7B, 31-553 Kraków
e-mail: kbprojekt@kbprojekt.pl
tel. 12 414 35 06
Pomocne informacje
Chcesz wprowadzić zmiany w tym projekcie?
Możemy dostosować go do Twoich potrzeb, napisz co chciałbyś w nim zmienić, przeprojektujemy go tak, aby w pełni odpowiadał Twoim oczekiwaniom
Chcesz dostosować ten projekt we własnym zakresie?
Sprawdź jakie zmiany są nieistotne czyli takie, ktore możesz wprowadzić na etapie budowy zobacz szczegóły >>
Nie możesz znaleźć odpowiedniego projektu?
Chętnie pomożemy. Zadzwoń do nas 12 410 49 70 lub skorzystaj z formularza kontaktowego dostępnego tutaj >>
Szukasz projektu dopasowanego do Twoich potrzeb?
Sprawdź naszą ofertę na projekty domów na indywidualne zamówienie w niezwykle atrakcyjnej cenie zobacz szczegóły >>
Potrzebujesz adaptacji projektu lub pomocy w załatwieniu formalności związanych z budową?
Nasze biuro architektoniczne oferuje pomoc w uzyskaniu pozwolenia na budowę a także wykonuje adaptacje projektów na terenie całej Polski zobacz szczegóły >>
Szukasz sprawdzonego kierownika budowy?
Oferujemy usługi naszych uprawnionych kierowników budowy, którzy przeprowadzą Cię przez cały proces budowlany, od uzyskania pozwolenia na budowę po finalne odbiory zobacz szczegóły >>
Opinie o tym projekcie
Jeśli dodałeś/-aś recenzję, a nie pojawiłą się na liście, być może oczekuje na moderację.
