Budynek zakładu opiekuńczo - leczniczego (ZOL)
Kod: LK-109
| W podanej cenie oferujemy 3 kopie projektu architektoniczno-budowlanego potrzebnego do uzyskania pozwolenia na budowę oraz 3 kopie projektu technicznego niezbędnego do prowadzenia budowy sprawdź >> | |
| Projekt wysyłamy w terminie 14 dni roboczych od daty złożenia zamówienia | |
| Parametry projektu zobacz >> | |
| Istnieje również możliwość zakupu wersji elektronicznej (w formacie dwg) projektu architektoniczno - budowlanego skontaktuj się >> | |
| Koszty budowy zobacz >> | |
| Forum dotyczące tego projektu zobacz >> |
| Zmiany istotne i nieistotne, które możesz wprowadzić w tym projekcie sprawdź >> | |
| Adaptacja i pozwolenie na budowę zobacz >> | |
| Jeśli masz pytanie |
Prezentacja projektu
Opis projektu
LK-109. Projekt zakładu opieki leczniczej, projekt domu opieki, projekt domu spokojnej starości, projekt sanatorium, projekt budynku z gabinetami rehabilitacji, projekt hotelu, projekt motelu, projekt pensjonatu, projekt centrum leczniczego, projekt budynku badawczo-diagnostycznego,
Rzut parteru
PARTER: 2107,33 m2
1. Wiatrołap 5,76 m2
2. Hall + kl. schodowa 30,13 m2
3. Recepcja 9,26 m2
4. Korytarz 66,75 m2
5. Izba przyjęć 14,31 m2
6. Łazienka 7,66 m2
7. Dyżurka lekarska 12,70 m2
8. Łazienka 4,91 m2
9. Pokój 1 osobowy 13,29 m2
10. Łazienka 4,91 m2
11. Przedsionek 4,28 m2
12. Łazienka 5,01 m2
13. Pokój 2 osobowy 15,17 m2
14. Pokój 2 osobowy 15,73 m2
15. Łazienka 4,97 m2
16. Szafa gospodarcza 2,57 m2
17. Pom. na bieliznę brudną 3,73 m2
18. Brudownik 3,92 m2
19. Pokój 1 osobowy 12,33 m2
20. Łazienka 4,97 m2
21. Pokój 1 osobowy 12,21 m2
22. Łazienka 4,69 m2
23. Pokój 2 osobowy 15,71 m2
24. Łazienka 4,69 m2
25. Pokój 2 osobowy 15,71 m2
26. Łazienka 4,65 m2
27. Pokój 1 osobowy 12,17 m2
28. Łazienka 4,65 m2
29. Pokój 1 osobowy 12,17 m2
30. Łazienka 4,69 m2
31. Pokój 2 osobowy 15,71 m2
32. Łazienka 4,65 m2
33. Pokój 1 osobowy 11,40 m2
34. Łazienka 4,69 m2
35. Pokój 2 osobowy 16,09 m2
36. Łazienka 4,65 m2
37. Korytarz 108,45 m2
38. WC 3,48 m2
39. Wiatrołap 8,71 m2
40. Pokój 1 osobowy 11,40 m2
41. Łazienka 4,69 m2
42. Pokój 2 osobowy 16,80 m2
43. Łazienka 4,54 m2
44. Pokój 2 osobowy 15,62 m2
45. Łazienka 4,69 m2
46. Pokój 2 osobowy 15,71 m2
47. Łazienka 4,65 m2
48. Pokój 2 osobowy 15,71 m2
49. Łazienka 4,65 m2
50. Pokój 2 osobowy 15,71 m2
51. Łazienka 4,65 m2
52. Pokój 2 osobowy 15,64 m2
53. Łazienka 5,00 m2
54. Pokój 2 osobowy 15,71 m2
55. Łazienka 4,69 m2
56. Pokój 2 osobowy 15,91 m2
57. Łazienka 4,69 m2
58. Śluza umywalkowa fartuchowa 5,99 m2
59. Izolatka 8,09 m2
60. Łazienka 4,86 m2
61. Wiatrołap 2,16 m2
62. Dział farmacji 7,15 m2
63. Punkt przygotowania laków 6,04 m2
64. Punkt wydawania leków 5,63 m2
65. Pom. na odpadki medyczne 6,54 m2
66. Postmorte 10,13 m2
67. Korytarz 16,52 m2
68. Pralnia podręczna 10,95 m2
69. Pom. gospodarcze 6,86 m2
70. Rozdzielnia elektryczna 6,54 m2
71. Hydrofornia 12,58 m2
72. Kotłownia 15,65 m2
73. Kaplica 34,81 m2
74. Dyżurka pielęgniarek 6,76 m2
75. Punkt przygotowania leków 5,68 m2
76. Korytarz 80,49 m2
77. Przedsionek 3,82 m2
78. WC damskie 5,14 m2
79. Przedsionek 3,05 m2
80. WC męskie 5,14 m2
81. WC dla niepełnosprawnych 3,74 m2
82. Rehabilitacja 57,73 m2
83. Mag. sprzętu rehabilitacyjnego 3,19 m2
84. Zabiegi elektromagnetyczne 26,20 m2
85. Zabiegi krioterapi 12,31 m2
86. Pom. socjalne rehabilitantów 8,89 m2
87. WC 1,62 m2
88. Gabinet zabiegowy 19,41 m2
89. Pom. na odpadki medyczne 1,62 m2
90. Świetlica 99,27 m2
91. Jadalnia 114,98 m2
92. Magazyn zasobów 7,96 m2
93. Magazyn zasobów 8,02 m2
94. Korytarz 8,70 m2
95. Punkt przyjęcia kateringu 5,44 m2
96. Pom. socjalne prac. kuchni 8,12 m2
97. WC 1,52 m2
98. Kuchnia 19,16 m2
99. Zmywalnia 6,40 m2
100. Rozdzielnia kelnerska 3,83 m2
101. Korytarz 100,16 m2
102. Wózkownia 9,13 m2
103. Pokój 2 osobowy 15,71 m2
104. Łazienka 4,67 m2
105. Wiatrołap 8,71 m2
106. Pokój 2 osobowy 15,71 m2
107. Łazienka 4,65 m2
108. Pokój opiekunek 13,01 m2
109. Pokój 2 osobowy 15,91 m2
110. Łazienka 4,69 m2
111. Pokój 2 osobowy 15,71 m2
112. Łazienka 4,69 m2
113. Pokój 2 osobowy 15,64 m2
114. Łazienka 5,00 m2
115. Pokój 2 osobowy 15,71 m2
116. Łazienka 4,65 m2
117. Pokój 2 osobowy 15,71 m2
118. Łazienka 4,65 m2
119. Pokój 2 osobowy 15,71 m2
120. Łazienka 4,65 m2
121. Pokój 2 osobowy 15,62 m2
122. Łazienka 4,69 m2
123. Pokój 2 osobowy 16,80 m2
124. Łazienka 4,54 m2
125. Pokój 1 osobowy 11,40 m2
126. Łazienka 4,69 m2
127. WC 3,48 m2
128. Wiatrołap 8,71 m2
129. Korytarz 68,80 m2
130. Pokój 1 osobowy 11,40 m2
131. Łazienka 4,69 m2
132. Pokój 2 osobowy 16,09 m2
133. Łazienka 4,65 m2
134. Pokój 1 osobowy 12,17 m2
135. Łazienka 4,69 m2
136. Pokój 2 osobowy 15,71 m2
137. Łazienka 4,65 m2
138. Pokój 2 osobowy 15,71 m2
139. Łazienka 4,65 m2
140. Łazienka 12,17 m2
141. Pom. dla osób sprzątających 4,65 m2
142. Pokój 1 osobowy 12,21 m2
143. Łazienka 4,69 m2
144. Pokój 2 osobowy 15,71 m2
145. Łazienka 4,69 m2
146. Brudownik 3,92 m2
147. Pokój 1 osobowy 12,33 m2
148. Łazienka 4,97 m2
149. Pom. na bieliznę czystą 3,79 m2
150. Pom. na bieliznę brudną 3,70 m2
151. Pokój 2 osobowy 15,75 m2
152. Łazienka 4,97 m2
153. Przedsionek 4,32 m2
154. Łazienka 5,01 m2
155. Pokój 2 osobowy 15,17 m2
156. Pokój 1 osobowy 13,27 m2
157. Łazienka 4,91 m2
158. Pokój 1 osobowy 12,91 m2
159. Łazienka 4,94 m2
160. Pokój opiekunek 14,36 m2
161. Pokój 2 osobowy 15,55 m2
162. Łazienka 5,02 m2
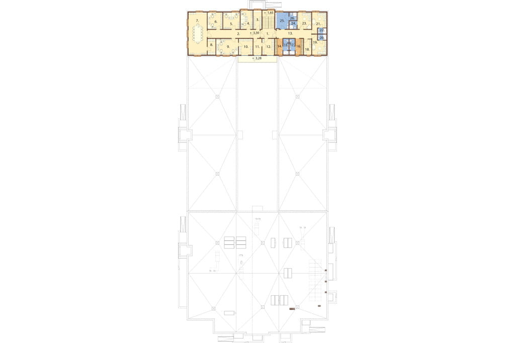
Rzut piętra / antresoli
PODDASZE: 342,71 m2
1. Kl. schodowa 18,24 m2
2. Korytarz 27,31 m2
3. Pom. gospodarcze 9,68 m2
4. Biuro 14,32 m2
5. Biuro 17,63 m2
6. Biuro 15,71 m2
7. Pokój konferencyjny 49,90 m2
8. Magazyn zasobów 8,04 m2
9. Biuro 22,31 m2
10. Archiwum 14,14 m2
11. Pom. gospodarcze 8,30 m2
12. Pom. gospodarcze 12,13 m2
13. Korytarz 18,48 m2
14. Szatnia z węzłem sanitarnym 7,89 m2
15. Węzeł sanitarny 5,34 m2
16. Szatnia z węzłem sanitarnym 7,89 m2
17. Węzeł sanitarny 5,27 m2
18. Pom. gospodarcze 7,27 m2
19. Pokój socjalny - wypoczynkowy 15,00 m2
20. Łazienka 2,95 m2
21. Pokój socjalny - wypoczynkowy 15,83 m2
22. Łazienka 2,95 m2
23. Pokój socjalny - wypoczynkowy 14,67 m2
24. Łazienka 3,71 m2
25. Pokój osób sprzątających 14,04 m2
26. Łazienka 3,71 m2
Przekrój

Model 3D

Elewacje




Informacje podstawowe
Projekt budynku LK-109 Zakład opiekuńczo - leczniczy ZOL
Budynek użyteczności publicznej pełniący funkcję zakładu opiekuńczo - leczniczego.
Budynek nie jest podpiwniczony i posiada dwie kondygnacje nadziemne: parter oraz I piętro.
Obiekt przystosowany jest dla osób niepełnosprawnych.
Przewidywane zatrudnienie - około 30 osób. Łączna liczba pacjentów w budynku wynosić będzie 74 osoby.
Technologia: tradycyjna
Ściany zewnętrzne: bloczki silka 24 cm, styropian 20cm, tynk zewnętrzny
Kąt nachylenia dachu: 1,5% - 4,1% (stropodach)
Ogrzewanie: kotłowania na paliwo gazowe
Wentylacja: mechaniczna z odzyskiem ciepła
Program:
Parter: wiatrołap, hall z klatką schodową , recepcja, gabinet diagnostyczno zabiegowy, z łazienką, dyżurka lekarska z łazienką, szafa gospodarcza, 2 brodowniki, pomieszczenie na bieliznę czystą, pomieszczenie na bieliznę brudną, 2 WC ogólnodostępne, izolatka z łazienką, śluza umywalkowa fartuchowa, dział farmacji, punkt przygotowania leków, punkt wydawania leków, pomieszczenie na odpadki medyczne, postmorte, pralnia podręczna, pomieszczenie gospodarcze, rozdzielnia elektryczna, hydrofornia, kotłownia, kaplica, dyżurka pielęgniarek, WC damskie z przedsionkiem umywalkowym, WC męskie z przedsionkiem umywalkowym, pomieszczenie rehabilitacyjne, pomieszczenie na zabiegi krioterapii, pomieszczenie na zabiegi elektromagnetyczne, gabinet zabiegowy, świetlica, jadalnia, magazyn zasobów, punk przyjęcia kateringu, pomieszczenie socjalne dla pracowników kuchni z WC, kuchnia, zmywalnia, wydawalnia, 14 pokoi 1 osobowych z łazienkami, 20 pokoi 2 osobowych z łazienkami.
I piętro: klatka schodowa, korytarz 4 biura, pokój konferencyjny, 4 pomieszczenia gospodarcze, 2 pokoje socjalne dla pracowników z zapleczem sanitarnym, pokój wypoczynkowy, pomieszczenie osób sprzątających, 3 pokoje wypoczynkowe z łazienkami, archiwum.
Koszty budowy sprawdź >>
Architekt: Ewa Ferfecka-Homola, Jaromir Mruk,
Projekt ten został opracowany zgodnie z normami budowlanymi, w pełnym zakresie wymaganym dla projektów gotowych.
Zawartość projektu sprawdź szczegóły >>
Łączna zawartość obu projektów architektoniczno - budowlanego oraz projektu technicznego, które można zamówić razem lub osobno:
- projekt architektoniczny budowlany
- projekt konstrukcyjny budowlany
- projekt budowlany wewnętrznych instalacji sanitarnych (wod-kan, gaz, c.o. z kotłem na paliwo gazowe, instalacja solarna, wentylacja mechaniczna)
- projekt budowlany wewnętrznej instalacji elektrycznej oraz instalacji odgromowej
- projektowana charakterystyka energetyczna budynku
- kosztorys inwestorski
- zgoda na zmiany w projekcie
Parametry projektu
Ogólne kategorie, do których należy ten projekt
- Powierzchnia mieszkalna (m²) 0 - 50
- Powierzchnia użytkowa (m²) 2000 - 3000
- Powierzchnia zabudowy (m²) 2000 - 3000
- Kąt nachylenia dachu (°) 0 - 5
- Szerokość działki/krótszy bok (m) 40 - 50
- Wysokość budynku (m) 7 - 8
Podstawowe parametry projektu
- Powierzchnia mieszkalna (m²) 0.00
- Powierzchnia użytkowa (m²) 2450.04
- Powierzchnia zabudowy (m²) 2516.10
- Szerokość budynku/krótszy bok (m) 35.98
- Długość budynku/dłuższy bok (m) 82.98
- Wysokość budynku (m) 7.96
- Szerokość działki/krótszy bok (m) 43.98
- Kąt nachylenia dachu (°) 1.5% - 4.1%
- Rodzaj dachu płaski
- Piwnica bez podpiwniczenia
- Garaż bez garażu
- Poddasze piętro
Uzupełniające parametry projektu
- Rodzaj technologii* tradycyjna
- Kubatura (m³) 12336.80
- Liczba kondygnacji 2
- Rodzaj ogrzewania gazowe
- Wskaźnik energii pierwotnej (kWh/(m²·rok)) 94.50
- Liczba pomieszczeń 188
- Liczba łazienek (bez WC) pow. 50
* gwiazdką są oznaczone w parametrach projektu zmiany nieistotne, które nie wymagają przeprojektowania do pozwolenia zamiennego. Do każdego projektu dołączamy bezpłatną zgodę na wprowadzanie zarówno zmian istotnych jak i nieistotnych.
Darmowe dodatki do projektu
- 10 stylowych projektów ogrodzeń
- 10 projektów śmietników
- 5 projektów grilli z funkcją rusztu, kominka i wędzarni
- 6 projektów oczek wodnych
- 6 projektów altan
- 4 projekty huśtawek ogrodowych
- 4 projekty bud dla psów
- 4 projekty szamb o poj. 21,6 m3 / 14,6 m3 / 10 m3 i 6,4 m3
- 2 projekty przydomowej oczyszczalni ścieków. Jeden dla rodziny do 4 osób, drugi dla rodziny do 6 osób
- projekt przydomowej elektrowni wiatrowej
- schemat instalacji fotowoltaicznej
- projekty budek lęgowych dla kilkudziesięciu gatunków ptaków
- zgoda na wszelkie zmiany i adaptacje
Producentem projektu jest:

ul. Cystersów 7B, 31-553 Kraków
e-mail: kbprojekt@kbprojekt.pl
tel. 12 414 35 06
Pomocne informacje
Chcesz wprowadzić zmiany w tym projekcie?
Możemy dostosować go do Twoich potrzeb, napisz co chciałbyś w nim zmienić, przeprojektujemy go tak, aby w pełni odpowiadał Twoim oczekiwaniom
Chcesz dostosować ten projekt we własnym zakresie?
Sprawdź jakie zmiany są nieistotne czyli takie, ktore możesz wprowadzić na etapie budowy zobacz szczegóły >>
Nie możesz znaleźć odpowiedniego projektu?
Chętnie pomożemy. Zadzwoń do nas 12 410 49 70 lub skorzystaj z formularza kontaktowego dostępnego tutaj >>
Szukasz projektu dopasowanego do Twoich potrzeb?
Sprawdź naszą ofertę na projekty domów na indywidualne zamówienie w niezwykle atrakcyjnej cenie zobacz szczegóły >>
Potrzebujesz adaptacji projektu lub pomocy w załatwieniu formalności związanych z budową?
Nasze biuro architektoniczne oferuje pomoc w uzyskaniu pozwolenia na budowę a także wykonuje adaptacje projektów na terenie całej Polski zobacz szczegóły >>
Szukasz sprawdzonego kierownika budowy?
Oferujemy usługi naszych uprawnionych kierowników budowy, którzy przeprowadzą Cię przez cały proces budowlany, od uzyskania pozwolenia na budowę po finalne odbiory zobacz szczegóły >>
Opinie o tym projekcie
Jeśli dodałeś/-aś recenzję, a nie pojawiłą się na liście, być może oczekuje na moderację.

