Motel
Kod: LK-61 D
| W podanej cenie oferujemy 3 kopie projektu architektoniczno-budowlanego potrzebnego do uzyskania pozwolenia na budowę oraz 3 kopie projektu technicznego niezbędnego do prowadzenia budowy sprawdź >> | |
| Parametry projektu zobacz >> | |
| Projekt wysyłamy w terminie 14 dni roboczych od daty złożenia zamówienia | |
| Istnieje również możliwość zakupu wersji elektronicznej (w formacie dwg) projektu architektoniczno - budowlanego skontaktuj się >> | |
| Odbicie lustrzane projektu zobacz >> | |
| Koszty budowy zobacz >> | |
| Forum dotyczące tego projektu zobacz >> |
| Zmiany istotne i nieistotne, które możesz wprowadzić w tym projekcie sprawdź >> | |
| Adaptacja i pozwolenie na budowę zobacz >> | |
| Jeśli masz pytanie |
Prezentacja projektu
Opis projektu
Powierzchnia użytkowa: 366,28 m2. Budynek motelowy, niepodpiwniczony, posiada 2 kondygnacje nadziemne.
Rzut parteru
Parter: 183,72 m2
1. Wiatrołap 15,25 m2
2. Klatka schodowa 17,44 m2
3. Rozdzielnia elektryczna 3,14 m2
4. Korytarz 10,34 m2
5. Kuchnia 13,46 m2
6. WC 2,31 m2
7. Pokój 13,34 m2
8. Łazienka 2,95 m2
9. Kotłownia 16,19 m2
10. Skład opału 4,61 m2
11. WC 3,03 m2
12. Pom. gospodarcze 8,78 m2
13. Korytarz 5,52 m2
14. Korytarz 10,34 m2
15. Pokój 16,98 m2
16. Aneks kuchenny 6,07 m2
17. Łazienka 5,11 m2
18. Pokój 13,34 m2
19. Łazienka 2,95 m2
20. Pokój 12,76 m2
21. Łazienka 2,95 m2
Rzut poddasza
Poddasze: 197,67 m2
1. Klatka schodowa 13,60 m2
2. Korytarz 10,30 m2
3. Pokój + aneks kuch. 15,67 / 16,42 m2
4. Pokój 11,89 m2
5. Łazienka 4,11 m2
6. Pokój 11,10 / 13,34 m2
7. Łazienka 2,95 m2
8. Pokój 10,80 / 13,05 m2
9. Łazienka 2,95 m2
10. Pokój 11,61 / 13,95 m2
11. Łazienka 2,95 m2
12. Korytarz 10,30 m2
13. Pokój 11,61 / 13,93 m2
14. Łazienka 2,95 m2
15. Pokój 11,10 / 13,34 m2
16. Łazienka 2,95 m2
17. Pokój 11,10 / 13,34 m2
18. Łazienka 2,95 m2
19. Pokój + aneks kuch. 15,67 / 16,42 m2
20. Pokój 11,89 m2
21. Łazienka 4,11 m2
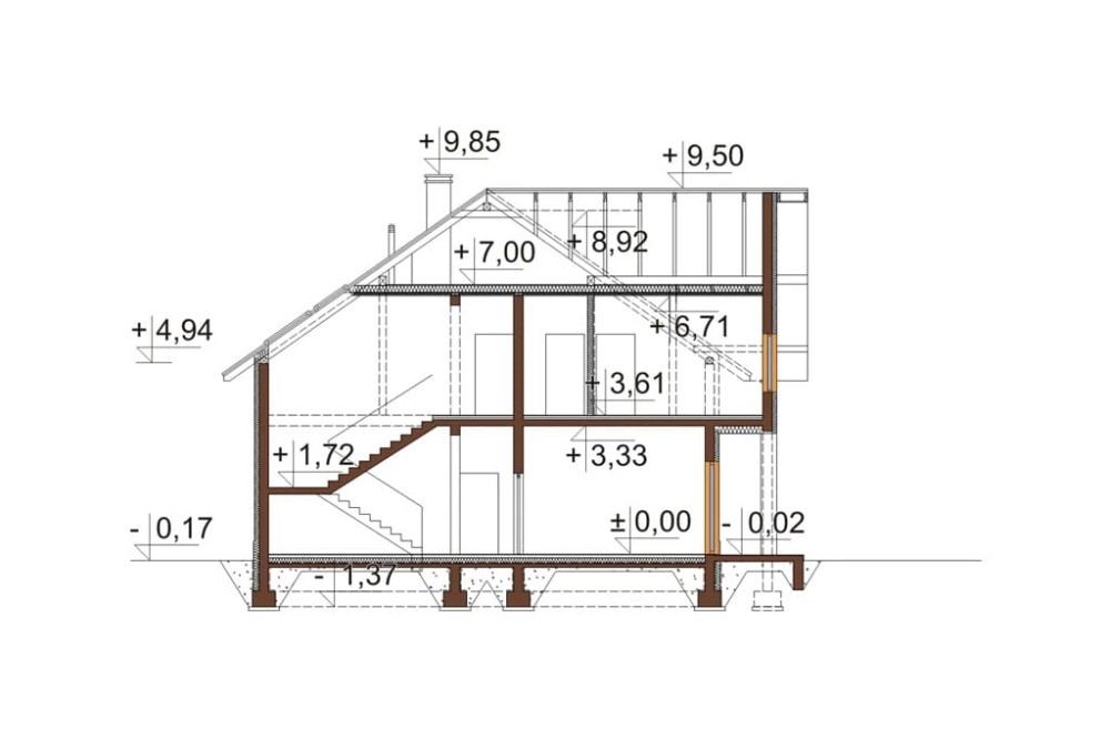
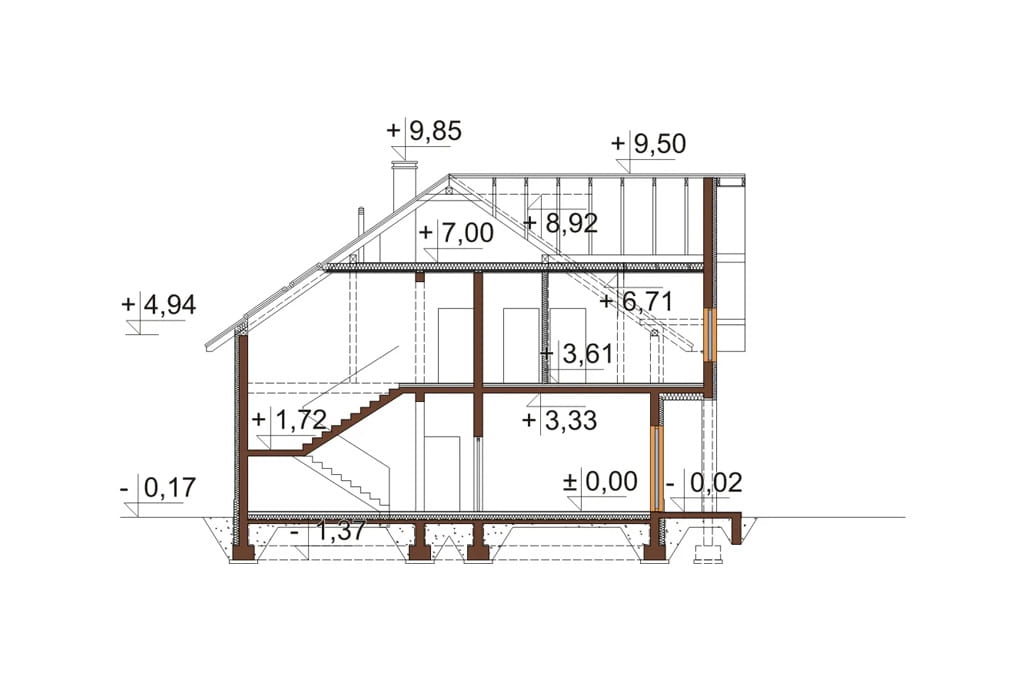
Przekrój

Model

Elewacje




Informacje podstawowe
Technologia: tradycyjna
Ściany zewnętrzne: pustak ceramiczny 24 cm, styropian 12 cm, tynk zewnętrzny
Stropy w budynku: żelbetowe
Kąt nachylenia dachu: 35°
Ogrzewanie: paliwo stałe
Wentylacja: mechaniczna z odzyskiem ciepła we wszystkich pomieszczeniach za wyjątkiem kotłowni, gdzie przewidziano wentylację grawitacyjną.
Program:
Parter: 4 pokoje z łazienkami, kuchnia, 2 WC, pomieszczenie gospodarcze, kotłownia, skład opału.
Poddasze: 10 pokoi w tym 2 z aneksem kuchennym, 8 łazienek.
Posiadamy również wersję tego projektu przygotowaną formalnie jako budynek jednorodzinny.
Koszty budowy sprawdź >>
Architekt: Ewa Ferfecka-Homola, Jaromir Mruk
Projekt ten został opracowany zgodnie z normami budowlanymi, w pełnym zakresie wymaganym dla projektów gotowych.
Zawartość projektu sprawdź szczegóły >>
Łączna zawartość obu projektów architektoniczno - budowlanego oraz projektu technicznego, które można zamówić razem lub osobno:
- projekt architektoniczny budynku
- projekt konstrukcyjny budynku
- projekt budowlany wewnętrznych instalacji sanitarnych (c.o z kotłem na paliwo stałe, wod-kan, wentylacja mechaniczna)
- projekt budowlany wewnętrznej instalacji elektrycznej oraz instalacji odgromowej
- projektowana charakterystyka energetyczna budynku
- zestawienie materiałów budowlanych
- zestawienie elementów więźby dachowej
- zgoda na zmiany w projekcie
Parametry projektu
Ogólne kategorie, do których należy ten projekt
- Powierzchnia użytkowa (m²) 300 - 500
- Powierzchnia zabudowy (m²) 200 - 300
- Kąt nachylenia dachu (°) 30 - 35
- Szerokość działki/krótszy bok (m) 20 - 25
- Wysokość budynku (m) 9 - 10
Podstawowe parametry projektu
- Powierzchnia użytkowa (m²) 366.28
- Powierzchnia zabudowy (m²) 251.99
- Szerokość budynku/krótszy bok (m) 12.04
- Długość budynku/dłuższy bok (m) 19.05
- Wysokość budynku (m) 9.67
- Szerokość działki/krótszy bok (m) 21.89
- Kąt nachylenia dachu (°) 35
- Rodzaj dachu dwuspadowy
- Piwnica bez podpiwniczenia
- Garaż bez garażu
- Poddasze poddasze użytkowe
- Liczba sypialni na parterze 4
Uzupełniające parametry projektu
- Rodzaj technologii* tradycyjna
- Strop w budynku* żelbetowy
- Układ dachu kalenicowy
- Kubatura (m³) 1840.70
- Liczba kondygnacji 2
- Rodzaj ogrzewania paliwo stałe
- Wskaźnik energii pierwotnej (kWh/(m²·rok)) 40.94
- Wentylacja* grawitacyjna
- Liczba pomieszczeń 42
- Liczba wszystkich pokoi 11-15
- Liczba łazienek (bez WC) 11 - 15
Dodatkowe parametry projektu
- Winda w budynku nie
- Przystosowany dla osób niepełnosprawnych tak
- Garaż podziemny nie
- Pomieszczenie socjalne tak
* gwiazdką są oznaczone w parametrach projektu zmiany nieistotne, które nie wymagają przeprojektowania do pozwolenia zamiennego. Do każdego projektu dołączamy bezpłatną zgodę na wprowadzanie zarówno zmian istotnych jak i nieistotnych.
Projekty domów można również przeglądać analizując zestawienia rzutów parterów kliknij tutaj >>
Darmowe dodatki do projektu
- 10 stylowych projektów ogrodzeń
- 10 projektów śmietników
- 5 projektów grilli z funkcją rusztu, kominka i wędzarni
- 6 projektów oczek wodnych
- 6 projektów altan
- 4 projekty huśtawek ogrodowych
- 4 projekty bud dla psów
- 4 projekty szamb o poj. 21,6 m3 / 14,6 m3 / 10 m3 i 6,4 m3
- 2 projekty przydomowej oczyszczalni ścieków. Jeden dla rodziny do 4 osób, drugi dla rodziny do 6 osób
- projekt przydomowej elektrowni wiatrowej
- schemat instalacji fotowoltaicznej
- projekty budek lęgowych dla kilkudziesięciu gatunków ptaków
- zgoda na wszelkie zmiany i adaptacje
Producentem projektu jest:

ul. Cystersów 7B, 31-553 Kraków
e-mail: kbprojekt@kbprojekt.pl
tel. 12 414 35 06
Pomocne informacje
Chcesz wprowadzić zmiany w tym projekcie?
Możemy dostosować go do Twoich potrzeb, napisz co chciałbyś w nim zmienić, przeprojektujemy go tak, aby w pełni odpowiadał Twoim oczekiwaniom
Chcesz dostosować ten projekt we własnym zakresie?
Sprawdź jakie zmiany są nieistotne czyli takie, ktore możesz wprowadzić na etapie budowy zobacz szczegóły >>
Nie możesz znaleźć odpowiedniego projektu?
Chętnie pomożemy. Zadzwoń do nas 12 410 49 70 lub skorzystaj z formularza kontaktowego dostępnego tutaj >>
Szukasz projektu dopasowanego do Twoich potrzeb?
Sprawdź naszą ofertę na projekty domów na indywidualne zamówienie w niezwykle atrakcyjnej cenie zobacz szczegóły >>
Potrzebujesz adaptacji projektu lub pomocy w załatwieniu formalności związanych z budową?
Nasze biuro architektoniczne oferuje pomoc w uzyskaniu pozwolenia na budowę a także wykonuje adaptacje projektów na terenie całej Polski zobacz szczegóły >>
Szukasz sprawdzonego kierownika budowy?
Oferujemy usługi naszych uprawnionych kierowników budowy, którzy przeprowadzą Cię przez cały proces budowlany, od uzyskania pozwolenia na budowę po finalne odbiory zobacz szczegóły >>
Opinie o tym projekcie
Jeśli dodałeś/-aś recenzję, a nie pojawiłą się na liście, być może oczekuje na moderację.