Budynek magazynowo - biurowy
Kod: LK-113
| W podanej cenie oferujemy 3 kopie projektu architektoniczno-budowlanego potrzebnego do uzyskania pozwolenia na budowę oraz 3 kopie projektu technicznego niezbędnego do prowadzenia budowy sprawdź >> | |
| Projekt wysyłamy w terminie 14 dni roboczych od daty złożenia zamówienia | |
| Parametry projektu zobacz >> | |
| Istnieje również możliwość zakupu wersji elektronicznej (w formacie dwg) projektu architektoniczno - budowlanego skontaktuj się >> | |
| Koszty budowy zobacz >> | |
| Forum dotyczące tego projektu zobacz >> |
| Zmiany istotne i nieistotne, które możesz wprowadzić w tym projekcie sprawdź >> | |
| Adaptacja i pozwolenie na budowę zobacz >> | |
| Jeśli masz pytanie |
Prezentacja projektu
Opis projektu
LK-113. Projekt hali magazynowej, projekt magazynu, projekt budynku biurowego, projekt centrum konferencyjnego, projekt zakładu produkcyjnego, projekt hali produkcyjnej, projekt hali sprzedaży, projekt marketu, projekt dyskontu, projekt drukarni,
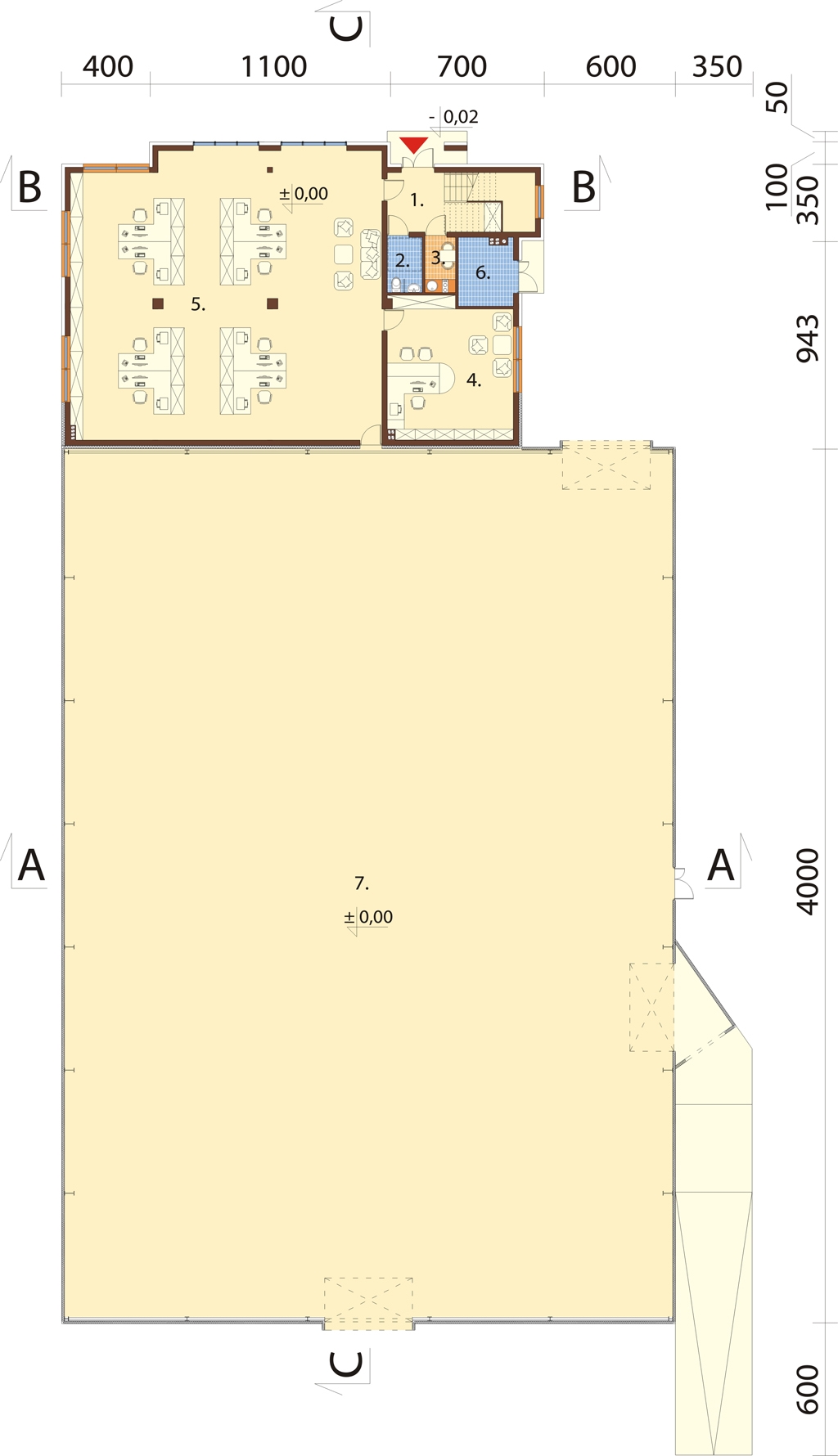
Rzut parteru
Parter: 1344.93 m2
1. Klatka schodowa 17.60 m2
2. WC 3.86 m2
3. Pokój śniadań 3.37 m2
4. Biuro 35.66 m2
5. Biuro 182.72 m2
6. Kotłownia 7.38 m2
7. Hala 1094.34 m2
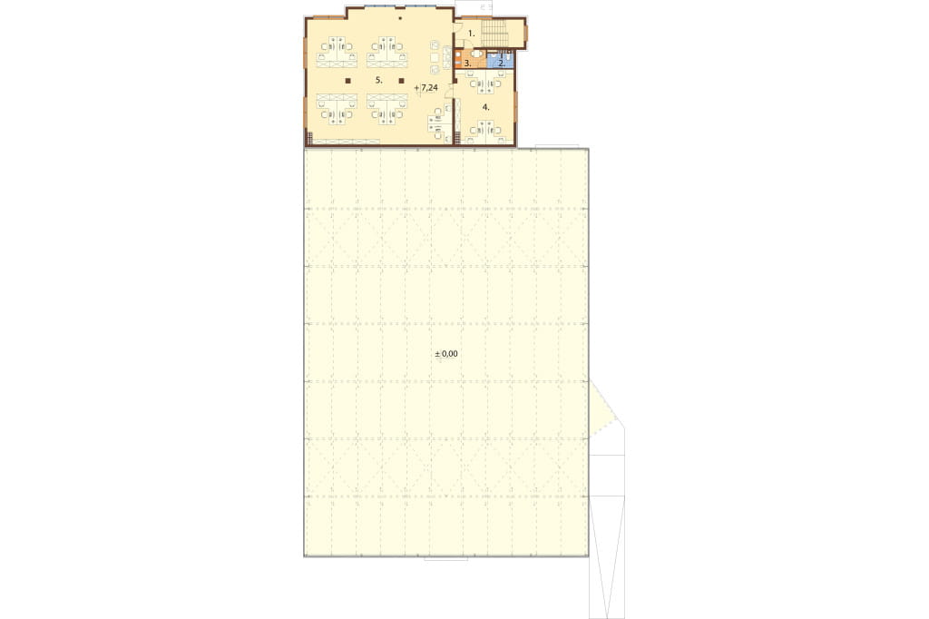
Rzut pierwszego piętra
Piętro: 247.15 m2
1. Klatka schodowa 14.41 m2
2. WC 3.92 m2
3. Pokój śniadań 5.29 m2
4. Sala konferencyjna 40.98 m2
5. Biuro 182.55 m2
Rzut drugiego piętra
II Piętro: 246.38 m2
1. Klatka schodowa 14.41 m2
2. WC 3.49 m2
3. Pokój śniadań 5.29 m2
4. Sala konferencyjna 40.98 m2
5. Biuro 182.21 m2
Przekrój

Model 3D

Elewacje




Informacje podstawowe
Projekt budynku magazynowo biurowego LK-113.
Hala magazynowo produkcyjna jednokondygnacyjna, część biurowa trzykondygnacyjna. Budynek niepodpiwniczony.
Technologia:
Część biurowa: ściany zewnętrzne - silka 24 cm, wełna mineralna lub styropian 15 cm
Hala, konstrukcja nośna; stalowa; ściana zew. płyta warstwowa z rdzeniem poliuretanowym 120 mm.
Stropy w cześci biurowej: żelbetowe
Kąt nachylenia dachu: 5° na hali
Ogrzewanie: kotłownia gazowa do części biurowej, hala ogrzewana za pomocą aparatów grzewczo wentylacyjnych
Program: hala magazynowa, pomieszczenia biurowe i konrferencyjne, zaplecze sanitarne i socjalne, kotłownia
Koszty budowy sprawdź >>
Architekt: Ewa Ferfecka-Homola, Jaromir Mruk,
Projekt ten został opracowany zgodnie z normami budowlanymi, w pełnym zakresie wymaganym dla projektów gotowych.
Zawartość projektu sprawdź szczegóły >>
Łączna zawartość obu projektów architektoniczno - budowlanego oraz projektu technicznego, które można zamówić razem lub osobno:
Parametry projektu
Ogólne kategorie, do których należy ten projekt
- Powierzchnia mieszkalna (m²) 0 - 50
- Powierzchnia użytkowa (m²) 1000 - 2000
- Powierzchnia zabudowy (m²) 1000 - 2000
- Kąt nachylenia dachu (°) 0 - 5
- Szerokość działki/krótszy bok (m) 30 - 40
- Wysokość budynku (m) 12 - 15
Podstawowe parametry projektu
- Powierzchnia mieszkalna (m²) 0.00
- Powierzchnia użytkowa (m²) 1838.46
- Powierzchnia zabudowy (m²) 1415.55
- Szerokość budynku/krótszy bok (m) 31.5
- Długość budynku/dłuższy bok (m) 53.93
- Wysokość budynku (m) 13.17
- Szerokość działki/krótszy bok (m) 39.50
- Kąt nachylenia dachu (°) 5°
- Rodzaj dachu dwuspadowy
- Piwnica bez podpiwniczenia
- Garaż bez garażu
- Poddasze piętro
Uzupełniające parametry projektu
- Rodzaj technologii* tradycyjna
- Układ dachu szczytowy
- Kubatura (m³) 17408.00
- Liczba kondygnacji 3
- Rodzaj ogrzewania gazowe
- Liczba pomieszczeń 17
* gwiazdką są oznaczone w parametrach projektu zmiany nieistotne, które nie wymagają przeprojektowania do pozwolenia zamiennego. Do każdego projektu dołączamy bezpłatną zgodę na wprowadzanie zarówno zmian istotnych jak i nieistotnych.
Darmowe dodatki do projektu
- 10 stylowych projektów ogrodzeń
- 10 projektów śmietników
- 5 projektów grilli z funkcją rusztu, kominka i wędzarni
- 6 projektów oczek wodnych
- 6 projektów altan
- 4 projekty huśtawek ogrodowych
- 4 projekty bud dla psów
- 4 projekty szamb o poj. 21,6 m3 / 14,6 m3 / 10 m3 i 6,4 m3
- 2 projekty przydomowej oczyszczalni ścieków. Jeden dla rodziny do 4 osób, drugi dla rodziny do 6 osób
- projekt przydomowej elektrowni wiatrowej
- schemat instalacji fotowoltaicznej
- projekty budek lęgowych dla kilkudziesięciu gatunków ptaków
- zgoda na wszelkie zmiany i adaptacje
Producentem projektu jest:

ul. Cystersów 7B, 31-553 Kraków
e-mail: kbprojekt@kbprojekt.pl
tel. 12 414 35 06
Pomocne informacje
Chcesz wprowadzić zmiany w tym projekcie?
Możemy dostosować go do Twoich potrzeb, napisz co chciałbyś w nim zmienić, przeprojektujemy go tak, aby w pełni odpowiadał Twoim oczekiwaniom
Chcesz dostosować ten projekt we własnym zakresie?
Sprawdź jakie zmiany są nieistotne czyli takie, ktore możesz wprowadzić na etapie budowy zobacz szczegóły >>
Nie możesz znaleźć odpowiedniego projektu?
Chętnie pomożemy. Zadzwoń do nas 12 410 49 70 lub skorzystaj z formularza kontaktowego dostępnego tutaj >>
Szukasz projektu dopasowanego do Twoich potrzeb?
Sprawdź naszą ofertę na projekty domów na indywidualne zamówienie w niezwykle atrakcyjnej cenie zobacz szczegóły >>
Potrzebujesz adaptacji projektu lub pomocy w załatwieniu formalności związanych z budową?
Nasze biuro architektoniczne oferuje pomoc w uzyskaniu pozwolenia na budowę a także wykonuje adaptacje projektów na terenie całej Polski zobacz szczegóły >>
Szukasz sprawdzonego kierownika budowy?
Oferujemy usługi naszych uprawnionych kierowników budowy, którzy przeprowadzą Cię przez cały proces budowlany, od uzyskania pozwolenia na budowę po finalne odbiory zobacz szczegóły >>
Opinie o tym projekcie
Jeśli dodałeś/-aś recenzję, a nie pojawiłą się na liście, być może oczekuje na moderację.


