Szanta
Kod: DM-6528
| W podanej cenie oferujemy 3 kopie projektu architektoniczno-budowlanego potrzebnego do uzyskania pozwolenia na budowę sprawdź >> | |
| Projekt techniczny zamów >> | |
| Parametry projektu zobacz >> | |
| Odbicie lustrzane projektu zobacz >> | |
| Koszty budowy zobacz >> | |
| Forum dotyczące tego projektu zobacz >> |
| Zmiany istotne i nieistotne, które możesz wprowadzić w tym projekcie sprawdź >> | |
| Adaptacja i pozwolenie na budowę zobacz >> | |
| Jeśli masz pytanie |
Prezentacja projektu
Opis projektu
Powierzchnia użytkowa 158,66 m2. Projekt domu parterowego z antresolą, jednorodzinnego, nowoczesnego, bez garażu, bez podpiwniczenia. Dom przeznaczony dla 4 - 6 osób.
Projekt domu Szanta to propozycja naszego biura architektonicznego na bardzo ciekawy, duży dom parterowy z antresolą i strychem do adaptacji. Śmiała architektura, ciekawe rozwiązania konstrukcyjne nadają mu niepowtarzalny wygląd, dzięki czemu budynek na bazie tego projektu będzie się wyróżniał na tle otaczającej go zabudowy. Bogaty program parteru z możliwością późniejszej adaptacji strychu czynią z niego doskonały projekt, dla rodzin, które planują w przyszłości mieć więcej dzieci.
Rzut parteru

Parter: 133,51 m2
1. Wiatrołap / garderoba 8,93 m2
2. Kotłownia 8,25 m2
3. Łazienka 5,44 m2
4. Łazienka 4,65 m2
5. Sypialnia 9,70 m2
6. Sypialnia 10,96 m2
7. Sypialnia 9,33 m2
8. Sypialnia 12,25 m2
9. Korytarz + 1/2 klatki schodowej 16,25 m2
10. Salon z aneksem kuchennym 43,13 m2
11. Spiżarnia 4,62 m2
Program parteru jest bardzo bogaty. Do dyspozycji są dwie łazienki, cztery sypialnie, kotłownia, oraz bardzo przestronny salon z aneksem kuchennym. Z salony można wyjść na okazały taras.
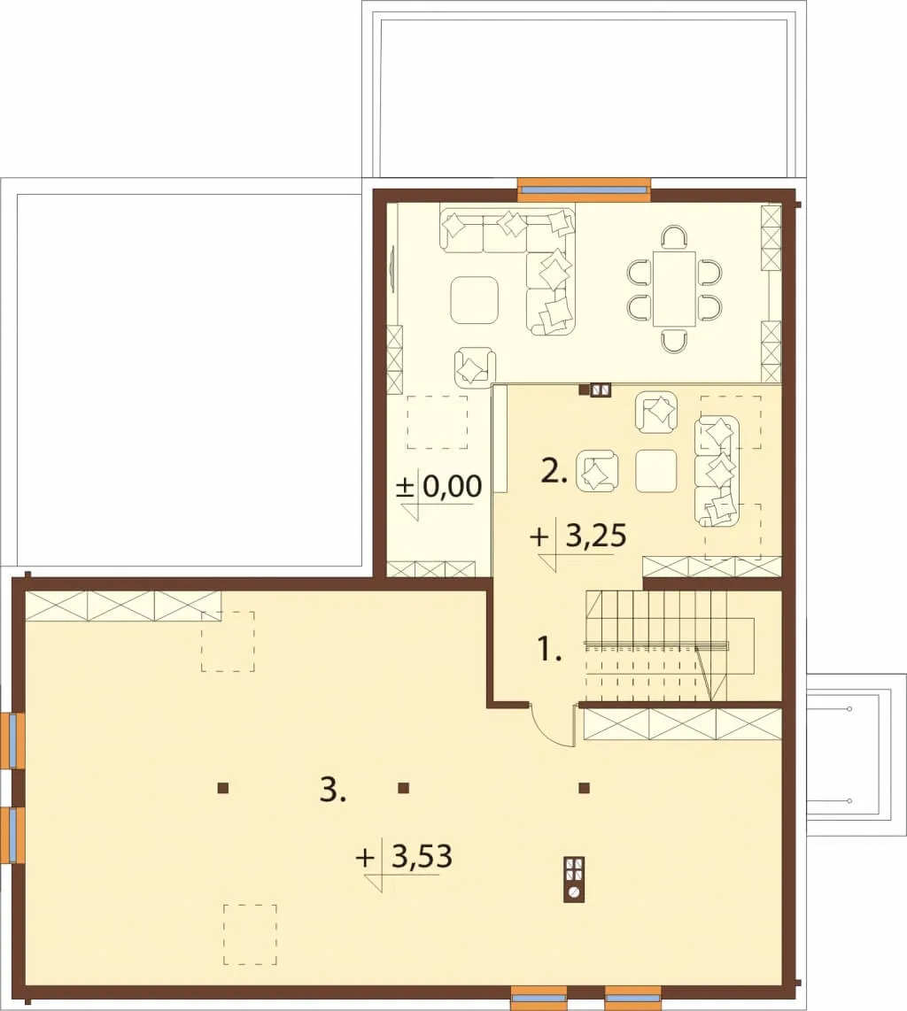
Rzut poddasza

Antresola: 9,17 / 25,15 m2 + strych do adaptacji
1. Korytarz + 1/2 klatki schodowej 3,52 m2
2. Antresola 5,65 / 21,63 m2
3. Strych do adaptacji 43,16 / 83,90 m2
Antresola to doskonałe miejsce do codziennego relaksu, a strych można w przyszłości zaadaptować do celów mieszkalnych.
Przekrój


Szanta to projekt domu jednorodzinnego o bardzo ciekawej architekturze, z antresolą i możliwością adaptacji strychu.
Model

Szanta ma bardzo ciekawą bryłę na planie odwróconej litery L. Taki układ sprawia, że w projekcie tym mogliśmy stworzyć ''wewnętrzny? taras, który z dwóch stron osłonięty jest ścianami domu. Zamiast garażu zaprojektowaliśmy nowoczesną wiatę. Do budowy domu na podstawie projektu Szanta będzie potrzebna duża działka o szerokości minimum 22,5 m.
Elewacje




Informacje podstawowe
Program: wiatrołap z garderobą, cztery pokoje, dwie łazienki, spiżarnia, salon z aneksem kuchennym, kotłownia, antresola, strych nieużytkowy do adaptacji
Technologia: tradycyjna
Materiały ścian zewnętrznych: pustak Silka gr. 24 cm, styropian 20 cm, tynk zewnętrzny akrylowy.
Strop w budynku: żelbetowy
Kąt nachylenia dachu: 40°.
Ogrzewanie: gazowe, cwu dogrzewana przez instalację solarną
Koszty budowy sprawdź >>
Architekt: Ewa Ferfecka-Homola, Ewelina Kurowska
Projekt ten został opracowany zgodnie z normami budowlanymi, w pełnym zakresie wymaganym dla projektów gotowych.
Projekt ten nie wymaga pozwolenia na budowę i może być budowany na zgłoszenie zgodnie ze znowelizowanym Prawem Budowlanym obowiązującym od 3.01.2022 roku czytaj więcej >>
Ten projekt możesz zamówić także w wersji szkieletowej zobacz szczegóły >>
Zawartość projektu sprawdź szczegóły >>
Łączna zawartość obu projektów architektoniczno - budowlanego oraz projektu technicznego, które można zamówić razem lub osobno:
- projekt architektoniczny budowlany
- projekt konstrukcyjny budowlany
- projekt budowlany wewnętrznych instalacji sanitarnych (c.o, wod-kan, gaz, instal. solarna)
- projekt budowlany wewnętrznej instalacji elektrycznej oraz instalacji odgromowej
- przedmiar robót budowlanych
- zestawienie elementów więźby dachowej
- projektowana charakterystyka energetyczna budynku
- zgoda na zmiany w projekcie
Parametry projektu
Ogólne kategorie, do których należy ten projekt
- Powierzchnia mieszkalna (m²) 100 - 150
- Powierzchnia użytkowa (m²) 150 - 200
- Powierzchnia zabudowy (m²) 150 - 200
- Kąt nachylenia dachu (°) 35 - 40
- Szerokość działki/krótszy bok (m) 20 - 25
- Długość działki/dłuższy bok (m) 20 - 25
- Wysokość budynku (m) 7 - 8
Podstawowe parametry projektu
- Powierzchnia mieszkalna (m²) 144.76
- Powierzchnia użytkowa (m²) 158.66
- Powierzchnia zabudowy (m²) 197.54
- Szerokość budynku/krótszy bok (m) 14.50
- Długość budynku/dłuższy bok (m) 15
- Wysokość budynku (m) 7.39
- Szerokość działki/krótszy bok (m) 22.50
- Długość działki/dłuższy bok (m) 23.00
- Kąt nachylenia dachu (°) 40
- Rodzaj dachu dwuspadowy
- Piwnica bez podpiwniczenia
- Garaż bez garażu
- Poddasze poddasze nieużytkowe do adaptacji
- Liczba sypialni na parterze 4
Uzupełniające parametry projektu
- Rodzaj technologii* tradycyjna
- Fundamenty ława fundamentowa
- Strop w budynku* żelbetowy
- Układ dachu kalenicowy
- Pokrycie dachu* blacha na rąbek
- Kubatura (m³) 792.16
- Liczba kondygnacji 2
- Rodzaj ogrzewania gazowe
- Wskaźnik energii pierwotnej (kWh/(m²·rok)) 60.85
- Instalacja fotowoltaiczna* nie
- Wentylacja* grawitacyjna
- Liczba pomieszczeń 14
- Liczba wszystkich pokoi 5
- Liczba łazienek (bez WC) 2
Dodatkowe parametry projektu
- Kominek* nie
- Garderoba* nie
- Spiżarnia* nie
- Pokój z łazienką i garderobą* nie
- Pralnia / pom. gospodarcze* nie
- Kotłownia* tak
- Taras tak
- Weranda nie
- Wirtualny spacer nie
* gwiazdką są oznaczone w parametrach projektu zmiany nieistotne, które nie wymagają przeprojektowania do pozwolenia zamiennego. Do każdego projektu dołączamy bezpłatną zgodę na wprowadzanie zarówno zmian istotnych jak i nieistotnych.
Projekty domów można również przeglądać analizując zestawienia rzutów parterów kliknij tutaj >>
Darmowe dodatki do projektu
- 10 stylowych projektów ogrodzeń
- 10 projektów śmietników
- 5 projektów grilli z funkcją rusztu, kominka i wędzarni
- 6 projektów oczek wodnych
- 6 projektów altan
- 4 projekty huśtawek ogrodowych
- 4 projekty bud dla psów
- 4 projekty szamb o poj. 21,6 m3 / 14,6 m3 / 10 m3 i 6,4 m3
- 2 projekty przydomowej oczyszczalni ścieków. Jeden dla rodziny do 4 osób, drugi dla rodziny do 6 osób
- projekt przydomowej elektrowni wiatrowej
- schemat instalacji fotowoltaicznej
- projekty budek lęgowych dla kilkudziesięciu gatunków ptaków
- zgoda na wszelkie zmiany i adaptacje
Producentem projektu jest:

ul. Cystersów 7B, 31-553 Kraków
e-mail: kbprojekt@kbprojekt.pl
tel. 12 414 35 06
Pomocne informacje
Chcesz wprowadzić zmiany w tym projekcie?
Możemy dostosować go do Twoich potrzeb, napisz co chciałbyś w nim zmienić, przeprojektujemy go tak, aby w pełni odpowiadał Twoim oczekiwaniom
Chcesz dostosować ten projekt we własnym zakresie?
Sprawdź jakie zmiany są nieistotne czyli takie, ktore możesz wprowadzić na etapie budowy zobacz szczegóły >>
Nie możesz znaleźć odpowiedniego projektu?
Chętnie pomożemy. Zadzwoń do nas 12 410 49 70 lub skorzystaj z formularza kontaktowego dostępnego tutaj >>
Szukasz projektu dopasowanego do Twoich potrzeb?
Sprawdź naszą ofertę na projekty domów na indywidualne zamówienie w niezwykle atrakcyjnej cenie zobacz szczegóły >>
Potrzebujesz adaptacji projektu lub pomocy w załatwieniu formalności związanych z budową?
Nasze biuro architektoniczne oferuje pomoc w uzyskaniu pozwolenia na budowę a także wykonuje adaptacje projektów na terenie całej Polski zobacz szczegóły >>
Szukasz sprawdzonego kierownika budowy?
Oferujemy usługi naszych uprawnionych kierowników budowy, którzy przeprowadzą Cię przez cały proces budowlany, od uzyskania pozwolenia na budowę po finalne odbiory zobacz szczegóły >>
Opinie o tym projekcie
Jeśli dodałeś/-aś recenzję, a nie pojawiłą się na liście, być może oczekuje na moderację.