Magazyn
Kod: LK-98
| Projekt na zamówienie dostępny w terminie ustalonym z biurem skontaktuj się >> | |
| W podanej cenie oferujemy 3 kopie projektu architektoniczno-budowlanego potrzebnego do uzyskania pozwolenia na budowę oraz 3 kopie projektu technicznego niezbędnego do prowadzenia budowy sprawdź >> | |
| Parametry projektu zobacz >> | |
| Istnieje również możliwość zakupu wersji elektronicznej (w formacie dwg) projektu architektoniczno - budowlanego skontaktuj się >> | |
| Odbicie lustrzane projektu zobacz >> | |
| Koszty budowy zobacz >> | |
| Forum dotyczące tego projektu zobacz >> |
| Zmiany istotne i nieistotne, które możesz wprowadzić w tym projekcie sprawdź >> | |
| Adaptacja i pozwolenie na budowę zobacz >> | |
| Jeśli masz pytanie |
Prezentacja projektu
Opis projektu
Powierzchnia użytkowa: 581,95 m2. Budynek dwukondygnacyjny, bez podpiwniczenia.
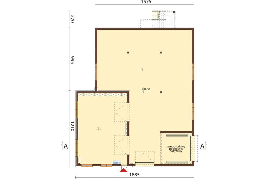
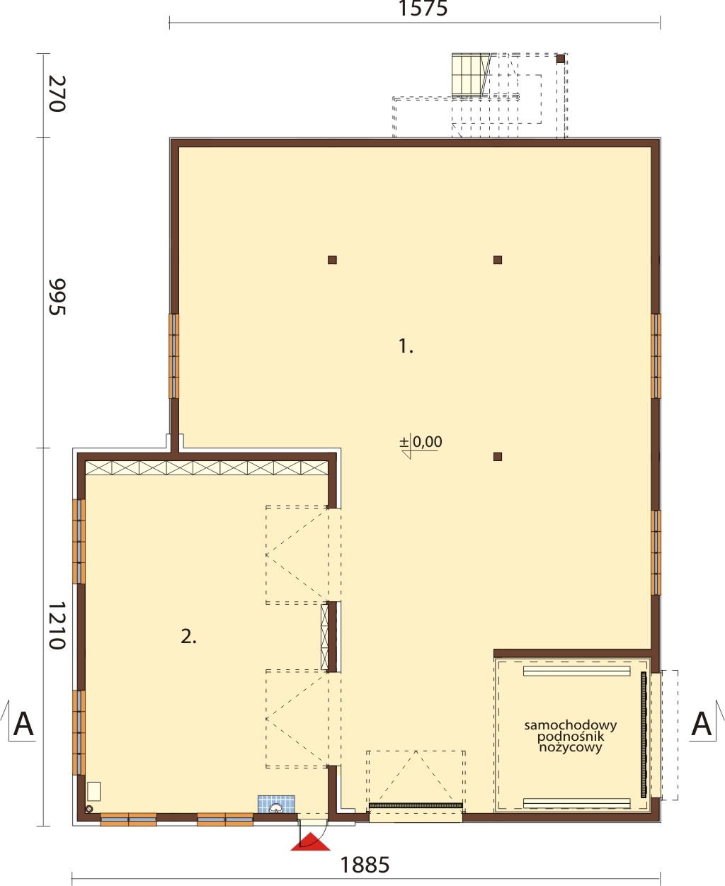
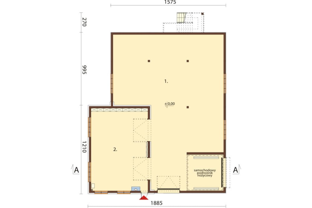
Rzut parteru
Parter: 347,27 m2
1. Magazyn 234,68 m2
2. Pom. gospodarcze 87,57 m2
3. Stanowisko podnośnika 25,02 m2
Rzut piętra
Piętro: 234,68 m2
1. Magazyn 234,68 m2
Przekrój

Model

Elewacje




Informacje podstawowe
Technologia: tradycyjna
Ściany zewnętrzne: pustak Solbet 24 cm, wełna mineralna 5 cm, tynk zewnętrzny
Stropy: żelbetowe
Kąt nachylenia dachu: 2°
Program: pomieszczenie gospodarcze, pomieszczenie magazynowe, podnośnik nożycowy.
Koszty budowy sprawdź >>
Architekt: Ewa Ferfecka-Homola, Marek Lizak, Ewelina Kurowska
Projekt ten został opracowany zgodnie z normami budowlanymi, w pełnym zakresie wymaganym dla projektów gotowych.
Zawartość projektu sprawdź szczegóły >>
Łączna zawartość obu projektów architektoniczno - budowlanego oraz projektu technicznego, które można zamówić razem lub osobno:
- projekt architektoniczny budowlany
- projekt konstrukcyjny budowlany
- projekt budowlany wewnętrznej instalacji elektrycznej oraz instalacji odgromowej
- zestawienie materiałów budowlanych
- zgoda na zmiany w projekcie
Parametry projektu
Ogólne kategorie, do których należy ten projekt
- Powierzchnia użytkowa (m²) 500 - 1000
- Powierzchnia zabudowy (m²) 300 - 500
- Kąt nachylenia dachu (°) 0 - 5
- Szerokość działki/krótszy bok (m) 25 - 30
- Wysokość budynku (m) 5 - 6
Podstawowe parametry projektu
- Powierzchnia użytkowa (m²) 581.95
- Powierzchnia zabudowy (m²) 384.53
- Szerokość budynku/krótszy bok (m) 18.25
- Długość budynku/dłuższy bok (m) 18.35
- Wysokość budynku (m) 6.00
- Szerokość działki/krótszy bok (m) 26.25
- Kąt nachylenia dachu (°) 2
- Rodzaj dachu płaski
- Piwnica bez podpiwniczenia
- Garaż z garażem dwustanowiskowym
- Poddasze antresola
Uzupełniające parametry projektu
- Rodzaj technologii* tradycyjna
- Strop w budynku* żelbetowy
- Kubatura (m³) 2221.30
- Liczba kondygnacji 1
- Wentylacja* grawitacyjna
- Liczba pomieszczeń 3
Dodatkowe parametry projektu
- Winda w budynku tak
- Przystosowany dla osób niepełnosprawnych nie
- Garaż podziemny nie
- Pomieszczenie socjalne nie
* gwiazdką są oznaczone w parametrach projektu zmiany nieistotne, które nie wymagają przeprojektowania do pozwolenia zamiennego. Do każdego projektu dołączamy bezpłatną zgodę na wprowadzanie zarówno zmian istotnych jak i nieistotnych.
Darmowe dodatki do projektu
- 10 stylowych projektów ogrodzeń
- 10 projektów śmietników
- 5 projektów grilli z funkcją rusztu, kominka i wędzarni
- 6 projektów oczek wodnych
- 6 projektów altan
- 4 projekty huśtawek ogrodowych
- 4 projekty bud dla psów
- 4 projekty szamb o poj. 21,6 m3 / 14,6 m3 / 10 m3 i 6,4 m3
- 2 projekty przydomowej oczyszczalni ścieków. Jeden dla rodziny do 4 osób, drugi dla rodziny do 6 osób
- projekt przydomowej elektrowni wiatrowej
- schemat instalacji fotowoltaicznej
- projekty budek lęgowych dla kilkudziesięciu gatunków ptaków
- zgoda na wszelkie zmiany i adaptacje
Producentem projektu jest:

ul. Cystersów 7B, 31-553 Kraków
e-mail: kbprojekt@kbprojekt.pl
tel. 12 414 35 06
Pomocne informacje
Chcesz wprowadzić zmiany w tym projekcie?
Możemy dostosować go do Twoich potrzeb, napisz co chciałbyś w nim zmienić, przeprojektujemy go tak, aby w pełni odpowiadał Twoim oczekiwaniom
Chcesz dostosować ten projekt we własnym zakresie?
Sprawdź jakie zmiany są nieistotne czyli takie, ktore możesz wprowadzić na etapie budowy zobacz szczegóły >>
Nie możesz znaleźć odpowiedniego projektu?
Chętnie pomożemy. Zadzwoń do nas 12 410 49 70 lub skorzystaj z formularza kontaktowego dostępnego tutaj >>
Szukasz projektu dopasowanego do Twoich potrzeb?
Sprawdź naszą ofertę na projekty domów na indywidualne zamówienie w niezwykle atrakcyjnej cenie zobacz szczegóły >>
Potrzebujesz adaptacji projektu lub pomocy w załatwieniu formalności związanych z budową?
Nasze biuro architektoniczne oferuje pomoc w uzyskaniu pozwolenia na budowę a także wykonuje adaptacje projektów na terenie całej Polski zobacz szczegóły >>
Szukasz sprawdzonego kierownika budowy?
Oferujemy usługi naszych uprawnionych kierowników budowy, którzy przeprowadzą Cię przez cały proces budowlany, od uzyskania pozwolenia na budowę po finalne odbiory zobacz szczegóły >>
Opinie o tym projekcie
Jeśli dodałeś/-aś recenzję, a nie pojawiłą się na liście, być może oczekuje na moderację.