Budynek garażowy powtarzalny
Kod: LZG-90
| Zmiany istotne i nieistotne, które możesz wprowadzić w tym projekcie sprawdź >> | |
| Adaptacja i pozwolenie na budowę zobacz >> | |
| Jeśli masz pytanie |
Prezentacja projektu
Opis projektu
PROJEKT BUDYNKU GARAŻOWEGO LZG-90. Budynek parterowy bez podpiwniczenia , z garażem dwustanowiskowym. Propozycja dla osób poszukujących trochę większego budynku gospodarczego, którego poddasze można zaadoptować wg dowolnego pomysłu.
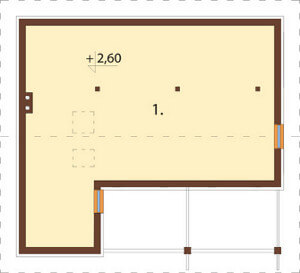
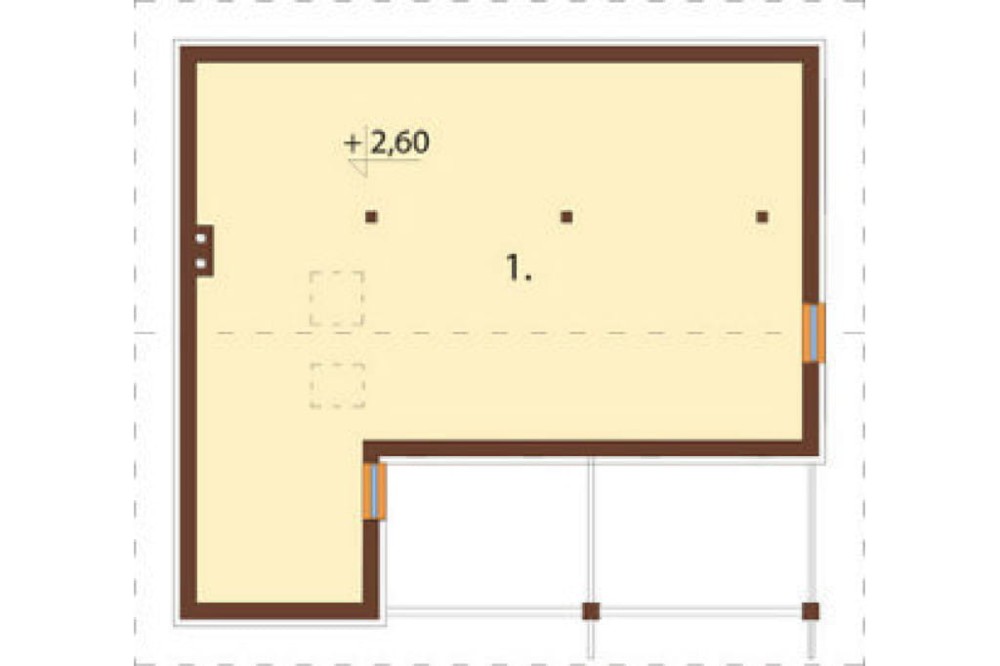
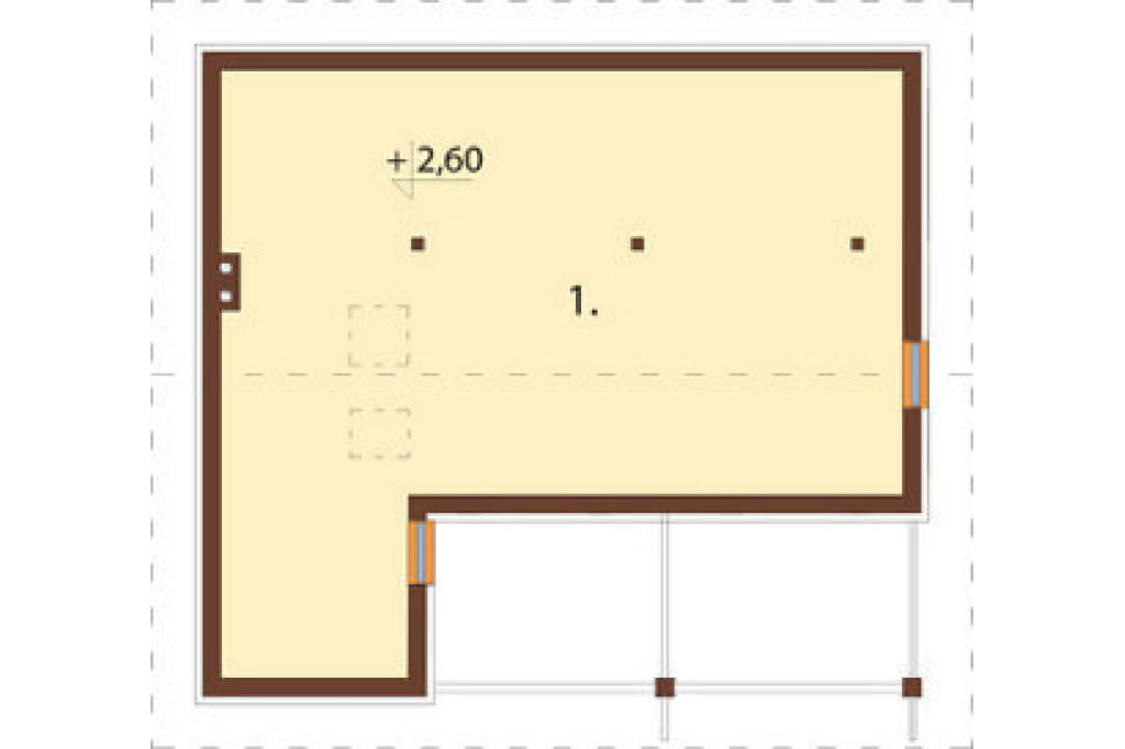
Rzut parteru

RZUT PARTERU: 59.77m2
1. Pomieszczenie gospodarcze: 14,09m2
2. : garaz: 45.68m2
Na parterze jest jedno pomieszczenie gospodarcze oraz garaż na dwa samochody. Jest on tak zaprojektowany, że na jego końcu bez problemu można usytować szafki na narzędzi i części zamienne do auta. W pomieszczeniu gospodarczym jest wyłaz na poddasze.
Rzut piętra / antresoli

RZUT PODDASZA: do adaptacji
Poddasze można wykorzystać w dowolny sposób. Nadaje się ono zarówno na dodatkowe pomieszczenie gospodarcze jak i magazy, czy siłownię.
Przekrój

Model 3D

Elewacje




Informacje podstawowe
PROJEKT BUDYNKU GARAŻOWEGO LZG-90
Parterowy bez podpiwniczenia , z garażem dwustanowiskowym oraz poddaszem do adaptacji.
Technologia: tradycyjna
Ściany: z pustaka ceramicznego gr. 25 cm, ocieplone 10 cm styropianu
Kąt nachylenia dachu: 34°.
Strop: żebletowy
Program: garaż, pomieszczenie gospodarcze, strych.
ZAWARTOŚĆ PROJEKTU:
- projekt architektoniczny budowlany
- projekt konstrukcyjny budowlany
- projekt budowlany wewnętrznej instalacji elektrycznej oraz instalacji odgromowej
- zgoda na zmiany w projekcie
Koszty budowy sprawdź >>
Architekt: Ewa Ferfecka-Homola, Mariusz Grochal,
Projekt ten został opracowany zgodnie z normami budowlanymi, w pełnym zakresie wymaganym dla projektów gotowych.
Zawartość projektu sprawdź szczegóły >>
Łączna zawartość obu projektów architektoniczno - budowlanego oraz projektu technicznego, które można zamówić razem lub osobno:
Parametry projektu
Ogólne kategorie, do których należy ten projekt
- Powierzchnia mieszkalna (m²) 0 - 50
- Powierzchnia użytkowa (m²) 50 - 70
- Powierzchnia zabudowy (m²) 70 - 100
- Kąt nachylenia dachu (°) 30 - 35
- Szerokość działki/krótszy bok (m) 16 - 18
- Wysokość budynku (m) 5 - 6
Podstawowe parametry projektu
- Powierzchnia mieszkalna (m²) 0.00
- Powierzchnia użytkowa (m²) 59.77
- Powierzchnia zabudowy (m²) 89.00
- Szerokość budynku/krótszy bok (m) 9
- Długość budynku/dłuższy bok (m) 10
- Wysokość budynku (m) 6.00
- Szerokość działki/krótszy bok (m) 17.00
- Kąt nachylenia dachu (°) 34°
- Rodzaj dachu dwuspadowy
- Piwnica bez podpiwniczenia
- Garaż garaż wielostanowiskowy
- Poddasze poddasze nieużytkowe do adaptacji
Uzupełniające parametry projektu
- Rodzaj technologii* tradycyjna
- Układ dachu szczytowy
- Kubatura (m³) 400.00
- Liczba kondygnacji 2
- Liczba pomieszczeń 3
* gwiazdką są oznaczone w parametrach projektu zmiany nieistotne, które nie wymagają przeprojektowania do pozwolenia zamiennego. Do każdego projektu dołączamy bezpłatną zgodę na wprowadzanie zarówno zmian istotnych jak i nieistotnych.
Projekty domów można również przeglądać analizując zestawienia rzutów parterów kliknij tutaj >>
Darmowe dodatki do projektu
- 10 stylowych projektów ogrodzeń
- 10 projektów śmietników
- 5 projektów grilli z funkcją rusztu, kominka i wędzarni
- 6 projektów oczek wodnych
- 6 projektów altan
- 4 projekty huśtawek ogrodowych
- 4 projekty bud dla psów
- 4 projekty szamb o poj. 21,6 m3 / 14,6 m3 / 10 m3 i 6,4 m3
- 2 projekty przydomowej oczyszczalni ścieków. Jeden dla rodziny do 4 osób, drugi dla rodziny do 6 osób
- projekt przydomowej elektrowni wiatrowej
- schemat instalacji fotowoltaicznej
- projekty budek lęgowych dla kilkudziesięciu gatunków ptaków
- zgoda na wszelkie zmiany i adaptacje
Producentem projektu jest:

ul. Cystersów 7B, 31-553 Kraków
e-mail: kbprojekt@kbprojekt.pl
tel. 12 414 35 06
Pomocne informacje
Chcesz wprowadzić zmiany w tym projekcie?
Możemy dostosować go do Twoich potrzeb, napisz co chciałbyś w nim zmienić, przeprojektujemy go tak, aby w pełni odpowiadał Twoim oczekiwaniom
Chcesz dostosować ten projekt we własnym zakresie?
Sprawdź jakie zmiany są nieistotne czyli takie, ktore możesz wprowadzić na etapie budowy zobacz szczegóły >>
Nie możesz znaleźć odpowiedniego projektu?
Chętnie pomożemy. Zadzwoń do nas 12 410 49 70 lub skorzystaj z formularza kontaktowego dostępnego tutaj >>
Szukasz projektu dopasowanego do Twoich potrzeb?
Sprawdź naszą ofertę na projekty domów na indywidualne zamówienie w niezwykle atrakcyjnej cenie zobacz szczegóły >>
Potrzebujesz adaptacji projektu lub pomocy w załatwieniu formalności związanych z budową?
Nasze biuro architektoniczne oferuje pomoc w uzyskaniu pozwolenia na budowę a także wykonuje adaptacje projektów na terenie całej Polski zobacz szczegóły >>
Szukasz sprawdzonego kierownika budowy?
Oferujemy usługi naszych uprawnionych kierowników budowy, którzy przeprowadzą Cię przez cały proces budowlany, od uzyskania pozwolenia na budowę po finalne odbiory zobacz szczegóły >>
Opinie o tym projekcie
Jeśli dodałeś/-aś recenzję, a nie pojawiłą się na liście, być może oczekuje na moderację.