Serwis samochodowy
Kod: K-66
| W podanej cenie oferujemy 3 kopie projektu architektoniczno-budowlanego potrzebnego do uzyskania pozwolenia na budowę oraz 3 kopie projektu technicznego niezbędnego do prowadzenia budowy sprawdź >> | |
| Parametry projektu zobacz >> | |
| Projekt wysyłamy w terminie 14 dni roboczych od daty złożenia zamówienia | |
| Istnieje również możliwość zakupu wersji elektronicznej (w formacie dwg) projektu architektoniczno - budowlanego skontaktuj się >> | |
| Odbicie lustrzane projektu zobacz >> | |
| Koszty budowy zobacz >> | |
| Forum dotyczące tego projektu zobacz >> |
| Zmiany istotne i nieistotne, które możesz wprowadzić w tym projekcie sprawdź >> | |
| Adaptacja i pozwolenie na budowę zobacz >> | |
| Jeśli masz pytanie |
Prezentacja projektu
Opis projektu
Powierzchnia użytkowa: 373,50 m2. Obiekt parterowy, z poddaszem użytkowym, niepodpiwniczony.
K-66 to bardzo nowoczesny projekt warsztatu samochodowego z zapleczem biurowym. Hala napraw ma 4,65 m wysokości, dzięki czemu budynek może pełnić rolę stacji kontroli pojazdów do 3,5 tony. Projekt ma nowoczesną część biurową z pomieszczeniem socjalnym, punktem obsługi klienta i jadalnią. Duża ilość przeszkleń na parterze i pierwszym piętrze zapewnia doskonałe naświetlenie pomieszczeń biurowych i podkreśla nowoczesny charakter założenia.
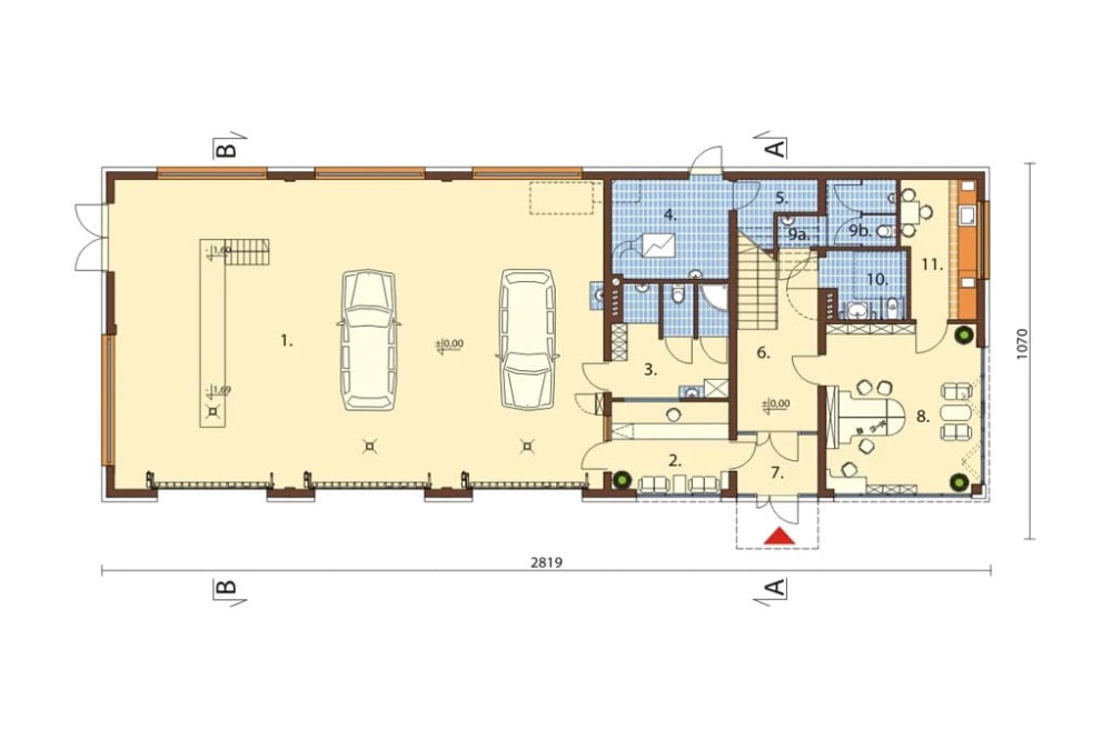
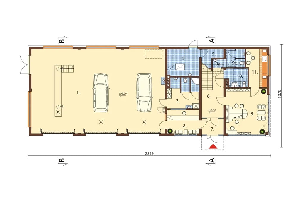
Rzut parteru
Parter: 263,62 m2
1. Hala napraw 154,85 m2
2. Punkt obsługi klienta 10,56 m2
3. Pomieszczenie socjalne 13,32 m2
4. Kotłownia 11,95 m2
5. Skład opału 4,13 m2
6. Hol + schody 16,77 m2
7. Przedsionek 4,57 m2
8. Biuro 25,56 m2
9a. Przedsionek 1,50 m2
9b. Wc 4,84 m2
10. Wc dla niepełnosprawnych 5,38 m2
11. Jadalnia 10,19 m2
Część biurowo-socjalna na parterze składa się z: punktu obsługi klienta, pomieszczenia socjalnego, jadalni, biura oraz węzła sanitarnego, który przystosowany jest do potrzeb osób niepełnosprawnych. Na parterze budynku zaprojektowaliśmy halę napraw o powierzchni 154,85 m2. Kotłownia wraz ze składem opału jest osobnym pomieszczeniem, do którego wejście zaprojektowaliśmy w elewacji ogrodowej.
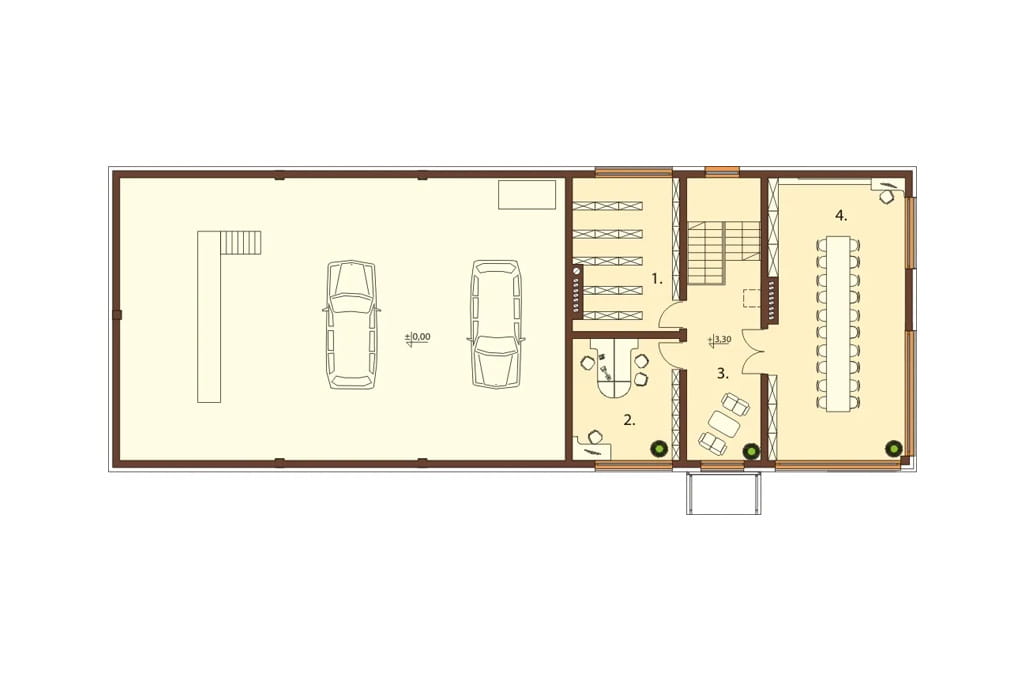
Rzut piętra
Piętro: 104,96 m2
1. Magazyn 19,59 m2
2. Biuro 16,09 m2
3. Hol + schody 22,08 m2
4. Sala konferencyjna 47,20 m2
Na pierwszym piętrze zaprojektowaliśmy magazyn, biuro oraz dużą salę konferencyjną o powierzchni 47,20 m2.
Przekrój


Model

Bryła budynku składa się z dwóch części: warsztatu oraz części biurowo magazynowej. Hala napraw ma 4,65 m wysokości i posiada trzy wjazdy, wyposażona jest w kanał rewizyjny o długości 6m i szerokości 80 cm. Na zewnątrz budynek zwraca uwagę nowoczesnymi elewacjami z dużą ilością przeszkleń. Do realizacji projektu potrzebna jest działka o szerokości 18,7m.
Elewacje




Informacje podstawowe
Obiekt przystosowany do napraw samochodów do 3,5 tony. Hala napraw o wysokości 465 cm wyposażona jest w kanał rewizyjny o długości 6m i szerokości 80 cm. Na hali napraw oraz w kanale przeglądowym przewidziano wentylację mechaniczną nawiewno - wywiewną. Budynek może również pełnić funkcję stacji kontroli pojazdów do 3,5 tony.
Technologia: tradycyjna
Ściany zewnętrzne: pustak gazobetonowy 24 cm, styropian 15 cm, tynk zewnętrzny
Strop: żelbetowy
Dach: stalowy z płytą warstwową
Kąt nachylenia dachu: 9°
Pokrycie dachu: płyta dachowa warstwowa PWD-S 200T
Ogrzewanie: kotłownia na paliwo stałe (biomasa)
Program: hala napraw dla pojazdów do 3,5 tony, zaplecze socjalne, zaplecze sanitarne, zaplecze biurowe, magazyn, sala konferencyjna, kotłownia ze składem opału.
Koszty budowy sprawdź >>
Architekt: Ewa Ferfecka-Homola
Projekt ten został opracowany zgodnie z normami budowlanymi, w pełnym zakresie wymaganym dla projektów gotowych.
Zawartość projektu sprawdź szczegóły >>
Łączna zawartość obu projektów architektoniczno - budowlanego oraz projektu technicznego, które można zamówić razem lub osobno:
- projekt architektoniczny budowlany
- projekt konstrukcyjny budowlany
- projekt budowlany wewnętrznych instalacji sanitarnych (c.o, wod-kan, wentylacja mechaniczna nawiewno - wywiewna hali napraw oraz kanału przeglądowego)
- projekt budowlany wewnętrznej instalacji elektrycznej oraz instalacji odgromowej (w tym m.in: p.poż. wyłączniki prądu, awaryjne oświetlenie ewakuacyjne)
- zestawienie materiałów budowlanych
- zgoda na zmiany w projekcie
Zdjęcia z realizacji zobacz wszystkie >>
Parametry projektu
Ogólne kategorie, do których należy ten projekt
- Powierzchnia użytkowa (m²) 300 - 500
- Powierzchnia zabudowy (m²) 300 - 500
- Kąt nachylenia dachu (°) 5 - 10
- Szerokość działki/krótszy bok (m) 18 - 20
- Wysokość budynku (m) 7 - 8
Podstawowe parametry projektu
- Powierzchnia użytkowa (m²) 373.50
- Powierzchnia zabudowy (m²) 302.70
- Szerokość budynku/krótszy bok (m) 10.7
- Długość budynku/dłuższy bok (m) 28.19
- Wysokość budynku (m) 7.08
- Szerokość działki/krótszy bok (m) 18.70
- Kąt nachylenia dachu (°) 9
- Rodzaj dachu dwuspadowy
- Piwnica bez podpiwniczenia
- Garaż garaż wielostanowiskowy
- Poddasze piętro
Uzupełniające parametry projektu
- Rodzaj technologii* tradycyjna
- Strop w budynku* żelbetowy
- Układ dachu kalenicowy
- Pokrycie dachu* płyta warstwowa
- Kubatura (m³) 1838.20
- Styl modernistyczny
- Liczba kondygnacji 2
- Rodzaj ogrzewania paliwo stałe
- Wskaźnik energii pierwotnej (kWh/(m²·rok)) 93.88
- Wentylacja* grawitacyjna
- Liczba pomieszczeń 15
Dodatkowe parametry projektu
- Winda w budynku nie
- Przystosowany dla osób niepełnosprawnych tak
- Garaż podziemny nie
- Pomieszczenie socjalne tak
* gwiazdką są oznaczone w parametrach projektu zmiany nieistotne, które nie wymagają przeprojektowania do pozwolenia zamiennego. Do każdego projektu dołączamy bezpłatną zgodę na wprowadzanie zarówno zmian istotnych jak i nieistotnych.
Darmowe dodatki do projektu
- 10 stylowych projektów ogrodzeń
- 10 projektów śmietników
- 5 projektów grilli z funkcją rusztu, kominka i wędzarni
- 6 projektów oczek wodnych
- 6 projektów altan
- 4 projekty huśtawek ogrodowych
- 4 projekty bud dla psów
- 4 projekty szamb o poj. 21,6 m3 / 14,6 m3 / 10 m3 i 6,4 m3
- 2 projekty przydomowej oczyszczalni ścieków. Jeden dla rodziny do 4 osób, drugi dla rodziny do 6 osób
- projekt przydomowej elektrowni wiatrowej
- schemat instalacji fotowoltaicznej
- projekty budek lęgowych dla kilkudziesięciu gatunków ptaków
- zgoda na wszelkie zmiany i adaptacje
Producentem projektu jest:

ul. Cystersów 7B, 31-553 Kraków
e-mail: kbprojekt@kbprojekt.pl
tel. 12 414 35 06
Pomocne informacje
Chcesz wprowadzić zmiany w tym projekcie?
Możemy dostosować go do Twoich potrzeb, napisz co chciałbyś w nim zmienić, przeprojektujemy go tak, aby w pełni odpowiadał Twoim oczekiwaniom
Chcesz dostosować ten projekt we własnym zakresie?
Sprawdź jakie zmiany są nieistotne czyli takie, ktore możesz wprowadzić na etapie budowy zobacz szczegóły >>
Nie możesz znaleźć odpowiedniego projektu?
Chętnie pomożemy. Zadzwoń do nas 12 410 49 70 lub skorzystaj z formularza kontaktowego dostępnego tutaj >>
Szukasz projektu dopasowanego do Twoich potrzeb?
Sprawdź naszą ofertę na projekty domów na indywidualne zamówienie w niezwykle atrakcyjnej cenie zobacz szczegóły >>
Potrzebujesz adaptacji projektu lub pomocy w załatwieniu formalności związanych z budową?
Nasze biuro architektoniczne oferuje pomoc w uzyskaniu pozwolenia na budowę a także wykonuje adaptacje projektów na terenie całej Polski zobacz szczegóły >>
Szukasz sprawdzonego kierownika budowy?
Oferujemy usługi naszych uprawnionych kierowników budowy, którzy przeprowadzą Cię przez cały proces budowlany, od uzyskania pozwolenia na budowę po finalne odbiory zobacz szczegóły >>
Opinie o tym projekcie
Jeśli dodałeś/-aś recenzję, a nie pojawiłą się na liście, być może oczekuje na moderację.


