Sklep parterowy z poddaszem nieużytkowym do adaptacji.
Kod: LK-06 B
| W podanej cenie oferujemy 3 kopie projektu architektoniczno-budowlanego potrzebnego do uzyskania pozwolenia na budowę oraz 3 kopie projektu technicznego niezbędnego do prowadzenia budowy sprawdź >> | |
| Projekt wysyłamy w terminie 14 dni roboczych od daty złożenia zamówienia | |
| Parametry projektu zobacz >> | |
| Istnieje również możliwość zakupu wersji elektronicznej (w formacie dwg) projektu architektoniczno - budowlanego skontaktuj się >> | |
| Koszty budowy zobacz >> | |
| Forum dotyczące tego projektu zobacz >> |
| Zmiany istotne i nieistotne, które możesz wprowadzić w tym projekcie sprawdź >> | |
| Adaptacja i pozwolenie na budowę zobacz >> | |
| Jeśli masz pytanie |
Prezentacja projektu
Opis projektu
LK-06B. Projekt sklepu, projekt marketu, projekt budynku sprzedaży, projekt sklepu spożywczego, projekt sklepu przemysłowego, projekt budynku usługowego, projekt magazynu, projekt budynku produkcyjnego, projekt budynku biurowego, projekt kawiarni,
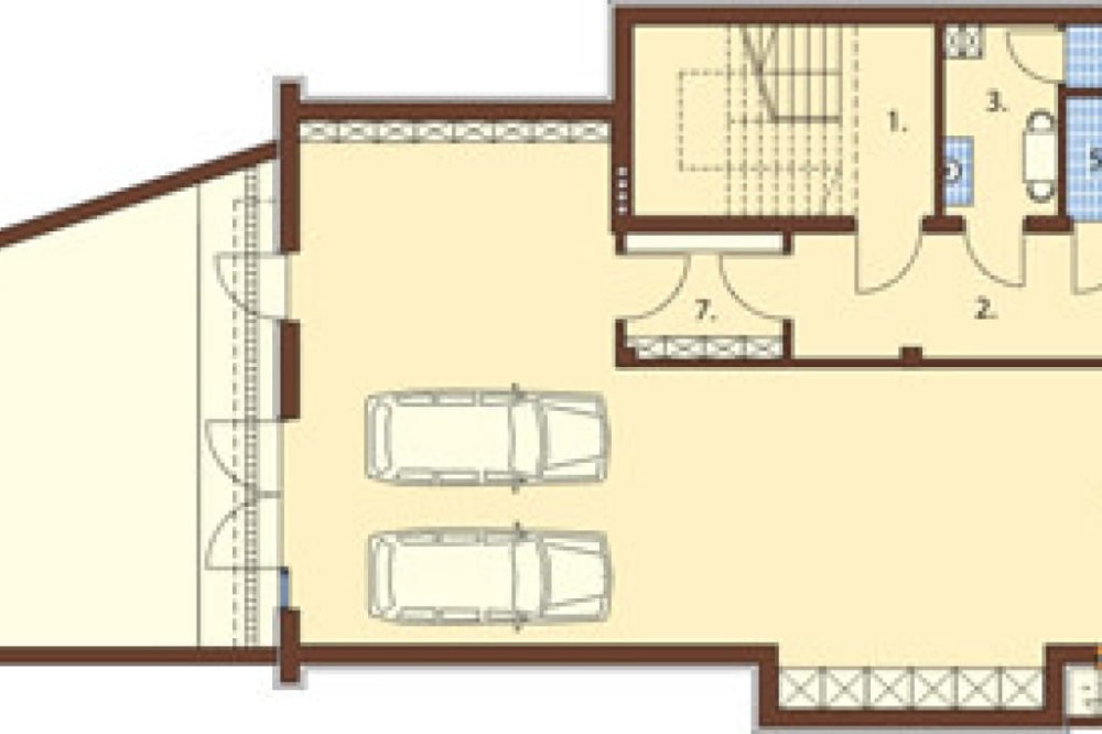
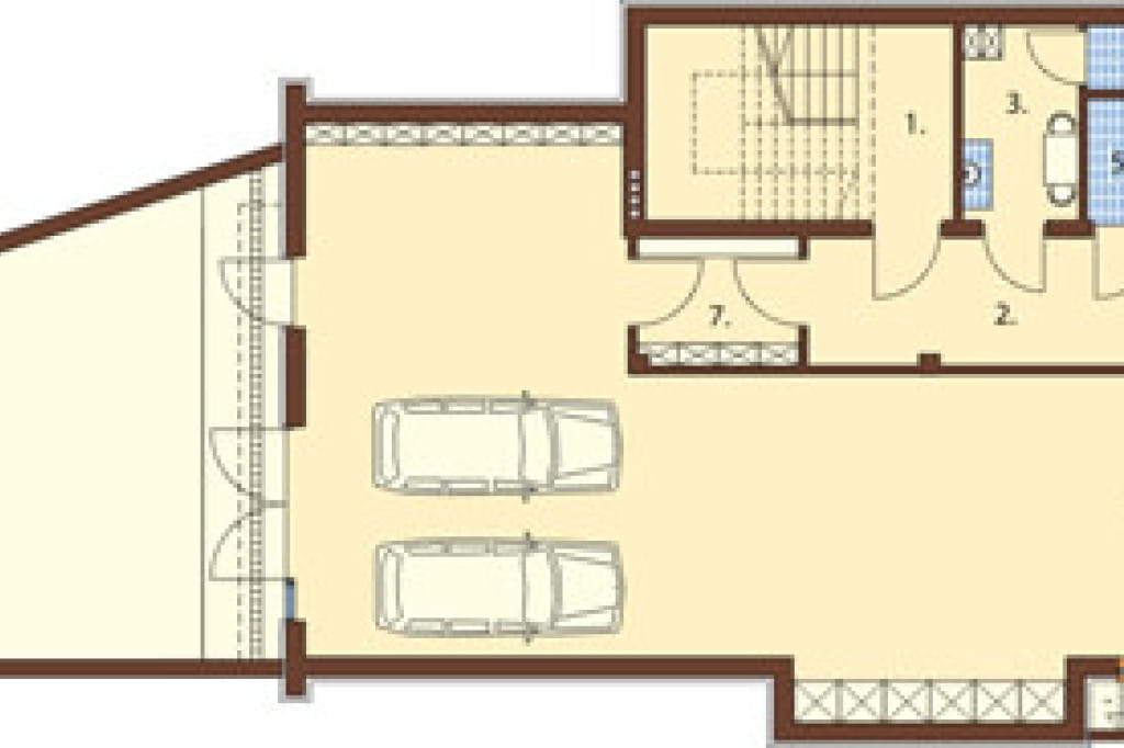
Rzut piwnicy
Piwnica: 159,52m2
1. Komunikacja 6.06m2
2. Korytarz 12.55m2
3. Pomieszczenie socjalne 5.40m2
4. WC 1.95m2
5. Kotłownia 3.67m2
6. Magazyn 18.23m2
7. Przedsionek 4.92m2
8. Garaż dwustanowiskowy z częścią zapasową 106.74m2
Projekt posiada pełne podpiwniczenie. Zaprojektowaliśmy w nim garaż dwustanowiskow z częścią zapasową oraz zaplecze sklepu, na które składa się: magazyn, pomieszczenie socjalne, WC i kotłownia.
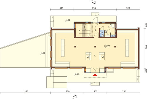
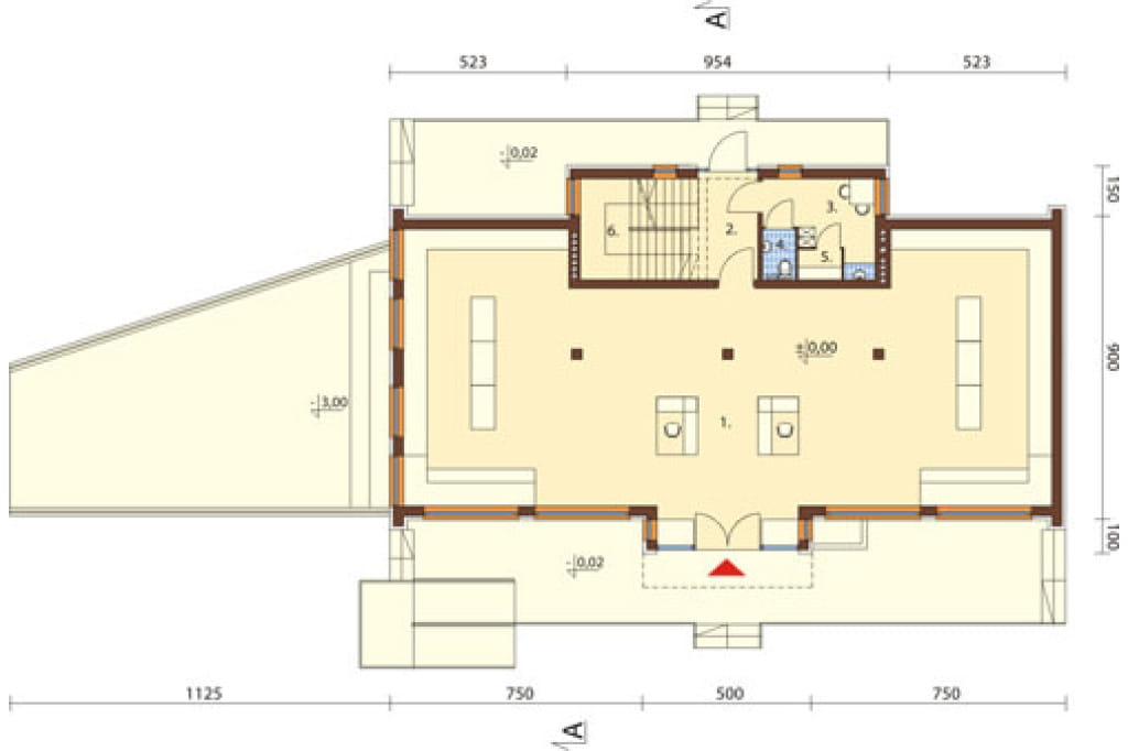
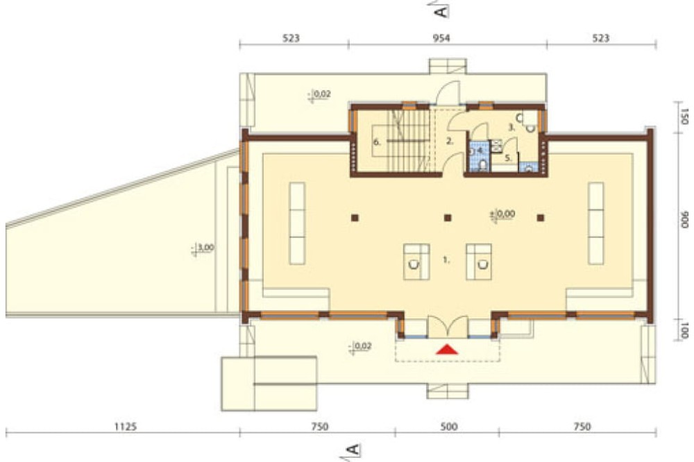
Rzut parteru
Parter: 170.62m2
1. Hala sprzedaży 145.42m2
2. Komunikacja 5.69m2
3. Pomieszczenie socjalne 7.09m2
4. WC 1.50m2
5. Przebieralnia 1.17m2
6. Schody 9.75m2
Na parterze jest główna część handlowa z dużą halą sprzedaży o powierzchni 145.42 m2. Dla pracowników zaprojektowaliśmy pomieszczenie socjalne z przebieralnią oraz WC.
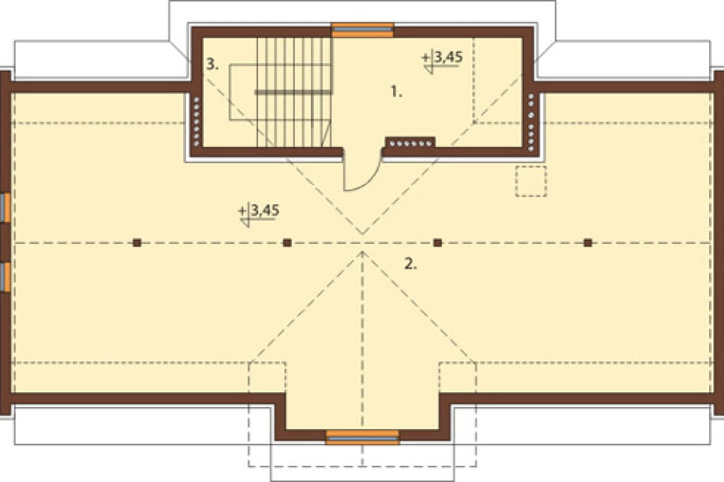
Rzut piętra / antresoli
Przekrój

Model 3D

Elewacje




Informacje podstawowe
Projekt sklepu LK-06B, parterowy z poddaszem do adaptacji, podpiwniczony. Budynek może pełnić funkcję sklepu spożywczego lub przemysłowego.
Technologia: ściany zewnętrzne - pustak ceramiczny, styropian 15 cm, tynk zewnętrzny
Stropy: żelbetowe
Kąt nachylenia dachu: 25°
Ogrzewanie: kotłownia gazowa, pompa ciepła do cwu,
Program użytkowy: sala sprzedaży, zaplecze socjalne, zaplecze sanitarne, zaplecze magazynowe, kotłownia, garaż dwustanowiskowy z częścią gospodarczą, strych (do adaptacji) : powierzchnia nieużytkowa - 132,69 m2
ZAWARTOŚĆ PROJEKTU:
- projekt architektoniczny budowlany
- projekt konstrukcyjny budowlany
- projekt budowlany wewnętrznych instalacji sanitarnych (c.o, wod-kan, gaz, c.w.u)
- projekt budowlany wewnętrznej instalacji elektrycznej oraz instalacji odgromowej
- projektowana charakterystyka energetyczna budynku
- zestawienie materiałów budowlanych
- zestawienie elementów więźby dachowej
- zgoda na zmiany w projekcie
Koszty budowy sprawdź >>
Architekt: Ewa Ferfecka-Homola, Dawid Skowron,
Projekt ten został opracowany zgodnie z normami budowlanymi, w pełnym zakresie wymaganym dla projektów gotowych.
Zawartość projektu sprawdź szczegóły >>
Łączna zawartość obu projektów architektoniczno - budowlanego oraz projektu technicznego, które można zamówić razem lub osobno:
Parametry projektu
Ogólne kategorie, do których należy ten projekt
- Powierzchnia mieszkalna (m²) 0 - 50
- Powierzchnia użytkowa (m²) 300 - 500
- Powierzchnia zabudowy (m²) 150 - 200
- Kąt nachylenia dachu (°) 20 - 25
- Szerokość działki/krótszy bok (m) 20 - 25
- Wysokość budynku (m) 8 - 9
Podstawowe parametry projektu
- Powierzchnia mieszkalna (m²) 0.00
- Powierzchnia użytkowa (m²) 354.44
- Powierzchnia zabudowy (m²) 199.92
- Szerokość budynku/krótszy bok (m) 11.50
- Długość budynku/dłuższy bok (m) 20.00
- Wysokość budynku (m) 8.37
- Szerokość działki/krótszy bok (m) 20.40
- Kąt nachylenia dachu (°) 25°
- Rodzaj dachu dwuspadowy
- Piwnica podpiwniczony
- Garaż z garażem dwustanowiskowym
- Poddasze poddasze nieużytkowe do adaptacji
Uzupełniające parametry projektu
- Układ dachu kalenicowy
- Kubatura (m³) 1985.00
- Liczba kondygnacji 3
- Rodzaj ogrzewania gazowe
- Wskaźnik energii pierwotnej (kWh/(m²·rok)) 58.61
- Liczba pomieszczeń 17
* gwiazdką są oznaczone w parametrach projektu zmiany nieistotne, które nie wymagają przeprojektowania do pozwolenia zamiennego. Do każdego projektu dołączamy bezpłatną zgodę na wprowadzanie zarówno zmian istotnych jak i nieistotnych.
Darmowe dodatki do projektu
- 10 stylowych projektów ogrodzeń
- 10 projektów śmietników
- 5 projektów grilli z funkcją rusztu, kominka i wędzarni
- 6 projektów oczek wodnych
- 6 projektów altan
- 4 projekty huśtawek ogrodowych
- 4 projekty bud dla psów
- 4 projekty szamb o poj. 21,6 m3 / 14,6 m3 / 10 m3 i 6,4 m3
- 2 projekty przydomowej oczyszczalni ścieków. Jeden dla rodziny do 4 osób, drugi dla rodziny do 6 osób
- projekt przydomowej elektrowni wiatrowej
- schemat instalacji fotowoltaicznej
- projekty budek lęgowych dla kilkudziesięciu gatunków ptaków
- zgoda na wszelkie zmiany i adaptacje
Producentem projektu jest:

ul. Cystersów 7B, 31-553 Kraków
e-mail: kbprojekt@kbprojekt.pl
tel. 12 414 35 06
Pomocne informacje
Chcesz wprowadzić zmiany w tym projekcie?
Możemy dostosować go do Twoich potrzeb, napisz co chciałbyś w nim zmienić, przeprojektujemy go tak, aby w pełni odpowiadał Twoim oczekiwaniom
Chcesz dostosować ten projekt we własnym zakresie?
Sprawdź jakie zmiany są nieistotne czyli takie, ktore możesz wprowadzić na etapie budowy zobacz szczegóły >>
Nie możesz znaleźć odpowiedniego projektu?
Chętnie pomożemy. Zadzwoń do nas 12 410 49 70 lub skorzystaj z formularza kontaktowego dostępnego tutaj >>
Szukasz projektu dopasowanego do Twoich potrzeb?
Sprawdź naszą ofertę na projekty domów na indywidualne zamówienie w niezwykle atrakcyjnej cenie zobacz szczegóły >>
Potrzebujesz adaptacji projektu lub pomocy w załatwieniu formalności związanych z budową?
Nasze biuro architektoniczne oferuje pomoc w uzyskaniu pozwolenia na budowę a także wykonuje adaptacje projektów na terenie całej Polski zobacz szczegóły >>
Szukasz sprawdzonego kierownika budowy?
Oferujemy usługi naszych uprawnionych kierowników budowy, którzy przeprowadzą Cię przez cały proces budowlany, od uzyskania pozwolenia na budowę po finalne odbiory zobacz szczegóły >>
Opinie o tym projekcie
Jeśli dodałeś/-aś recenzję, a nie pojawiłą się na liście, być może oczekuje na moderację.


