Sklep parterowy z poddaszem nieużytkowym do adaptacji.
Kod: K-06 B
| W podanej cenie oferujemy 3 kopie projektu architektoniczno-budowlanego potrzebnego do uzyskania pozwolenia na budowę oraz 3 kopie projektu technicznego niezbędnego do prowadzenia budowy sprawdź >> | |
| Projekt wysyłamy w terminie 14 dni roboczych od daty złożenia zamówienia | |
| Parametry projektu zobacz >> | |
| Istnieje również możliwość zakupu wersji elektronicznej (w formacie dwg) projektu architektoniczno - budowlanego skontaktuj się >> | |
| Koszty budowy zobacz >> | |
| Forum dotyczące tego projektu zobacz >> |
| Zmiany istotne i nieistotne, które możesz wprowadzić w tym projekcie sprawdź >> | |
| Adaptacja i pozwolenie na budowę zobacz >> | |
| Jeśli masz pytanie |
Prezentacja projektu
Opis projektu
K-06B. Projekt sklepu, projekt marketu, projekt budynku sprzedaży, projekt sklepu spożywczego, projekt sklepu przemysłowego, projekt budynku usługowego, projekt magazynu, projekt budynku produkcyjnego, projekt budynku biurowego, projekt kawiarni,
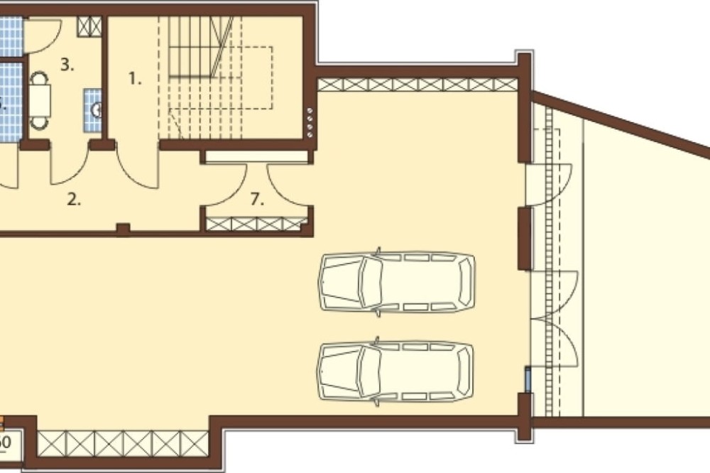
Rzut piwnicy
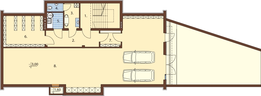
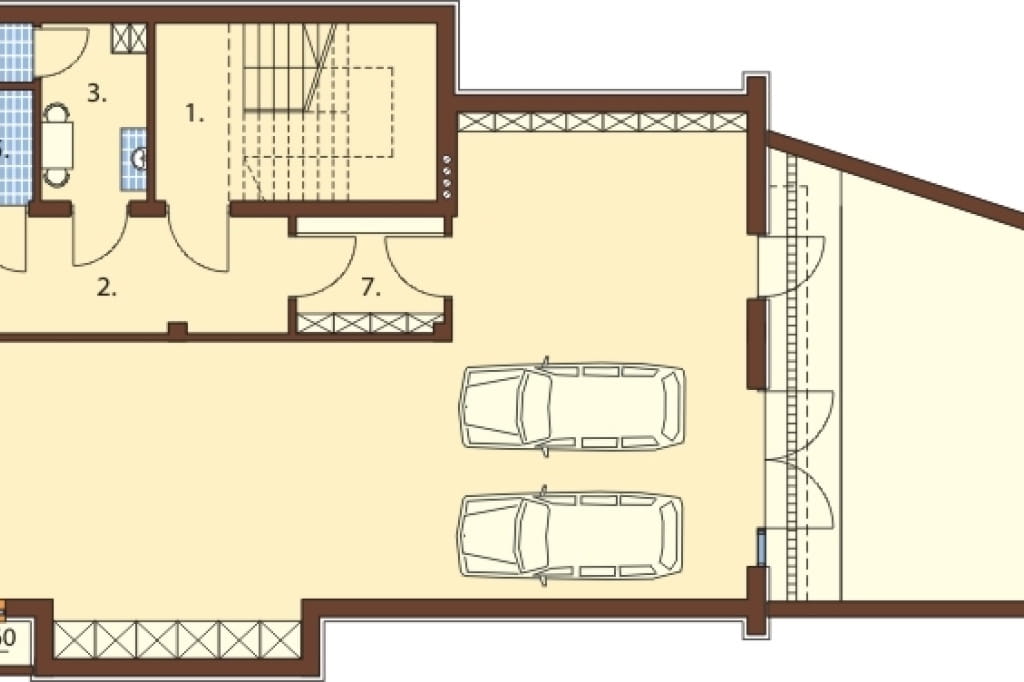
Piwnica: 159,52m2
1. Komunikacja 6.06m2
2. Korytarz 12.55m2
3. Pomieszczenie socjalne 5.40m2
4. WC 1.95m2
5. Kotłownia 3.67m2
6. Magazyn 18.23m2
7. Przedsionek 4.92m2
8. Garaż dwustanowiskowy z częścią zapasową 106.74m2
Projekt posiada pełne podpiwniczenie. Zaprojektowaliśmy w nim garaż dwustanowiskow z częścią zapasową oraz zaplecze sklepu, na które składa się: magazyn, pomieszczenie socjalne, WC i kotłownia.
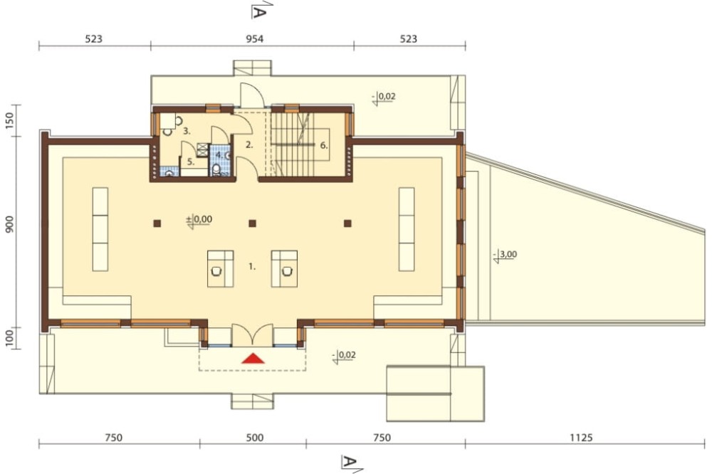
Rzut parteru
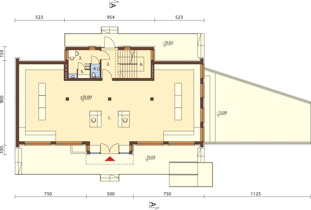
Parter: 170.62m2
1. Hala sprzedaży 145.42m2
2. Komunikacja 5.69m2
3. Pomieszczenie socjalne 7.09m2
4. WC 1.50m2
5. Przebieralnia 1.17m2
6. Schody 9.75m2
Na parterze jest główna część handlowa z dużą halą sprzedaży o powierzchni 145.42 m2. Dla pracowników zaprojektowaliśmy pomieszczenie socjalne z przebieralnią oraz WC.
Rzut piętra / antresoli
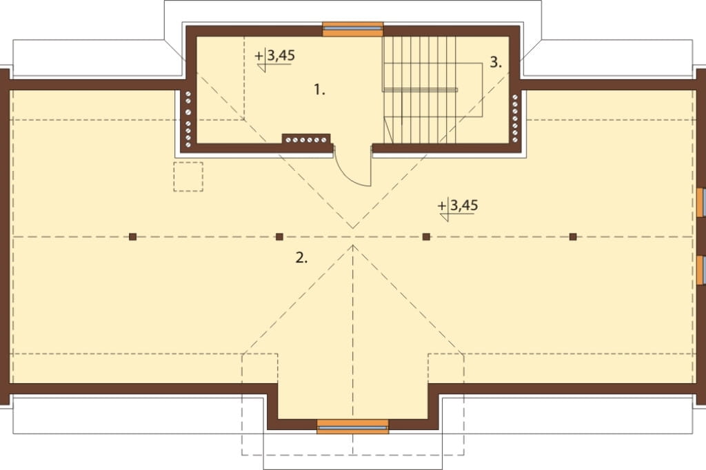
Poddasze nieużytkowe do adaptacji 156.99m2
1. Komunikacja 13.80m2
2. Strych 132.69m2
3. Schody 10.50m2
Poddasze to część do adaptacji, tak więc inwestor ma spore możliwości dostosowania wolnej przestrzenie (132.69 m2) do własnych potrzeb.
Przekrój

Model 3D

Projekt ma bardzo prostą bryłę na planie prostokąta przykrytą dwuspadowym dachem. W architekturze dominują lekkie wysunięcia w części centralnej, zarówno na elewacji frontowej jak i ogrodowej. W elewacji bocznej zaprojektowaliśmy wjazd do garażu znajdującego się w piwnicy. Doskonałe doświetlenie części sklepowej zapewniają duże przeszklenia na froncie. Wymagana szerokość działki dla tego projektu wynosi 20.40 m.
Elewacje




Informacje podstawowe
Projekt sklepu K-06B, parterowy z poddaszem do adaptacji, podpiwniczony. Budynek może pełnić funkcję sklepu spożywczego lub przemysłowego.
Technologia: ściany zewnętrzne - pustak ceramiczny, styropian 1cm, tynk zewnętrzny
Stropy: żelbetowe
Kąt nachylenia dachu: 25°
Ogrzewanie: kotłownia gazowa, pompa ciepła do cwu,
Program użytkowy: sala sprzedaży, zaplecze socjalne, zaplecze sanitarne, zaplecze magazynowe, kotłownia, garaż dwustanowiskowy z częścią gospodarczą, strych (do adaptacji) : powierzchna nieużytkowa - 132,69 m2
Koszty budowy sprawdź >>
Architekt: Ewa Ferfecka-Homola, Dawid Skowron,
Projekt ten został opracowany zgodnie z normami budowlanymi, w pełnym zakresie wymaganym dla projektów gotowych.
Zawartość projektu sprawdź szczegóły >>
Łączna zawartość obu projektów architektoniczno - budowlanego oraz projektu technicznego, które można zamówić razem lub osobno:
- projekt architektoniczny budowlany
- projekt konstrukcyjny budowlany
- projekt budowlany wewnętrznych instalacji sanitarnych (c.o, wod-kan, gaz, c.w.u)
- projekt budowlany wewnętrznej instalacji elektrycznej oraz instalacji odgromowej
- projektowana charakterystyka energetyczna budynku
- zestawienie materiałów budowlanych
- zestawienie elementów więźby dachowej
- zgoda na zmiany w projekcie
Zdjęcia z realizacji zobacz wszystkie >>
Parametry projektu
Ogólne kategorie, do których należy ten projekt
- Powierzchnia mieszkalna (m²) 0 - 50
- Powierzchnia użytkowa (m²) 300 - 500
- Powierzchnia zabudowy (m²) 150 - 200
- Kąt nachylenia dachu (°) 20 - 25
- Szerokość działki/krótszy bok (m) 20 - 25
- Wysokość budynku (m) 8 - 9
Podstawowe parametry projektu
- Powierzchnia mieszkalna (m²) 0.00
- Powierzchnia użytkowa (m²) 354.44
- Powierzchnia zabudowy (m²) 199.92
- Szerokość budynku/krótszy bok (m) 11.50
- Długość budynku/dłuższy bok (m) 20.00
- Wysokość budynku (m) 8.37
- Szerokość działki/krótszy bok (m) 20.40
- Kąt nachylenia dachu (°) 25°
- Rodzaj dachu dwuspadowy
- Piwnica podpiwniczony
- Garaż z garażem dwustanowiskowym
- Poddasze poddasze nieużytkowe do adaptacji
Uzupełniające parametry projektu
- Rodzaj technologii* tradycyjna
- Układ dachu kalenicowy
- Kubatura (m³) 1985.00
- Styl modernistyczny
- Liczba kondygnacji 3
- Rodzaj ogrzewania gazowe
- Wskaźnik energii pierwotnej (kWh/(m²·rok)) 58.61
- Liczba pomieszczeń 17
* gwiazdką są oznaczone w parametrach projektu zmiany nieistotne, które nie wymagają przeprojektowania do pozwolenia zamiennego. Do każdego projektu dołączamy bezpłatną zgodę na wprowadzanie zarówno zmian istotnych jak i nieistotnych.
Darmowe dodatki do projektu
- 10 stylowych projektów ogrodzeń
- 10 projektów śmietników
- 5 projektów grilli z funkcją rusztu, kominka i wędzarni
- 6 projektów oczek wodnych
- 6 projektów altan
- 4 projekty huśtawek ogrodowych
- 4 projekty bud dla psów
- 4 projekty szamb o poj. 21,6 m3 / 14,6 m3 / 10 m3 i 6,4 m3
- 2 projekty przydomowej oczyszczalni ścieków. Jeden dla rodziny do 4 osób, drugi dla rodziny do 6 osób
- projekt przydomowej elektrowni wiatrowej
- schemat instalacji fotowoltaicznej
- projekty budek lęgowych dla kilkudziesięciu gatunków ptaków
- zgoda na wszelkie zmiany i adaptacje
Producentem projektu jest:

ul. Cystersów 7B, 31-553 Kraków
e-mail: kbprojekt@kbprojekt.pl
tel. 12 414 35 06
Pomocne informacje
Chcesz wprowadzić zmiany w tym projekcie?
Możemy dostosować go do Twoich potrzeb, napisz co chciałbyś w nim zmienić, przeprojektujemy go tak, aby w pełni odpowiadał Twoim oczekiwaniom
Chcesz dostosować ten projekt we własnym zakresie?
Sprawdź jakie zmiany są nieistotne czyli takie, ktore możesz wprowadzić na etapie budowy zobacz szczegóły >>
Nie możesz znaleźć odpowiedniego projektu?
Chętnie pomożemy. Zadzwoń do nas 12 410 49 70 lub skorzystaj z formularza kontaktowego dostępnego tutaj >>
Szukasz projektu dopasowanego do Twoich potrzeb?
Sprawdź naszą ofertę na projekty domów na indywidualne zamówienie w niezwykle atrakcyjnej cenie zobacz szczegóły >>
Potrzebujesz adaptacji projektu lub pomocy w załatwieniu formalności związanych z budową?
Nasze biuro architektoniczne oferuje pomoc w uzyskaniu pozwolenia na budowę a także wykonuje adaptacje projektów na terenie całej Polski zobacz szczegóły >>
Szukasz sprawdzonego kierownika budowy?
Oferujemy usługi naszych uprawnionych kierowników budowy, którzy przeprowadzą Cię przez cały proces budowlany, od uzyskania pozwolenia na budowę po finalne odbiory zobacz szczegóły >>
Opinie o tym projekcie
Jeśli dodałeś/-aś recenzję, a nie pojawiłą się na liście, być może oczekuje na moderację.






