Budynek gospodarczy
Kod: ZG-88
| W podanej cenie oferujemy 3 kopie projektu architektoniczno-budowlanego potrzebnego do uzyskania pozwolenia na budowę sprawdź >> | |
| Parametry projektu zobacz >> | |
| Koszty budowy zobacz >> | |
| Forum dotyczące tego projektu zobacz >> |
| Zmiany istotne i nieistotne, które możesz wprowadzić w tym projekcie sprawdź >> | |
| Adaptacja i pozwolenie na budowę zobacz >> | |
| Jeśli masz pytanie |
Prezentacja projektu
Opis projektu
Projekt budynku gospodarczego ZG-88. Budynek parterowy, bez podpiwniczenia. Budynek może służyć jako garaż wielostanowiskowy ale równie dobrze jako dowolnego przeznaczenia budynek wykorzystywany w gospodarstwie. W budynku przewidziano toaletę.
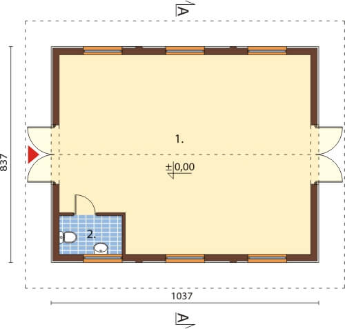
Rzut parteru

Parter:
1 Pomieszczenie gospodarcze 71,41 m2
2. WC 3,63 m2
Program funkcjonalny jest minimalistyczny, składa się na nie: duże pomieszczenie gospodarcze o powierzchni 71 m2, oraz WC. Dzięki takiemu układowi można niemal dowolnie aranżować wnętrze, dzięki czemu ZG-88 jest projektem bardzo uniwersalnym.
Przekrój

Model 3D

ZG-88 nie zajmie wiele miejsca na działce, jego wymiary to 10,37m x 8,37m. Bryła kryta jest dwuspadowym dachem o kącie nachylenia równym 25 stopni. Ściany są z pustaka ceramicznego 25 cm, docieplone styropianem 6 cm. Architektura jest bardzo prosta, co ten projekt wyróżnia to dobre doświetlenie wnętrza dzięki sześciu oknom w elewacji frontowej i ogrodowej.
Elewacje




Informacje podstawowe
Projekt budynku gospodarczego ZG-88. Budynek parterowy, bez podpiwniczenia. Budynek może służyć jako garaż wielostanowiskowy.
Technologia tradycyjna. Ściany zewnętrzne: pustak ceramiczny 25 cm, styropian 6 cm, tynk zewnętrzny. Więźba dachowa prefabrykowana z dźwigarów drewnianych. Kąt nachylenia dachu 25°.
Program: pomieszczenie gospodarcze, łazienka
ZAWARTOŚĆ PROJEKTU:
- projekt architektoniczny budowlany
- projekt konstrukcyjny budowlany
- projekt budowlany wewnętrznych instalacji sanitarnych (wod-kan)
- projekt budowlany wewnętrznej instalacji elektrycznej oraz instalacji odgromowej
- zgoda na zmiany w projekcie
Koszty budowy sprawdź >>
Architekt: Ewa Ferfecka-Homola, Marek Lizak,
Projekt ten został opracowany zgodnie z normami budowlanymi, w pełnym zakresie wymaganym dla projektów gotowych.
Zawartość projektu sprawdź szczegóły >>
Łączna zawartość obu projektów architektoniczno - budowlanego oraz projektu technicznego, które można zamówić razem lub osobno:
Parametry projektu
Ogólne kategorie, do których należy ten projekt
- Powierzchnia mieszkalna (m²) 0 - 50
- Powierzchnia użytkowa (m²) 70 - 100
- Powierzchnia zabudowy (m²) 70 - 100
- Kąt nachylenia dachu (°) 20 - 25
- Szerokość działki/krótszy bok (m) 16 - 18
- Wysokość budynku (m) 5 - 6
Podstawowe parametry projektu
- Powierzchnia mieszkalna (m²) 0.00
- Powierzchnia użytkowa (m²) 75.00
- Powierzchnia zabudowy (m²) 86.80
- Szerokość budynku/krótszy bok (m) 8.37
- Długość budynku/dłuższy bok (m) 10.37
- Wysokość budynku (m) 5.82
- Szerokość działki/krótszy bok (m) 16.40
- Kąt nachylenia dachu (°) 25°
- Rodzaj dachu dwuspadowy
- Piwnica bez podpiwniczenia
- Garaż z garażem
- Poddasze brak poddasza
Uzupełniające parametry projektu
- Rodzaj technologii* tradycyjna
- Układ dachu szczytowy
- Kubatura (m³) 406.40
- Liczba kondygnacji 1
- Liczba pomieszczeń 2
* gwiazdką są oznaczone w parametrach projektu zmiany nieistotne, które nie wymagają przeprojektowania do pozwolenia zamiennego. Do każdego projektu dołączamy bezpłatną zgodę na wprowadzanie zarówno zmian istotnych jak i nieistotnych.
Darmowe dodatki do projektu
- 10 stylowych projektów ogrodzeń
- 10 projektów śmietników
- 5 projektów grilli z funkcją rusztu, kominka i wędzarni
- 6 projektów oczek wodnych
- 6 projektów altan
- 4 projekty huśtawek ogrodowych
- 4 projekty bud dla psów
- 4 projekty szamb o poj. 21,6 m3 / 14,6 m3 / 10 m3 i 6,4 m3
- 2 projekty przydomowej oczyszczalni ścieków. Jeden dla rodziny do 4 osób, drugi dla rodziny do 6 osób
- projekt przydomowej elektrowni wiatrowej
- schemat instalacji fotowoltaicznej
- projekty budek lęgowych dla kilkudziesięciu gatunków ptaków
- zgoda na wszelkie zmiany i adaptacje
Producentem projektu jest:

ul. Cystersów 7B, 31-553 Kraków
e-mail: kbprojekt@kbprojekt.pl
tel. 12 414 35 06
Pomocne informacje
Chcesz wprowadzić zmiany w tym projekcie?
Możemy dostosować go do Twoich potrzeb, napisz co chciałbyś w nim zmienić, przeprojektujemy go tak, aby w pełni odpowiadał Twoim oczekiwaniom
Chcesz dostosować ten projekt we własnym zakresie?
Sprawdź jakie zmiany są nieistotne czyli takie, ktore możesz wprowadzić na etapie budowy zobacz szczegóły >>
Nie możesz znaleźć odpowiedniego projektu?
Chętnie pomożemy. Zadzwoń do nas 12 410 49 70 lub skorzystaj z formularza kontaktowego dostępnego tutaj >>
Szukasz projektu dopasowanego do Twoich potrzeb?
Sprawdź naszą ofertę na projekty domów na indywidualne zamówienie w niezwykle atrakcyjnej cenie zobacz szczegóły >>
Potrzebujesz adaptacji projektu lub pomocy w załatwieniu formalności związanych z budową?
Nasze biuro architektoniczne oferuje pomoc w uzyskaniu pozwolenia na budowę a także wykonuje adaptacje projektów na terenie całej Polski zobacz szczegóły >>
Szukasz sprawdzonego kierownika budowy?
Oferujemy usługi naszych uprawnionych kierowników budowy, którzy przeprowadzą Cię przez cały proces budowlany, od uzyskania pozwolenia na budowę po finalne odbiory zobacz szczegóły >>
Opinie o tym projekcie
Jeśli dodałeś/-aś recenzję, a nie pojawiłą się na liście, być może oczekuje na moderację.