Stajnia
Kod: ZG-84
| W podanej cenie oferujemy 3 kopie projektu architektoniczno-budowlanego potrzebnego do uzyskania pozwolenia na budowę sprawdź >> | |
| Parametry projektu zobacz >> | |
| Koszty budowy zobacz >> | |
| Forum dotyczące tego projektu zobacz >> |
| Zmiany istotne i nieistotne, które możesz wprowadzić w tym projekcie sprawdź >> | |
| Adaptacja i pozwolenie na budowę zobacz >> | |
| Jeśli masz pytanie |
Prezentacja projektu
Opis projektu
Projekt budynku pełniącego funkcję stajni dla koni średnich i dużych ZG-84, parterowy, niepodpiwniczony. Budynek został zaprojektowany na 6 boksów dla koni. Dodatkowo zaprojektowano skład słomy i siana, skład paszy, pomieszczenie gospodarcze oraz WC.
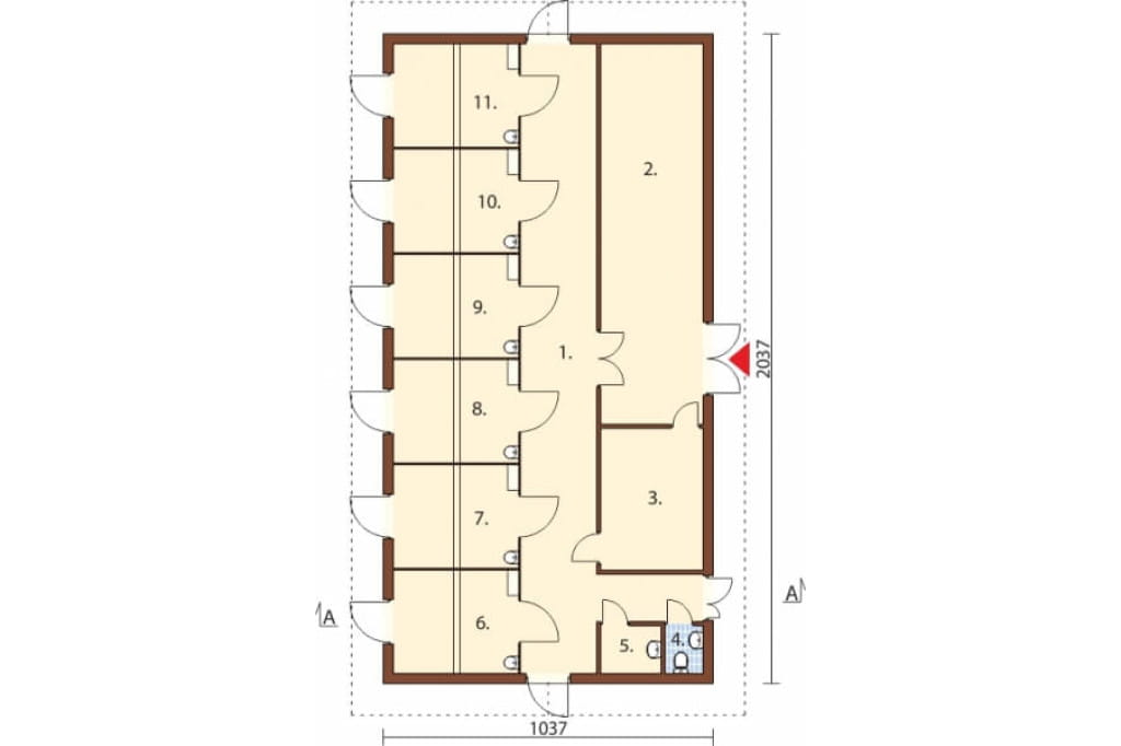
Rzut parteru

1. Komunikacja 52,6 m
2. Skład słomy i siana 38,6 m
3. Skład paszy 14,4 m
4. WC 1,8 m
5. Pomieszczenie gospodarcze 2,9 m
6. Boks I 12,8 m
7. Boks II 12,8 m
8. Boks III 12,8 m
9. Boks IV 12,8 m
10. Boks V 12,8 m
11. Boks VI 12,8 m2
Program funkcjonalny pomieszczeń przewiduje bardzo komfortowe warunki dla sześciu koni, z których każdy będzie miał osobny boks. Boksy są odpowiednio doświetlone i wentylowane. Do magazynowania pokarmu dla zwierząt przygotowane są dwa pomieszczenia; większe na słomę i siano oraz mniejsze na paszę. Dla osób pracujących w stajni jest małe WC i osobne pomieszczenie gospodarcze.
Przekrój

Model 3D

Budynek można posadowić na większości średniej wielkości działek, minimalna wymagana szerokość to 18,4 m. ZG-84 ma bryłę na planie prostopadłościanu krytego dwuspadowym dachem o kącie nachylenia równym 25 stopni. Do każdego z boksów dla koni prowadzi osobne wejście, od strony elewacji bocznych są wejścia dla pracowników, a do pomieszczenia na paszę i słomę jest osobne, odpowiednio szerokie wejście od strony elewacji frontowej.
Elewacje




Informacje podstawowe
Projekt budynku pełniącego funkcję stajni dla koni średnich i dużych ZG-84, parterowy, niepodpiwniczony.
Technologia tradycyjna. Ściany zewnętrzne: pustak ceramiczny 25 cm, styropian 6 cm, tynk zewnętrzny. Więźba dachowa prefabrykowana z dźwigarów drewnianych. Kąt nachylenia dachu 25°.
Pokrycia dachu: blacha dachówkowa
Program: 6 boksó dla koni, skład słomy i siana, skład paszy, pomieszczenie gospodarcze, WC. Każdy boks przystosowany jest dla jednego konia.
Koszty budowy sprawdź >>
Architekt: Ewa Ferfecka-Homola, Marek Lizak,
Projekt ten został opracowany zgodnie z normami budowlanymi, w pełnym zakresie wymaganym dla projektów gotowych.
Zawartość projektu sprawdź szczegóły >>
Łączna zawartość obu projektów architektoniczno - budowlanego oraz projektu technicznego, które można zamówić razem lub osobno:
Parametry projektu
Ogólne kategorie, do których należy ten projekt
- Powierzchnia mieszkalna (m²) 0 - 50
- Powierzchnia użytkowa (m²) 150 - 200
- Powierzchnia zabudowy (m²) 200 - 300
- Kąt nachylenia dachu (°) 20 - 25
- Szerokość działki/krótszy bok (m) 18 - 20
- Wysokość budynku (m) 6 - 7
Podstawowe parametry projektu
- Powierzchnia mieszkalna (m²) 0.00
- Powierzchnia użytkowa (m²) 187.10
- Powierzchnia zabudowy (m²) 211.20
- Szerokość budynku/krótszy bok (m) 10.37
- Długość budynku/dłuższy bok (m) 20.37
- Wysokość budynku (m) 6.33
- Szerokość działki/krótszy bok (m) 18.40
- Kąt nachylenia dachu (°) 25°
- Rodzaj dachu dwuspadowy
- Piwnica bez podpiwniczenia
- Garaż bez garażu
- Poddasze brak poddasza
Uzupełniające parametry projektu
- Rodzaj technologii* tradycyjna
- Układ dachu kalenicowy
- Kubatura (m³) 1093.30
- Liczba kondygnacji 1
- Liczba pomieszczeń 11
* gwiazdką są oznaczone w parametrach projektu zmiany nieistotne, które nie wymagają przeprojektowania do pozwolenia zamiennego. Do każdego projektu dołączamy bezpłatną zgodę na wprowadzanie zarówno zmian istotnych jak i nieistotnych.
Projekty domów można również przeglądać analizując zestawienia rzutów parterów kliknij tutaj >>
Darmowe dodatki do projektu
- 10 stylowych projektów ogrodzeń
- 10 projektów śmietników
- 5 projektów grilli z funkcją rusztu, kominka i wędzarni
- 6 projektów oczek wodnych
- 6 projektów altan
- 4 projekty huśtawek ogrodowych
- 4 projekty bud dla psów
- 4 projekty szamb o poj. 21,6 m3 / 14,6 m3 / 10 m3 i 6,4 m3
- 2 projekty przydomowej oczyszczalni ścieków. Jeden dla rodziny do 4 osób, drugi dla rodziny do 6 osób
- projekt przydomowej elektrowni wiatrowej
- schemat instalacji fotowoltaicznej
- projekty budek lęgowych dla kilkudziesięciu gatunków ptaków
- zgoda na wszelkie zmiany i adaptacje
Producentem projektu jest:

ul. Cystersów 7B, 31-553 Kraków
e-mail: kbprojekt@kbprojekt.pl
tel. 12 414 35 06
Pomocne informacje
Chcesz wprowadzić zmiany w tym projekcie?
Możemy dostosować go do Twoich potrzeb, napisz co chciałbyś w nim zmienić, przeprojektujemy go tak, aby w pełni odpowiadał Twoim oczekiwaniom
Chcesz dostosować ten projekt we własnym zakresie?
Sprawdź jakie zmiany są nieistotne czyli takie, ktore możesz wprowadzić na etapie budowy zobacz szczegóły >>
Nie możesz znaleźć odpowiedniego projektu?
Chętnie pomożemy. Zadzwoń do nas 12 410 49 70 lub skorzystaj z formularza kontaktowego dostępnego tutaj >>
Szukasz projektu dopasowanego do Twoich potrzeb?
Sprawdź naszą ofertę na projekty domów na indywidualne zamówienie w niezwykle atrakcyjnej cenie zobacz szczegóły >>
Potrzebujesz adaptacji projektu lub pomocy w załatwieniu formalności związanych z budową?
Nasze biuro architektoniczne oferuje pomoc w uzyskaniu pozwolenia na budowę a także wykonuje adaptacje projektów na terenie całej Polski zobacz szczegóły >>
Szukasz sprawdzonego kierownika budowy?
Oferujemy usługi naszych uprawnionych kierowników budowy, którzy przeprowadzą Cię przez cały proces budowlany, od uzyskania pozwolenia na budowę po finalne odbiory zobacz szczegóły >>
Opinie o tym projekcie
Jeśli dodałeś/-aś recenzję, a nie pojawiłą się na liście, być może oczekuje na moderację.