Szopa, Zagroda, Kurnik
Kod: ZG-62
| W podanej cenie oferujemy 3 kopie projektu architektoniczno-budowlanego potrzebnego do uzyskania pozwolenia na budowę sprawdź >> | |
| Parametry projektu zobacz >> | |
| Koszty budowy zobacz >> | |
| Forum dotyczące tego projektu zobacz >> |
| Zmiany istotne i nieistotne, które możesz wprowadzić w tym projekcie sprawdź >> | |
| Adaptacja i pozwolenie na budowę zobacz >> | |
| Jeśli masz pytanie |
Prezentacja projektu
Opis projektu
Projekt budynku gospodarczego ZG-62. Budynek parterowy ze strychem częściowym oraz częściowym podpiwniczeniem. Drewniany budynek o zgrabnej architekturze do wykorzystania w celach gospodarczych.
Rzut piwnicy

1.Piwnice: 52,10 m2
2. Piwnica 25,7 m2
3. Hydrofor 21,0 m2
4. Komunikacja 5,4 m2
W piwnicy zaplanowano dwa przestronne pomieszczenia. Są one rozświetlone światłem naturalnym poprzez specjalną konstrukcję studzienki doświetlającej. Dzięki temu przestrzeń będzie przyjemniejsza i bardziej słoneczna. Można ją oczywiście dostosować do swoich potrzeb i składować tu dowolne przedmioty.
Rzut parteru

Parter: 75,20 m2
1. Kurnik 8,3 m2
2. Pomieszczenie gospodarcze 16,9 m2
3. WC 2,2 m2
4. Komunikacja 4,0 m2
5. Szopa 43,9 m2
6. Zagroda 23,5 m2 Na parterze wydzielono dwie strefy. Pierwszą z nich stanowi szopa, która równie dobrze może posłużyć jako garaż samochodowy. W drugiej wyodrębniono kilka pomieszczeń, które mają dodatkowo ułatwić pracę. Znalazł się tu kurnik oraz przestrzeń gospodarcza oddzielone za pomocą ścianki działowej, którą w razie potrzeb można zlikwidować.
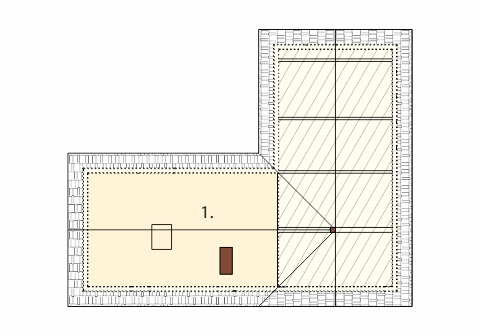
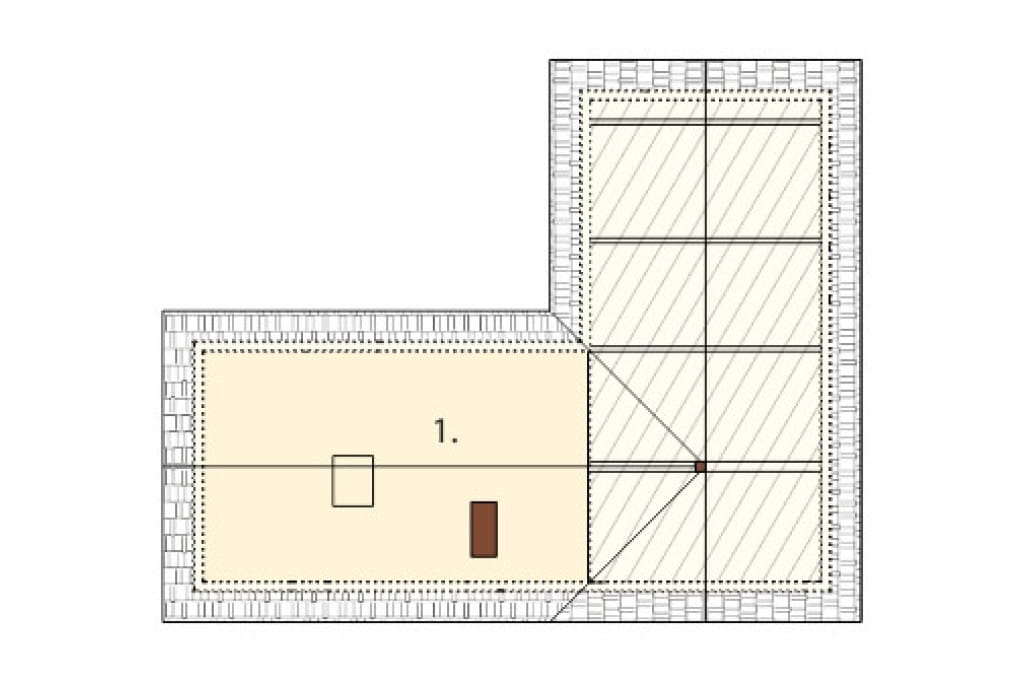
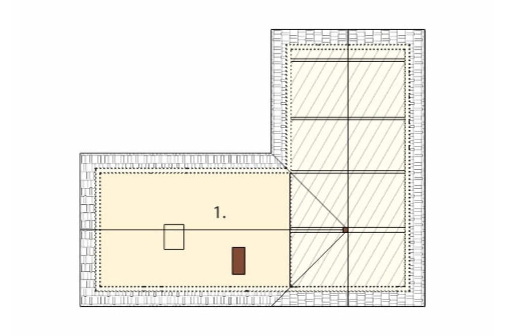
Rzut piętra / antresoli

1. Strych 4,7 / 33,5 m2
Na poddaszu zaplanowano strych. Powiększa on dodatkowo przestrzeń i można w nim składować rzeczy rzadziej używane lub takie, które nie mieszczą się w innych pomieszczeniach.
Przekrój

Model 3D

Elewacje




Informacje podstawowe
Projekt budynku gospodarczego ZG-62. Budynek parterowy ze strychem częściowym oraz częściowym podpiwniczeniem. Technologia drewniana szkieletowa. Ściany zewnętrzne: słupki drewniane 6x16 i 16x16 cm, pomiędzy słupkami wełna mineralna, od wewnątrz płyty GKF, od zewnątrz panele drewniane. Strop nad piwnicą: żelbetowy, nad parterem: drewniany. Kąt nachylenia dachu 45°.
Program: piwnica, hydrofor, pomieszczenie gospodarcze, kurnik, WC, szopa, strych, zagroda.
ZAWARTOŚĆ PROJEKTU:
- projekt architektoniczny budowlany
- projekt konstrukcyjny budowlany
- projekt budowlany wewnętrznych instalacji sanitarnych (wod-kan)
- projekt budowlany wewnętrznej instalacji elektrycznej oraz instalacji odgromowej
- zestawienie materiałów budowlanych
- zestawienie elementów więźby dachowej
- zgoda na zmiany w projekcie
Koszty budowy sprawdź >>
Architekt: Ewa Ferfecka-Homola, Łukasz Szczepaniak,
Projekt ten został opracowany zgodnie z normami budowlanymi, w pełnym zakresie wymaganym dla projektów gotowych.
Zawartość projektu sprawdź szczegóły >>
Łączna zawartość obu projektów architektoniczno - budowlanego oraz projektu technicznego, które można zamówić razem lub osobno:
Parametry projektu
Ogólne kategorie, do których należy ten projekt
- Powierzchnia mieszkalna (m²) 0 - 50
- Powierzchnia użytkowa (m²) 100 - 150
- Powierzchnia zabudowy (m²) 70 - 100
- Kąt nachylenia dachu (°) 40 - 45
- Szerokość działki/krótszy bok (m) 18 - 20
- Wysokość budynku (m) 5 - 6
Podstawowe parametry projektu
- Powierzchnia mieszkalna (m²) 10.80
- Powierzchnia użytkowa (m²) 131.90
- Powierzchnia zabudowy (m²) 88.60
- Szerokość budynku/krótszy bok (m) 10
- Długość budynku/dłuższy bok (m) 12.71
- Wysokość budynku (m) 5.7
- Szerokość działki/krótszy bok (m) 19.71
- Kąt nachylenia dachu (°) 45°
- Rodzaj dachu dwuspadowy
- Piwnica częściowo podpiwniczony
- Poddasze strych
Uzupełniające parametry projektu
- Rodzaj technologii* szkieletowa / drewniana
- Układ dachu kalenicowy
- Kubatura (m³) 662.20
- Liczba kondygnacji 2
- Liczba pomieszczeń 11
* gwiazdką są oznaczone w parametrach projektu zmiany nieistotne, które nie wymagają przeprojektowania do pozwolenia zamiennego. Do każdego projektu dołączamy bezpłatną zgodę na wprowadzanie zarówno zmian istotnych jak i nieistotnych.
Darmowe dodatki do projektu
- 10 stylowych projektów ogrodzeń
- 10 projektów śmietników
- 5 projektów grilli z funkcją rusztu, kominka i wędzarni
- 6 projektów oczek wodnych
- 6 projektów altan
- 4 projekty huśtawek ogrodowych
- 4 projekty bud dla psów
- 4 projekty szamb o poj. 21,6 m3 / 14,6 m3 / 10 m3 i 6,4 m3
- 2 projekty przydomowej oczyszczalni ścieków. Jeden dla rodziny do 4 osób, drugi dla rodziny do 6 osób
- projekt przydomowej elektrowni wiatrowej
- schemat instalacji fotowoltaicznej
- projekty budek lęgowych dla kilkudziesięciu gatunków ptaków
- zgoda na wszelkie zmiany i adaptacje
Producentem projektu jest:

ul. Cystersów 7B, 31-553 Kraków
e-mail: kbprojekt@kbprojekt.pl
tel. 12 414 35 06
Pomocne informacje
Chcesz wprowadzić zmiany w tym projekcie?
Możemy dostosować go do Twoich potrzeb, napisz co chciałbyś w nim zmienić, przeprojektujemy go tak, aby w pełni odpowiadał Twoim oczekiwaniom
Chcesz dostosować ten projekt we własnym zakresie?
Sprawdź jakie zmiany są nieistotne czyli takie, ktore możesz wprowadzić na etapie budowy zobacz szczegóły >>
Nie możesz znaleźć odpowiedniego projektu?
Chętnie pomożemy. Zadzwoń do nas 12 410 49 70 lub skorzystaj z formularza kontaktowego dostępnego tutaj >>
Szukasz projektu dopasowanego do Twoich potrzeb?
Sprawdź naszą ofertę na projekty domów na indywidualne zamówienie w niezwykle atrakcyjnej cenie zobacz szczegóły >>
Potrzebujesz adaptacji projektu lub pomocy w załatwieniu formalności związanych z budową?
Nasze biuro architektoniczne oferuje pomoc w uzyskaniu pozwolenia na budowę a także wykonuje adaptacje projektów na terenie całej Polski zobacz szczegóły >>
Szukasz sprawdzonego kierownika budowy?
Oferujemy usługi naszych uprawnionych kierowników budowy, którzy przeprowadzą Cię przez cały proces budowlany, od uzyskania pozwolenia na budowę po finalne odbiory zobacz szczegóły >>
Opinie o tym projekcie
Jeśli dodałeś/-aś recenzję, a nie pojawiłą się na liście, być może oczekuje na moderację.