Pensjonat, Dom weselny
Kod: LK-31
| W podanej cenie oferujemy 3 kopie projektu architektoniczno-budowlanego potrzebnego do uzyskania pozwolenia na budowę oraz 3 kopie projektu technicznego niezbędnego do prowadzenia budowy sprawdź >> | |
| Projekt wysyłamy w terminie 14 dni roboczych od daty złożenia zamówienia | |
| Parametry projektu zobacz >> | |
| Istnieje również możliwość zakupu wersji elektronicznej (w formacie dwg) projektu architektoniczno - budowlanego skontaktuj się >> | |
| Koszty budowy zobacz >> | |
| Forum dotyczące tego projektu zobacz >> |
| Zmiany istotne i nieistotne, które możesz wprowadzić w tym projekcie sprawdź >> | |
| Adaptacja i pozwolenie na budowę zobacz >> | |
| Jeśli masz pytanie |
Prezentacja projektu
Opis projektu
LK-31. Projekt pensjonatu, projekt domu weselnego, projekt hotelu, projekt motelu, projekt karczmy, projekt zajazdu, projekt restauracji, projekt budynku noclegowego, projekt domu opieki, projekt domu spokojnej starości, projekt sanatorium, projekt hali
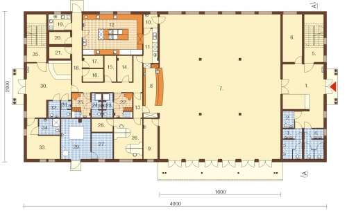
Rzut parteru
Parter: 722,20 m²
1. Hall + szatnia 41,8 m²
2. WC dla osób niepełnosprawnych 3,4 m²
3. WC męski 10,1 m²
4. WC damski 10,1 m²
5. Klatka schodowa 18,9 m²
6. Biuro 16,6 m²
7. Sala konsumpcyjna 307,8 m²
8. Bar 14,3 m²
9. Magazyn porządkowy 10,2 m²
10. Rozdzielnia 3,4 m²
11. Zmywalnia 9,2 m²
12. Kuchnia 42,4 m²
13. Korytarz 3,9 m²
14. Mag. naczyń stołowych 6,9 m²
15. Mag. produktów suchych 5,5 m²
16. Magazyn napojów 4,7 m²
17. Magazyn 4,4 m²
18. Korytarz 28,2 m²
19. Obieralnia / wyparzalnia jaj 6,4 m²
20. Chłodnia 4,7 m²
21. Mag. owoce / warzywa 4,5 m²
22. Pomieszczenie socjalne 8,0 m²
23. WC + natrysk 4,2 m²
24. WC + natrysk 4,2 m²
25. Pomieszczenie socjalne 8,0 m²
26. Biuro 20,3 m²
27. Skład opału 9,9 m²
28. Archiwum 5,0 m²
29. Kotłownia 21,0 m²
30. Hall + recepcja 36,0 mV
31. WC 2,9 m²
32. WC dla osób niepełnosprawnych 3,5 m²
33. Pokój dla osób niepełnosprawnych 17,1 m²
34. Łazienka dla osób niepełnosprawnych 5,9 m²
35. Klatka schodowa 18,9 m²
Po wejściu do budynku mamy hal, szatnię, sanitariaty, pomieszczenie na biuro i schody na poddasze. W tym projekcie na parterze zaprojektowaliśmy dużą salę bankietową na 200 osób, która jest doskonale doświetlona dzięki licznym przeszkleniom w elewacji frontowej i ogrodowej. Na końcu sali jest bar, z którego mogą korzystać goście. Dla pracowników przygotowaliśmy pomieszczenie porządkowe, pokój socjalny i biurowy z archiwum. Do przygotowania posiłków będzie służyć kuchnia z pomieszczeniami towarzyszącymi. Zaraz przy wejściu jest recepcja oraz pokój z łazienką dostosowany do potrzeb osób niepełnosprawnych. W programie są także pomieszczenia magazynowe i kotłownia z osobnym wejściem z zewnątrz.
Rzut piętra / antresoli
Poddasze: 582,90 m²
1. Komunikacja 4,5 m²
2. Hall 143,7 m²
3. WC 3,6 m²
4. Sala konferencyjna 57,5 m²
5. Sala konferencyjna 57,5 m²
6. WC 3,6 m²
7. Komunikacja 4,5 m²
8. Hall 4,8 m²
9. Mag. bielizny brudnej 2,8 m²
10. Mag. bielizny czystej 5,9 m²
11. Mag. środków czystości 3,8 m²
12. Pokój z łazienką 17,6 m²
13. Pokój z łazienką 17,5 m²
14. Pokój z łazienką 17,7 m²
15. Pokój z łazienką 17,5 m²
16. Pokój z łazienką 17,7 m²
17. Pokój z łazienką 17,7 m²
18. Pokój z łazienką 17,9 m²
19. Apartament: salon z aneksem kuchennym, pokój, łazienka 30,3 m²
20. Pokój z łazienką 17,7 m²
21. Pokój z łazienką 17,7 m²
22. Pokój z łazienką 17,5 m²
23. Pokój z łazienką 17,7 m²
24. Pokój z łazienką 17,7 m²
25. Pokój z łazienką 17,7 m²
26. Apartament: salon z aneksem kuchennym, pokój, łazienka 30,3 m²
Na poddaszu zaprojektowaliśmy 13 pokoi noclegowych z łazienkami, oraz dwa apartamenty składające się z salonu z aneksem kuchennym, pokoju i łazienki. Obydwa apartamenty mają po 30,3 m2. Dwie sale konferencyjne to duży atut, dający możliwość poszerzenia oferowanej palety usług. W programie są także pomieszczenia magazynowe na bieliznę czystą i brudną oraz sanitariaty.
Przekrój

Model 3D

Bryła budynku na planie prostokąta jest niezwykle prosta dzięki czemu budowa przebiegnie szybko i sprawnie. Projekt ma kilka ciekawych elementów wzbogacających architekturę obiektu. Zaliczyć do nich można na pewno elegancki balkon na poddaszu, który podtrzymują cztery smukłe kolumny. W elewacji bocznej nad wejściem do sali bankietowej zaprojektowaliśmy daszek, który będzie osłaniał gości wchodzących do budynku. Do realizacji projektu będzie potrzebna działka o szerokości 28m.
Elewacje




Informacje podstawowe
Projekt budynku gastronomicznego z zapleczem noclegowo-konferencyjnym LK-31, parterowy z poddaszem użytkowym, bez podpiwniczenia, mogący pełnić funkcję domu weselnego, pensjonatu motelu lub zajazdu. Budynek można również zaadaptować na dom opieki dla osób starszych.
Technologia tradycyjna: ściany zewnętrzne - pustak ceramiczny 25 cm, styropian 15 cm, tynk zewnętrzny.
Stropy: nad parterem TERIVA, nad poddaszem drewniany.
Kąt nachylenia dachu: 25°.
Pokrycie dachu: blacha dachówkowa. Sale konferencyjne doświetlone za pomocą świetlików tunelowych.
Ogrzewanie: kotłownia na paliwo stałe.
Program: sala bankietowa dla ok. 200 osób, kuchnia z zapleczem, zaplecze sanitarne, zaplecze socjalne, zaplecze biurowe, zaplecze magazynowe, 13 dwuosobowych pokoi noclegowych z łazienkami, 2 apartamenty, pokój dla osoby niepełnosprawnej, 2 sale konferencyjne, kotłownia, skład opału.
ZAWARTOŚĆ PROJEKTU:
- projekt architektoniczny budowlany
- projekt konstrukcyjny budowlany
- projekt budowlany wewnętrznych instalacji sanitarnych (c.o, wod-kan, gaz, wentylacja mechaniczna kuchni, wentylacja wywiewna sali bankietowej, wentylacja mechaniczna nawiewno wywiewna sal konferencyjnych, hydranty p.poż., projekt kotłowni)
- projekt budowlany wewnętrznej instalacji elektrycznej oraz instalacji odgromowej (w tym m.in: p.poż. wyłącznik prądu, oświetlenie, awaryjne oświetlenie ewakuacyjne)
- przedmiar robót budowlanych
- zestawienie elementów więźby dachowej
- zgoda na zmiany w projekcie
DOSTĘPNA JEST RÓWNIEŻ WERSJA Z DACHEM O NACHYLENIU 35 STOPNI.
Koszty budowy sprawdź >>
Architekt: Ewa Ferfecka-Homola, Jaromir Mruk,
Projekt ten został opracowany zgodnie z normami budowlanymi, w pełnym zakresie wymaganym dla projektów gotowych.
Zawartość projektu sprawdź szczegóły >>
Łączna zawartość obu projektów architektoniczno - budowlanego oraz projektu technicznego, które można zamówić razem lub osobno:
Parametry projektu
Ogólne kategorie, do których należy ten projekt
- Powierzchnia mieszkalna (m²) 1000 - 2000
- Powierzchnia użytkowa (m²) 1000 - 2000
- Powierzchnia zabudowy (m²) 500 - 1000
- Kąt nachylenia dachu (°) 20 - 25
- Szerokość działki/krótszy bok (m) 25 - 30
- Wysokość budynku (m) 9 - 10
Podstawowe parametry projektu
- Powierzchnia mieszkalna (m²) 1284.10
- Powierzchnia użytkowa (m²) 1305.10
- Powierzchnia zabudowy (m²) 800.00
- Szerokość budynku/krótszy bok (m) 20
- Długość budynku/dłuższy bok (m) 40
- Wysokość budynku (m) 9.9
- Szerokość działki/krótszy bok (m) 28.00
- Kąt nachylenia dachu (°) 25°
- Rodzaj dachu dwuspadowy
- Piwnica bez podpiwniczenia
- Garaż bez garażu
- Poddasze poddasze użytkowe
Uzupełniające parametry projektu
- Rodzaj technologii* tradycyjna
- Układ dachu kalenicowy
- Kubatura (m³) 6004.90
- Liczba kondygnacji 2
- Rodzaj ogrzewania paliwo stałe
- Liczba pomieszczeń 61
- Liczba łazienek (bez WC) 11 - 15
* gwiazdką są oznaczone w parametrach projektu zmiany nieistotne, które nie wymagają przeprojektowania do pozwolenia zamiennego. Do każdego projektu dołączamy bezpłatną zgodę na wprowadzanie zarówno zmian istotnych jak i nieistotnych.
Darmowe dodatki do projektu
- 10 stylowych projektów ogrodzeń
- 10 projektów śmietników
- 5 projektów grilli z funkcją rusztu, kominka i wędzarni
- 6 projektów oczek wodnych
- 6 projektów altan
- 4 projekty huśtawek ogrodowych
- 4 projekty bud dla psów
- 4 projekty szamb o poj. 21,6 m3 / 14,6 m3 / 10 m3 i 6,4 m3
- 2 projekty przydomowej oczyszczalni ścieków. Jeden dla rodziny do 4 osób, drugi dla rodziny do 6 osób
- projekt przydomowej elektrowni wiatrowej
- schemat instalacji fotowoltaicznej
- projekty budek lęgowych dla kilkudziesięciu gatunków ptaków
- zgoda na wszelkie zmiany i adaptacje
Producentem projektu jest:

ul. Cystersów 7B, 31-553 Kraków
e-mail: kbprojekt@kbprojekt.pl
tel. 12 414 35 06
Pomocne informacje
Chcesz wprowadzić zmiany w tym projekcie?
Możemy dostosować go do Twoich potrzeb, napisz co chciałbyś w nim zmienić, przeprojektujemy go tak, aby w pełni odpowiadał Twoim oczekiwaniom
Chcesz dostosować ten projekt we własnym zakresie?
Sprawdź jakie zmiany są nieistotne czyli takie, ktore możesz wprowadzić na etapie budowy zobacz szczegóły >>
Nie możesz znaleźć odpowiedniego projektu?
Chętnie pomożemy. Zadzwoń do nas 12 410 49 70 lub skorzystaj z formularza kontaktowego dostępnego tutaj >>
Szukasz projektu dopasowanego do Twoich potrzeb?
Sprawdź naszą ofertę na projekty domów na indywidualne zamówienie w niezwykle atrakcyjnej cenie zobacz szczegóły >>
Potrzebujesz adaptacji projektu lub pomocy w załatwieniu formalności związanych z budową?
Nasze biuro architektoniczne oferuje pomoc w uzyskaniu pozwolenia na budowę a także wykonuje adaptacje projektów na terenie całej Polski zobacz szczegóły >>
Szukasz sprawdzonego kierownika budowy?
Oferujemy usługi naszych uprawnionych kierowników budowy, którzy przeprowadzą Cię przez cały proces budowlany, od uzyskania pozwolenia na budowę po finalne odbiory zobacz szczegóły >>
Opinie o tym projekcie
Jeśli dodałeś/-aś recenzję, a nie pojawiłą się na liście, być może oczekuje na moderację.

