Podbiele 2
Kod: L-6482
| Projekt na zamówienie dostępny w terminie ustalonym z biurem skontaktuj się >> | |
| W podanej cenie oferujemy 3 kopie projektu architektoniczno-budowlanego potrzebnego do uzyskania pozwolenia na budowę sprawdź >> | |
| Parametry projektu zobacz >> | |
| Odbicie lustrzane projektu zobacz >> | |
| Koszty budowy zobacz >> | |
| Forum dotyczące tego projektu zobacz >> |
| Zmiany istotne i nieistotne, które możesz wprowadzić w tym projekcie sprawdź >> | |
| Adaptacja i pozwolenie na budowę zobacz >> | |
| Jeśli masz pytanie |
Prezentacja projektu
Opis projektu
Projekt domu PODBIELE 2, L-6482. Budynek parterowy z poddaszem mieszkalnym, podpiwniczony. To projekt domu jednorodzinnego o bardzo interesującej bryle, która wyróżnia się ciekawym połączeniem domu z garażem. W tym projekcie zastosowaliśmy technologię YTONG co wpłynie pozytywnie na czas realizacji.
Rzut piwnicy

1. Hall + komunikacja 13,5 m2
2. Pralnia 7,4 m2
3. Garderoba 7,2 m2
4. Pom. gospodarcze 23,9 m2
5. Kotłownia 16,0 m2
W podpiwniczeniu znajduje się strefa techniczno gospodarcza. Zaprojektowaliśmy tutaj duże pomieszczenie gospodarcze, kotłownię, pralnię i garderobę.
Rzut parteru

1. Hall + 1/2 komunikacji 6,9 m2
2. Łazienka 3,4 m2
3. Kuchnia 6,6 m2
4. Pokój dzienny z jadalnią 42,2 m2
5. Pokój 7,3 m2
6. Garaż 16,8 m2
Na parterze znajduje się bardzo duży pokój dzienny z jadalnią i otwartą kuchnią. Będzie on doskonałym miejscem do spędzania wspólnych posiłków i przyjmowania gości. Mała łazienka znajduje się naprzeciw schodów na poddasze. Program uzupełnia mały pokój, który może pełnić rolę np. biblioteczki.
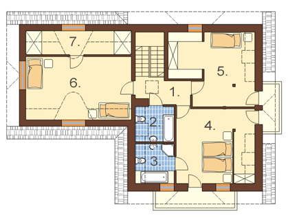
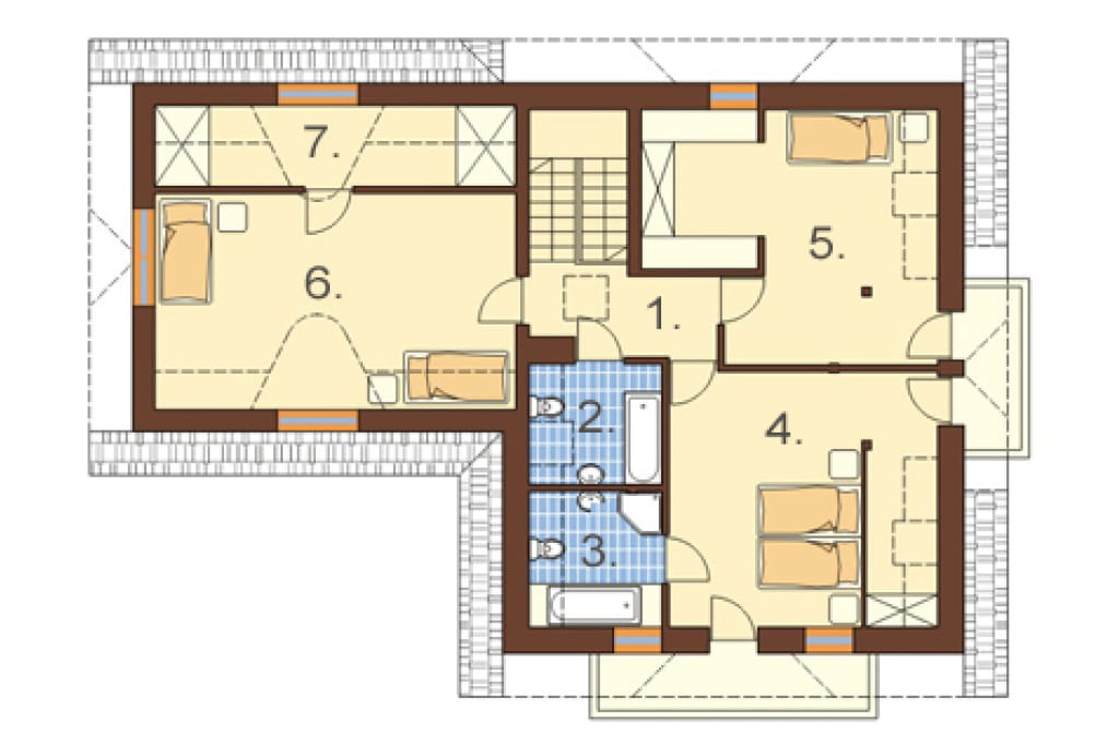
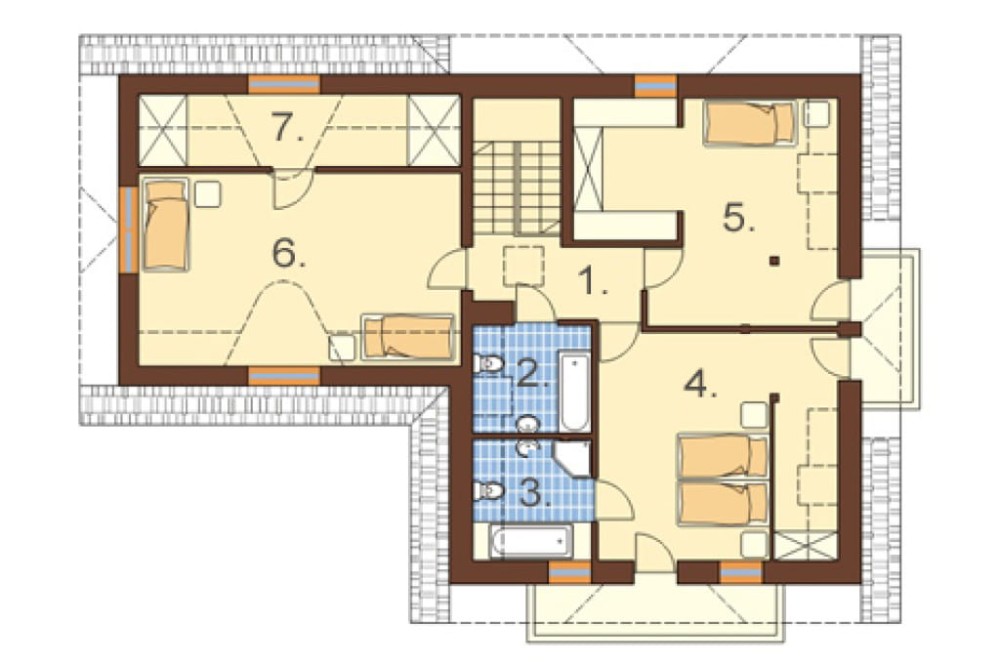
Rzut piętra / antresoli

1. Hall + 1/2 komunikacji 8,2 m2
2. Łazienka 4,1 m2
3. Łazienka 4,6 m2
4. Pokój z garderobą 21,2 m2
5. Pokój z garderobą 20,8 m2
6. Pokój 23,2 m2
7. Garderoba 6,8 m2
Na poddaszu dzięki wykorzystaniu przestrzeni nad garażem jest dużo powierzchni użytkowej. Nasz architekt zaprojektował tu trzy duże pokoje z garderobami. Pokój oznaczony na rzucie jako numer cztery dodatkowo posiada własną łazienkę. Druga, wspólna dla piętra znajduje się natomiast na przeciw schodów na parter.
Przekrój

Model 3D

W projekcie Podbiele 2 zastosowaliśmy rzadko spotykane rozwiązanie polegające na połączaniu dwóch brył: domu i garażu, za pomocą wspólnej połaci dachu. Udało nam się w ten sposób stworzyć dwa miejsca garażowe. Elewacja frontowa wyróżnia się balkonem, oraz eleganckim bawolim okiem, które doświetla pokój nad garażem.
Elewacje




Informacje podstawowe
Projekt domu L-6482 PODBIELE 2. Dom parterowy z poddaszem mieszkalnym, podpiwniczony. Zaprojektowano wentylację mechaniczną nawiewno - wywiewną z rekuperatorem. Technologia YTONG. Ściany zewnętrzne domu: pustak YTONG 48 I 40 cm, tynk zewnętrzny. Stropy: żelbetowe. Kąt nachylenia dachu: 45°. Program: 4 pokoje, salon z jadalnią, kuchnia, 3 łazienki, 4 garderoby, pralnia, kotłownia, pomieszczenie gospodarcze, garaż.
ZAWARTOŚĆ PROJEKTU:
- projekt architektoniczny budowlany
- projekt konstrukcyjny budowlany
- projekt budowlany wewnętrznych instalacji sanitarnych (c.o, wod-kan,gaz)
- projekt budowlany wewnętrznej instalacji elektrycznej oraz instalacji odgromowej
- kosztorys inwestorski z pełnym przedmiarem robót (w cenie projektu)
- zestawienie materiałów budowlanych
- 4 przykładowe projekty ogrodzeń
- zgoda na zmiany w projekcie
Koszty budowy sprawdź >>
Architekt: Ewa Ferfecka-Homola, Jaromir Mruk,
Projekt ten został opracowany zgodnie z normami budowlanymi, w pełnym zakresie wymaganym dla projektów gotowych.
Projekt ten nie wymaga pozwolenia na budowę i może być budowany na zgłoszenie zgodnie ze znowelizowanym Prawem Budowlanym obowiązującym od 3.01.2022 roku czytaj więcej >>
Zawartość projektu sprawdź szczegóły >>
Łączna zawartość obu projektów architektoniczno - budowlanego oraz projektu technicznego, które można zamówić razem lub osobno:
Parametry projektu
Ogólne kategorie, do których należy ten projekt
- Powierzchnia mieszkalna (m²) 150 - 200
- Powierzchnia użytkowa (m²) 200 - 300
- Powierzchnia zabudowy (m²) 100 - 120
- Kąt nachylenia dachu (°) 0 - 5
- Szerokość działki/krótszy bok (m) 20 - 25
- Wysokość budynku (m) 0 - 3
Podstawowe parametry projektu
- Powierzchnia mieszkalna (m²) 155.20
- Powierzchnia użytkowa (m²) 240.00
- Powierzchnia zabudowy (m²) 113.20
- Szerokość budynku/krótszy bok (m) 0
- Długość budynku/dłuższy bok (m) 0
- Szerokość działki/krótszy bok (m) 23.40
- Piwnica podpiwniczony
- Garaż z garażem
- Poddasze poddasze użytkowe
Uzupełniające parametry projektu
- Rodzaj technologii* YTONG
- Kubatura (m³) 930.70
- Styl wiejski
- Liczba kondygnacji 3
- Liczba pomieszczeń 15
* gwiazdką są oznaczone w parametrach projektu zmiany nieistotne, które nie wymagają przeprojektowania do pozwolenia zamiennego. Do każdego projektu dołączamy bezpłatną zgodę na wprowadzanie zarówno zmian istotnych jak i nieistotnych.
Darmowe dodatki do projektu
- 10 stylowych projektów ogrodzeń
- 10 projektów śmietników
- 5 projektów grilli z funkcją rusztu, kominka i wędzarni
- 6 projektów oczek wodnych
- 6 projektów altan
- 4 projekty huśtawek ogrodowych
- 4 projekty bud dla psów
- 4 projekty szamb o poj. 21,6 m3 / 14,6 m3 / 10 m3 i 6,4 m3
- 2 projekty przydomowej oczyszczalni ścieków. Jeden dla rodziny do 4 osób, drugi dla rodziny do 6 osób
- projekt przydomowej elektrowni wiatrowej
- schemat instalacji fotowoltaicznej
- projekty budek lęgowych dla kilkudziesięciu gatunków ptaków
- zgoda na wszelkie zmiany i adaptacje
Producentem projektu jest:

ul. Cystersów 7B, 31-553 Kraków
e-mail: kbprojekt@kbprojekt.pl
tel. 12 414 35 06
Pomocne informacje
Chcesz wprowadzić zmiany w tym projekcie?
Możemy dostosować go do Twoich potrzeb, napisz co chciałbyś w nim zmienić, przeprojektujemy go tak, aby w pełni odpowiadał Twoim oczekiwaniom
Chcesz dostosować ten projekt we własnym zakresie?
Sprawdź jakie zmiany są nieistotne czyli takie, ktore możesz wprowadzić na etapie budowy zobacz szczegóły >>
Nie możesz znaleźć odpowiedniego projektu?
Chętnie pomożemy. Zadzwoń do nas 12 410 49 70 lub skorzystaj z formularza kontaktowego dostępnego tutaj >>
Szukasz projektu dopasowanego do Twoich potrzeb?
Sprawdź naszą ofertę na projekty domów na indywidualne zamówienie w niezwykle atrakcyjnej cenie zobacz szczegóły >>
Potrzebujesz adaptacji projektu lub pomocy w załatwieniu formalności związanych z budową?
Nasze biuro architektoniczne oferuje pomoc w uzyskaniu pozwolenia na budowę a także wykonuje adaptacje projektów na terenie całej Polski zobacz szczegóły >>
Szukasz sprawdzonego kierownika budowy?
Oferujemy usługi naszych uprawnionych kierowników budowy, którzy przeprowadzą Cię przez cały proces budowlany, od uzyskania pozwolenia na budowę po finalne odbiory zobacz szczegóły >>
Opinie o tym projekcie
Jeśli dodałeś/-aś recenzję, a nie pojawiłą się na liście, być może oczekuje na moderację.