Chwalimierz
Kod: RW-01
| Zmiany istotne i nieistotne, które możesz wprowadzić w tym projekcie sprawdź >> | |
| Adaptacja i pozwolenie na budowę zobacz >> | |
| Jeśli masz pytanie |
Prezentacja projektu
Opis projektu
Projekt budynku RW-01 (CHWALIMIERZ) z możliwością adaptacji na motel lub pensjonat. Niebanalny projekt stanowiący symetryczną kompozycję z wieloma szczegółami i zdobieniami. Projekt zdecydowanie będzie się wyróżniał w otoczeniu, posiada niesamowity styl i charakter.
Rzut piwnicy

1. POKÓJ HOBBY 45,5 m2
2. SAUNA 2,5 m2
3. ŁAZIENKA 3,3 m2
4. SKŁADZIK 4,7 m2
5. POKÓJ REKREACYJNY 27,4 m2
6. POM. GOSPODARCZE 27,4 m2
7. KOTŁOWNIA 11,5 m2
Na poddaszu znajduje się część rekreacyjna. Składa się na nią sauna z łazienką, pokój hobby i rekreacyjny, w którym urządzić można salę fitness lub siłownię. Na tym poziomie znajduje się również pomocny składzik, kotłownia i pomieszczenie gospodarcze, które z łatwością może pełnić funkcję pralni, suszarni lub piwnicy.
Rzut parteru

1. WIATROŁAP 4,7 m2
2. HALL + 1/2 KOMUNIKACJI 31,1 m2
3. WC 2,9 m2
4. ŁAZIENKA 3,7 m2
5. POKÓJ GOŚCINNY 20,9 m2
6. SPIŻARNIA 2,4 m2
7. KUCHNIA 22,3 m2
8. JADALNIA 24,3 m2
9. POKÓJ DZIENNY 52,3 m2
10. POKÓJ 24,3 m2
11. PRZEDSIONEK 2,9 m2
12. GARAŻ 52,8 m2
Główne wejście do budynku prowadzi przez wiatrołap, który otwiera się na reprezentacyjny hall. Z prawej strony, za pomocą przedsionka łączy się on z przestronnym, dwustanowiskowym garażem. Na wprost wiatrołapu, w hallu znajduje się wejście do dużego pokoju dziennego wyposażonego w podwójne wyjście na taras. Z jego lewej strony ulokowano pokój, z prawej - jadalnię, którą przejść można do kuchni wyposażonej w niewielką spiżarnię. Na parterze znajduje się także pokój gościnny z łazienką oraz WC.
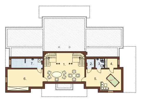
Rzut piętra / antresoli

1. HALL + 1/2 KOMUNIKACJI 23,9 m2
2. BIBLIOTEKA 25,3 m2
3. POKÓJ 24,4 m2
4. POKÓJ 28,3 m2
5. GARDEROBA 3,4 m2
6. ŁAZIENKA 8,4 m2
7. ŁAZIENKA 12,6 m2
8. ŁAZIENKA 8,4 m2
9. GARDEROBA 3,4 m2
10. POKÓJ 28,3 m2
11. POKÓJ 24,4 m2
Znajdują się tu cztery przestronne i komfortowe pokoje. Dwa z nich wyposażone są w prywatne garderoby i łazienki, mieszkańcy pozostałych dwóch mogą korzystać z trzeciej łazienki, dostępnej z hallu. Ciekawym akcentem, podkreślającym prestiż budynku jest obecność na poddaszu biblioteczki z widokiem na ogród.
Przekrój

Model 3D

Bryła obiektu opiera się na planie prostokąta, z kilkoma przesunięciami w linii ścian, które nadają jej więcej dynamizmu. Budynek stanowi symetryczną kompozycję z wieloma szczegółami i zdobieniami. Liczne lukarny o zróżnicowanym kształcie zwiększają przestrzeń użytkową pomieszczeń poddasza, a w połączeniu z łukami na elewacji frontowej i zdobną okładziną elewacyjną przyczyniają się do nadania obiektowi niesamowitego stylu i charakteru.
Elewacje




Informacje podstawowe
Projekt budynku RW-01 (CHWALIMIERZ) z mozliwością adaptacji na motel lub pensjonat.
Budynek parterowy z garażem dwustanowiskowym, z poddaszem mieszkalnym, częściowo podpiwniczony.
Technologia: tradycyjna.
Ściany zewnętrzne: pustak ceramiczny 29 cm, styropian 12 cm, tynk zewnętrzny.
Stropy w budynku: żelbetowe.
Kąt nachylenia dachu: 35°, 37° i 72°.
Program: 5 pokoi, salon, pokój hobby, pokój rekreacyjny, pokój gościnny, kuchnia, spiżarnia, 5 łazienek, WC, sauna, kotłownia, garaż dwustanowiskowy.
Architekt: Ewa Ferfecka-Homola, Jaromir Mruk,
Projekt ten został opracowany zgodnie z normami budowlanymi, w pełnym zakresie wymaganym dla projektów gotowych.
Zawartość projektu sprawdź szczegóły >>
Łączna zawartość obu projektów architektoniczno - budowlanego oraz projektu technicznego, które można zamówić razem lub osobno:
Parametry projektu
Ogólne kategorie, do których należy ten projekt
- Powierzchnia mieszkalna (m²) 300 - 500
- Powierzchnia użytkowa (m²) 500 - 1000
- Powierzchnia zabudowy (m²) 300 - 500
- Kąt nachylenia dachu (°) 30 - 35
- Szerokość działki/krótszy bok (m) 20 - 25
- Wysokość budynku (m) 8 - 9
Podstawowe parametry projektu
- Powierzchnia mieszkalna (m²) 385.10
- Powierzchnia użytkowa (m²) 557.70
- Powierzchnia zabudowy (m²) 311.91
- Szerokość budynku/krótszy bok (m) 18
- Długość budynku/dłuższy bok (m) 23
- Wysokość budynku (m) 8.95
- Szerokość działki/krótszy bok (m) 24.40
- Kąt nachylenia dachu (°) 35°, 37° i 72°
- Rodzaj dachu kopertowy
- Piwnica częściowo podpiwniczony
- Garaż z garażem dwustanowiskowym
- Poddasze poddasze użytkowe
Uzupełniające parametry projektu
- Rodzaj technologii* tradycyjna
- Układ dachu kalenicowy
- Kubatura (m³) 2375.20
- Liczba kondygnacji 3
- Rodzaj ogrzewania gazowe
- Liczba pomieszczeń 30
- Liczba łazienek (bez WC) 5
* gwiazdką są oznaczone w parametrach projektu zmiany nieistotne, które nie wymagają przeprojektowania do pozwolenia zamiennego. Do każdego projektu dołączamy bezpłatną zgodę na wprowadzanie zarówno zmian istotnych jak i nieistotnych.
Darmowe dodatki do projektu
- 10 stylowych projektów ogrodzeń
- 10 projektów śmietników
- 5 projektów grilli z funkcją rusztu, kominka i wędzarni
- 6 projektów oczek wodnych
- 6 projektów altan
- 4 projekty huśtawek ogrodowych
- 4 projekty bud dla psów
- 4 projekty szamb o poj. 21,6 m3 / 14,6 m3 / 10 m3 i 6,4 m3
- 2 projekty przydomowej oczyszczalni ścieków. Jeden dla rodziny do 4 osób, drugi dla rodziny do 6 osób
- projekt przydomowej elektrowni wiatrowej
- schemat instalacji fotowoltaicznej
- projekty budek lęgowych dla kilkudziesięciu gatunków ptaków
- zgoda na wszelkie zmiany i adaptacje
Producentem projektu jest:

ul. Cystersów 7B, 31-553 Kraków
e-mail: kbprojekt@kbprojekt.pl
tel. 12 414 35 06
Pomocne informacje
Chcesz wprowadzić zmiany w tym projekcie?
Możemy dostosować go do Twoich potrzeb, napisz co chciałbyś w nim zmienić, przeprojektujemy go tak, aby w pełni odpowiadał Twoim oczekiwaniom
Chcesz dostosować ten projekt we własnym zakresie?
Sprawdź jakie zmiany są nieistotne czyli takie, ktore możesz wprowadzić na etapie budowy zobacz szczegóły >>
Nie możesz znaleźć odpowiedniego projektu?
Chętnie pomożemy. Zadzwoń do nas 12 410 49 70 lub skorzystaj z formularza kontaktowego dostępnego tutaj >>
Szukasz projektu dopasowanego do Twoich potrzeb?
Sprawdź naszą ofertę na projekty domów na indywidualne zamówienie w niezwykle atrakcyjnej cenie zobacz szczegóły >>
Potrzebujesz adaptacji projektu lub pomocy w załatwieniu formalności związanych z budową?
Nasze biuro architektoniczne oferuje pomoc w uzyskaniu pozwolenia na budowę a także wykonuje adaptacje projektów na terenie całej Polski zobacz szczegóły >>
Szukasz sprawdzonego kierownika budowy?
Oferujemy usługi naszych uprawnionych kierowników budowy, którzy przeprowadzą Cię przez cały proces budowlany, od uzyskania pozwolenia na budowę po finalne odbiory zobacz szczegóły >>
Opinie o tym projekcie
Jeśli dodałeś/-aś recenzję, a nie pojawiłą się na liście, być może oczekuje na moderację.