Konstancin
Kod: DM-6351
| W podanej cenie oferujemy 3 kopie projektu architektoniczno-budowlanego potrzebnego do uzyskania pozwolenia na budowę sprawdź >> | |
| Projekt techniczny zamów >> | |
| Parametry projektu zobacz >> | |
| Odbicie lustrzane projektu zobacz >> | |
| Koszty budowy zobacz >> | |
| Forum dotyczące tego projektu zobacz >> |
| Zmiany istotne i nieistotne, które możesz wprowadzić w tym projekcie sprawdź >> | |
| Adaptacja i pozwolenie na budowę zobacz >> | |
| Jeśli masz pytanie |
Prezentacja projektu
Opis projektu
Projekt domu parterowego z poddaszem użytkowym i podpiwniczeniem, jednorodzinnego, tradycyjnego, bez garażu, z dachem czterospadowym, z kątem nachylenia do 45°, technologia murowana lub szkieletowa, z kominkiem, energooszczędnego, do 200 m2, koszt budowy do 300 tys. zł
Rzut piwnicy

1. KOMUNIKACJA 11,1 m
2. POMIESZCZENIE GOSPODARCZE 2,7 m
3. KOTŁOWNIA 8,9 m2
Budynek podpiwniczono częściowo i zorganizowano w nim kotłownię doświetloną światłem dziennym oraz przejściowe pomieszczenie gospodarcze. Piwnicę można w razie potrzeb powiększyć.
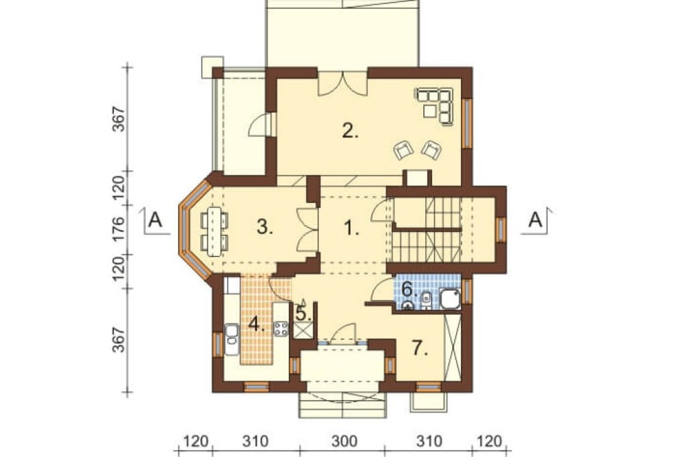
Rzut parteru

1. HALL + 1/2 KOMUNIKACJI 18,3 m2
2. POKÓJ DZIENNY 15,5 m2
3. JADALNIA 12,6 m2
4. KUCHNIA 8,7 m2
5. SPIŻARNIA 1,1 m2
6. WC 3,0 m2
7. GARDEROBA 5,6 m2
Na parterze zaplanowano salon z kominkiem i wyjściami na dwa tarasy. Co więcej jeden z nich można przekształcić w ogród zimowy poprzez zastosowanie odpowiednich przeszkleń. Zorganizowano tu również jadalnię z wykuszem, która została połączona z kuchnią posiadają dodatkowe wejście bezpośrednio z hallu, co umożliwi wygodniejsze wnoszenie zakupów. Na parterze znajduje się ponadto garderoba, łazienka z prysznicem oraz niewielka spiżarnia.
Rzut piętra / antresoli

1. HALL + 1/2 KOMUNIKACJI 13,9 m2
2. POKÓJ 8,6 m2
3. POKÓJ 10,4 m2
4. POKÓJ 11,1 m2
5. POKÓJ 10,6 m2
6. ŁAZIENKA 4,6 m2
Na poddaszu zaprojektowano cztery pokoje posiadające wyjścia na balkony. Znajduje się tu również przestronna łazienka z wanną.
Przekrój

Model 3D

Forma budynku została wzbogacona dzięki stworzeniu wykusza w salonie, który urozmaica ściany zewnętrzne i dopełnia styl budynku. Dach kopertowy został dodatkowo urozmaicony poprzez lukarny sprawiające wrażenie wzajemnie przenikających się płaszczyzn. Prowadzą one na balkony powiększające przestrzeń poddasza i umożliwiające użytkownikom maksymalny kontakt z naturą i pięknem krajobrazu.
Elewacje




Informacje podstawowe
Projekt domu KONSTANCIN (DM-6351).
Dom jednorodzinny, parterowy z poddaszem mieszkalnym, częściowo podpiwniczony, bez garażu.
Technologia tradycyjna.
Ściany zewnętrzne: pustak brenner 38 cm, tynk zewnętrzny.
Stropy w budynku: żelbetowe.
Kąt nachylenia dachu: 42°.
Program: 4 pokoje, salon, kuchnia, jadalnia, łazienka, WC, kotłownia, pomieszczenie gospodarcze.
Koszty budowy sprawdź >>
Architekt: Ewa Ferfecka-Homola, Mateusz Budziakowski, Ewa Boryczko,
Projekt ten został opracowany zgodnie z normami budowlanymi, w pełnym zakresie wymaganym dla projektów gotowych.
Projekt ten nie wymaga pozwolenia na budowę i może być budowany na zgłoszenie zgodnie ze znowelizowanym Prawem Budowlanym obowiązującym od 3.01.2022 roku czytaj więcej >>
Zawartość projektu sprawdź szczegóły >>
Łączna zawartość obu projektów architektoniczno - budowlanego oraz projektu technicznego, które można zamówić razem lub osobno:
- projekt architektoniczny budowlany
- projekt konstrukcyjny budowlany
- projekt budowlany wewnętrznych instalacji sanitarnych (c.o, wod-kan,gaz)
- projekt budowlany wewnętrznej instalacji elektrycznej oraz instalacji odgromowej
- kosztorys inwestorski z pełnym przedmiarem robót (w cenie projektu)
- szacunkowa charakterystyka energetyczna
- zgoda na zmiany w projekcie
Parametry projektu
Ogólne kategorie, do których należy ten projekt
- Powierzchnia mieszkalna (m²) 100 - 150
- Powierzchnia użytkowa (m²) 150 - 200
- Powierzchnia zabudowy (m²) 100 - 120
- Kąt nachylenia dachu (°) 40 - 45
- Szerokość działki/krótszy bok (m) 18 - 20
- Wysokość budynku (m) 8 - 9
Podstawowe parametry projektu
- Powierzchnia mieszkalna (m²) 136.30
- Powierzchnia użytkowa (m²) 159.10
- Powierzchnia zabudowy (m²) 113.00
- Szerokość budynku/krótszy bok (m) 12
- Długość budynku/dłuższy bok (m) 12
- Wysokość budynku (m) 8.89
- Szerokość działki/krótszy bok (m) 19.60
- Kąt nachylenia dachu (°) 42°
- Rodzaj dachu wielospadowy
- Piwnica częściowo podpiwniczony
- Garaż bez garażu
- Poddasze poddasze użytkowe
Uzupełniające parametry projektu
- Rodzaj technologii* tradycyjna
- Układ dachu kalenicowy
- Kubatura (m³) 621.30
- Liczba kondygnacji 3
- Rodzaj ogrzewania gazowe
- Wskaźnik energii pierwotnej (kWh/(m²·rok)) 87.53
- Liczba pomieszczeń 16
- Liczba łazienek (bez WC) 2
* gwiazdką są oznaczone w parametrach projektu zmiany nieistotne, które nie wymagają przeprojektowania do pozwolenia zamiennego. Do każdego projektu dołączamy bezpłatną zgodę na wprowadzanie zarówno zmian istotnych jak i nieistotnych.
Projekty domów można również przeglądać analizując zestawienia rzutów parterów kliknij tutaj >>
Darmowe dodatki do projektu
- 10 stylowych projektów ogrodzeń
- 10 projektów śmietników
- 5 projektów grilli z funkcją rusztu, kominka i wędzarni
- 6 projektów oczek wodnych
- 6 projektów altan
- 4 projekty huśtawek ogrodowych
- 4 projekty bud dla psów
- 4 projekty szamb o poj. 21,6 m3 / 14,6 m3 / 10 m3 i 6,4 m3
- 2 projekty przydomowej oczyszczalni ścieków. Jeden dla rodziny do 4 osób, drugi dla rodziny do 6 osób
- projekt przydomowej elektrowni wiatrowej
- schemat instalacji fotowoltaicznej
- projekty budek lęgowych dla kilkudziesięciu gatunków ptaków
- zgoda na wszelkie zmiany i adaptacje
Producentem projektu jest:

ul. Cystersów 7B, 31-553 Kraków
e-mail: kbprojekt@kbprojekt.pl
tel. 12 414 35 06
Pomocne informacje
Chcesz wprowadzić zmiany w tym projekcie?
Możemy dostosować go do Twoich potrzeb, napisz co chciałbyś w nim zmienić, przeprojektujemy go tak, aby w pełni odpowiadał Twoim oczekiwaniom
Chcesz dostosować ten projekt we własnym zakresie?
Sprawdź jakie zmiany są nieistotne czyli takie, ktore możesz wprowadzić na etapie budowy zobacz szczegóły >>
Nie możesz znaleźć odpowiedniego projektu?
Chętnie pomożemy. Zadzwoń do nas 12 410 49 70 lub skorzystaj z formularza kontaktowego dostępnego tutaj >>
Szukasz projektu dopasowanego do Twoich potrzeb?
Sprawdź naszą ofertę na projekty domów na indywidualne zamówienie w niezwykle atrakcyjnej cenie zobacz szczegóły >>
Potrzebujesz adaptacji projektu lub pomocy w załatwieniu formalności związanych z budową?
Nasze biuro architektoniczne oferuje pomoc w uzyskaniu pozwolenia na budowę a także wykonuje adaptacje projektów na terenie całej Polski zobacz szczegóły >>
Szukasz sprawdzonego kierownika budowy?
Oferujemy usługi naszych uprawnionych kierowników budowy, którzy przeprowadzą Cię przez cały proces budowlany, od uzyskania pozwolenia na budowę po finalne odbiory zobacz szczegóły >>
Opinie o tym projekcie
Jeśli dodałeś/-aś recenzję, a nie pojawiłą się na liście, być może oczekuje na moderację.