Kasinka
Kod: DM-6031
| W podanej cenie oferujemy 3 kopie projektu architektoniczno-budowlanego potrzebnego do uzyskania pozwolenia na budowę sprawdź >> | |
| Projekt techniczny zamów >> | |
| Parametry projektu zobacz >> | |
| Odbicie lustrzane projektu zobacz >> | |
| Koszty budowy zobacz >> | |
| Forum dotyczące tego projektu zobacz >> |
| Zmiany istotne i nieistotne, które możesz wprowadzić w tym projekcie sprawdź >> | |
| Adaptacja i pozwolenie na budowę zobacz >> | |
| Jeśli masz pytanie |
Prezentacja projektu
Opis projektu
Projekt domu parterowego z poddaszem użytkowym i podpiwniczeniem, jednorodzinnego, podhalańskiego, z garażem dwustanowiskowym, z dachem dwuspadowym, z kątem nachylenia do 45°, technologia murowana lub szkieletowa, z kominkiem, z dodatkowym pokojem senioratką na parterze, energooszczędnego, do 250 m2
Rzut piwnicy

PIWNICE 110,82 m2
1. HALL+KOMUNIKACJA 5,20 m2
2. POM. GOSPODARCZE 2,15 m2
3. KOTŁOWNIA 6,46 m2
4. POM. GOSPODARCZE 9,00 m2
5. POM. GOSPODARCZE 8,26 m2
6. GARAŻ 30,42 m2
7. GARAŻ 25,54 m2
8. POM.GOSPODARCZE 23,79 m2
Strefa piwnicy została bardzo rozbudowana i umożliwiła stworzenie w tej strefie wszystkich pomieszczeń o charakterze technicznym, które pozwalają na poprawne działanie budynku. Znajdują się tu dwa garaże samochodowe, pięć pomieszczeń gospodarczych oraz kotłownia. Do strefy tej prowadzą również schody wewnętrzne.
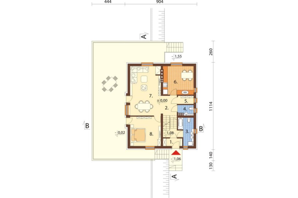
Rzut parteru

PARTER 73,33 m2
1. WIATROŁAP 2,45 m2
2. HALL+ 1/2 KOMUNIKACJI 3,38 m2
3. ŁAZIENKA 9,24 m2
4. WC 2,18 m2
5. SPIŻARNIA 1,89 m2
6. KUCHNIA 14,33 m2
7. POKÓJ DZIENNY 24,93 m2
8. POKÓJ 14,93 m2
Na parterze zorganizowano salon z kącikiem jadalnym, narożnym kominkiem i wyjściem na duży taras zaplanowany nad strefą podpiwniczoną. Co więcej, zaplanowano tu wyodrębniona kuchnię, spiżarnię, niewielką toaletę, łazienkę z wanną oraz sypialnię. Pokój prywatny posiada dodatkowe wyjście na taras, co umożliwia jego użytkownikowi lepszy kontakt z otoczeniem.
Rzut piętra / antresoli

PODDASZE 63,05 m2
1. HALL + 1/2 KOMUNIKACJI 12,73 m2
2. ŁAZIENKA 7,73 m2
3. WC 1,07 m2
4. GARDEROBA 1,02 m2
5. POKÓJ 10,66 m2
6. POKÓJ 10,31 m2
7. POKÓJ 8,23 m2
8. POKÓJ 11,66 m2
Poddasze tworzą cztery pokoje prywatne, łazienka, garderoba oraz dodatkowa toaleta. Każda sypialnia została zaopatrzona w wyjście na balkon, dzięki czemu wszyscy domownicy mogą się cieszyć bezpośrednim kontaktem z naturą.
Przekrój


Model 3D

Elewacje




Informacje podstawowe
Projekt domu KASINKA DM-6031. Dom parterowy z garażem na dwa samochody, z poddaszem mieszkalnym, podpiwniczony.
Technologia tradycyjna.
Ściany zewnętrzne: pustak POROTHERM 30 cm, wełna mineralna 15 cm, tynk zewnętrzny.
Stropy w budynku: żelbetowe.
Kąt nachylenia dachu: 45°.
Ogrzewanie: kocioł na paliwo stale - pellet
Program: 5 pokoi, salon, kuchnia ze spiżarnią, kotłownia, 2 łazienki, 2 pomieszczenia WC, skład opału, 3 pomieszczenia gospodarcze oraz garaż na dwa samochody.
Koszty budowy sprawdź >>
Architekt: Ewa Ferfecka-Homola, Teresa Jakubowska,
Projekt ten został opracowany zgodnie z normami budowlanymi, w pełnym zakresie wymaganym dla projektów gotowych.
Projekt ten nie wymaga pozwolenia na budowę i może być budowany na zgłoszenie zgodnie ze znowelizowanym Prawem Budowlanym obowiązującym od 3.01.2022 roku czytaj więcej >>
Zawartość projektu sprawdź szczegóły >>
Łączna zawartość obu projektów architektoniczno - budowlanego oraz projektu technicznego, które można zamówić razem lub osobno:
- projekt architektoniczny budowlany
- projekt konstrukcyjny budowlany
- projekt budowlany wewnętrznych instalacji sanitarnych (c.o, wod-kan,cwu)
- projekt budowlany wewnętrznej instalacji elektrycznej oraz instalacji odgromowej
- projektowana charakterystyka energetyczna
- zgoda na zmiany w projekcie
Parametry projektu
Ogólne kategorie, do których należy ten projekt
- Powierzchnia mieszkalna (m²) 100 - 150
- Powierzchnia użytkowa (m²) 200 - 300
- Powierzchnia zabudowy (m²) 150 - 200
- Kąt nachylenia dachu (°) 40 - 45
- Szerokość działki/krótszy bok (m) 20 - 25
- Wysokość budynku (m) 10 - 12
Podstawowe parametry projektu
- Powierzchnia mieszkalna (m²) 136.38
- Powierzchnia użytkowa (m²) 247.20
- Powierzchnia zabudowy (m²) 171.11
- Szerokość budynku/krótszy bok (m) 13.10
- Długość budynku/dłuższy bok (m) 14.60
- Wysokość budynku (m) 10.96
- Szerokość działki/krótszy bok (m) 21.50
- Kąt nachylenia dachu (°) 45°
- Rodzaj dachu dwuspadowy
- Piwnica podpiwniczony
- Garaż z garażem dwustanowiskowym
- Poddasze poddasze użytkowe
Uzupełniające parametry projektu
- Rodzaj technologii* tradycyjna
- Układ dachu szczytowy
- Kubatura (m³) 885.00
- Liczba kondygnacji 3
- Rodzaj ogrzewania paliwo stałe
- Wskaźnik energii pierwotnej (kWh/(m²·rok)) 27.73
- Liczba pomieszczeń 26
- Liczba łazienek (bez WC) 2
* gwiazdką są oznaczone w parametrach projektu zmiany nieistotne, które nie wymagają przeprojektowania do pozwolenia zamiennego. Do każdego projektu dołączamy bezpłatną zgodę na wprowadzanie zarówno zmian istotnych jak i nieistotnych.
Projekty domów można również przeglądać analizując zestawienia rzutów parterów kliknij tutaj >>
Darmowe dodatki do projektu
- 10 stylowych projektów ogrodzeń
- 10 projektów śmietników
- 5 projektów grilli z funkcją rusztu, kominka i wędzarni
- 6 projektów oczek wodnych
- 6 projektów altan
- 4 projekty huśtawek ogrodowych
- 4 projekty bud dla psów
- 4 projekty szamb o poj. 21,6 m3 / 14,6 m3 / 10 m3 i 6,4 m3
- 2 projekty przydomowej oczyszczalni ścieków. Jeden dla rodziny do 4 osób, drugi dla rodziny do 6 osób
- projekt przydomowej elektrowni wiatrowej
- schemat instalacji fotowoltaicznej
- projekty budek lęgowych dla kilkudziesięciu gatunków ptaków
- zgoda na wszelkie zmiany i adaptacje
Producentem projektu jest:

ul. Cystersów 7B, 31-553 Kraków
e-mail: kbprojekt@kbprojekt.pl
tel. 12 414 35 06
Pomocne informacje
Chcesz wprowadzić zmiany w tym projekcie?
Możemy dostosować go do Twoich potrzeb, napisz co chciałbyś w nim zmienić, przeprojektujemy go tak, aby w pełni odpowiadał Twoim oczekiwaniom
Chcesz dostosować ten projekt we własnym zakresie?
Sprawdź jakie zmiany są nieistotne czyli takie, ktore możesz wprowadzić na etapie budowy zobacz szczegóły >>
Nie możesz znaleźć odpowiedniego projektu?
Chętnie pomożemy. Zadzwoń do nas 12 410 49 70 lub skorzystaj z formularza kontaktowego dostępnego tutaj >>
Szukasz projektu dopasowanego do Twoich potrzeb?
Sprawdź naszą ofertę na projekty domów na indywidualne zamówienie w niezwykle atrakcyjnej cenie zobacz szczegóły >>
Potrzebujesz adaptacji projektu lub pomocy w załatwieniu formalności związanych z budową?
Nasze biuro architektoniczne oferuje pomoc w uzyskaniu pozwolenia na budowę a także wykonuje adaptacje projektów na terenie całej Polski zobacz szczegóły >>
Szukasz sprawdzonego kierownika budowy?
Oferujemy usługi naszych uprawnionych kierowników budowy, którzy przeprowadzą Cię przez cały proces budowlany, od uzyskania pozwolenia na budowę po finalne odbiory zobacz szczegóły >>
Opinie o tym projekcie
Jeśli dodałeś/-aś recenzję, a nie pojawiłą się na liście, być może oczekuje na moderację.