Bieżanowiec
Kod: L-6285
| Projekt na zamówienie dostępny w terminie ustalonym z biurem skontaktuj się >> | |
| W podanej cenie oferujemy 3 kopie projektu architektoniczno-budowlanego potrzebnego do uzyskania pozwolenia na budowę sprawdź >> | |
| Projekt techniczny zamów >> | |
| Parametry projektu zobacz >> | |
| Odbicie lustrzane projektu zobacz >> | |
| Koszty budowy zobacz >> | |
| Forum dotyczące tego projektu zobacz >> |
| Zmiany istotne i nieistotne, które możesz wprowadzić w tym projekcie sprawdź >> | |
| Adaptacja i pozwolenie na budowę zobacz >> | |
| Jeśli masz pytanie |
Prezentacja projektu
Opis projektu
Powierzchnia użytkowa: 124,93 m2. Budynek parterowy z poddaszem użytkowym, z podpiwniczeniem, z garażem.
Bardzo przyjemny w odbiorze wizualnym projekt budynku przeznaczonego na wąską działkę. Przeszklenia i balkony zlokalizowane zostały na elewacji frontowej i ogrodowej, aby umożliwić swobodną lokalizację domu na działce o nietypowym kształcie. Tradycyjny charakter budynku podkreślony jest przez obecność czerwonego dachu i drewnianej zabudowy balkonów, jednak ostateczny wygląd elewacji uzależniony jest od upodobań Inwestora.
Rzut piwnicy

Piwnica: 33,95 m2
1. Hol+ garaż 28,07 m2
2. Kotłownia 5,88 m2
Aby wykluczyć ryzyko przedostawania się do wnętrza domu niechcianych zapachów i dźwięków, zarówno garaż jak i kotłownia umieszczono na poziomie piwnicy. Dzięki komunikacji, zapewniony jest do nich dostęp z parteru.
Rzut parteru

Parter: 47,60 m2
1. Pokój dzienny 19,6 m2
2. Kuchnia 9,5 m2
3. Komunikacja 8,8 m2
4. Wiatrołap 3,8 m2
5. Garderoba 2,8 m2
4. Łazienka 3,1 m2
Główne wejście do domu umieszczono w podcieniu. Przechodząc przez wiatrołap można dostać się do komunikacji i pozostałych pomieszczeń parteru: pokoju dziennego z wyjściem na taras, wygodnej łazienki, garderoby oraz narożnej kuchni.
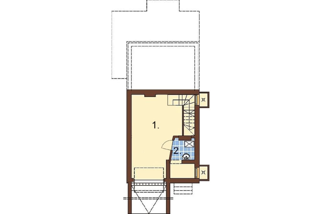
Rzut poddasza

Poddasze: 43,38 / 51,86 m2
1. Pokój 15,90 / 19,57 m2
2. Pokój 6,75 / 8,27 m2
3. Pokój 9,06 / 11,22 m2
4. Komunikacja 6,98 m2
5. Łazienka 4,69 / 5,82 m2
W celu zapewnienia domownikom maksimum komfortu, projektanci zadbali o obecność drugiej łazienki na poddaszu. Każdy z trzech wygodnych pokoi posiada dostęp do balkonu.
Przekrój

Model

Stosunkowo nieskomplikowana konstrukcja pozytywnie wpływa na czas realizacji budowy i związane z nią koszty. Zwarta bryła z prostym dachem działa korzystnie na bilans cieplny. Przestrzeń wewnątrz budynku zorganizowana jest funkcjonalnie i komfortowo.
Elewacje




Informacje podstawowe
Program: 3 pokoje, salon, kuchnia, garderoba, dwie łazienki, kotłownia ze składem opału oraz garaż.
Technologia tradycyjna.
Materiały ścian zewnętrznych: pustak ceramiczny, styropian lub wełna mineralna, tynk cienkowarstwowy
Stropy w budynku: żelbetowe.
Kąt nachylenia dachu: 40°.
Koszty budowy sprawdź >>
Architekt: Ewa Ferfecka-Homola, Anna Tenerowicz, Jaromir Mruk
Projekt ten został opracowany zgodnie z normami budowlanymi, w pełnym zakresie wymaganym dla projektów gotowych.
Projekt ten nie wymaga pozwolenia na budowę i może być budowany na zgłoszenie zgodnie ze znowelizowanym Prawem Budowlanym obowiązującym od 3.01.2022 roku czytaj więcej >>
Ten projekt możesz zamówić także w wersji szkieletowej zobacz szczegóły >>
Zawartość projektu sprawdź szczegóły >>
Łączna zawartość obu projektów architektoniczno - budowlanego oraz projektu technicznego, które można zamówić razem lub osobno:
- projekt architektoniczny budowlany
- projekt konstrukcyjny budowlany
- projekt budowlany wewnętrznych instalacji sanitarnych (c.o, wod-kan)
- projekt budowlany wewnętrznej instalacji elektrycznej oraz instalacji odgromowej
- szacunkowa charakterystyka energetyczna
- zgoda na zmiany w projekcie
Parametry projektu
Ogólne kategorie, do których należy ten projekt
- Powierzchnia mieszkalna (m²) 70 - 100
- Powierzchnia użytkowa (m²) 100 - 150
- Powierzchnia zabudowy (m²) 70 - 100
- Kąt nachylenia dachu (°) 35 - 40
- Szerokość działki/krótszy bok (m) 12 - 14
- Długość działki/dłuższy bok (m) 25 - 30
- Wysokość budynku (m) 7 - 8
Podstawowe parametry projektu
- Powierzchnia mieszkalna (m²) 90.98
- Powierzchnia użytkowa (m²) 124.93
- Powierzchnia zabudowy (m²) 74.70
- Szerokość budynku/krótszy bok (m) 6
- Długość budynku/dłuższy bok (m) 11.6
- Wysokość budynku (m) 7.46
- Szerokość działki/krótszy bok (m) 14.00
- Długość działki/dłuższy bok (m) 25.50
- Kąt nachylenia dachu (°) 40
- Rodzaj dachu dwuspadowy
- Piwnica częściowo podpiwniczony
- Garaż z garażem
- Poddasze poddasze użytkowe
- Liczba sypialni na parterze 0
Uzupełniające parametry projektu
- Rodzaj technologii* tradycyjna
- Fundamenty ława fundamentowa
- Strop w budynku* żelbetowy
- Układ dachu szczytowy
- Pokrycie dachu* dachówka ceramiczna
- Kubatura (m³) 485.10
- Liczba kondygnacji 3
- Wentylacja* grawitacyjna
- Liczba pomieszczeń 14
- Liczba wszystkich pokoi 3
- Liczba łazienek (bez WC) 2
Dodatkowe parametry projektu
- Kominek* nie
- Garderoba* tak
- Spiżarnia* nie
- Pokój z łazienką i garderobą* nie
- Pralnia / pom. gospodarcze* nie
- Kotłownia* tak
- Taras tak
- Weranda nie
- Wirtualny spacer nie
* gwiazdką są oznaczone w parametrach projektu zmiany nieistotne, które nie wymagają przeprojektowania do pozwolenia zamiennego. Do każdego projektu dołączamy bezpłatną zgodę na wprowadzanie zarówno zmian istotnych jak i nieistotnych.
Projekty domów można również przeglądać analizując zestawienia rzutów parterów kliknij tutaj >>
Darmowe dodatki do projektu
- 10 stylowych projektów ogrodzeń
- 10 projektów śmietników
- 5 projektów grilli z funkcją rusztu, kominka i wędzarni
- 6 projektów oczek wodnych
- 6 projektów altan
- 4 projekty huśtawek ogrodowych
- 4 projekty bud dla psów
- 4 projekty szamb o poj. 21,6 m3 / 14,6 m3 / 10 m3 i 6,4 m3
- 2 projekty przydomowej oczyszczalni ścieków. Jeden dla rodziny do 4 osób, drugi dla rodziny do 6 osób
- projekt przydomowej elektrowni wiatrowej
- schemat instalacji fotowoltaicznej
- projekty budek lęgowych dla kilkudziesięciu gatunków ptaków
- zgoda na wszelkie zmiany i adaptacje
Producentem projektu jest:

ul. Cystersów 7B, 31-553 Kraków
e-mail: kbprojekt@kbprojekt.pl
tel. 12 414 35 06
Pomocne informacje
Chcesz wprowadzić zmiany w tym projekcie?
Możemy dostosować go do Twoich potrzeb, napisz co chciałbyś w nim zmienić, przeprojektujemy go tak, aby w pełni odpowiadał Twoim oczekiwaniom
Chcesz dostosować ten projekt we własnym zakresie?
Sprawdź jakie zmiany są nieistotne czyli takie, ktore możesz wprowadzić na etapie budowy zobacz szczegóły >>
Nie możesz znaleźć odpowiedniego projektu?
Chętnie pomożemy. Zadzwoń do nas 12 410 49 70 lub skorzystaj z formularza kontaktowego dostępnego tutaj >>
Szukasz projektu dopasowanego do Twoich potrzeb?
Sprawdź naszą ofertę na projekty domów na indywidualne zamówienie w niezwykle atrakcyjnej cenie zobacz szczegóły >>
Potrzebujesz adaptacji projektu lub pomocy w załatwieniu formalności związanych z budową?
Nasze biuro architektoniczne oferuje pomoc w uzyskaniu pozwolenia na budowę a także wykonuje adaptacje projektów na terenie całej Polski zobacz szczegóły >>
Szukasz sprawdzonego kierownika budowy?
Oferujemy usługi naszych uprawnionych kierowników budowy, którzy przeprowadzą Cię przez cały proces budowlany, od uzyskania pozwolenia na budowę po finalne odbiory zobacz szczegóły >>
Opinie o tym projekcie
Jeśli dodałeś/-aś recenzję, a nie pojawiłą się na liście, być może oczekuje na moderację.