Paczółtowice
Kod: L-6016
| Projekt na zamówienie dostępny w terminie ustalonym z biurem skontaktuj się >> | |
| W podanej cenie oferujemy 3 kopie projektu architektoniczno-budowlanego potrzebnego do uzyskania pozwolenia na budowę sprawdź >> | |
| Parametry projektu zobacz >> | |
| Odbicie lustrzane projektu zobacz >> | |
| Koszty budowy zobacz >> | |
| Forum dotyczące tego projektu zobacz >> |
| Zmiany istotne i nieistotne, które możesz wprowadzić w tym projekcie sprawdź >> | |
| Adaptacja i pozwolenie na budowę zobacz >> | |
| Jeśli masz pytanie |
Prezentacja projektu
Opis projektu
Projekt domu L-6016. Dom parterowy z garażem, z poddaszem mieszkalnym, bez podpiwniczenia.
Rzut parteru

1. POKÓJ DZIENNY 19,1 m2
2. POKÓJ 13,7 m2
3. KOMUNIKACJA 11,3 m2
4. WC 2,3 m2
5. KUCHNIA 7,9 m2
6. WIATROŁAP 2,4 m2
7. POMIESZCZENIE GOSPODARCZE 5,3 m2
8. GARAŻ 18,4 m2
Podczas organizacji przestrzeni parteru, twórcy projektu mieli na uwadze przede wszystkim wygodę przyszłych domowników. Dlatego oprócz tradycyjnej strefy dziennej znalazł się tu również dodatkowy pokój. Ułożenie od strony ogrodu i odpowiednia konstrukcja ścian zapewniają w nim ciszę i spokój, stwarzając idealne warunki do pracy lub odpoczynku. Na prawo od wygodnego wiatrołapu umieszczono sporą kotłownię, a za nią WC. Na lewo znajduje się narożna, dobrze oświetlona kuchnia oraz salon. Jak przystało na centrum rodzinnych spotkań jest on przestronny, wyposażony w nastrojowy kominek oraz wyjście na taras. Z prawej strony do parteru przylega garaż.
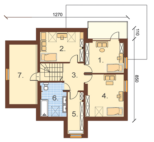
Rzut piętra / antresoli

1. POKÓJ 12,8 m2
2. POKÓJ 12,8 m2
3. KOMUNIKACJA 10,5 m2
4. POKÓJ 16,0 m2
5. GARDEROBA 7, m2
6. ŁAZIENKA 8,3 m2
7. STRYSZEK 7,4 m2
Poddasze to przede wszystkim strefa odpoczynku nocnego. Znajdują się tu trzy przestronne sypialnie, ogólnodostępna garderoba i ustawna łazienka. Nad garażem umieszczono funkcjonalny stryszek, który pomieści wszystkie nieużywane na co dzień sprzęty domowe, narty i rolki, a w razie potrzeby będzie go można zaadaptować na dodatkowy pokoik.
Przekrój

Model 3D

Budynek posiada zgrabną bryłę, której uroku dodaje lekko zaburzona symetria - z lewej strony dodany został garaż. Z prawej równoważy go podcień, a od strony ogrodu taras i balkon. Całość komponuje się harmonijnie, a przede wszystkim pozwala na funkcjonalną organizację wnętrza.
Elewacje




Informacje podstawowe
Projekt domu L-6016. Dom parterowy z garażem, z poddaszem mieszkalnym, bez podpiwniczenia.
Technologia tradycyjna.
Ściany zewnętrzne: pustak MAX 29 cm, styropian 10 cm, tynk zewnętrzny.
Stropy w budynku: żelbetowe.
Kąt nachylenia dachu: 40°. |
Program: 4 pokoje, salon, kuchnia, stryszek, pomieszczenie gospodarcze, garderoba oraz garaż.
ZAWARTOŚĆ PROJEKTU:
- projekt architektoniczny budowlany
- projekt konstrukcyjny budowlany
- projekt budowlany wewnętrznych instalacji sanitarnych (c.o, wod-kan,gaz)
- projekt budowlany wewnętrznej instalacji elektrycznej oraz instalacji odgromowej
- zestawienie materiałów budowlanych
- zgoda na zmiany w projekcie
Koszty budowy sprawdź >>
Architekt: Anna Barcentewicz, Agnieszka Leśniak,
Projekt ten został opracowany zgodnie z normami budowlanymi, w pełnym zakresie wymaganym dla projektów gotowych.
Projekt ten nie wymaga pozwolenia na budowę i może być budowany na zgłoszenie zgodnie ze znowelizowanym Prawem Budowlanym obowiązującym od 3.01.2022 roku czytaj więcej >>
Zawartość projektu sprawdź szczegóły >>
Łączna zawartość obu projektów architektoniczno - budowlanego oraz projektu technicznego, które można zamówić razem lub osobno:
Parametry projektu
Ogólne kategorie, do których należy ten projekt
- Powierzchnia mieszkalna (m²) 100 - 150
- Powierzchnia użytkowa (m²) 150 - 200
- Powierzchnia zabudowy (m²) 120 - 150
- Kąt nachylenia dachu (°) 35 - 40
- Szerokość działki/krótszy bok (m) 20 - 25
- Wysokość budynku (m) 8 - 9
Podstawowe parametry projektu
- Powierzchnia mieszkalna (m²) 131.80
- Powierzchnia użytkowa (m²) 155.50
- Powierzchnia zabudowy (m²) 129.90
- Szerokość budynku/krótszy bok (m) 11,3
- Długość budynku/dłuższy bok (m) 12,7
- Wysokość budynku (m) 9,02
- Szerokość działki/krótszy bok (m) 20.70
- Kąt nachylenia dachu (°) 40°
- Rodzaj dachu dwuspadowy
- Piwnica bez podpiwniczenia
- Garaż z garażem (dostawionym z boku)
- Poddasze poddasze użytkowe
Uzupełniające parametry projektu
- Rodzaj technologii* tradycyjna
- Układ dachu kalenicowy
- Kubatura (m³) 521.00
- Liczba kondygnacji 2
- Rodzaj ogrzewania gazowe
- Liczba pomieszczeń 15
- Liczba łazienek (bez WC) 1
* gwiazdką są oznaczone w parametrach projektu zmiany nieistotne, które nie wymagają przeprojektowania do pozwolenia zamiennego. Do każdego projektu dołączamy bezpłatną zgodę na wprowadzanie zarówno zmian istotnych jak i nieistotnych.
Projekty domów można również przeglądać analizując zestawienia rzutów parterów kliknij tutaj >>
Darmowe dodatki do projektu
- 10 stylowych projektów ogrodzeń
- 10 projektów śmietników
- 5 projektów grilli z funkcją rusztu, kominka i wędzarni
- 6 projektów oczek wodnych
- 6 projektów altan
- 4 projekty huśtawek ogrodowych
- 4 projekty bud dla psów
- 4 projekty szamb o poj. 21,6 m3 / 14,6 m3 / 10 m3 i 6,4 m3
- 2 projekty przydomowej oczyszczalni ścieków. Jeden dla rodziny do 4 osób, drugi dla rodziny do 6 osób
- projekt przydomowej elektrowni wiatrowej
- schemat instalacji fotowoltaicznej
- projekty budek lęgowych dla kilkudziesięciu gatunków ptaków
- zgoda na wszelkie zmiany i adaptacje
Producentem projektu jest:

ul. Cystersów 7B, 31-553 Kraków
e-mail: kbprojekt@kbprojekt.pl
tel. 12 414 35 06
Pomocne informacje
Chcesz wprowadzić zmiany w tym projekcie?
Możemy dostosować go do Twoich potrzeb, napisz co chciałbyś w nim zmienić, przeprojektujemy go tak, aby w pełni odpowiadał Twoim oczekiwaniom
Chcesz dostosować ten projekt we własnym zakresie?
Sprawdź jakie zmiany są nieistotne czyli takie, ktore możesz wprowadzić na etapie budowy zobacz szczegóły >>
Nie możesz znaleźć odpowiedniego projektu?
Chętnie pomożemy. Zadzwoń do nas 12 410 49 70 lub skorzystaj z formularza kontaktowego dostępnego tutaj >>
Szukasz projektu dopasowanego do Twoich potrzeb?
Sprawdź naszą ofertę na projekty domów na indywidualne zamówienie w niezwykle atrakcyjnej cenie zobacz szczegóły >>
Potrzebujesz adaptacji projektu lub pomocy w załatwieniu formalności związanych z budową?
Nasze biuro architektoniczne oferuje pomoc w uzyskaniu pozwolenia na budowę a także wykonuje adaptacje projektów na terenie całej Polski zobacz szczegóły >>
Szukasz sprawdzonego kierownika budowy?
Oferujemy usługi naszych uprawnionych kierowników budowy, którzy przeprowadzą Cię przez cały proces budowlany, od uzyskania pozwolenia na budowę po finalne odbiory zobacz szczegóły >>
Opinie o tym projekcie
Jeśli dodałeś/-aś recenzję, a nie pojawiłą się na liście, być może oczekuje na moderację.