Flexum
Kod: DM-6715
| W podanej cenie oferujemy 3 kopie projektu architektoniczno-budowlanego potrzebnego do uzyskania pozwolenia na budowę sprawdź >> | |
| Projekt techniczny zamów >> | |
| Parametry projektu zobacz >> | |
| Odbicie lustrzane projektu zobacz >> | |
| Koszty budowy zobacz >> | |
| Forum dotyczące tego projektu zobacz >> |
| Zmiany istotne i nieistotne, które możesz wprowadzić w tym projekcie sprawdź >> | |
| Adaptacja i pozwolenie na budowę zobacz >> | |
| Jeśli masz pytanie |
Prezentacja projektu
Opis projektu
Projekt domu piętrowy, jednorodzinny, tradycyjny, bez garażu, z dachem dwuspadowym, z kątem nachylenia do 35°, technologia murowana lub szkieletowa, bez kominka, energooszczędny, do 100 m2, koszty budowy do 180 tys. zł
Rzut parteru

PARTER: 49,37 m2
1. Wiatrołap 2,07 m2
2. Przedpokój + 1/2 schodów 10,37 m2
3. Jadalnia 8,17 m2
4. Kuchnia 7,09 m2
5. Łazienka 4,16 m2
6. Pokój dzienny 17,53 m2
Program rozpoczyna się wiatrołapem następnie jest jadalnia i kuchnia. Obok jadalni są schody na poddasze, a za kuchnią mamy łazienkę. Ostatnim pomieszczeniem na parterze jest pokój dzienny z którego domownicy mogą wyjść na taras.
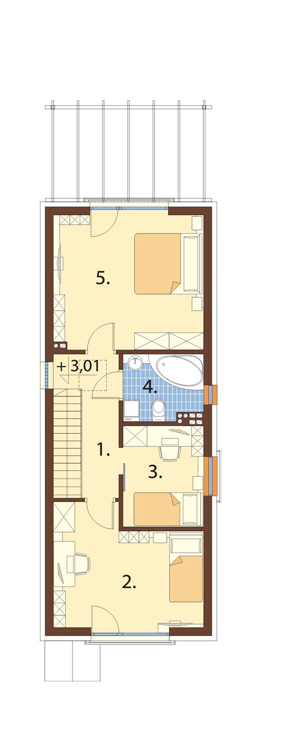
Rzut pierwszego piętra

PIĘTRO: 50,17 m2
1. Przedpokój + 1/2 schodów 6,93 m2
2. Sypilania 14,23 m2
3. Sypialnia 7,04 m2
4. Łazienka 4,44 m2
5. Sypialnia 17,53 m2
Na poddaszu jest strefa sypialna na którą składają się trzy pokoje. Największy ma ponad 17 m?2; powierzchni użytkowej, więc doskonale nadaje się na główną sypialnię. Średni pokój ma 14,23 m?2;, a najmniejszy 7,04 m?2;. Program zamyka wspólna dla poddasza łazienka.
Przekrój


Model 3D

Flexum ma wydłużoną bryłę na planie prostokąta o wymiarach 5,25m na 13m, która doskonale pasuje na wąskie działki. Minimalna szerokość parceli potrzebna do wybudowania domu na bazie tego projektu to 13,25 m. Dom ma dwuspadowy dach o kącie nachylenia połaci równym dwadzieścia pięć stopni (blachodachówka).
Elewacje




Informacje podstawowe
Projekt domu DM-6715 FLEXUM
Budynek piętrowy, niepodpiwniczony i bez garażu.
Dom przeznaczony dla 3 - 5 osób.
Technologia: tradycyjna
Ściany zewnętrzne: bloczki z betonu komórkowego 24 cm, styropian 15 cm, tynk zewnętrzny
Stropy w budynku: teriva
Kąt nachylenia dachu: 25°
Ogrzewanie: kocioł na paliwo gazowe, cwu ogrzewane z pompy ciepła do cwu
Wentylacja: grawitacyjna
Pokrycie dachu: blachodachówka
Powierzchnia dach: 75,37 m2
Program: wiatrołap, przedpokój, jadalnia, kuchnia, 2 łazienki, pokój dzienny, 3 sypialnie.
Obok budynku zaprojektowano instalację fotowoltaiczną o mocy około 2,5 kWp, która zasila pompę ciepłą do cwu oraz generuje częściowo prąd na użytek gospodarstwa domowego.
Koszty budowy sprawdź >>
Architekt: Ewa Ferfecka-Homola, Irena Kolenda,
Projekt ten został opracowany zgodnie z normami budowlanymi, w pełnym zakresie wymaganym dla projektów gotowych.
Projekt ten nie wymaga pozwolenia na budowę i może być budowany na zgłoszenie zgodnie ze znowelizowanym Prawem Budowlanym obowiązującym od 3.01.2022 roku czytaj więcej >>
Zawartość projektu sprawdź szczegóły >>
Łączna zawartość obu projektów architektoniczno - budowlanego oraz projektu technicznego, które można zamówić razem lub osobno:
- projekt architektoniczny budowlany
- projekt konstrukcyjny budowlany
- projekt budowlany wewnętrznych instalacji sanitarnych (wod-kan, gaz, c.o. z kotłem na paliwo gazowe)
- projekt budowlany wewnętrznej instalacji elektrycznej oraz instalacji odgromowej i fotowoltaicznej
- zestawienie materiałów
- zestawienie elementów stropu teriva
- projektowana charakterystyka energetyczna budynku
- zgoda na zmiany w projekcie
Parametry projektu
Ogólne kategorie, do których należy ten projekt
- Powierzchnia mieszkalna (m²) 70 - 100
- Powierzchnia użytkowa (m²) 70 - 100
- Powierzchnia zabudowy (m²) 50 - 70
- Kąt nachylenia dachu (°) 20 - 25
- Szerokość działki/krótszy bok (m) 12 - 14
- Wysokość budynku (m) 7 - 8
Podstawowe parametry projektu
- Powierzchnia mieszkalna (m²) 99.54
- Powierzchnia użytkowa (m²) 99.54
- Powierzchnia zabudowy (m²) 68.25
- Szerokość budynku/krótszy bok (m) 5.25
- Długość budynku/dłuższy bok (m) 13
- Wysokość budynku (m) 7.59
- Szerokość działki/krótszy bok (m) 13.25
- Kąt nachylenia dachu (°) 25°
- Rodzaj dachu dwuspadowy
- Piwnica bez podpiwniczenia
- Garaż bez garażu
- Poddasze piętro
Uzupełniające parametry projektu
- Rodzaj technologii* tradycyjna
- Układ dachu szczytowy
- Kubatura (m³) 469.80
- Liczba kondygnacji 2
- Rodzaj ogrzewania gazowe
- Wskaźnik energii pierwotnej (kWh/(m²·rok)) 61.00
- Instalacja fotowoltaiczna* tak
- Liczba pomieszczeń 11
- Liczba łazienek (bez WC) 2
* gwiazdką są oznaczone w parametrach projektu zmiany nieistotne, które nie wymagają przeprojektowania do pozwolenia zamiennego. Do każdego projektu dołączamy bezpłatną zgodę na wprowadzanie zarówno zmian istotnych jak i nieistotnych.
Darmowe dodatki do projektu
- 10 stylowych projektów ogrodzeń
- 10 projektów śmietników
- 5 projektów grilli z funkcją rusztu, kominka i wędzarni
- 6 projektów oczek wodnych
- 6 projektów altan
- 4 projekty huśtawek ogrodowych
- 4 projekty bud dla psów
- 4 projekty szamb o poj. 21,6 m3 / 14,6 m3 / 10 m3 i 6,4 m3
- 2 projekty przydomowej oczyszczalni ścieków. Jeden dla rodziny do 4 osób, drugi dla rodziny do 6 osób
- projekt przydomowej elektrowni wiatrowej
- schemat instalacji fotowoltaicznej
- projekty budek lęgowych dla kilkudziesięciu gatunków ptaków
- zgoda na wszelkie zmiany i adaptacje
Producentem projektu jest:

ul. Cystersów 7B, 31-553 Kraków
e-mail: kbprojekt@kbprojekt.pl
tel. 12 414 35 06
Pomocne informacje
Chcesz wprowadzić zmiany w tym projekcie?
Możemy dostosować go do Twoich potrzeb, napisz co chciałbyś w nim zmienić, przeprojektujemy go tak, aby w pełni odpowiadał Twoim oczekiwaniom
Chcesz dostosować ten projekt we własnym zakresie?
Sprawdź jakie zmiany są nieistotne czyli takie, ktore możesz wprowadzić na etapie budowy zobacz szczegóły >>
Nie możesz znaleźć odpowiedniego projektu?
Chętnie pomożemy. Zadzwoń do nas 12 410 49 70 lub skorzystaj z formularza kontaktowego dostępnego tutaj >>
Szukasz projektu dopasowanego do Twoich potrzeb?
Sprawdź naszą ofertę na projekty domów na indywidualne zamówienie w niezwykle atrakcyjnej cenie zobacz szczegóły >>
Potrzebujesz adaptacji projektu lub pomocy w załatwieniu formalności związanych z budową?
Nasze biuro architektoniczne oferuje pomoc w uzyskaniu pozwolenia na budowę a także wykonuje adaptacje projektów na terenie całej Polski zobacz szczegóły >>
Szukasz sprawdzonego kierownika budowy?
Oferujemy usługi naszych uprawnionych kierowników budowy, którzy przeprowadzą Cię przez cały proces budowlany, od uzyskania pozwolenia na budowę po finalne odbiory zobacz szczegóły >>
Opinie o tym projekcie
Jeśli dodałeś/-aś recenzję, a nie pojawiłą się na liście, być może oczekuje na moderację.