Jastruń 2
Kod: L-6540
| W podanej cenie oferujemy 3 kopie projektu architektoniczno-budowlanego potrzebnego do uzyskania pozwolenia na budowę sprawdź >> | |
| Projekt techniczny zamów >> | |
| Parametry projektu zobacz >> | |
| Odbicie lustrzane projektu zobacz >> | |
| Koszty budowy zobacz >> | |
| Forum dotyczące tego projektu zobacz >> |
| Zmiany istotne i nieistotne, które możesz wprowadzić w tym projekcie sprawdź >> | |
| Adaptacja i pozwolenie na budowę zobacz >> | |
| Jeśli masz pytanie |
Prezentacja projektu
Opis projektu
Projekt domu L-6540 JASTRUŃ 2 Dom dwurodzinny w zabudowie bliźniaczej. Parterowy z poddaszem użytkowym , bez podpiwniczenia, z garażem. Przestronna nowoczesna bryła i dobrze rozplanowana przestrzeń tego projektu domu pozwoli cieszyć się wieloma potrzebnymi i funkcjonalnymi zakamarkami, które można przeznaczyć na spiżarnię, czy pomieszczenie gospodarcze z wc.
Rzut parteru

PARTER SEGMENT I 108,36 m2
1. PRZEDPOKÓJ 4,18 m2
2. HALL+SCHODY 17,33 m2
3. KUCHNIA 6,55 m2
4. SPIŻARNIA 2,36 m2
5. POKÓJ DZIENNY 30,47 m2
6. SYPIALNIA 13,78 m2
7. POM. GOSPODARCZE z WC 4,15 m2
8. SYPIALNIA 10,64 m2
9. GARAŻ 18.90 m2
PARTER SEGMENT II 108.44 m2
10. PRZEDPOKÓJ 4,17 m2
11. HALL+SCHODY 13,43 m2
12. KUCHNIA 6,69 m2
13. SPIŻARNIA 2,36 m2
14. POKÓJ DZIENNY 33,29 m2
15. SYPIALNIA 13,78 m2
16. POM. GOSPODARCZE 5,41 m2
17. ŁAZIENKA 10,41 m2
18. GARAŻ 18.90 m2
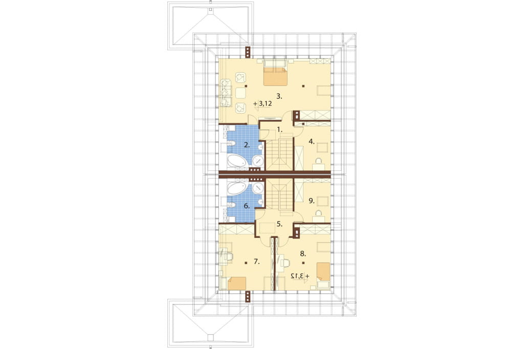
Rzut piętra / antresoli

PODDASZE SEGMENT I 43,38 m2
5. HAL 6,13 m2
6. ŁAZIENKA 7,56 m2
7. SYPIALNIA 11,94 m2
8. SYPIALNIA 11,62 m2
9. GARDEROBA 6,13m2
PODDASZE SEGMENT II 43,99 m2
1. HAL 3,66 m2
2. ŁAZIENKA 8,25 m2
3. SYPIALNIA 25,29 m2
4. GARDEROBA 6,79 m2
Przekrój


Model 3D

Elewacje




Informacje podstawowe
Projekt domu L-6540 JASTRUŃ 2
Dom dwurodzinny w zabudowie bliźniaczej. Parterowy z poddaszem użytkowym , bez podpiwniczenia, z garażem.
Technologia tradycyjna. Ściany zewnętrzne: pustak ceramiczny 25 cm, styropian 15 cm, tynk zewnętrzny.
Strop nad parterem: żelbetowy.
Kąt nachylenia dachu 40°,
Ogrzewanie: kocioł na paliwo gazowe
Wentylacja: grawitacyjna
Program:
SEGMENT I
Parter - ganek, przedpokój, komunikacja, kuchnia, spiżarnia, pokój dzienny, sypialnia, pom. gospodarcze, łazienka, garaż.
Poddasze - hall, łazienka, 2 sypialnie, garderoba.
SEGMENT II
Parter - ganek, przedpokój, komunikacja, kuchnia, spiżarnia, pokój dzienny, sypialnia, pom. gospodarcze, łazienka, garaż.
Poddasze - hall, łazienka, sypialnia, garderoba.
Przedstawiona cena dotyczy jednego segmentu budynku.
Koszty budowy sprawdź >>
Architekt: Ewa Ferfecka-Homola, Anna Tenerowicz,
Projekt ten został opracowany zgodnie z normami budowlanymi, w pełnym zakresie wymaganym dla projektów gotowych.
Projekt ten nie wymaga pozwolenia na budowę i może być budowany na zgłoszenie zgodnie ze znowelizowanym Prawem Budowlanym obowiązującym od 3.01.2022 roku czytaj więcej >>
Zawartość projektu sprawdź szczegóły >>
Łączna zawartość obu projektów architektoniczno - budowlanego oraz projektu technicznego, które można zamówić razem lub osobno:
- projekt architektoniczny budowlany
- projekt konstrukcyjny budowlany
- projekt budowlany wewnętrznych instalacji sanitarnych (c.o, wod-kan,gaz)
- projekt budowlany wewnętrznej instalacji elektrycznej oraz instalacji odgromowej
- projektowana charakterystyka energetyczna
- zgoda na zmiany w projekcie
Parametry projektu
Ogólne kategorie, do których należy ten projekt
- Powierzchnia mieszkalna (m²) 250 - 300
- Powierzchnia użytkowa (m²) 300 - 500
- Powierzchnia zabudowy (m²) 200 - 300
- Kąt nachylenia dachu (°) 35 - 40
- Szerokość działki/krótszy bok (m) 20 - 25
- Wysokość budynku (m) 8 - 9
Podstawowe parametry projektu
- Powierzchnia mieszkalna (m²) 260.96
- Powierzchnia użytkowa (m²) 304.17
- Powierzchnia zabudowy (m²) 272.00
- Szerokość budynku/krótszy bok (m) 14.1
- Długość budynku/dłuższy bok (m) 27.2
- Wysokość budynku (m) 8.65
- Szerokość działki/krótszy bok (m) 23.08
- Kąt nachylenia dachu (°) 40
- Rodzaj dachu kopertowy
- Piwnica bez podpiwniczenia
- Garaż z garażem
- Poddasze poddasze użytkowe
Uzupełniające parametry projektu
- Rodzaj technologii* tradycyjna
- Układ dachu kalenicowy
- Kubatura (m³) 693.40
- Liczba kondygnacji 2
- Rodzaj ogrzewania gazowe
- Wskaźnik energii pierwotnej (kWh/(m²·rok)) 68.40
- Liczba pomieszczeń 29
- Liczba łazienek (bez WC) 3
* gwiazdką są oznaczone w parametrach projektu zmiany nieistotne, które nie wymagają przeprojektowania do pozwolenia zamiennego. Do każdego projektu dołączamy bezpłatną zgodę na wprowadzanie zarówno zmian istotnych jak i nieistotnych.
Projekty domów można również przeglądać analizując zestawienia rzutów parterów kliknij tutaj >>
Darmowe dodatki do projektu
- 10 stylowych projektów ogrodzeń
- 10 projektów śmietników
- 5 projektów grilli z funkcją rusztu, kominka i wędzarni
- 6 projektów oczek wodnych
- 6 projektów altan
- 4 projekty huśtawek ogrodowych
- 4 projekty bud dla psów
- 4 projekty szamb o poj. 21,6 m3 / 14,6 m3 / 10 m3 i 6,4 m3
- 2 projekty przydomowej oczyszczalni ścieków. Jeden dla rodziny do 4 osób, drugi dla rodziny do 6 osób
- projekt przydomowej elektrowni wiatrowej
- schemat instalacji fotowoltaicznej
- projekty budek lęgowych dla kilkudziesięciu gatunków ptaków
- zgoda na wszelkie zmiany i adaptacje
Producentem projektu jest:

ul. Cystersów 7B, 31-553 Kraków
e-mail: kbprojekt@kbprojekt.pl
tel. 12 414 35 06
Pomocne informacje
Chcesz wprowadzić zmiany w tym projekcie?
Możemy dostosować go do Twoich potrzeb, napisz co chciałbyś w nim zmienić, przeprojektujemy go tak, aby w pełni odpowiadał Twoim oczekiwaniom
Chcesz dostosować ten projekt we własnym zakresie?
Sprawdź jakie zmiany są nieistotne czyli takie, ktore możesz wprowadzić na etapie budowy zobacz szczegóły >>
Nie możesz znaleźć odpowiedniego projektu?
Chętnie pomożemy. Zadzwoń do nas 12 410 49 70 lub skorzystaj z formularza kontaktowego dostępnego tutaj >>
Szukasz projektu dopasowanego do Twoich potrzeb?
Sprawdź naszą ofertę na projekty domów na indywidualne zamówienie w niezwykle atrakcyjnej cenie zobacz szczegóły >>
Potrzebujesz adaptacji projektu lub pomocy w załatwieniu formalności związanych z budową?
Nasze biuro architektoniczne oferuje pomoc w uzyskaniu pozwolenia na budowę a także wykonuje adaptacje projektów na terenie całej Polski zobacz szczegóły >>
Szukasz sprawdzonego kierownika budowy?
Oferujemy usługi naszych uprawnionych kierowników budowy, którzy przeprowadzą Cię przez cały proces budowlany, od uzyskania pozwolenia na budowę po finalne odbiory zobacz szczegóły >>
Opinie o tym projekcie
Jeśli dodałeś/-aś recenzję, a nie pojawiłą się na liście, być może oczekuje na moderację.