Begoniów 2
Kod: L-6569
| W podanej cenie oferujemy 3 kopie projektu architektoniczno-budowlanego potrzebnego do uzyskania pozwolenia na budowę sprawdź >> | |
| Projekt techniczny zamów >> | |
| Parametry projektu zobacz >> | |
| Odbicie lustrzane projektu zobacz >> | |
| Koszty budowy zobacz >> | |
| Forum dotyczące tego projektu zobacz >> |
| Zmiany istotne i nieistotne, które możesz wprowadzić w tym projekcie sprawdź >> | |
| Adaptacja i pozwolenie na budowę zobacz >> | |
| Jeśli masz pytanie |
Prezentacja projektu
Opis projektu
Projekt domu BEGONIÓW 2, L-6569, parterowy z poddaszem użytkowym i antresolą, bez podpiwniczenia. Przykuwa wzrok swoją nowoczesną, harmonijną bryłą. To doskonały projekt dla inwestorów ceniących sobie odważne rozwiązania funkcjonalne i lubiących minimalistyczną współczesną architekturę.
Rzut parteru

Parter: 103.96 m2
1. Wiatrołap 4.08 m2
2. Korytarz 5.96 m2
3. Salon 55.57 m2
4. Kuchnia 6.32 m2
5. Łazienka 7.85 m2
6. Garderoba 6.40 m2
7. Pom. gospodarcze 4.94 m2
8. Pokój 10.79 m2
9. Klatka schodowa 2.05 m2
Begoniów 2 ma bardzo ciekawy pogram parteru. Najważniejszym pomieszczeniem jest duży i widny salon z kominkiem. Będzie to doskonałe miejsce do rodzinnych spotkań i codziennego relaksu. Dodatkowo na parterze jest mały pokój sypialny przy schodach, otwarta na salon kuchnia, pomieszczenie gospodarcze, łazienka i przestronna garderoba przy wiatrołapie.
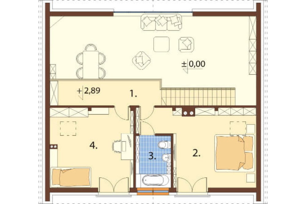
Rzut piętra / antresoli

Poddasze: 43,55 m2
1. 1/2kl. schodowej 8,80 / 11,44 m2
2. Pokój 15,76 / 21,24 m2
3. Łazienka 5,73 m2
4. Pokój 13,26 / 23,75 m2
Poddasze z antresolą zaprojektowaliśmy jako strefę sypialną. Są tu dwa pokoje, z czego większy o powierzchni 15,76 m2 ma dodatkowo prywatną łazienkę.
Przekrój

Model 3D

Begoniów polecamy inwestorom pragnącym zbudować nowoczesny dom parterowy z poddaszem użytkowym o minimalistycznej architekturze. Od strony ogrodowej w elewacji zastosowaliśmy dużą ilość przeszkeleń, które zapewniają doskonałe doświetlenie strefy dziennej. Projekt ten ma bryłę na planie zbliżonym do kwadratu, a minimalna szerokość działki potrzebna do jego realizacji to 19,5m. Dwuspadowy dach doskonale nadaje się do zamontowania solarów.
Elewacje




Informacje podstawowe
Projekt domu L-6569 "BEGONIÓW 2" Dom parterowy z poddaszem użytkowym i antresolą, niepodpiwniczony i bez garażu.
Technologia: tradycyjna.
Ściany zewnętrzne:pustak ceramiczny 25 cm, styropian lub wełna utwardzona 15 cm, tynk zewnętrzny ciepłochłonny.
Strop nad parterem: żelbetowy
Kąt nachylenia dachu: 26°
Ogrzewanie: gazowe, podgrzewanie c.w.u wspomagane przez instalację solarną
Wentylacja: mechaniczna z odzyskiem ciepła
Program: wiatrołap, garderoba, kuchnia, salon, dwie łazienki, trzy pokoje, pomieszczenie gospodarcze.
Koszty budowy sprawdź >>
Architekt: Ewa Ferfecka-Homola, Marek Lizak,
Projekt ten został opracowany zgodnie z normami budowlanymi, w pełnym zakresie wymaganym dla projektów gotowych.
Projekt ten nie wymaga pozwolenia na budowę i może być budowany na zgłoszenie zgodnie ze znowelizowanym Prawem Budowlanym obowiązującym od 3.01.2022 roku czytaj więcej >>
Zawartość projektu sprawdź szczegóły >>
Łączna zawartość obu projektów architektoniczno - budowlanego oraz projektu technicznego, które można zamówić razem lub osobno:
- projekt architektoniczny budowlany
- projekt konstrukcyjny budowlany
- projekt budowlany wewnętrznych instalacji sanitarnych (c.o, wod-kan, gaz, solarna, wentylacja mechaniczna)
- projekt budowlany wewnętrznej instalacji elektrycznej oraz instalacji odgromowej
- projektowana charakterystyka energetyczna
- zgoda na zmiany w projekcie
Parametry projektu
Ogólne kategorie, do których należy ten projekt
- Powierzchnia mieszkalna (m²) 100 - 150
- Powierzchnia użytkowa (m²) 100 - 150
- Powierzchnia zabudowy (m²) 120 - 150
- Kąt nachylenia dachu (°) 25 - 30
- Szerokość działki/krótszy bok (m) 18 - 20
- Wysokość budynku (m) 7 - 8
Podstawowe parametry projektu
- Powierzchnia mieszkalna (m²) 142.57
- Powierzchnia użytkowa (m²) 147.51
- Powierzchnia zabudowy (m²) 132.35
- Szerokość budynku/krótszy bok (m) 11.5
- Długość budynku/dłuższy bok (m) 12.5
- Wysokość budynku (m) 7.15
- Szerokość działki/krótszy bok (m) 19.50
- Kąt nachylenia dachu (°) 26°
- Rodzaj dachu dwuspadowy
- Piwnica bez podpiwniczenia
- Garaż bez garażu
- Poddasze antresola
Uzupełniające parametry projektu
- Rodzaj technologii* tradycyjna
- Układ dachu szczytowy
- Kubatura (m³) 776.41
- Liczba kondygnacji 2
- Rodzaj ogrzewania gazowe
- Wskaźnik energii pierwotnej (kWh/(m²·rok)) 68.84
- Liczba pomieszczeń 13
- Liczba łazienek (bez WC) 2
* gwiazdką są oznaczone w parametrach projektu zmiany nieistotne, które nie wymagają przeprojektowania do pozwolenia zamiennego. Do każdego projektu dołączamy bezpłatną zgodę na wprowadzanie zarówno zmian istotnych jak i nieistotnych.
Projekty domów można również przeglądać analizując zestawienia rzutów parterów kliknij tutaj >>
Darmowe dodatki do projektu
- 10 stylowych projektów ogrodzeń
- 10 projektów śmietników
- 5 projektów grilli z funkcją rusztu, kominka i wędzarni
- 6 projektów oczek wodnych
- 6 projektów altan
- 4 projekty huśtawek ogrodowych
- 4 projekty bud dla psów
- 4 projekty szamb o poj. 21,6 m3 / 14,6 m3 / 10 m3 i 6,4 m3
- 2 projekty przydomowej oczyszczalni ścieków. Jeden dla rodziny do 4 osób, drugi dla rodziny do 6 osób
- projekt przydomowej elektrowni wiatrowej
- schemat instalacji fotowoltaicznej
- projekty budek lęgowych dla kilkudziesięciu gatunków ptaków
- zgoda na wszelkie zmiany i adaptacje
Producentem projektu jest:

ul. Cystersów 7B, 31-553 Kraków
e-mail: kbprojekt@kbprojekt.pl
tel. 12 414 35 06
Pomocne informacje
Chcesz wprowadzić zmiany w tym projekcie?
Możemy dostosować go do Twoich potrzeb, napisz co chciałbyś w nim zmienić, przeprojektujemy go tak, aby w pełni odpowiadał Twoim oczekiwaniom
Chcesz dostosować ten projekt we własnym zakresie?
Sprawdź jakie zmiany są nieistotne czyli takie, ktore możesz wprowadzić na etapie budowy zobacz szczegóły >>
Nie możesz znaleźć odpowiedniego projektu?
Chętnie pomożemy. Zadzwoń do nas 12 410 49 70 lub skorzystaj z formularza kontaktowego dostępnego tutaj >>
Szukasz projektu dopasowanego do Twoich potrzeb?
Sprawdź naszą ofertę na projekty domów na indywidualne zamówienie w niezwykle atrakcyjnej cenie zobacz szczegóły >>
Potrzebujesz adaptacji projektu lub pomocy w załatwieniu formalności związanych z budową?
Nasze biuro architektoniczne oferuje pomoc w uzyskaniu pozwolenia na budowę a także wykonuje adaptacje projektów na terenie całej Polski zobacz szczegóły >>
Szukasz sprawdzonego kierownika budowy?
Oferujemy usługi naszych uprawnionych kierowników budowy, którzy przeprowadzą Cię przez cały proces budowlany, od uzyskania pozwolenia na budowę po finalne odbiory zobacz szczegóły >>
Opinie o tym projekcie
Jeśli dodałeś/-aś recenzję, a nie pojawiłą się na liście, być może oczekuje na moderację.