Makowo
Kod: DM-6531
| W podanej cenie oferujemy 3 kopie projektu architektoniczno-budowlanego potrzebnego do uzyskania pozwolenia na budowę sprawdź >> | |
| Projekt techniczny zamów >> | |
| Parametry projektu zobacz >> | |
| Odbicie lustrzane projektu zobacz >> | |
| Koszty budowy zobacz >> | |
| Forum dotyczące tego projektu zobacz >> |
| Zmiany istotne i nieistotne, które możesz wprowadzić w tym projekcie sprawdź >> | |
| Adaptacja i pozwolenie na budowę zobacz >> | |
| Jeśli masz pytanie |
Prezentacja projektu
Opis projektu
Powierzchnia użytkowa: 234,80 m2. Dom parterowy z poddaszem, bez garażu, niepodpiwniczony.
Projekt domu Makowo to połączenie nowoczesności z tradycją. W nieskomplikowanej bryle stworzyliśmy bogaty program pomieszczeń doskonały dla dużej rodziny poszukującej komfortowego, a niedrogiego w budowie domu.
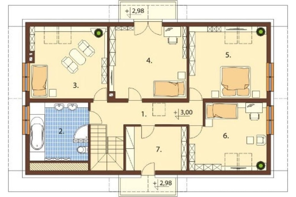
Rzut parteru

Parter: 113,3 m2
1. Wiatrołap 5,1 m2
2. Garderoba 3,4 m2
3. Hall + 1/2kom. 15,4 m2
4. Łazienka 5,0 m2
5. Kuchnia 15,6 m2
6. Jadalnia 16,5 m2
7. Pokój dzienny 34,2 m2
8. Spiżarnia 1,7 m2
9. Pokój/ studio 11,0 m2
10. Przedsionek 1,4 m2
11. Spiżarnia 4,0 m2
12. Kotłownia 11,1 m2
Do domu wchodzimy przez przestronny wiatrołap z garderobą. Idąc w lewo głównym hallem mamy schody na poddasze, mały pokój, spiżarnię i kotłownię na paliwo stałe. Centralną część parteru zajmuje pokój dzienny z kominkiem, a na prawo od niego jest jadalnia i kuchnia. Program uzupełnia znajdująca się obok kuchni łazienka.
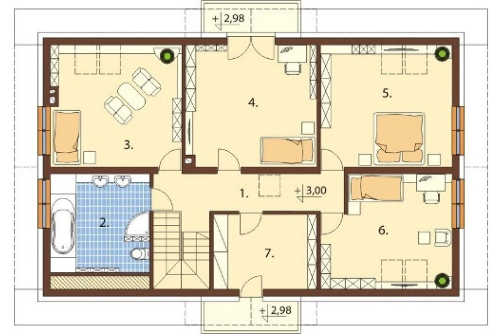
Rzut poddasza

Poddasze: 110,4 m2
1. Hall + 1/2kom. 14,0 m2
2. Łazienka 12,5 m2
3. Sypialnia 18,3 m2
4. Sypialnia 21,4 m2
5. Sypialnia 18,4m2
6. Sypialnia 15,7 m2
7. Stryszek 10,1 m2
Na poddaszu zaprojektowaliśmy cztery podobnej wielkości sypialnie, oraz dużą wspólną dla poddasze łazienkę. Do adaptacji pozostawiliśmy stryszek z wyjściem na balkon w elewacji frontowej.
Przekrój

Projekt nowoczesnego domu z poddaszem użytkowym o bogatym programie i dużej powierzchni użytkowej.
Model

Bryła budynku na bazie prostokąta jest bardzo prosta, co obniża koszty budowy i poprawia energooszczędność. W elewacji frontowej i ogrodowej zaprojektowaliśmy po jednym centralnie umiejscowionym balkonie. Pomieszczenia na poddaszu doświetlane są przez okiennice w elewacji bocznej i okna połaciowe. Do realizacji projektu Makowo potrzebna będzie działka o szerokości 14.39 m.
Elewacje




Informacje podstawowe
Technologia: tradycyjna
Ściany zewnętrzne: pustak ceramiczny 25 cm, styropian 20 cm, tynk zewnętrzny
Strop nad parterem: żelbetowy
Kąt nachylenia dachu: 40°
Ogrzewanie: kocioł na paliwo stałe
Wentylacja: mechaniczna z odzyskiem ciepła
Program: 5 pokoi, salon, jadalnia, kuchnia, 2 łazienki, kotłownia, garderoba, stryszek
Koszty budowy sprawdź >>
Architekt: Ewa Ferfecka-Homola, Jaromir Mruk
Projekt ten został opracowany zgodnie z normami budowlanymi, w pełnym zakresie wymaganym dla projektów gotowych.
Projekt ten nie wymaga pozwolenia na budowę i może być budowany na zgłoszenie zgodnie ze znowelizowanym Prawem Budowlanym obowiązującym od 3.01.2022 roku czytaj więcej >>
Ten projekt możesz zamówić także w wersji szkieletowej zobacz szczegóły >>
Zawartość projektu sprawdź szczegóły >>
Łączna zawartość obu projektów architektoniczno - budowlanego oraz projektu technicznego, które można zamówić razem lub osobno:
- projekt architektoniczny budowlany
- projekt konstrukcyjny budowlany
- projekt budowlany wewnętrznych instalacji sanitarnych (c.o, wod-kan,gaz, szambo)
- projekt budowlany wewnętrznej instalacji elektrycznej oraz instalacji odgromowej
- przedmiar robót budowlanych
- charakterystyka energetyczna
- zgoda na zmiany w projekcie
Zdjęcia z realizacji zobacz wszystkie >>
Parametry projektu
Ogólne kategorie, do których należy ten projekt
- Powierzchnia mieszkalna (m²) 200 - 250
- Powierzchnia użytkowa (m²) 200 - 300
- Powierzchnia zabudowy (m²) 150 - 200
- Kąt nachylenia dachu (°) 35 - 40
- Szerokość działki/krótszy bok (m) 18 - 20
- Wysokość budynku (m) 8 - 9
Podstawowe parametry projektu
- Powierzchnia mieszkalna (m²) 213.30
- Powierzchnia użytkowa (m²) 234.80
- Powierzchnia zabudowy (m²) 159.80
- Szerokość budynku/krótszy bok (m) 10.04
- Długość budynku/dłuższy bok (m) 15.92
- Wysokość budynku (m) 8.77
- Szerokość działki/krótszy bok (m) 18.40
- Kąt nachylenia dachu (°) 40
- Rodzaj dachu dwuspadowy
- Piwnica bez podpiwniczenia
- Garaż bez garażu
- Poddasze poddasze użytkowe
- Liczba sypialni na parterze 1
Uzupełniające parametry projektu
- Rodzaj technologii* tradycyjna
- Strop w budynku* żelbetowy
- Układ dachu kalenicowy
- Kubatura (m³) 1092.50
- Styl modernistyczny
- Liczba kondygnacji 2
- Rodzaj ogrzewania paliwo stałe
- Wskaźnik energii pierwotnej (kWh/(m²·rok)) 18.61
- Wentylacja* mechaniczna
- Liczba pomieszczeń 19
- Liczba wszystkich pokoi 5
- Liczba łazienek (bez WC) 2
Dodatkowe parametry projektu
- Kominek* tak
- Garderoba* tak
- Spiżarnia* tak
- Pokój z łazienką i garderobą* nie
- Pralnia / pom. gospodarcze* nie
- Kotłownia* tak
- Taras tak
- Weranda nie
- Wirtualny spacer nie
* gwiazdką są oznaczone w parametrach projektu zmiany nieistotne, które nie wymagają przeprojektowania do pozwolenia zamiennego. Do każdego projektu dołączamy bezpłatną zgodę na wprowadzanie zarówno zmian istotnych jak i nieistotnych.
Projekty domów można również przeglądać analizując zestawienia rzutów parterów kliknij tutaj >>
Darmowe dodatki do projektu
- 10 stylowych projektów ogrodzeń
- 10 projektów śmietników
- 5 projektów grilli z funkcją rusztu, kominka i wędzarni
- 6 projektów oczek wodnych
- 6 projektów altan
- 4 projekty huśtawek ogrodowych
- 4 projekty bud dla psów
- 4 projekty szamb o poj. 21,6 m3 / 14,6 m3 / 10 m3 i 6,4 m3
- 2 projekty przydomowej oczyszczalni ścieków. Jeden dla rodziny do 4 osób, drugi dla rodziny do 6 osób
- projekt przydomowej elektrowni wiatrowej
- schemat instalacji fotowoltaicznej
- projekty budek lęgowych dla kilkudziesięciu gatunków ptaków
- zgoda na wszelkie zmiany i adaptacje
Producentem projektu jest:

ul. Cystersów 7B, 31-553 Kraków
e-mail: kbprojekt@kbprojekt.pl
tel. 12 414 35 06
Pomocne informacje
Chcesz wprowadzić zmiany w tym projekcie?
Możemy dostosować go do Twoich potrzeb, napisz co chciałbyś w nim zmienić, przeprojektujemy go tak, aby w pełni odpowiadał Twoim oczekiwaniom
Chcesz dostosować ten projekt we własnym zakresie?
Sprawdź jakie zmiany są nieistotne czyli takie, ktore możesz wprowadzić na etapie budowy zobacz szczegóły >>
Nie możesz znaleźć odpowiedniego projektu?
Chętnie pomożemy. Zadzwoń do nas 12 410 49 70 lub skorzystaj z formularza kontaktowego dostępnego tutaj >>
Szukasz projektu dopasowanego do Twoich potrzeb?
Sprawdź naszą ofertę na projekty domów na indywidualne zamówienie w niezwykle atrakcyjnej cenie zobacz szczegóły >>
Potrzebujesz adaptacji projektu lub pomocy w załatwieniu formalności związanych z budową?
Nasze biuro architektoniczne oferuje pomoc w uzyskaniu pozwolenia na budowę a także wykonuje adaptacje projektów na terenie całej Polski zobacz szczegóły >>
Szukasz sprawdzonego kierownika budowy?
Oferujemy usługi naszych uprawnionych kierowników budowy, którzy przeprowadzą Cię przez cały proces budowlany, od uzyskania pozwolenia na budowę po finalne odbiory zobacz szczegóły >>
Opinie o tym projekcie
Jeśli dodałeś/-aś recenzję, a nie pojawiłą się na liście, być może oczekuje na moderację.