Przejdź do głównej treści


w naszych domach mieszkają szczęśliwi ludzie

w naszych domach mieszkają szczęśliwi ludzie

Projekty w koszyku: 0. Zobacz szczegóły

Twój koszyk jest pusty

Waluta
polski / zł

w naszych domach mieszkają szczęśliwi ludzie

Waluta
polski / zł
Projekty w koszyku: 0. Zobacz szczegóły

Twój koszyk jest pusty

w naszych domach mieszkają szczęśliwi ludzie

Wyszukaj projekt
Zamknij wyszukiwarkę Wyczyść lub wpisz cechy budynku

Masz pytania? Zadzwoń 12 414 35 06 lub kliknij kontakt

Masz pytania?
Zadzwoń 12 414 35 06
lub kliknij kontakt

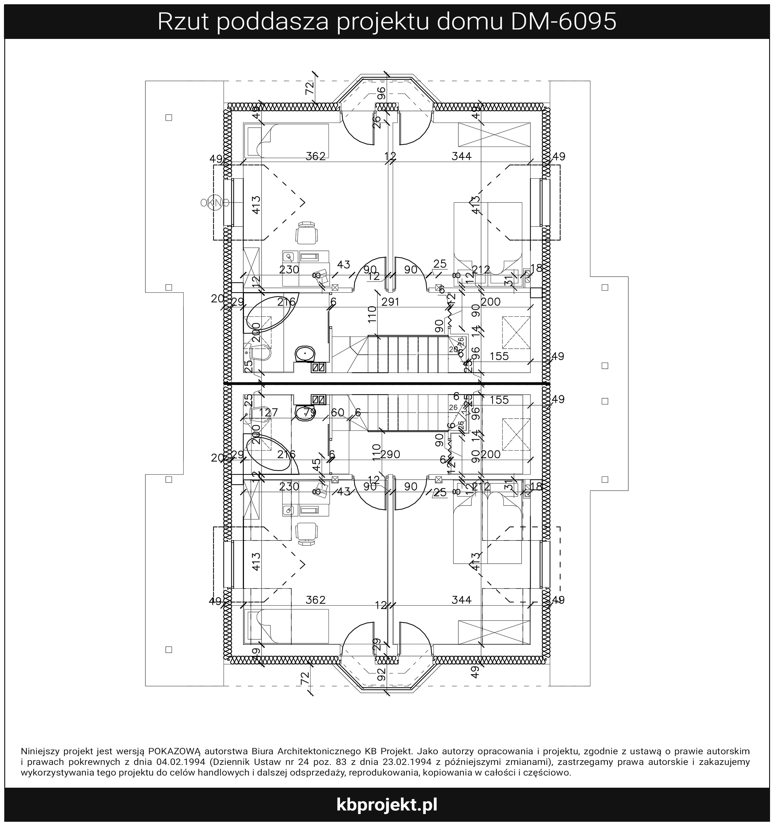
Rysunki szczegółowe projektu domu DM-6095


Poniżej znajdziesz rysunki szczegółowe dla poszczególnych kondygnacji tego projektu.

Możesz też je pobrać na swój dysk. W tym celu przejdź do sekcji "Pobierz rysunki szczegółowe" na dole strony.

Rzut DM-6095

Rzut DM-6095

Niniejszy projekt jest wersją POKAZOWĄ autorstwa Biura Architektonicznego KB Projekt. Jako autorzy opracowania i projektu, zgodnie z ustawą o prawie autorskim i prawach pokrewnych z dnia 04.02.1994 (Dziennik Ustaw nr 24 poz. 83 z dnia 23.02.1994 z późniejszymi zmianami), zastrzegamy prawa autorskie i zakazujemy wykorzystywania tego projektu do celów handlowych i dalszej odsprzedaży, reprodukowania, kopiowania w całości i częściowo.

Pobierz rysunki szczegółowe

File icon DM_6095_parter_rs.jpg 705.81 kB

Rysunek szczegółowy parteru

File icon DM_6095_poddasze_rs.jpg 759.26 kB

Rysunek szczegółowy poddasza

Komentarze (0)

Napisz komentarz