Maków
Kod: DM-6034
| Projekt na zamówienie dostępny w terminie ustalonym z biurem skontaktuj się >> | |
| W podanej cenie oferujemy 3 kopie projektu architektoniczno-budowlanego potrzebnego do uzyskania pozwolenia na budowę sprawdź >> | |
| Parametry projektu zobacz >> | |
| Koszty budowy zobacz >> | |
| Forum dotyczące tego projektu zobacz >> |
| Zmiany istotne i nieistotne, które możesz wprowadzić w tym projekcie sprawdź >> | |
| Adaptacja i pozwolenie na budowę zobacz >> | |
| Jeśli masz pytanie |
Prezentacja projektu
Opis projektu
Projekt domu jednorodzinnego MAKÓW, DM-6034,parterowy z garażem, z poddaszem mieszkalnym, częściowo podpiwniczony, o doskonałej organizacji przestrzeni wewnętrznej.
Rzut piwnicy

1. PIWNICA 8,3 m2
2. SKŁAD OPAŁU 3,7 m2
3. KOTŁOWNIA 3,7 m2
4. KORYTARZ 7,4 m2
5. PIWNICA 4,5 m2
6. KLATKA SCHODOWA 3,0 m2
7. GARAŻ 22,5 m2
Częściowe podpiwniczenie gwarantuje odpowiednią przestrzeń dla pomieszczeń gospodarczych. Znajduje się tu kotłownia ze składem opału oraz dwie piwnice. Wszystkie pomieszczenia połączone są wygodnymi przejściami. Zaplanowanie na tej kondygnacji garażu pozwala na oszczędność przestrzeni użytkowej domu i ogrodu.
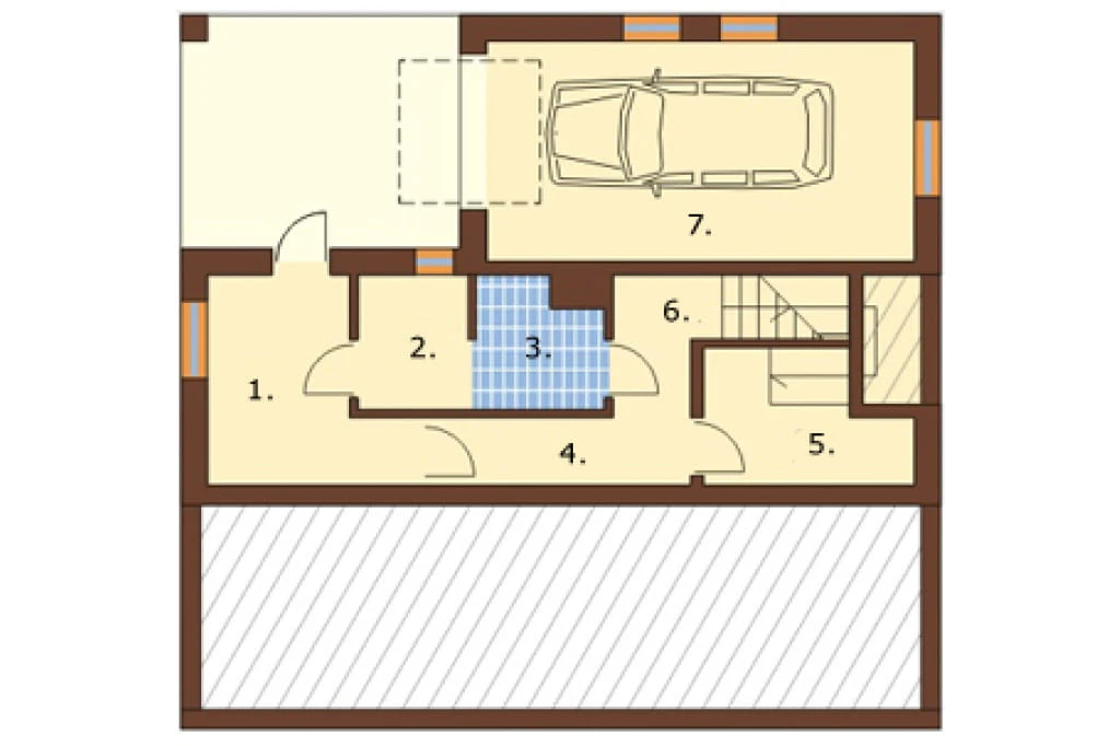
Rzut parteru

1. POKÓJ DZIENNY 21,9 m2
2. KORYTARZ 9,0 m2
3. ŁAZIENKA 5,6 m2
4. POKÓJ 9,6 m2
5. POKÓJ 14,3 m2
6. GARDEROBA 4,2 m2
7. WIATROŁAP 2,4 m2
8. KUCHNIA 10,7 m2
9. WC 1,7 m2
10. SPIŻARNIA 1,6 m2
11. KLATKA SCHODOWA 3,2 m2
12. TARAS
Tradycyjne rozplanowanie przestrzeni parteru zapewnia mieszkańcom wygodę i jest niezwykle funkcjonalne. Główne wejście prowadzi do wiatrołapu, skąd przejść można do korytarza. Na lewo umieszczono garderobą - ze względu na sąsiedztwo z wiatrołapem idealne miejsce do przechowywania odzieży wierzchniej. Na prawo znajduje się wygodna kuchnia z przylegającą spiżarnią. Za kuchnią zaplanowano WC, klatkę schodową oraz przestronny pokój dzienny z kominkiem i wyjściem na taras. W części parteru położonej z lewej strony znajduje się strefa sypialna - dwa pokoje i łazienka. W razie potrzeby, pokoje te mogą pełnić funkcję gościnnych, gabinetu, biblioteki czy sypialni dla seniorów.
Rzut piętra / antresoli

1. POKÓJ 14,1 m2
2. KORYTARZ 7,2 m2
3. ŁAZIENKA 2,1 m2
4. POKÓJ 18,8 m2
5. GARDEROBA 3,7 m2
6. POKÓJ 12,5 m2
7. SCHOWEK 0,6 m2
8. WC 1,7 m2
9. KLATKA SCHODOWA 6,4 m2
Na poddaszu zaplanowano trzy przestronne, wygodne pokoje, jeden z nich wyposażony jest w prywatny schowek. Na korytarzu znajduje się łazienka, WC oraz ogólnodostępna garderoba.
Przekrój

Model 3D

Budynek zaprojektowano z myślą o terenach ze spadkiem. Wykorzystanie naturalnego nachylenia działki zapewnia swobodny dostęp do pomieszczeń piwnicy oraz wjazd do garażu. Zaplanowanie budynku w kształcie litery L zwiększa funkcjonalność pomieszczeń i sprawia, że osłonięty z dwóch stron taras zapewnia domownikom większą prywatność.
Elewacje




Informacje podstawowe
Projekt domu DM-6034. Dom parterowy z garażem, z poddaszem mieszkalnym, częściowo podpiwniczony.
Technologia tradycyjna.
Ściany zewnętrzne: pustak ceramiczny 29 cm, styropian 10 cm, tynk zewnętrzny.
Stropy w budynku: żelbetowe. Kąt nachylenia dachu: 42°.
Program: 5 pokoi, salon, kuchnia, spiżarnia, spiżarnia, kotłownia ze składem na opał, pomieszczenie gospodarcze.
ZAWARTOŚĆ PROJEKTU:
- projekt architektoniczny budowlany
- projekt konstrukcyjny budowlany
- projekt budowlany wewnętrznych instalacji sanitarnych (c.o, wod-kan,gaz)
- projekt budowlany wewnętrznej instalacji elektrycznej oraz instalacji odgromowej
- zestawienie materiałów budowlanych
- szacunkowa charakterystyka energetyczna
- zgoda na zmiany w projekcie
Koszty budowy sprawdź >>
Architekt: Teresa Jakubowska,
Projekt ten został opracowany zgodnie z normami budowlanymi, w pełnym zakresie wymaganym dla projektów gotowych.
Projekt ten nie wymaga pozwolenia na budowę i może być budowany na zgłoszenie zgodnie ze znowelizowanym Prawem Budowlanym obowiązującym od 3.01.2022 roku czytaj więcej >>
Zawartość projektu sprawdź szczegóły >>
Łączna zawartość obu projektów architektoniczno - budowlanego oraz projektu technicznego, które można zamówić razem lub osobno:
Parametry projektu
Ogólne kategorie, do których należy ten projekt
- Powierzchnia mieszkalna (m²) 150 - 200
- Powierzchnia użytkowa (m²) 200 - 300
- Powierzchnia zabudowy (m²) 100 - 120
- Kąt nachylenia dachu (°) 40 - 45
- Szerokość działki/krótszy bok (m) 18 - 20
- Wysokość budynku (m) 8 - 9
Podstawowe parametry projektu
- Powierzchnia mieszkalna (m²) 151.30
- Powierzchnia użytkowa (m²) 204.40
- Powierzchnia zabudowy (m²) 113.20
- Szerokość budynku/krótszy bok (m) 11,05
- Długość budynku/dłuższy bok (m) 11,75
- Wysokość budynku (m) 9,62
- Szerokość działki/krótszy bok (m) 19.10
- Kąt nachylenia dachu (°) 42°
- Rodzaj dachu dwuspadowy
- Piwnica częściowo podpiwniczony
- Garaż z garażem
- Poddasze poddasze użytkowe
Uzupełniające parametry projektu
- Rodzaj technologii* tradycyjna
- Układ dachu kalenicowy
- Kubatura (m³) 544.70
- Liczba kondygnacji 3
- Rodzaj ogrzewania gazowe
- Wskaźnik energii pierwotnej (kWh/(m²·rok)) 110,18
- Liczba pomieszczeń 24
- Liczba łazienek (bez WC) 2
* gwiazdką są oznaczone w parametrach projektu zmiany nieistotne, które nie wymagają przeprojektowania do pozwolenia zamiennego. Do każdego projektu dołączamy bezpłatną zgodę na wprowadzanie zarówno zmian istotnych jak i nieistotnych.
Darmowe dodatki do projektu
- 10 stylowych projektów ogrodzeń
- 10 projektów śmietników
- 5 projektów grilli z funkcją rusztu, kominka i wędzarni
- 6 projektów oczek wodnych
- 6 projektów altan
- 4 projekty huśtawek ogrodowych
- 4 projekty bud dla psów
- 4 projekty szamb o poj. 21,6 m3 / 14,6 m3 / 10 m3 i 6,4 m3
- 2 projekty przydomowej oczyszczalni ścieków. Jeden dla rodziny do 4 osób, drugi dla rodziny do 6 osób
- projekt przydomowej elektrowni wiatrowej
- schemat instalacji fotowoltaicznej
- projekty budek lęgowych dla kilkudziesięciu gatunków ptaków
- zgoda na wszelkie zmiany i adaptacje
Producentem projektu jest:

ul. Cystersów 7B, 31-553 Kraków
e-mail: kbprojekt@kbprojekt.pl
tel. 12 414 35 06
Pomocne informacje
Chcesz wprowadzić zmiany w tym projekcie?
Możemy dostosować go do Twoich potrzeb, napisz co chciałbyś w nim zmienić, przeprojektujemy go tak, aby w pełni odpowiadał Twoim oczekiwaniom
Chcesz dostosować ten projekt we własnym zakresie?
Sprawdź jakie zmiany są nieistotne czyli takie, ktore możesz wprowadzić na etapie budowy zobacz szczegóły >>
Nie możesz znaleźć odpowiedniego projektu?
Chętnie pomożemy. Zadzwoń do nas 12 410 49 70 lub skorzystaj z formularza kontaktowego dostępnego tutaj >>
Szukasz projektu dopasowanego do Twoich potrzeb?
Sprawdź naszą ofertę na projekty domów na indywidualne zamówienie w niezwykle atrakcyjnej cenie zobacz szczegóły >>
Potrzebujesz adaptacji projektu lub pomocy w załatwieniu formalności związanych z budową?
Nasze biuro architektoniczne oferuje pomoc w uzyskaniu pozwolenia na budowę a także wykonuje adaptacje projektów na terenie całej Polski zobacz szczegóły >>
Szukasz sprawdzonego kierownika budowy?
Oferujemy usługi naszych uprawnionych kierowników budowy, którzy przeprowadzą Cię przez cały proces budowlany, od uzyskania pozwolenia na budowę po finalne odbiory zobacz szczegóły >>
Opinie o tym projekcie
Jeśli dodałeś/-aś recenzję, a nie pojawiłą się na liście, być może oczekuje na moderację.