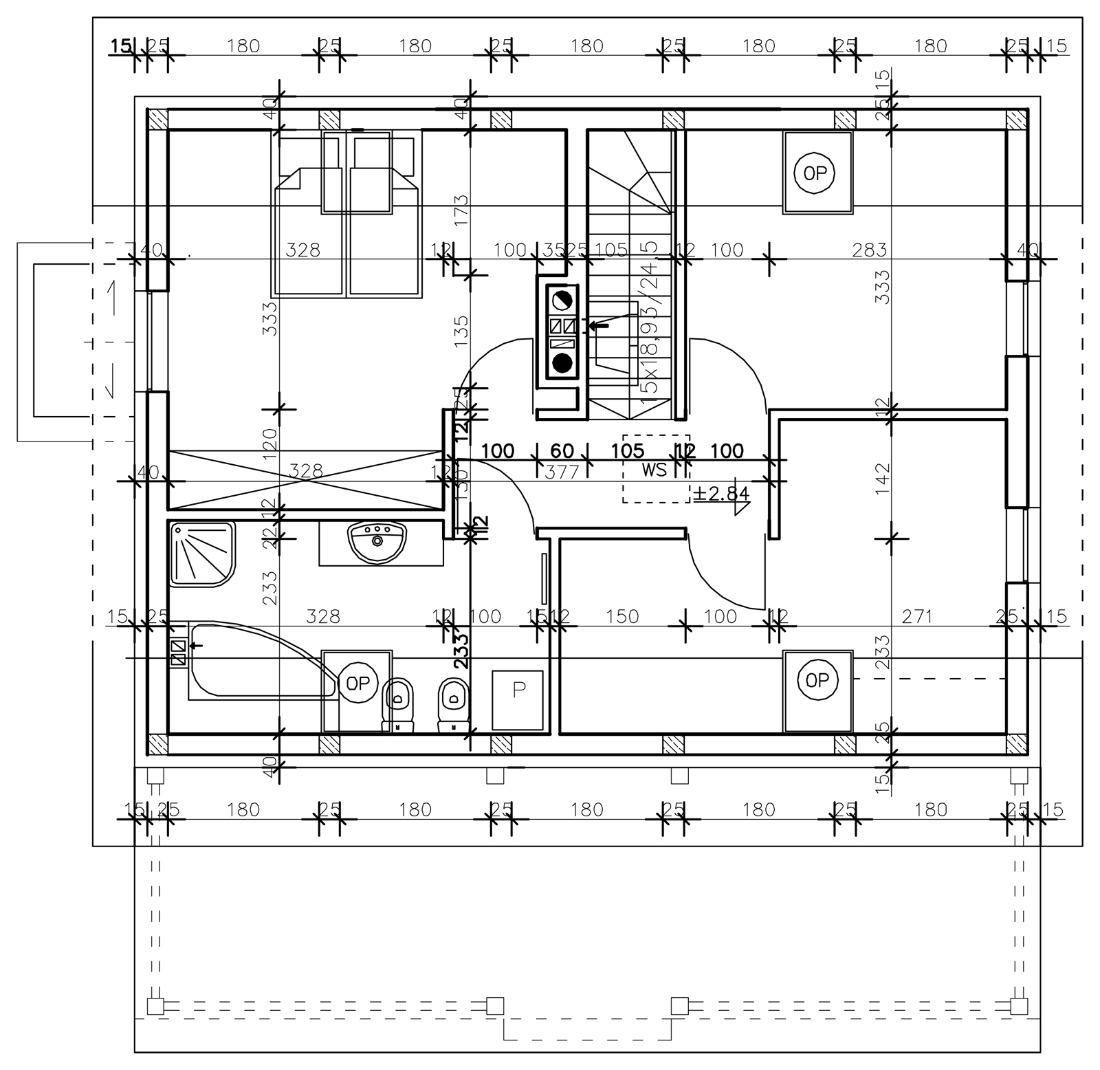
Projekt domu L-6500 - rzut poddasza

Niniejszy projekt jest wersją POKAZOWĄ autorstwa Biura Architektonicznego KB Projekt. Jako autorzy opracowania i projektu, zgodnie z ustawą o prawie autorskim i prawach pokrewnych z dnia 04.02.1994 (Dziennik Ustaw nr 24 poz. 83 z dnia 23.02.1994 z późniejszymi zmianami), zastrzegamy prawa autorskie i zakazujemy wykorzystywania tego projektu do celów handlowych i dalszej odsprzedaży, reprodukowania, kopiowania w całości i częściowo.